Anjerveld 27

Nieuwerkerk A/d IJssel Vraagprijs: € 425.000,- k.k.
Verkocht
  • Woonoppervlakte 97 m2
  • Perceeloppervlakte 101 m2
  • Aantal slaapkamers 4
  • Bouwjaar 1984

Omschrijving

Comfortabel en modern wonen op een toplocatie – Anjerveld 27, Nieuwerkerk aan den IJssel

Welkom op Anjerveld 27, een uitstekend onderhouden eengezinswoning in een rustige en kindvriendelijke woonwijk van Nieuwerkerk aan den IJssel. Deze woning combineert comfort, ruimte en een moderne afwerking op een fijne locatie dichtbij winkels, scholen, openbaar vervoer en uitvalswegen. Een perfecte plek voor starters of jonge gezinnen die op zoek zijn naar een instapklare woning.

Persoonlijke tekst eigenaar:
Bent u op zoek naar een fijne gezinswoning op een plek waar kinderen veilig kunnen opgroeien? Deze woning ligt in een rustige, kindvriendelijke wijk met alles binnen handbereik! Op loopafstand van het winkelcentrum met winkels en eetgelegenheden. Geniet van de zon van 's ochtends vroeg tot 's avonds laat in de heerlijk gelegen tuin. Perfect voor lange zomeravonden, speelplezier of een gezellige barbecue. Kortom een heerlijk huis!

Ligging:
Anjerveld 27 ligt in een groene, ruim opgezette wijk met veel speelvoorzieningen en wandelmogelijkheden in de directe omgeving. Op korte afstand bevinden zich het winkelcentrum Reigerhof, basisscholen en middelbare scholen, sportverenigingen en station Nieuwerkerk aan den IJssel, vanwaar je binnen 15 minuten in hartje Rotterdam bent. De wijk kenmerkt zich door de rustige sfeer en het prettige woonklimaat.

Begane grond:
Entree via een nette hal met moderne meterkast (vernieuwd 3 jaar geleden), hangend toilet met fonteintje. De lichte woonkamer beschikt over een praktische trapkast en heeft een fijne verbinding met de open keuken aan de voorzijde. De keuken is uitgerust met een koelkast, combi-oven, vaatwasser, 4-pits inductiekookplaat en een afzuigkap. Vanuit de woonkamer stap je zo de diepe achtertuin in (circa 9,46 x 4,86 meter), voorzien van een zonnescherm en een ruime houten berging met onderhoudsvriendelijke composiet delen. De gehele begane grond is drie jaar geleden vernieuwd.

Eerste verdieping:
Overloop met toegang tot drie slaapkamers, waarvan twee aan de achterzijde en één aan de voorzijde. De badkamer is circa 10 jaar oud en voorzien van een inloopdouche, wastafel en een tweede hangend toilet.

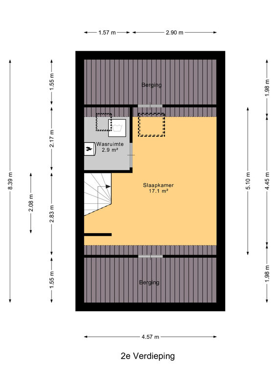
Tweede verdieping:
Een ruime open zolderverdieping met veel daglicht dankzij het dakraam aan de achterzijde. Hier bevindt zich ook een kast met de opstelling voor heteluchtverwarming, CV-installatie en de wasmachineaansluiting. De ruimte is zeer geschikt als werkplek, hobbyruimte of extra slaapkamer.

Bijzonderheden:
* Gehele begane grond vernieuwd in 2021, inclusief vloerafwerking, wandafwerking en meterkast
* De woning beschikt over een comfortabele heteluchtverwarming en aparte CV-installatie
* Ruime achtertuin met berging, voorzien van onderhoudsarme composiet delen
* Rolluiken aanwezig aan de voorzijde van de woning
* Moderne keuken met inbouwapparatuur
* Centraal gelegen in een rustige straat met voldoende parkeergelegenheid
* Energielabel wordt bij verkoop opgevraagd

Kortom, Anjerveld 27 biedt alles wat je zoekt: een instapklare woning op een centrale plek, met moderne voorzieningen en een heerlijke tuin. Maak snel een afspraak voor een bezichtiging en ontdek zelf de charme van dit fijne huis!

Interesse? Neem contact met ons op voor meer informatie of een bezichtiging!

Nieuwerkerk aan den IJssel is een gezellig en charmant dorp, gelegen aan de Hollandse IJssel. Het dorp biedt een fijne mix van natuur, ontspanning en activiteiten voor jong en oud.
Voor liefhebbers van buiten zijn is er een prachtige golfbaan in een natuurrijke omgeving. Gezinnen met kinderen kunnen terecht in zwembad het Polderbad voor een verfrissende duik. Daarnaast zijn er volop sportmogelijkheden met diverse verenigingen, waaronder een voetbalclub, tennisclub, hockeyclub en een dansschool.
Het historische hart van Nieuwerkerk, het Oude Dorp, heeft een sfeervolle uitstraling met een gevarieerd aanbod aan winkels en horecagelegenheden.
Nieuwerkerk is bovendien uitstekend bereikbaar: dankzij een goede treinverbinding sta je in ongeveer 15 minuten in het centrum van Rotterdam.
Voor gezinnen met kinderen is er ruime keuze op het gebied van onderwijs. Nieuwerkerk telt maar liefst zeven basisscholen, elk met een eigen onderwijsvisie, zoals de Elimschool, Gideonschool, Montessorischool en de Prins Willem Alexanderschool. Ook voortgezet onderwijs is aanwezig, met twee middelbare scholen: het openbare Thorbecke en het christelijke Comenius College.


Gebruiksoppervlakte woningen:
De Meetinstructie is gebaseerd op de NEN2580. De Meetinstructie is bedoeld om een meer eenduidige manier van meten toe te passen voor het geven van een indicatie van de gebruiksoppervlakte. De Meetinstructie sluit verschillen in meetuitkomsten niet volledig uit, door bijvoorbeeld interpretatieverschillen, afrondingen of beperkingen bij het uitvoeren van de meting.

Rechtsgeldige koopovereenkomst pas ná ondertekening:
Een mondelinge overeenstemming tussen de particuliere verkoper en de particuliere koper is niet rechtsgeldig. Met andere woorden: er is geen koop. Er is pas sprake van een rechtsgeldige koop als de particuliere verkoper en de particuliere koper de koopovereenkomst hebben ondertekend. Dit vloeit voort uit artikel 7:2 Burgerlijk Wetboek. Een bevestiging van de mondelinge overeenstemming per e-mail of een toegestuurd concept van de koopovereenkomst wordt overigens niet gezien als een ‘ondertekende koopovereenkomst’.

Van der Panne woning- & bedrijfsmakelaardij is de makelaar van de verkoper. Neem uw eigen NVM-makelaar mee, voor goed advies bij de aankoop van uw nieuwe woning!

Lees de volledige omschrijving

Kenmerken

Overdracht

Status Verkocht
Aanvaarding In overleg

Bouwvorm

Soort object Woonhuis
Soort woning Eengezinswoning
Type woning Tussenwoning
Bouwjaar 1984
Bouwvorm Bestaande bouw
Ligging Aan een rustige weg, in een woonwijk

Indeling

Woonoppervlakte 97 m²
Perceeloppervlakte 101 m²
Inhoud 335 m³
Aantal woonlagen 3

Energie

Energieklasse B
Energie einddatum maandag 14 mei 2035
Isolatie Volledig geïsoleerd
Warmwater Cv ketel
Verwarming Hete lucht verwarming

Buitenruimte

Tuin Achtertuin, voortuin
Hoofdtuin Achtertuin
Oppervlakte hoofdtuin 46 m²
Ligging hoofdtuin Zuid-oost
Achterom Ja
Kwaliteit tuin Verzorgd

Bergruimte

Garage Geen garage
Schuur / Berging Vrijstaand hout

Parkeergelegenheid

Voorzieningen Openbaar parkeren

Dak

Dak Zadeldak

Overig

Permanente bewoning Ja
Onderhoud binnen Goed
Onderhoud buiten Goed
Huidig gebruik Woonruimte
Huidige bestemming Woonruimte

Voorzieningen

Voorzieningen Mechanische ventilatie, tv kabel, buitenzonwering

Kadastrale gegevens

Gemeente Nieuwerkerk aan den IJssel
Sectie B
Perceelnummer 4669
Oppervlakte 101 m²
Eigendomssituatie Volle eigendom
VanderPanne-HR-6745
Interesse in deze woning?

Rody helpt u graag

Delen

fundawonen-logo
logo
VGC_keurmerk_nw_zwart-grijs
nwwi
logo_NVM_business_staand_CMYK