Corsicalaan 213

Rotterdam Vraagprijs: € 1.425.000,- k.k.
  • Woonoppervlakte 173 m2
  • Aantal slaapkamers 2
  • Bouwjaar 2010

Omschrijving

Is dit het mooiste penthouse van Nesselande?! Gelegen op een uitstekende locatie, aan de geliefde Corsicalaan, op de 21e verdieping met een magnifiek uitzicht ligt dit stijlvolle penthouse waar luxe, rust en comfort samenkomen. Met royale leefruimtes, hoogwaardige afwerking, een fraaie loggia, een zeer riante berging en twee privéparkeerplaatsen biedt deze woning alles voor wie royaal en zorgeloos wil wonen in Rotterdam-Nesselande. Vanuit het penthouse ziet u de skylines van Rotterdam, Delft en Den Haag maar uiteraard ook het prachtige recreatiegebied wat rondom het penthouse ligt.

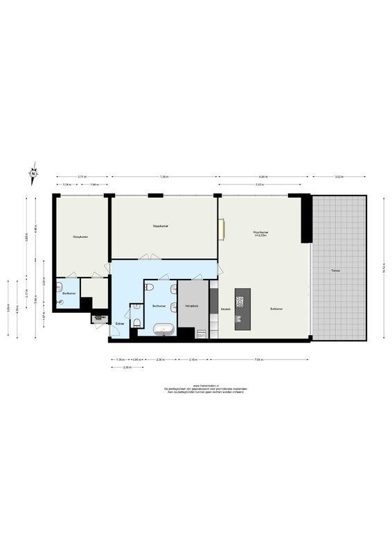
Indeling:
De entree komt uit in een ruime hal met een modern toilet, voorzien van een Alessi-fontein en -toilet. Vanuit de hal bereik je de eerste slaapkamer, voorzien van een kastenkamer (compleet met ingebouwde verlichting) en een ensuite badkamer met een inloopdouche, designradiator, een meubel met wastafel. Daarnaast is er een garderoberuimte aanwezig.

De tweede slaapkamer (de master bedroom) is bijzonder ruim en bereikbaar via dubbele deuren. Dit waren oorspronkelijk twee aparte kamers, wat goed terug te zien is in de royale maatvoering.

De tweede badkamer is luxe uitgevoerd en beschikt over een Alessi-toilet, een meubel met twee waskommen, een vrijstaand ligbad (Alessi Laufen whirlpool bad) met verlichting en een designradiator. Daarnaast is er een aparte wasruimte aanwezig.

Wonen met licht en luxe:
De woonkamer voelt licht en ruim dankzij de vele ramen in zowel de zuid als de westgevel. Via een schuifpui is het overdekte terras te bereiken.

De tegelvloer met vloerverwarming in de woonkamer zorgt voor een comfortabel klimaat. De open keuken van Poggenpohl is uitgerust met Miele-apparatuur: inductiekookplaat, koelkast, vriezer, stoomoven (niet gebruikt), ingebouwde koffiemachine, combi-oven, vaatwasser en een afzuigkap.

Overdekt terras: buitenruimte voor alle seizoenen
Het terras van 39 m² vormt een verlengstuk van de woonkamer en is een heerlijke plek om het hele jaar door te genieten. De ruimte is afgewerkt met composiet planken, glazen wanden en screens waardoor je hier met veel privacy en comfort kunt ontspannen.

Pluspunten:
* Hoogwaardig afgewerkt penthouse
* Vloerverwarming in de woonkamer
* Overal onderhoudsarme tegelvloeren
* Overdekt terras met glazen panelen en screens
* Poggenpohl-keuken met complete Miele-inbouwapparatuur
* Luxe sanitaire voorzieningen van Alessi
* Twee royale slaapkamers
* Veel bergruimte in de woning
* Een bijzonder grote berging op de begane grond
* Twee privéparkeerplaatsen
* Mogelijkheid dat diverse meubels achter blijven

Bijzonderheden:
De maandelijkse VVE-bijdrage is € 435,39 (€ 350,49 voor de woning en € 84,20 voor de twee parkeerplaatsen).

Rotterdam-Nesselande is een moderne en levendige wijk, prachtig gelegen aan de Zevenhuizerplas. Deze wijk combineert stedelijk wonen met een ontspannen strandgevoel. Met een brede boulevard, het stadsstrand en diverse recreatiemogelijkheden is Nesselande een geliefde plek voor bewoners en bezoekers.

Nesselande beschikt over vier basisscholen met verschillende onderwijsvormen: een christelijke school, een openbare tweetalige basisschool, een daltonbasisschool en een vrijeschool. Voor middelbaar onderwijs zijn er in de nabije omgeving goede opties, zoals het Comenius College in Nieuwerkerk en het Emmaus College in Rotterdam.

Op culinair gebied zijn Guay, Brasserie Lookies en L’Italiano populaire hotspots. Voor de lekkerste koffie is er Mamamo! Een fijne plek waar ouders kunnen ontspannen terwijl de kinderen spelen.

De wijk is uitstekend bereikbaar via het metrostation Nesselande, dat snelle verbindingen biedt naar Rotterdam centrum en omliggende gebieden.

Daarnaast kent Nesselande diverse sportclubs, waardoor er volop mogelijkheden zijn om actief te zijn.
Kortom, Nesselande biedt voor ieder wat wils: een moderne, groene en kindvriendelijke woonomgeving met goede voorzieningen, leuke eetgelegenheden en volop recreatie.

Gebruiksoppervlakte woningen:
De Meetinstructie is gebaseerd op de NEN2580. De Meetinstructie is bedoeld om een meer eenduidige manier van meten toe te passen voor het geven van een indicatie van de gebruiksoppervlakte. De Meetinstructie sluit verschillen in meetuitkomsten niet volledig uit, door bijvoorbeeld interpretatieverschillen, afrondingen of beperkingen bij het uitvoeren van de meting.

Rechtsgeldige koopovereenkomst pas ná ondertekening:
Een mondelinge overeenstemming tussen de particuliere verkoper en de particuliere koper is niet rechtsgeldig. Met andere woorden: er is geen koop. Er is pas sprake van een rechtsgeldige koop als de particuliere verkoper en de particuliere koper de koopovereenkomst hebben ondertekend. Dit vloeit voort uit artikel 7:2 Burgerlijk Wetboek. Een bevestiging van de mondelinge overeenstemming per e-mail of een toegestuurd concept van de koopovereenkomst wordt overigens niet gezien als een ‘ondertekende koopovereenkomst’.

Van der Panne woning- & bedrijfsmakelaardij is de makelaar van de verkoper. Neem uw eigen NVM-makelaar mee, voor goed advies bij de aankoop van uw nieuwe woning!

Lees de volledige omschrijving

Kenmerken

Overdracht

Status Beschikbaar
Aanvaarding In overleg

Bouwvorm

Soort object Appartement
Bouwjaar 2010
Bouwvorm Bestaande bouw
Ligging In een woonwijk, vrij uitzicht

Indeling

Woonoppervlakte 173 m²
Inhoud 540 m³
Aantal woonlagen 1

Energie

Energieklasse A
Energie einddatum dinsdag 13 november 2035
Isolatie Volledig geïsoleerd
Warmwater Stadsverwarming
Verwarming Stadsverwarming

Buitenruimte

Tuin Geen tuin
Achterom Nee

Bergruimte

Garage Eigen parkeerplaats

Parkeergelegenheid

Voorzieningen Op eigen terrein

Dak

Dak Plat dak

Overig

Permanente bewoning Ja
Onderhoud binnen Uitstekend
Onderhoud buiten Uitstekend
Huidig gebruik Woonruimte
Huidige bestemming Woonruimte

Kadastrale gegevens

Gemeente Rotterdam
Sectie BC
Perceelnummer 2239
Eigendomssituatie Volle eigendom
VdPanne-LR-0418
Interesse in deze woning?

Luc helpt u graag

Delen

Vergelijkbare objecten

Rhodoshof 14

Rotterdam Vraagprijs: € 625.000,- k.k.
  • 127 m2
  • 129 m2
  • 6 kamers

Boorn 6

Rotterdam Vraagprijs: € 250.000,- k.k.
  • 66 m2
  • 2 kamers
Homepage-dorpen-Nieuwerkerk-aan-den-IJssel-1
Meer weten over Rotterdam
fundawonen-logo
logo
VGC_keurmerk_nw_zwart-grijs
nwwi
logo_NVM_business_staand_CMYK