De Patrijs 31

Zevenhuizen Vraagprijs: € 425.000,- k.k.
Verkocht
  • Woonoppervlakte 94 m2
  • Perceeloppervlakte 128 m2
  • Aantal slaapkamers 3
  • Bouwjaar 1981

Omschrijving

Puur woongeluk in deze instapklare woning! Deze prachtige eengezinswoning heeft een fijne woonsfeer, is strak afgewerkt én heeft diverse uitbreidingsmogelijkheden om nog meer woonoppervlakte te creëren. Met 3 slaapkamers, een gezellige woonkamer met open keuken, een moderne badkamer en een ruime vliering is dit alles wat je nodig hebt. Door de heerlijke achtertuin én de ligging vlakbij een recreatiegebied kan er hier ook volop genoten worden van het buitenleven. Perfect voor ieder (aankomend) gezin!

De woning is gelegen aan een autovrije straat met veel groen en een speeltuin aan de achterzijde. Op loopafstand bevindt zich het gezellige centrum van Zevenhuizen met diverse winkels, restaurants, basisscholen, sportfaciliteiten, kerken en openbaar vervoer.

In de nabije omgeving ligt recreatiegebied De Rottermeren en de in 2012 aangelegde Willem Alexander Roeibaan en de Hennipgaarde met een natuurspeelplaats. Deze waterrijke natuurgebieden beschikken over prachtige fiets- en wandelroutes. Binnen een half uur zijn de grote steden Rotterdam, Den Haag, Gouda en Zoetermeer te bereiken.

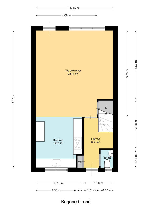
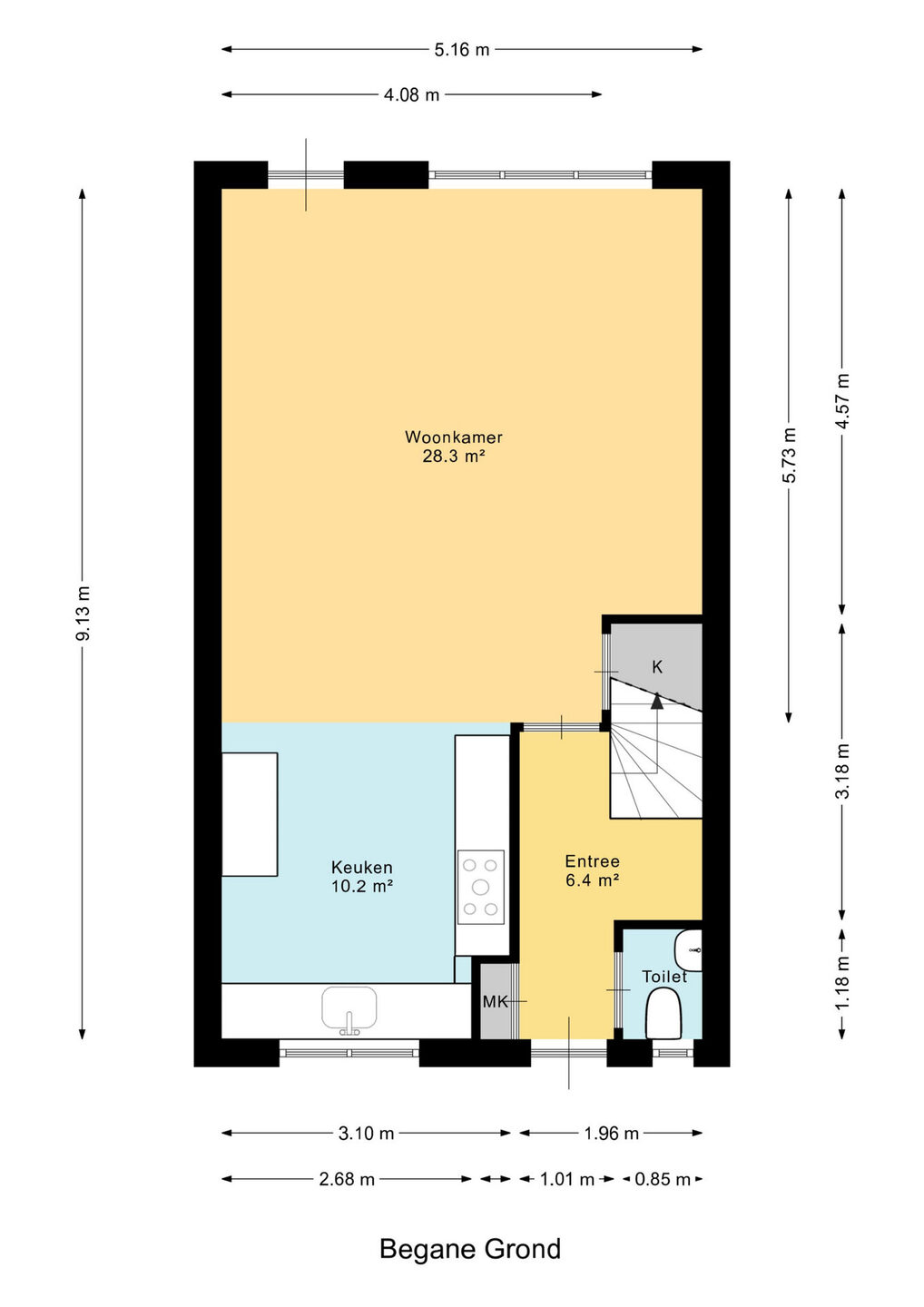
Begane grond:
Voortuin met vrijstaande houten berging. Binnenkomst via de voordeur in de ruime entree met de meterkast, het separate toilet met fonteintje (2019), trap naar de eerste verdieping en toegang tot het leefgedeelte.

De tuingerichte woonkamer heeft een gezellige zithoek. De grote raampartijen zorgen ervoor dat de ruimte van veel daglicht wordt voorzien. In de doorloop naar de keuken aan de voorzijde is ruimte voor een royale eethoek. De moderne open keuken is in 2019 gemoderniseerd en is voorzien diverse inbouwapparatuur zoals; een koel-vriescombinatie, vaatwasser, oven, inductiekookplaat met geïntegreerde afzuigkap en een Quooker. Door de L-opstelling en de extra hoge kasten is er veel bergruimte in de keuken aanwezig.

Het leefgedeelte is volledig voorzien van een mooie PVC-visgraatvloer en is volledig gestuukt

Via de openslaande deur is de diepe achtertuin gelegen op het zuidoosten te bereiken. In de tuin zijn meerdere gezellige zitplekken. Verder is de tuin voorzien van een zonnescherm en een achterom.

1e verdieping:
De overloop geeft toegang tot de drie slaapkamers en de badkamer. Twee slaapkamers, waaronder de hoofslaapkamer, zijn gelegen aan de achterzijde. De derde slaapkamer en de badkamer zijn gelegen aan de voorzijde van de woning.

De moderne en volledig betegelde badkamer (2019) is voorzien van inloopdouche, toilet, wastafelmeubel en handdoekenradiator.

Vliering:
Bovendien heeft deze woning nog een ruime vliering van ca.12 m², met een dakraam. Ideaal voor het opbergen van bijvoorbeeld vakantie spullen. Deze vliering is te bereiken middels een vaste uitklapbare trap via de overloop. Wellicht is er in de toekomst nog de mogelijkheid om hier een extra verdieping te realiseren. Op de vliering bevindt zich de CV-installatie (2018) en het mechanisch ventilatiesysteem (2022).

Bijzonderheden:
De woning is gelegen op eigen grond. De woning is deel voorzien van kunststofkozijnen en deels voorzien van houten kozijnen. De woning is grotendeels voorzien van dubbel glas. De platte daken zijn 10 jaar geleden vernieuwd.

Afmetingen:
Zie de (interactieve) plattegronden voor de afmetingen van de woning.

Bouwjaar : 1981
Inhoud : 373 m³
Gebruiksoppervlakte wonen : 94 m²
Overige inpandige ruimte : 12 m²
Gebouwgebonden buitenruimte : 0 m²
Externe bergruimte : 6cm²

Gebruiksoppervlakte woningen:

De Meetinstructie is gebaseerd op de NEN2580. De Meetinstructie is bedoeld om een meer eenduidige manier van meten toe te passen voor het geven van een indicatie van de gebruiksoppervlakte. De Meetinstructie sluit verschillen in meetuitkomsten niet volledig uit, door bijvoorbeeld interpretatieverschillen, afrondingen of beperkingen bij het uitvoeren van de meting.


Rechtsgeldige koopovereenkomst pas ná ondertekening:

Een mondelinge overeenstemming tussen de particuliere verkoper en de particuliere koper is niet rechtsgeldig. Met andere woorden: er is geen koop. Er is pas sprake van een rechtsgeldige koop als de particuliere verkoper en de particuliere koper de koopovereenkomst hebben ondertekend. Dit vloeit voort uit artikel 7:2 Burgerlijk Wetboek. Een bevestiging van de mondelinge overeenstemming per e-mail of een toegestuurd concept van de koopovereenkomst wordt overigens niet gezien als een ‘ondertekende koopovereenkomst’.


Van der Panne woning- & bedrijfsmakelaardij is de makelaar van de verkoper. Neem uw eigen NVM-makelaar mee, voor goed advies bij de aankoop van uw nieuwe woning!

Lees de volledige omschrijving

Kenmerken

Overdracht

Status Verkocht
Aanvaarding In overleg

Bouwvorm

Soort object Woonhuis
Soort woning Eengezinswoning
Type woning Tussenwoning
Bouwjaar 1981
Bouwvorm Bestaande bouw
Ligging In een woonwijk

Indeling

Woonoppervlakte 94 m²
Perceeloppervlakte 128 m²
Inhoud 373 m³
Aantal woonlagen 3

Energie

Energieklasse B
Energie einddatum zondag 13 mei 2035
Isolatie Dakisolatie, muurisolatie, grotendeels dubbelglas, hr glas
Warmwater Cv ketel
Verwarming Cv ketel

Buitenruimte

Tuin Achtertuin
Achterom Nee
Kwaliteit tuin Fraai aangelegd

Bergruimte

Garage Geen garage
Schuur / Berging Aangebouwd hout

Parkeergelegenheid

Voorzieningen Openbaar parkeren

Dak

Dak Zadeldak

Overig

Permanente bewoning Ja
Onderhoud binnen Goed
Onderhoud buiten Goed
Huidig gebruik Woonruimte
Huidige bestemming Woonruimte

Voorzieningen

Voorzieningen Mechanische ventilatie, buitenzonwering, dakraam

Kadastrale gegevens

Gemeente Zevenhuizen
Sectie C
Perceelnummer 3554
Oppervlakte 128 m²
Eigendomssituatie Volle eigendom
VdPanne-LR-0418
Interesse in deze woning?

Luc helpt u graag

Delen

Vergelijkbare objecten

Land Kanaän 11

Zevenhuizen Vraagprijs: € 695.000,- k.k.
  • 128 m2
  • 149 m2
  • 5 kamers

Koningsoever 3

Zevenhuizen Vraagprijs: € 1.050.000,- k.k.
  • 340 m2
  • 225 m2
  • 6 kamers

Molenmaker 2

Zevenhuizen Vraagprijs: € 575.000,- k.k.
  • 159 m2
  • 128 m2
  • 5 kamers

Wilgenlaan 33

Zevenhuizen Vraagprijs: € 475.000,- k.k.
  • 119 m2
  • 105 m2
  • 6 kamers

Stokroos 18

Zevenhuizen Vraagprijs: € 700.000,- k.k.
  • 181 m2
  • 170 m2
  • 5 kamers
fundawonen-logo
logo
VGC_keurmerk_nw_zwart-grijs
nwwi
logo_NVM_business_staand_CMYK