Gerrit Verrijstkade 50

Rotterdam Vraagprijs: € 1.325.000,- k.k.
Verkocht
  • Woonoppervlakte 177 m2
  • Perceeloppervlakte 440 m2
  • Aantal slaapkamers 3
  • Bouwjaar 2019

Omschrijving

Luxe wonen in een wit gestuukt huis in de populaire Waterwijk van Nesselande. Aan de Gerrit Verrijstkade ligt deze moderne, instapklare woning met een fijne tuin met een prachtig uitzicht over het water. Zodra je voorbij de voordeur bent heb je een prachtig uitzicht, veel privacy en water waar er zomers wordt gezwommen - ge-supt en elektrisch wordt gevaren met de sloep.

De woning combineert een strakke architectuur met een warme, huiselijke sfeer en is ideaal voor wie comfortabel en eigentijds wil wonen op een rustige, maar goed bereikbare plek. En super goed geisoleerd! Het betreft een goed geisoleerd huis met triple glas en maar liefst 28 zonnepanelen. De woning biedt diverse uitbreidingsmogelijkheden.

De ligging is fantastisch: aan een autoluwe straat met parkeergelegenheid voor de deur (twee op eigen terrein), op korte afstand van de Zevenhuizerplas, het strand van Nesselande, winkels en metrostation. Sloep voor de deur zo naar de Zevenhuizerplas!

Begane grond:
Bij binnenkomst begint het al goed. Want hoe gaaf is de imposante hal met hoge plafond en de vide! Vanaf hier is via dubbele stalen deuren de woonkamer te bereiken. Dankzij de grote raampartijen is hier volop daglicht en heb je een prachtig zicht op de tuin. De entree is af te sluiten met elektrische lamellen.

De open keuken aan de voorzijde is strak vormgegeven en voorzien van diverse inbouwapparatuur, waaronder een oven, combimagnetron, inductiekookplaat met afzuigkap, vaatwasser, wijnkoelkast en koel-/vriescombinatie. Alle apparatuur is van Siemens. Erg praktisch is de bijkeuken.

De zithoek is tuingericht, met dubbele deuren naar de serre/overkapping met glazen schuifdeuren en heaters waar je heerlijk kunt zitten.

De begane grond is afgewerkt met een moderne gietvloer (beton ciré, gehele woning), glad gestuukte wanden (en plafond) en stoere kleuren die zorgen voor een eigentijdse uitstraling. Een echte eyecatcher is de gashaard.

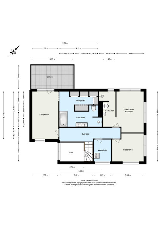
Eerste verdieping:
De overloop geeft toegang tot drie slaapkamers en de wasruimte. Twee slaapkamers hebben hun eigen badkamer. De hoofdslaapkamer ligt aan de achterzijde, beschikt over een kastenkamer, een terras en kijkt uit over het water – een heerlijke plek om wakker te worden. De andere twee slaapkamers zijn ideaal als kinder-, werk- of logeerkamer. De badkamers zijn modern en compleet ingericht met enerzijds een ligbad, inloopdouche, inloopkast, toilet en badkamermeubel en anderzijds een inloopdouche, toilet en wastafel.

Buitenruimte
De achtertuin is keurig aangelegd en ligt aan het water, wat zorgt voor een vrij en ontspannen gevoel. Je kunt hier op de diverse zitjes zowel in de zon als in de schaduw zitten, en de vlonder maakt het mogelijk om direct aan het water te genieten van een drankje of te vissen. Achterin de tuin bevindt zich een aluminium berging met voldoende ruimte voor fietsen en tuinspullen en er is een grote overkapping aanwezig.

Omgeving
Rotterdam-Nesselande is een moderne en levendige wijk, prachtig gelegen aan de Zevenhuizerplas. Deze wijk combineert stedelijk wonen met een ontspannen strandgevoel. Met een brede boulevard, het stadsstrand en diverse recreatiemogelijkheden is Nesselande een geliefde plek voor bewoners en bezoekers. Ook de aanwezigheid van vaarwater is een pré!

Nesselande beschikt over vier basisscholen met verschillende onderwijsvormen: een christelijke school, een openbare tweetalige basisschool, een daltonbasisschool en een vrijeschool. Voor middelbaar onderwijs zijn er in de nabije omgeving goede opties, zoals het Comenius College in Nieuwerkerk en het Emmaus College in Rotterdam.

Op culinair gebied zijn Guay, Brasserie Lookies en L’Italiano populaire hotspots. Voor de lekkerste koffie is er Mamamo! Een fijne plek waar ouders kunnen ontspannen terwijl de kinderen spelen.

De wijk is uitstekend bereikbaar via het metrostation Nesselande, dat snelle verbindingen biedt naar Rotterdam centrum en omliggende gebieden. Daarnaast kent Nesselande diverse sportclubs, waardoor er volop mogelijkheden zijn om actief te zijn.

Kortom, Nesselande biedt voor ieder wat wils: een moderne, groene en kindvriendelijke woonomgeving met goede voorzieningen, leuke eetgelegenheden en volop recreatie.

Gebruiksoppervlakte woningen:
De Meetinstructie is gebaseerd op de NEN2580. De Meetinstructie is bedoeld om een meer eenduidige manier van meten toe te passen voor het geven van een indicatie van de gebruiksoppervlakte. De Meetinstructie sluit verschillen in meetuitkomsten niet volledig uit, door bijvoorbeeld interpretatieverschillen, afrondingen of beperkingen bij het uitvoeren van de meting.

Rechtsgeldige koopovereenkomst pas ná ondertekening:
Een mondelinge overeenstemming tussen de particuliere verkoper en de particuliere koper is niet rechtsgeldig. Met andere woorden: er is geen koop. Er is pas sprake van een rechtsgeldige koop als de particuliere verkoper en de particuliere koper de koopovereenkomst hebben ondertekend. Dit vloeit voort uit artikel 7:2 Burgerlijk Wetboek. Een bevestiging van de mondelinge overeenstemming per e-mail of een toegestuurd concept van de koopovereenkomst wordt overigens niet gezien als een ‘ondertekende koopovereenkomst’.

Van der Panne woning- & bedrijfsmakelaardij is de makelaar van de verkoper. Neem uw eigen NVM-makelaar mee, voor goed advies bij de aankoop van uw nieuwe woning!

Lees de volledige omschrijving

Kenmerken

Overdracht

Status Verkocht
Aanvaarding In overleg

Bouwvorm

Soort object Woonhuis
Soort woning Villa
Type woning Vrijstaande woning
Bouwjaar 2019
Bouwvorm Bestaande bouw
Ligging Aan water

Indeling

Woonoppervlakte 177 m²
Perceeloppervlakte 440 m²
Inhoud 470 m³
Aantal woonlagen 2

Energie

Energieklasse A++
Energie einddatum zondag 18 november 2035
Isolatie Volledig geïsoleerd
Warmwater Elektrische boiler eigendom
Verwarming Hete lucht verwarming, gashaard

Buitenruimte

Tuin Tuin rondom
Hoofdtuin Tuin rondom
Achterom Ja
Kwaliteit tuin Verzorgd

Bergruimte

Garage Geen garage
Schuur / Berging Vrijstaand hout

Parkeergelegenheid

Voorzieningen Op eigen terrein

Dak

Dak Plat dak

Overig

Permanente bewoning Ja
Onderhoud binnen Uitstekend
Onderhoud buiten Uitstekend
Huidig gebruik Woonruimte
Huidige bestemming Woonruimte

Voorzieningen

Voorzieningen Tv kabel, glasvezel kabel, zonnepanelen

Kadastrale gegevens

Gemeente Rotterdam
Sectie BC
Perceelnummer 5044
Oppervlakte 440 m²
Eigendomssituatie Volle eigendom
VdPanne-LR-0418
Interesse in deze woning?

Luc helpt u graag

Delen

Vergelijkbare objecten

Rhodoshof 14

Rotterdam Vraagprijs: € 625.000,- k.k.
  • 127 m2
  • 129 m2
  • 6 kamers

Boorn 6

Rotterdam Vraagprijs: € 250.000,- k.k.
  • 66 m2
  • 2 kamers
Homepage-dorpen-Nieuwerkerk-aan-den-IJssel-1
Meer weten over Rotterdam
fundawonen-logo
logo
VGC_keurmerk_nw_zwart-grijs
nwwi
logo_NVM_business_staand_CMYK