Lahndal 17

Capelle aan den IJssel Vraagprijs: € 750.000,- k.k.
Verkocht
  • Woonoppervlakte 200 m2
  • Perceeloppervlakte 261 m2
  • Aantal slaapkamers 3
  • Bouwjaar 1978

Omschrijving

Wat een unieke semi-bungalow van maar liefst 200 m2! Gelegen op een prachtige locatie aan de rand van de woonwijk met uitzicht op het water en het Hitlandbos. Deze onderhoudsarme woning met kunststof kozijnen en 20 zonnepanelen beschikt op de begane grond over een grote living met open keuken en een slaapkamer met badkamer. Op de verdieping zijn twee slaapkamers en een badkamer te vinden. Verder is de woning voorzien van een garage en een carport.

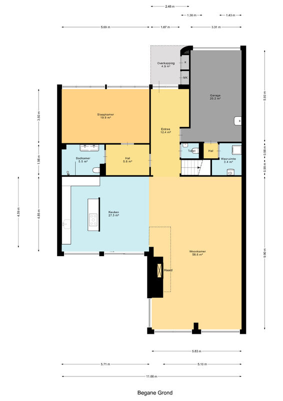
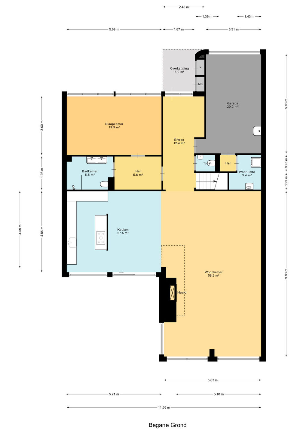
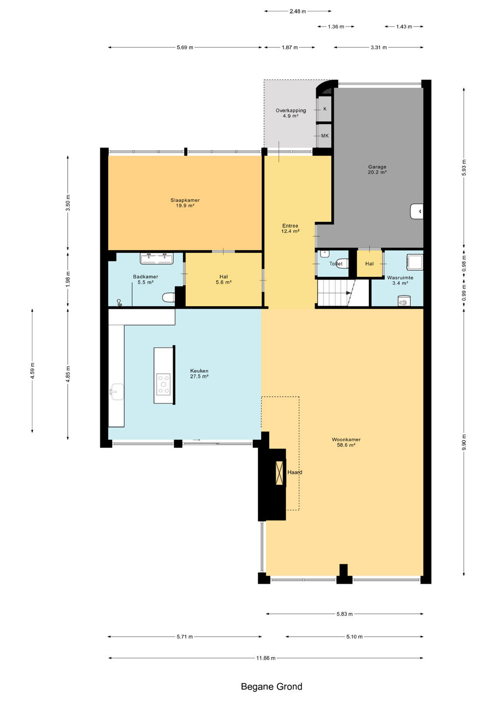
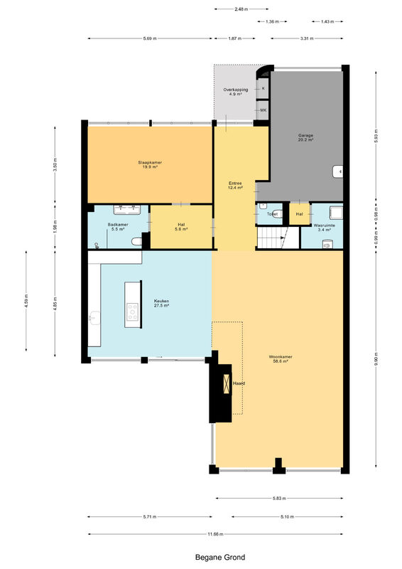
Begane grond:
Parkeergelegenheid voor twee auto's op eigen terrein met toegang tot de garage middels de elektrische deur.

Entree, hal met hangend toilet met fonteintje. Vanuit de hal heb je toegang tot de verdieping, de leefruimte en de slaapkamer op de begane grond.

Aan de achterzijde ligt de royale woonkamer met grote raampartijen met uitzicht op het natuurgebied Hitland. De woonkamer is voorzien van een sfeervolle haard. De luxe, open keuken is tevens gelegen aan de achterzijde en is voorzien van een voorstel, een gaskookplaat, een afzuigkap, een combi-oven/magnetro, een koelkast en een vriezer. Zowel vanuit de woonkamer als vanuit de keuken bereik je de achtertuin middels een schuifpui. De woonkamer is luxe afgewerkt met vloerverwarming, een verlaagd plafond met spotjes, gestucte wanden en een gestuct plafond.

Aan de voorzijde van het huis ligt een ruime masterbedroom, waarbij de ramen voorzien zijn van rolluiken. Tevens is hier een moderne badkamer aanwezig, voorzien van inloopdouche, wastafelmeubel, hangend toilet en designradiator.

De tuin is gelegen aan het water en geeft vrij uitzicht over het natuurgebied Hitland.

1e verdieping:
Overloop met ruimte tot een apart toilet, een bergkast en twee slaapkamers. De ruime slaapkamer aan de achterzijde is voorzien van airconditioning en een badkamer en-suite. De badkamer is modern afgewerkt met een ligbad, een designradiator en een inloopdouche, een wastafelmeubel en een hangend toilet. Bovendien is er een ruime bergvliering.

Bijzonderheden:
- Gelegen op eigen grond
- Tuin gelegen aan het water
- Voorzien van kunststof kozijnen
- 20 zonnepanelen
- Twee badkamers
- Vrij uitzicht over natuurgebied Hitland
- Ruime living met open keuken
- Er wordt een niet-zelfbewoningsclausule toegepast

Afmetingen:
Zie de (interactieve) plattegronden voor de afmetingen van de woning.

Gebruiksoppervlakte woningen:
De Meetinstructie is gebaseerd op de NEN2580. De Meetinstructie is bedoeld om een meer eenduidige manier van meten toe te passen voor het geven van een indicatie van de gebruiksoppervlakte. De Meetinstructie sluit verschillen in meetuitkomsten niet volledig uit, door bijvoorbeeld interpretatieverschillen, afrondingen of beperkingen bij het uitvoeren van de meting.

Rechtsgeldige koopovereenkomst pas ná ondertekening:
Een mondelinge overeenstemming tussen de particuliere verkoper en de particuliere koper is niet rechtsgeldig. Met andere woorden: er is geen koop. Er is pas sprake van een rechtsgeldige koop als de particuliere verkoper en de particuliere koper de koopovereenkomst hebben ondertekend. Dit vloeit voort uit artikel 7:2 Burgerlijk Wetboek. Een bevestiging van de mondelinge overeenstemming per e-mail of een toegestuurd concept van de koopovereenkomst wordt overigens niet gezien als een ‘ondertekende koopovereenkomst’.

Van der Panne woning- & bedrijfsmakelaardij is de makelaar van de verkoper. Neem uw eigen NVM-makelaar mee, voor goed advies bij de aankoop van uw nieuwe woning!

Lees de volledige omschrijving

Kenmerken

Overdracht

Status Verkocht
Aanvaarding In overleg

Bouwvorm

Soort object Woonhuis
Soort woning Bungalow
Type woning Geschakelde woning
Bouwjaar 1978
Bouwvorm Bestaande bouw
Ligging Aan water, vrij uitzicht, in bosrijke omgeving

Indeling

Woonoppervlakte 200 m²
Perceeloppervlakte 261 m²
Inhoud 840 m³
Aantal woonlagen 2

Energie

Energieklasse B
Energie einddatum zondag 25 november 2035
Isolatie Volledig geïsoleerd, hr glas
Warmwater Cv ketel
Verwarming Cv ketel, open haard

Buitenruimte

Tuin Achtertuin, voortuin
Hoofdtuin Achtertuin
Oppervlakte hoofdtuin 60 m²
Ligging hoofdtuin Noord-oost
Achterom Nee
Kwaliteit tuin Verzorgd

Bergruimte

Garage Aangebouwd steen
Voorzieningen Elektra, water

Parkeergelegenheid

Voorzieningen Op eigen terrein

Dak

Dak Plat dak

Overig

Permanente bewoning Ja
Onderhoud binnen Goed tot uitstekend
Onderhoud buiten Goed tot uitstekend
Huidig gebruik Woonruimte
Huidige bestemming Woonruimte

Voorzieningen

Voorzieningen Rolluiken, tv kabel, rookkanaal, schuifpui, zonnepanelen, natuurlijke ventilatie

Kadastrale gegevens

Gemeente Capelle aan den IJssel
Sectie C
Perceelnummer 2914
Oppervlakte 261 m²
Eigendomssituatie Volle eigendom
VdPanne-LR-0418
Interesse in deze woning?

Luc helpt u graag

Delen

Vergelijkbare objecten

Alexanderstraat 15

Capelle aan den IJssel Vraagprijs: € 385.000,- k.k.
  • 117 m2
  • 82 m2
  • 4 kamers

Ringvaartpark 63

Capelle aan den IJssel Vraagprijs: € 1.195.000,- k.k.
  • 523 m2
  • 198 m2
  • 5 kamers
fundawonen-logo
logo
VGC_keurmerk_nw_zwart-grijs
nwwi
logo_NVM_business_staand_CMYK