Catsveld 45

Gouda Vraagprijs: € 335.000,- k.k.
Verkocht
  • Woonoppervlakte 71 m2
  • Aantal slaapkamers 1
  • Bouwjaar 1973

Omschrijving

Geheel gerenoveerde maisonnette (2019) met prachtig vrij uitzicht! Deze speels ingedeelde maisonnette is gelegen op de tweede en derde verdieping van dit kleinschalige appartementencomplex en beschikt over een gebruiksoppervlakte van 71 m². Een sfeervol appartement in een rustige en groene omgeving, dat wil toch iedereen?

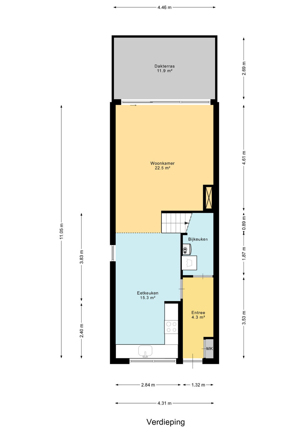
De woning beschikt over een moderne open keuken, een ruime living met een open haard (hout gestookt) wat zorgt voor veel sfeer in huis! De schuifpui biedt toegang tot het riante dakterras welke is gelegen op het zuidoosten en vrij uitzicht heeft over groen. Op de verdieping bevinden zich een ruime slaapkamer en luxe uitgevoerde badkamer.

De ligging is perfect, middenin een oase van groen en rust in gewilde wijk ‘Catsveld’. Winkelcentrum Bloemendaal is met slechts een paar wandelminuten om de hoek en beschikt over een divers winkelaanbod. Daarnaast is de wijk centraal gelegen ten opzichte van het gezellige en karakteristieke centrum van Gouda, NS-station, sport-, recreatie- en andere voorzieningen en verschillende uitvalswegen (A12/A20) met centrale ligging tussen Rotterdam, Utrecht en Den Haag.

Begane grond:
Afgesloten entree met bellentableau, brievenbussen en het trappenhuis.

2e verdieping:
Entree, hal met de meterkast, bergruimte met de CV-installatie en de wasmachine aansluiting en de trap naar de 3e verdieping.

Vanuit de hal betreedt u de ruime living welke is voorzien van een open haard (hout gestookt) wat zorgt voor extra veel sfeer in huis tijdens de koude dagen! De moderne luxe open keuken (2019) en het eetgedeelte bevinden zich aan de voorzijde van het appartement. De keuken is voorzien van diverse inbouwapparatuur zoals een inductiekookplaat, een afzuigkap, een oven en een vaatwasser.

De schuifpui in de woonkamer biedt toegang tot het ruime dakterras, welke is gesitueerd op het zuidoosten. Echt een heerlijke plek met vrij uitzicht over groen!

3e verdieping:
Overloop met toegang tot een ruime slaapkamer en een moderne badkamer. De badkamer is luxe uitgevoerd en is voorzien van een inloopdouche, een toilet (zwevend) en een wastafelmeubel.

Bijzonderheden:
De woning is in 2019 door de huidige eigenaar geheel gerenoveerd (met uitzondering van de beglazing). De gehele woning is voorzien van een laminaat vloer, gestucte wanden en een gesausd plafond. Er is een actieve VVE waar een maandelijkse bijdrage aan is verschuldigd van € 129,62 per maand voor 2025.

Gebruiksoppervlakte woningen:
De Meetinstructie is gebaseerd op de NEN2580. De Meetinstructie is bedoeld om een meer eenduidige manier van meten toe te passen voor het geven van een indicatie van de gebruiksoppervlakte. De Meetinstructie sluit verschillen in meetuitkomsten niet volledig uit, door bijvoorbeeld interpretatieverschillen, afrondingen of beperkingen bij het uitvoeren van de meting.

Rechtsgeldige koopovereenkomst pas ná ondertekening:
Een mondelinge overeenstemming tussen de particuliere verkoper en de particuliere koper is niet rechtsgeldig. Met andere woorden: er is geen koop. Er is pas sprake van een rechtsgeldige koop als de particuliere verkoper en de particuliere koper de koopovereenkomst hebben ondertekend. Dit vloeit voort uit artikel 7:2 Burgerlijk Wetboek. Een bevestiging van de mondelinge overeenstemming per e-mail of een toegestuurd concept van de koopovereenkomst wordt overigens niet gezien als een ‘ondertekende koopovereenkomst’.

Van der Panne woning- & bedrijfsmakelaardij is de makelaar van de verkoper. Neem uw eigen NVM-makelaar mee, voor goed advies bij de aankoop van uw nieuwe woning!

Lees de volledige omschrijving

Kenmerken

Overdracht

Status Verkocht
Aanvaarding In overleg

Bouwvorm

Soort object Appartement
Bouwjaar 1973
Bouwvorm Bestaande bouw
Ligging Aan een park, aan een rustige weg, in een woonwijk

Indeling

Woonoppervlakte 71 m²
Inhoud 293 m³
Aantal woonlagen 2

Energie

Energieklasse C
Energie einddatum maandag 30 augustus 2027
Warmwater Cv ketel
Verwarming Cv ketel

Buitenruimte

Tuin Geen tuin
Achterom Nee

Bergruimte

Garage Geen garage

Parkeergelegenheid

Voorzieningen Openbaar parkeren

Dak

Dak Zadeldak

Overig

Permanente bewoning Ja
Onderhoud binnen Goed tot uitstekend
Onderhoud buiten Goed tot uitstekend
Huidig gebruik Woonruimte
Huidige bestemming Woonruimte

Voorzieningen

Voorzieningen Rookkanaal, schuifpui, natuurlijke ventilatie

Kadastrale gegevens

Gemeente Gouda
Sectie M
Perceelnummer 4800
Eigendomssituatie Volle eigendom
VdPanne-LR-0418
Interesse in deze woning?

Luc helpt u graag

Delen

Vergelijkbare objecten

fundawonen-logo
logo
VGC_keurmerk_nw_zwart-grijs
nwwi
logo_NVM_business_staand_CMYK