De Griend 6

Moordrecht Vraagprijs: € 463.000,- k.k.
Verkocht
  • Woonoppervlakte 131 m2
  • Perceeloppervlakte 144 m2
  • Aantal slaapkamers 5
  • Bouwjaar 1976

Omschrijving

Wonen met ruimte, licht en een zonnige achtertuin in een gezinsvriendelijke wijk? Deze leuke hoekwoning met garage en zonnige, beschutte tuin in Moordrecht staat nu te koop!

Aan De Griend 6 vindt u deze ruime woning met maar liefst 131 m² woonoppervlak, een moderne keuken, vijf slaapkamers en een royale woonkamer. De ideale gezinswoning op een geweldige plek!

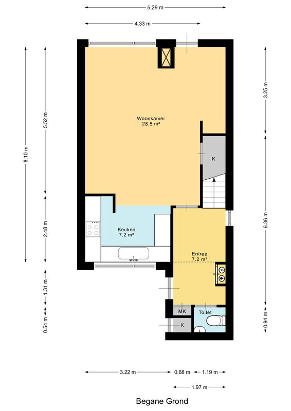
Begane grond:
Via de voortuin komt u bij de entree, voorzien van een zijraam dat extra daglicht binnenlaat. In de hal bevinden zich de meterkast, het toilet en de trapopgang. De woonkamer is ruim opgezet, beschikt over een gezellige open haard, een praktische trapkast en een deur naar de zonnige achtertuin. De tegelvloer is onderhoudsvriendelijk en tijdloos.

Aan de voorzijde bevindt zich de moderne keuken(2017), uitgevoerd in een moderne stijl en voorzien van diverse inbouwapparatuur zoals een koel-/vriescombinatie, oven, inductiekookplaat en afzuigkap.

Eerste verdieping:
Op de eerste verdieping bevinden zich drie slaapkamers: twee aan de achterzijde en één aan de voorzijde. De ruime badkamer is uitgevoerd in de originele indeling en voorzien van een wastafel, douche, ligbad en toilet.

Tweede verdieping:
De tweede verdieping biedt verrassend veel ruimte. Aan de achterzijde bevindt zich een royale slaapkamer met een hoog, schuin plafond, sfeervolle balken en extra opbergruimte op de open vliering. Een plek met karakter en charme. Aan de voorzijde ligt een extra slaapkamer met wastafel; ook deze kamer is sfeervol door het hoge, schuine plafond met balken. Daarnaast is er een praktische bergruimte (wasruimte) met de cv-ketel en de aansluiting voor de wasmachine. Deze ruimte biedt bovendien de mogelijkheid om een tweede badkamer te realiseren; de afvoer en de watertoevoer zijn al keurig voorbereid, vergelijkbaar met de badkamer op de eerste verdieping.

Buiten:
De woning beschikt over een zonnige, volledig ommuurde achtertuin die veel privacy biedt en toegang geeft tot de garage (circa 15 m²). Via de achterom is de tuin gemakkelijk bereikbaar. Voor de garage is er een eigen parkeerplaats aanwezig.
De buitenzijde van de woning is altijd zorgvuldig onderhouden en recent nog geschilderd, waardoor de woning een verzorgde en representatieve uitstraling heeft.

Pluspunten van deze woning:
* Hoekwoning met veel lichtinval
* Moderne keuken (2017)
* Vijf slaapkamers en extra bergruimte
* Mogelijkheid voor het creëren van een tweede badkamer
* Garage met eigen oprit/parkeerplaats
* Zonnige achtertuin met achterom
* Onlangs uitgevoerd buitenschilderwerk
* gelegen in een kindervriendelijke woonwijk nabij basisscholen en bibliotheek

Moordrecht
Moordrecht is een gezellig dorp in de gemeente Zuidplas, gelegen aan de oevers van de Hollandsche IJssel. Dankzij de groene omgeving en de gastvrije sfeer is het een aantrekkelijke plek voor zowel bewoners als bezoekers.

Een bijzondere aanwinst is het recent aangelegde Tiny Forest in park Moerhout, een rustgevende groene plek waar buurtbewoners kunnen genieten van de natuur. Daarnaast beschikt Moordrecht over diverse culinaire hotspots die zeker een bezoek waard zijn, zoals Demi’s Tapas, Restaurant Thai Noon en Restaurant Meer Genieten.

Moordrecht biedt voor ieder wat wils in een sfeervolle en ontspannen omgeving.

Op het gebied van onderwijs telt het dorp drie basisscholen: een openbare school, een rooms-katholieke school en een protestants-christelijke school. Alle drie zijn centraal gelegen, waardoor ze goed bereikbaar zijn voor gezinnen.

Gebruiksoppervlakte woningen:
De Meetinstructie is gebaseerd op de NEN2580. De Meetinstructie is bedoeld om een meer eenduidige manier van meten toe te passen voor het geven van een indicatie van de gebruiksoppervlakte. De Meetinstructie sluit verschillen in meetuitkomsten niet volledig uit, door bijvoorbeeld interpretatieverschillen, afrondingen of beperkingen bij het uitvoeren van de meting.

Rechtsgeldige koopovereenkomst pas ná ondertekening:
Een mondelinge overeenstemming tussen de particuliere verkoper en de particuliere koper is niet rechtsgeldig. Met andere woorden: er is geen koop. Er is pas sprake van een rechtsgeldige koop als de particuliere verkoper en de particuliere koper de koopovereenkomst hebben ondertekend. Dit vloeit voort uit artikel 7:2 Burgerlijk Wetboek. Een bevestiging van de mondelinge overeenstemming per e-mail of een toegestuurd concept van de koopovereenkomst wordt overigens niet gezien als een ‘ondertekende koopovereenkomst’.

Van der Panne woning- & bedrijfsmakelaardij is de makelaar van de verkoper. Neem uw eigen NVM-makelaar mee, voor goed advies bij de aankoop van uw nieuwe woning!

Lees de volledige omschrijving

Kenmerken

Overdracht

Status Verkocht
Aanvaarding In overleg

Bouwvorm

Soort object Woonhuis
Soort woning Eengezinswoning
Type woning Hoekwoning
Bouwjaar 1976
Bouwvorm Bestaande bouw
Ligging In een woonwijk

Indeling

Woonoppervlakte 131 m²
Perceeloppervlakte 144 m²
Inhoud 465 m³
Aantal woonlagen 3

Energie

Energieklasse C
Energie einddatum maandag 16 juli 2035
Isolatie Dakisolatie, muurisolatie, dubbel glas
Warmwater Cv ketel, elektrische boiler eigendom
Verwarming Cv ketel

Buitenruimte

Tuin Achtertuin, voortuin
Hoofdtuin Achtertuin
Oppervlakte hoofdtuin 70 m²
Ligging hoofdtuin Zuid-west
Achterom Ja
Kwaliteit tuin Normaal

Bergruimte

Garage Vrijstaand steen
Voorzieningen Elektra

Parkeergelegenheid

Voorzieningen Openbaar parkeren, op eigen terrein

Overig

Permanente bewoning Ja
Onderhoud binnen Goed
Onderhoud buiten Goed
Huidig gebruik Woonruimte
Huidige bestemming Woonruimte

Voorzieningen

Voorzieningen Mechanische ventilatie, buitenzonwering

Kadastrale gegevens

Gemeente Moordrecht
Sectie C
Perceelnummer 3345
Oppervlakte 144 m²
Eigendomssituatie Volle eigendom
VanderPanne-HR-6889
Interesse in deze woning?

Kirsten helpt u graag

Delen

Vergelijkbare objecten

Uiterwaard 105

Moordrecht Vraagprijs: € 1.595.000,- k.k.
  • 842 m2
  • 300 m2
  • 5 kamers

Ganzeneiland 1

Moordrecht Vraagprijs: € 565.000,- k.k.
  • 262 m2
  • 128 m2
  • 5 kamers
fundawonen-logo
logo
VGC_keurmerk_nw_zwart-grijs
nwwi
logo_NVM_business_staand_CMYK