Draadbaan 21 A

Leiderdorp Vraagprijs: € 365.000,- k.k.
  • Woonoppervlakte 153 m2
  • Perceeloppervlakte 98 m2
  • Aantal slaapkamers 1
  • Bouwjaar 1998

Omschrijving

Unieke kans! Op bedrijventerrein De Baanderij ligt dit 2-kamer appartement van 75 m2 met een multifunctionele bedrijfsruimte van 78 m2 op de begane grond. Uiteraard is de woning ook als kantoorruimte te gebruiken.

Indeling:
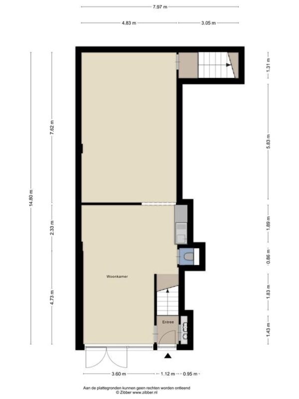
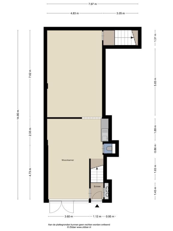
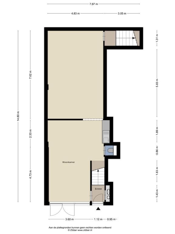
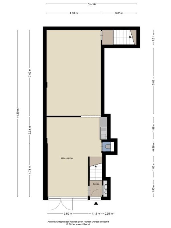
Entree via een hal of via dubbele deuren naar de bedrijfsruimte; voorzien van een tegelvloer, een systeemplafond, een keukenblok. In de hal bevindt zich de meterkast en de trap naar de verdieping.

1e verdieping:
Entree via de hal aan de voorzijde van het pand via een trap. Overloop met toegang tot de woonkamer aan de voorzijde (met airconditioning), de slaapkamer (met airconditioning) en de keuken. Deze keuken is voorzien van een oven, een magnetron, een keramische kookplaat en een afzuigkap.

Achter de keuken bevindt zich de badkamer, voorzien van een groot hoekbad, een douche, een meubel met een dubbele wastafel en het toilet.

Parkeren:
Er zijn twee eigen parkeerplaatsen gelegen aan de voorzijde van het object.

Bijzonderheden:
De voorgevel bestaat aan de linkerzijde uit dubbel glas en een houten kozijn, deze is tevens te wijzigen in een overheaddeur. Er is een CV-installatie op de verdieping aanwezig. Er is een houten verdiepingsvloer toegepast. De verdieping is voorzien van kunststof kozijnen met HR+ glas. Er is een projectnotaris van toepassing.

Afmetingen:
Zie de (interactieve) plattegronden voor de afmetingen van de woning.

Bouwjaar : 1998
Inhoud : 505 m³
Gebruiksoppervlakte wonen : 153 m²
Overige inpandige ruimte : 0 m²
Gebouwgebonden buitenruimte : 0 m²
Externe bergruimte : 0 m²

Gebruiksoppervlakte woningen:
De Meetinstructie is gebaseerd op de NEN2580. De Meetinstructie is bedoeld om een meer eenduidige manier van meten toe te passen voor het geven van een indicatie van de gebruiksoppervlakte. De Meetinstructie sluit verschillen in meetuitkomsten niet volledig uit, door bijvoorbeeld interpretatieverschillen, afrondingen of beperkingen bij het uitvoeren van de meting.

Deze informatie is door ons met de nodige zorgvuldigheid samengesteld. Onzerzijds wordt echter geen enkele aansprakelijkheid aanvaard voor enige onvolledigheid, onjuistheid of anderszins, dan wel de gevolgen daarvan. Alle opgegeven maten en oppervlakten zijn indicatief

Rechtsgeldige koopovereenkomst pas ná ondertekening:
Een mondelinge overeenstemming tussen de particuliere verkoper en de particuliere koper is niet rechtsgeldig. Met andere woorden: er is geen koop. Er is pas sprake van een rechtsgeldige koop als de particuliere verkoper en de particuliere koper de koopovereenkomst hebben ondertekend. Dit vloeit voort uit artikel 7:2 Burgerlijk Wetboek. Een bevestiging van de mondelinge overeenstemming per e-mail of een toegestuurd concept van de koopovereenkomst wordt overigens niet gezien als een ‘ondertekende koopovereenkomst’.

Van der Panne woning- & bedrijfsmakelaardij is de makelaar van de verkoper. Neem uw eigen NVM-makelaar mee, voor goed advies bij de aankoop van uw nieuwe woning!

Lees de volledige omschrijving

Kenmerken

Overdracht

Status Beschikbaar
Aanvaarding In overleg

Bouwvorm

Soort object Woonhuis
Soort woning Eengezinswoning
Type woning Tussenwoning
Bouwjaar 1998
Bouwvorm Bestaande bouw

Indeling

Woonoppervlakte 153 m²
Perceeloppervlakte 98 m²
Inhoud 505 m³
Aantal woonlagen 2

Energie

Energieklasse A
Energie einddatum maandag 5 februari 2029
Isolatie Dubbel glas

Buitenruimte

Tuin Geen tuin
Achterom Nee

Bergruimte

Garage Inpanding

Parkeergelegenheid

Voorzieningen Op eigen terrein

Dak

Dak Plat dak

Overig

Permanente bewoning Ja
Onderhoud binnen Goed
Onderhoud buiten Goed
Huidig gebruik Woonruimte
Huidige bestemming Woonruimte

Kadastrale gegevens

Gemeente Leiderdorp
Sectie A
Perceelnummer 11975
Oppervlakte 98 m²
Eigendomssituatie Volle eigendom
VanderPanne-HR-6621
Interesse in deze woning?

Esmille helpt u graag

Delen

fundawonen-logo
logo
VGC_keurmerk_nw_zwart-grijs
nwwi
logo_NVM_business_staand_CMYK