Egelnest 1

Moordrecht Vraagprijs: € 595.000,- k.k.
Verkocht
  • Woonoppervlakte 123 m2
  • Perceeloppervlakte 134 m2
  • Aantal slaapkamers 4
  • Bouwjaar 2021

Omschrijving

Op zoek naar een modern en duurzaam (gasloos) huis waar je zó in kunt trekken?

Aan de Egelnest 1 in Moordrecht bieden wij deze instapklare hoekwoning (2021) in een jonge, kindvriendelijke nieuwbouwwijk. Met een lichte woonkamer, een sfeervolle haard, een moderne open keuken en een zonnige voor- en achtertuin is dit een plek waar je je direct thuis zult voelen. De woning heeft een totaal woonoppervlakte van 123 m², is hoogwaardig afgewerkt en dankzij de duurzame voorzieningen woon je hier niet alleen comfortabel, maar ook extreem energiezuinig.

Wat dit huis bijzonder maakt
* Instapklaar, duurzaam én volledig gasloos
* Bodemwarmtepomp met 200 liter boilercapaciteit en 12 zonnepanelen
* Vloerverwarming-en koeling op de begane grond en 1e verdieping
* Lichte woonkamer met sfeervolle haard, zithoek met opbergruimte en openslaande deuren naar de tuin
* Moderne keuken met keramisch keukenblad, BORA-inductiekookplaat, Quooker en koof met ingebouwde Philips Hue spotjes
* 2 ruime slaapkamers, waarvan 1 met inbouwkast (eenvoudig uit te breiden naar 3)
* Luxe badkamer met ligbad, inloopdouche, wandcloset, wastafelmeubel met twee wastafels en luxe shutters
* In heel de woning ligt een PVC-Hongaarse punt vloer
* Zonnige tuin met ruime houten berging
* Parkeergelegenheid voor de woning
* Gelegen in kindvriendelijke nieuwbouwwijk “De Brinkhorst” met veel groen, leuke wandelroutes en speeltuinen

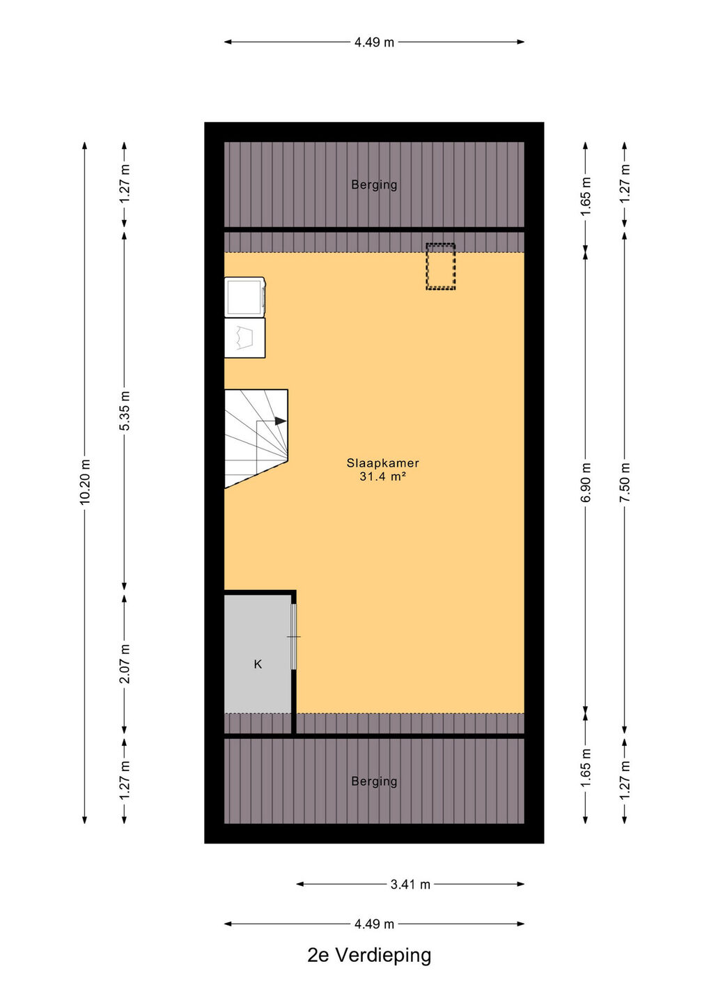
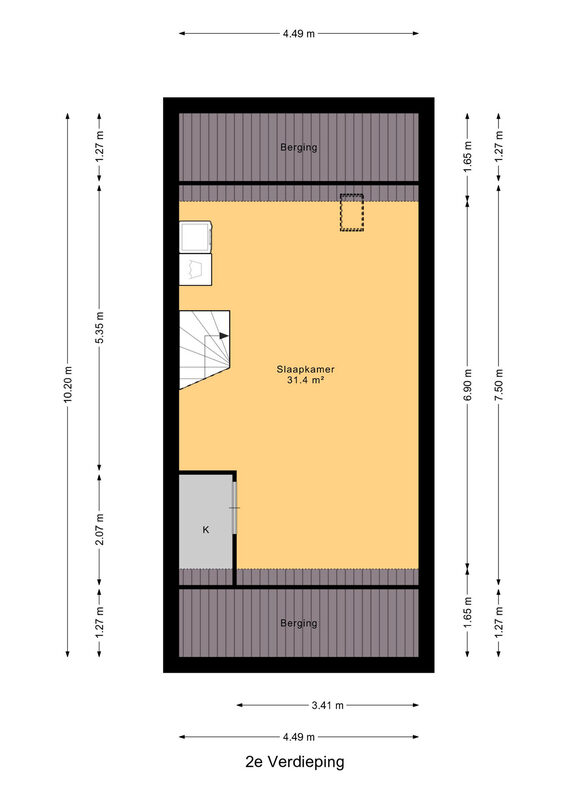
Let op: doordat het dakraam op de 2e verdieping te klein is mag deze verdieping officieel niet meegenomen als gebruiksoppervlakte wonen. Formeel heeft het huis een gebruiksoppervlakte van 92 m2 en 31 m2 "overige inpandige ruimte".

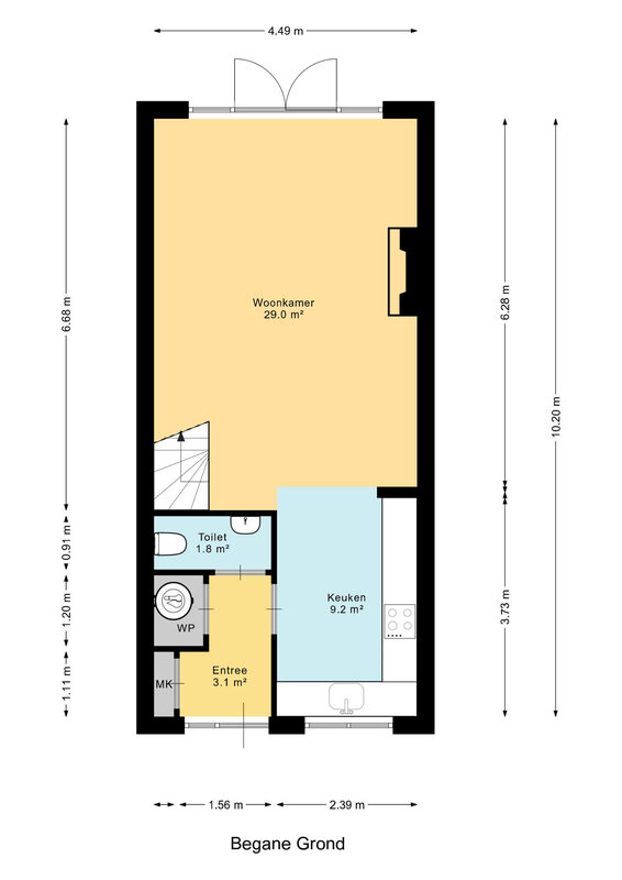
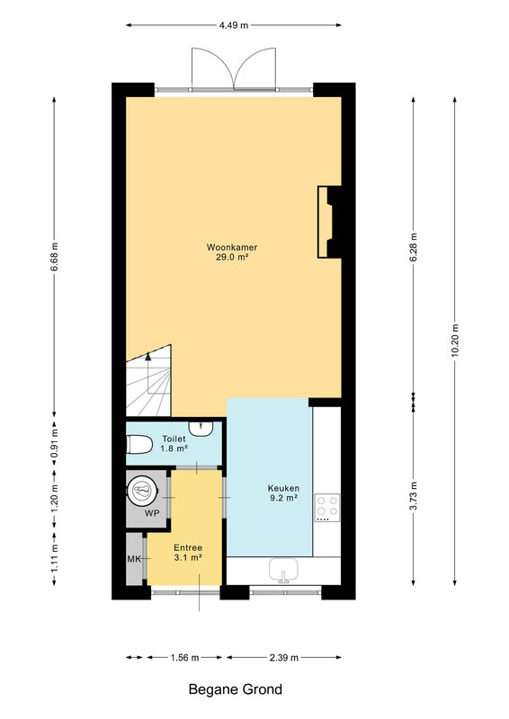
Indeling
Begane grond:
Hal met ruim toilet (wandcloset en fonteintje), meterkast en vaste kast met warmtepomp. Lichte woonkamer met gezellige eet- en zithoek rondom de haard. Moderne hoekkeuken aan de voorzijde, voorzien van alle gemakken: koel/vriescombinatie, vaatwasser, combi-oven/magnetron, BORA-inductiekookplaat, koof met ingebouwde Philips Hue spotjes en Quooker: kokend water in een handomdraai. Via openslaande dubbele deuren heb je toegang tot de fijne zonnige achtertuin, welke is voorzien van een houten berging en een achterom.

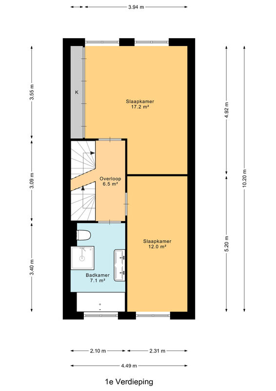
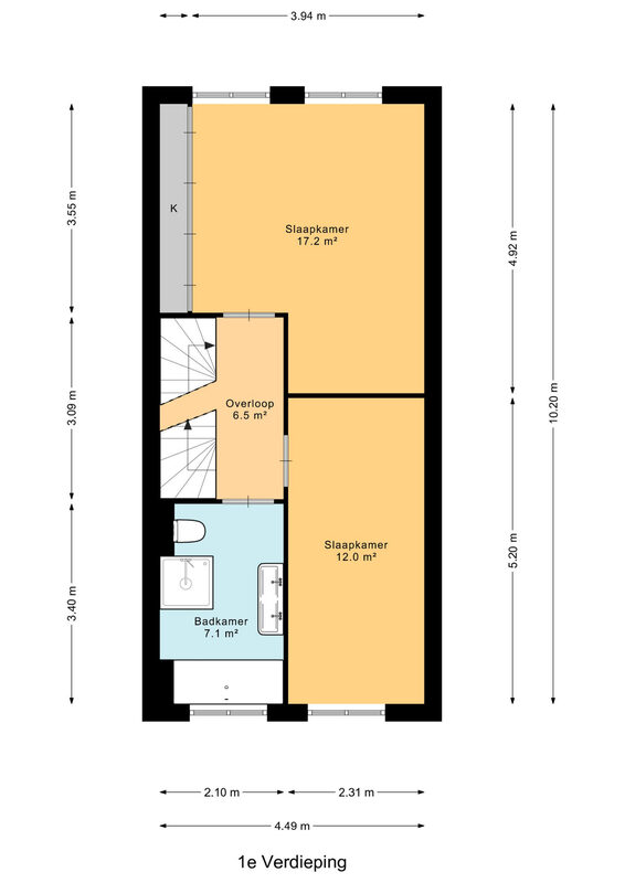
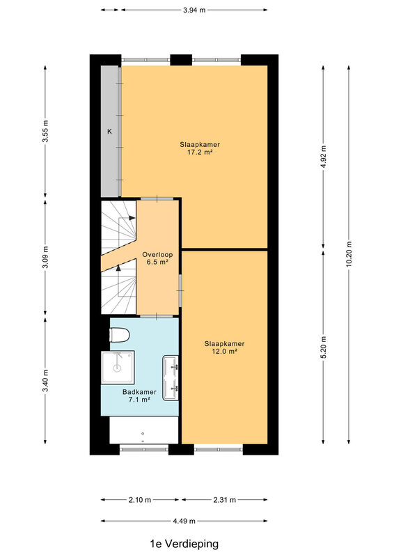
Eerste verdieping:
Overloop met toegang tot twee slaapkamers en de badkamer. De grote slaapkamer aan de achterzijde (met inbouwkast) kan eenvoudig worden opgesplitst in twee kamers. Moderne badkamer met ligbad, inloopdouche (met inbouwnis), wastafelmeubel met twee wastafels, verlichte spiegel, radiator, wandcloset en luxe shutters.

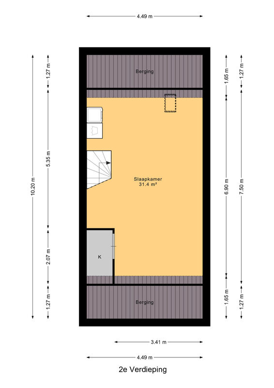
Tweede verdieping:
Ruime zolder met dakraam, aansluitingen voor wasmachine/droger, WTW-installatie en de omvormer van de 12 zonnepanelen. Er is extra bergruimte beschikbaar achter de knieschotten. Van de ruime zolder – die momenteel dient als werk- en sportruimte – kun je eenvoudig nog 2 slaapkamers maken.

De wijk
De woning ligt in de prachtige nieuwbouwwijk ‘De Brinkhorst’, bekend om zijn mooie architectuur, groene uitstraling en kindvriendelijke omgeving. De ligging van de woning is ideaal, dichtbij diverse speelplekken waar kinderen veilig kunnen spelen, scholen, het dorp en dichtbij de Hollandsche IJssel – perfect voor een ontspannen wandeling of fietstocht. Een fijne plek om te wonen: rustig, dorps en toch centraal gelegen.

Persoonlijke noot van de eigenaar
“Wij hebben hier met enorm veel plezier gewoond. Het is een warm huis, in een rustige en veilige wijk met speeltuinen voor de kinderen, mooie wandelroutes en gezellige buren.”

Zie jij jezelf hier al wonen? Maak snel een afspraak voor een bezichtiging!

Moordrecht is een gezellig dorp in de gemeente Zuidplas, gelegen aan de oevers van de Hollandsche IJssel. Dankzij de groene omgeving en de gastvrije sfeer is het een aantrekkelijke plek voor zowel bewoners als bezoekers. Een bijzondere aanwinst is het recent aangelegde Tiny Forest in park Moerhout, een rustgevende groene plek waar buurtbewoners kunnen genieten van de natuur. Daarnaast beschikt Moordrecht over diverse culinaire hotspots die zeker een bezoek waard zijn, zoals Demi’s Tapas, Restaurant Thai Noon en Restaurant Meer Genieten. Moordrecht biedt voor ieder wat wils in een sfeervolle en ontspannen omgeving. Op het gebied van onderwijs telt het dorp drie basisscholen: een openbare school, een rooms-katholieke school en een protestants-christelijke school. Alle drie zijn centraal gelegen in het dorpshart, waardoor ze goed bereikbaar zijn voor gezinnen.

Gebruiksoppervlakte woningen:
De Meetinstructie is gebaseerd op de NEN2580. De Meetinstructie is bedoeld om een meer eenduidige manier van meten toe te passen voor het geven van een indicatie van de gebruiksoppervlakte. De Meetinstructie sluit verschillen in meetuitkomsten niet volledig uit, door bijvoorbeeld interpretatieverschillen, afrondingen of beperkingen bij het uitvoeren van de meting.

Rechtsgeldige koopovereenkomst pas ná ondertekening:
Een mondelinge overeenstemming tussen de particuliere verkoper en de particuliere koper is niet rechtsgeldig. Met andere woorden: er is geen koop. Er is pas sprake van een rechtsgeldige koop als de particuliere verkoper en de particuliere koper de koopovereenkomst hebben ondertekend. Dit vloeit voort uit artikel 7:2 Burgerlijk Wetboek. Een bevestiging van de mondelinge overeenstemming per e-mail of een toegestuurd concept van de koopovereenkomst wordt overigens niet gezien als een ‘ondertekende koopovereenkomst’.

Van der Panne woning- & bedrijfsmakelaardij is de makelaar van de verkoper. Neem uw eigen NVM-makelaar mee, voor goed advies bij de aankoop van uw nieuwe woning!

Lees de volledige omschrijving

Kenmerken

Overdracht

Status Verkocht
Aanvaarding In overleg

Bouwvorm

Soort object Woonhuis
Soort woning Eengezinswoning
Type woning Hoekwoning
Bouwjaar 2021
Bouwvorm Bestaande bouw
Ligging Aan een rustige weg, in een woonwijk

Indeling

Woonoppervlakte 123 m²
Perceeloppervlakte 134 m²
Inhoud 457 m³
Aantal woonlagen 3

Energie

Energieklasse A++++
Energie einddatum maandag 26 mei 2031
Isolatie Dakisolatie, muurisolatie, vloerisolatie, dubbel glas, volledig geïsoleerd
Warmwater Aardwarmte
Verwarming Warmtepomp

Buitenruimte

Tuin Achtertuin, voortuin
Hoofdtuin Achtertuin
Oppervlakte hoofdtuin 47 m²
Ligging hoofdtuin Noord-oost
Achterom Ja
Kwaliteit tuin Normaal

Bergruimte

Garage Geen garage
Schuur / Berging Vrijstaand hout

Parkeergelegenheid

Voorzieningen Openbaar parkeren

Dak

Dak Zadeldak

Overig

Permanente bewoning Ja
Onderhoud binnen Goed tot uitstekend
Onderhoud buiten Goed tot uitstekend
Huidig gebruik Woonruimte
Huidige bestemming Woonruimte

Voorzieningen

Voorzieningen Mechanische ventilatie, dakraam, glasvezel kabel, zonnepanelen

Kadastrale gegevens

Gemeente Moordrecht
Sectie D
Perceelnummer 4853
Oppervlakte 134 m²
Eigendomssituatie Volle eigendom
VanderPanne-HR-6621
Interesse in deze woning?

Esmille helpt u graag

Delen

Vergelijkbare objecten

Ganzeneiland 1

Moordrecht Vraagprijs: € 565.000,- k.k.
  • 262 m2
  • 128 m2
  • 5 kamers

Uiterwaard 105

Moordrecht Vraagprijs: € 1.595.000,- k.k.
  • 842 m2
  • 300 m2
  • 5 kamers
fundawonen-logo
logo
VGC_keurmerk_nw_zwart-grijs
nwwi
logo_NVM_business_staand_CMYK