Van der Panne woning- & bedrijfsmakelaardij
Van der Panne woning- & bedrijfsmakelaardij

Louis Couperusplaats 3

Capelle aan den IJssel Vraagprijs: € 295.000,- k.k.
Verkocht
  • Woonoppervlakte 83 m2
  • Aantal slaapkamers 3
  • Bouwjaar 1967

Omschrijving

Dit mooie 4-kamer hoek appartement op de 1e verdieping van de Capelstaete zoekt een nieuwe eigenaar! Gelegen op 1 minuut loopafstand van metrostation Capelle-Slotlaan. Met de voorzieningen van het winkelcentrum en het stadcentrum van Capelle aan den Ijssel om de hoek.

Begane grond:
Verzorgde entree met toegang tot de bergingen, trappenhuis en liftinstallatie. De brievenbussen bevinden zich op de etages.

1e verdieping:
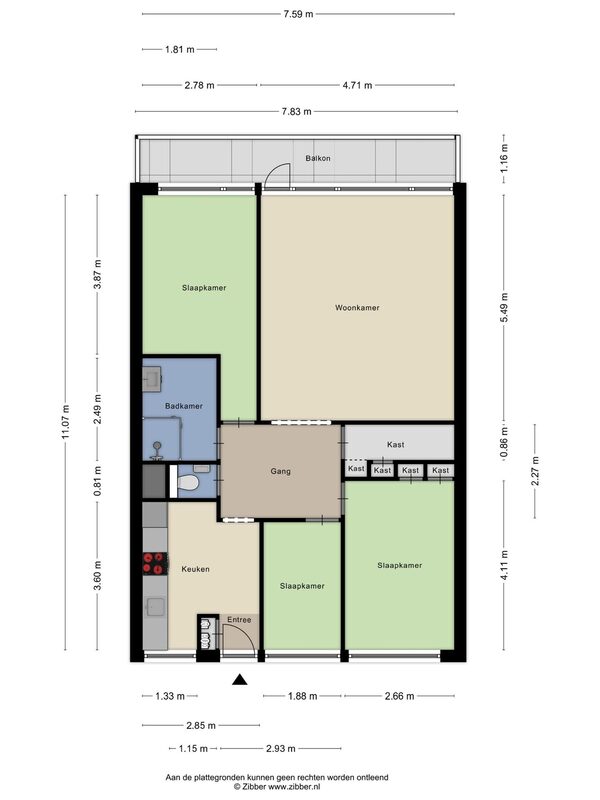
Entree met toegang tot de keuken, meterkast en interne hal. Via de interne hal is er toegang tot de woonkamer, slaapkamers, badkamer, toilet en de inloopbergkast.

De hal, keuken en woonkamer zijn voorzien van een tegelvloer.

Woonkamer, ruime en lichte kamer met inbouwspots en toegang tot het balkon.

Balkon, een heerlijk ruim en zonnig balkon op het zuidwesten.

Keuken, voorzien van een keukenblok in rechte opstelling met een 4-pits kookplaat, afzuigkap, oven, losstaande vaatwasser en een koel-/vriescombinatie.

De slaapkamers en inloopbergkast zijn voorzien van een laminaatvloer.
Slaapkamer 1, gelegen aan de galerijzijde en voorzien van een vaste kast.
Slaapkamer 2, gelegen aan de galerijzijde.
Slaapkamer 3, gelegen aan de balkonzijde.

Badkamer, geheel betegeld en voorzien van een inloopdouche met regendouche, handdouche en thermostaatkraan, een wastafel met onderkastje en spiegelkastje en wasmachine-aansluiting.

Toilet, geheel betegeld en voorzien van een hangend closet en een design fonteintje.

Bijzonderheden:
- Verwarming en warm water middels centrale voorziening
- Houten kozijnen met gedeeltelijk dubbele beglazing
- Actieve VvE, bijdrage ca. € 295,66 per maand (exclusief stookkosten)
- Niet-bewonersclausule van toepassing
- Geen vragenlijsten aanwezig
- Bouwjaar ca. 1967

Afmetingen:
Zie de (interactieve) plattegronden voor de afmetingen van de woning.

Bouwjaar : 1967
Inhoud : 275 m³
Gebruiksoppervlakte wonen : 83 m²
Overige inpandige ruimte : 0 m²
Gebouwgebonden buitenruimte : 9 m²
Externe bergruimte : 0 m²

Gebruiksoppervlakte woningen:
De Meetinstructie is gebaseerd op de NEN2580. De Meetinstructie is bedoeld om een meer eenduidige manier van meten toe te passen voor het geven van een indicatie van de gebruiksoppervlakte. De Meetinstructie sluit verschillen in meetuitkomsten niet volledig uit, door bijvoorbeeld interpretatieverschillen, afrondingen of beperkingen bij het uitvoeren van de meting.

Rechtsgeldige koopovereenkomst pas ná ondertekening:
Een mondelinge overeenstemming tussen de particuliere verkoper en de particuliere koper is niet rechtsgeldig. Met andere woorden: er is geen koop. Er is pas sprake van een rechtsgeldige koop als de particuliere verkoper en de particuliere koper de koopovereenkomst hebben ondertekend. Dit vloeit voort uit artikel 7:2 Burgerlijk Wetboek. Een bevestiging van de mondelinge overeenstemming per e-mail of een toegestuurd concept van de koopovereenkomst wordt overigens niet gezien als een ‘ondertekende koopovereenkomst’.

Van der Panne woning- & bedrijfsmakelaardij is de makelaar van de verkoper. Neem uw eigen NVM-makelaar mee, voor goed advies bij de aankoop van uw nieuwe woning!

Lees de volledige omschrijving

Kenmerken

Overdracht

Status Verkocht
Aanvaarding In overleg

Bouwvorm

Soort object Appartement
Bouwjaar 1967
Bouwvorm Bestaande bouw

Indeling

Woonoppervlakte 83 m²
Inhoud 275 m³
Aantal woonlagen 1

Energie

Energieklasse F
Energie einddatum dinsdag 14 september 2027
Warmwater Centrale voorziening
Verwarming Blokverwarming

Buitenruimte

Tuin Geen tuin
Achterom Nee

Bergruimte

Garage Geen garage

Parkeergelegenheid

Voorzieningen Openbaar parkeren

Overig

Permanente bewoning Ja
Onderhoud binnen Goed
Onderhoud buiten Goed
Huidig gebruik Woonruimte
Huidige bestemming Woonruimte

Kadastrale gegevens

Gemeente Capelle aan den IJssel
Sectie C
Perceelnummer 2644
Eigendomssituatie Volle eigendom
VanderPanne-HR-6745
Interesse in deze woning?

Rody helpt u graag

Delen

Vergelijkbare objecten

Dakotaweg 217

Capelle aan den IJssel Vraagprijs: € 350.000,- k.k.
  • 92 m2
  • 3 kamers

Bermweg 272

Capelle aan den IJssel Vraagprijs: € 405.000,- k.k.
  • 210 m2
  • 75 m2
  • 4 kamers

Azoren 11

Capelle aan den IJssel Vraagprijs: € 1.395.000,- k.k.
  • 494 m2
  • 306 m2
  • 8 kamers

Dubbelspoor 36

Capelle aan den IJssel Vraagprijs: € 465.000,- k.k.
  • 158 m2
  • 133 m2
  • 6 kamers
fundawonen-logo
logo
VGC_keurmerk_nw_zwart-grijs
nwwi
logo_NVM_business_staand_CMYK