Onderweg 3 A

Rotterdam Huurprijs: € 2.205,- per maand
  • Bedrijfsoppervlakte 230 m2

Omschrijving

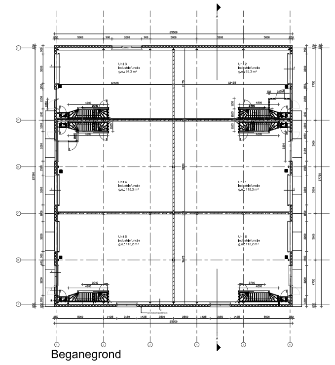
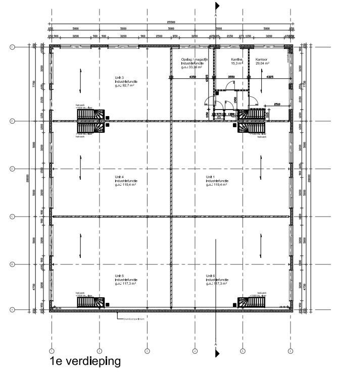
Nieuwbouw bedrijfsunits te huur op een toplocatie! Op een uitstekende locatie in de regio Rotterdam-Nesselande bieden wij dit moderne nieuwbouwproject met 11 hoogwaardige bedrijfsunits aan. Het project is gelegen aan de Benno Premselastraat / Onderweg op bedrijvenpark “Reijm” en biedt ondernemers een unieke kans om zich hier te vestigen. De bedrijfsunits zijn verdeeld over twee representatieve verzamelgebouwen en variëren in grootte van circa 186 m² tot 268 m² gebruiksoppervlakte. Elke unit bestaat uit twee bouwlagen. Op de begane grond bevinden zich een loopdeur en een elektrisch bedienbare overheaddeur. De verdieping is bereikbaar via een houten trap en is voorzien van grote raampartijen, wat zorgt voor veel daglicht en natuurlijke ventilatie. Daarnaast beschikken de units over minimaal vier eigen parkeerplaatsen en zijn ze uitgerust met zonnepanelen. Alle vloeren zijn voorbereid voor het aanleggen van vloerverwarming en er is een mogelijkheid tot het plaatsen van een airco-warmtepomp, wat bijdraagt aan een energiezuinige en comfortabele werkomgeving.

Neem voor de beschikbaarheid contact op met ons kantoor! De contactpersonen zijn Rody Zuur en Roxanne de Jong.

Graag verwijzen wij u ook naar de advertenties Benno Premselastraat 90 B en Benno Premselastraat 90 F te Rotterdam.
Let op! Foto 2 is slechts een indicatie van hoe de bedrijfsunits eruit komen te zien.

Gebruiksoppervlakte units:
Unit A beschikt over een gebruiksoppervlakte van ca. 230 m² (113 m² op de begane grond en 117 m² op de eerste verdieping).
Unit B beschikt over een gebruiksoppervlakte van ca. 234 (115 m² op de begane grond en 119 m² op de eerste verdieping).

Daarnaast is het mogelijk unit A en B gezamenlijk te huren, in combinatie met het buitenterrein van ca. 580 m².

Huurprijzen:
Unit 3 A: € 2.205,- per maand + buitenterrein (vanaf ca. 375 m²) € 937,50 per maand (excl. BTW en servicekosten).
Unit 3 B: € 2.295,- per maand (excl. BTW en servicekosten).
Unit 3 A + B en buitenterrein (ca. 580 m²): € 5.900,- per maand (excl. BTW en servicekosten).

Servicekosten:
Het voorschot servicekosten bedraagt € 75,- per maand (excl. BTW) ten behoeve de navolgende diensten:
- Glasbewassing;
- Gevelreiniging;
- Onderhoud overheaddeur;
- Onderhoud brandblusapparatuur;
- Hek, terrein- en groenonderhoud.

Kenmerken per bedrijfsunit:
• Minimaal 4 eigen parkeerplaatsen
• Eigen laadpunt voor elektrische auto
• Alle vloeren zijn voorbereid op vloerverwarming
• Mogelijkheid tot plaatsing van airco-warmtepomp (in overleg)
• Toilet aanwezig
• Voorzien van verlichtingspunt
• Zonnepanelen
• Camerabeveiliging
• Gasloos

Terreinvoorzieningen:
• Afgesloten elektrisch hekwerk met inbelfunctie (automatisch geopend van 07:00 tot 17:30 uur)
• Standaard reclameframe per unit
• Vlaggenmasten
• Brievenbus
• Reclame mogelijk via LED-scherm of zeil

Bestemming:
Op deze locatie zijn bedrijven tot en met categorie 2 (verzamelgebouw 1) en 3.2 (verzamelgebouw 2) van de lijst van bedrijfsactiviteiten toegestaan. Het is niet toegestaan om het geheel voor meer dan 50% als kantoor te gebruiken.

Vereniging van Eigenaren:
Het onderhoud van het volledige terrein wordt verzorgd vanuit de VVE (VVE-bijdrage nader te bepalen).

Locatie en bereikbaarheid:
Het bedrijvenpark “Reijm” is een duurzaam bedrijvenpark aan de rand van Rotterdam, ruim van opzet met een kwalitatief hoogwaardig en doelmatig ingerichte buitenruimte. Het biedt een groene omgeving en de nabijheid van sport- en winkelvoorzieningen aan de Zevenhuizerplas. Het perceel ligt tussen de Benno Premselastraat en de Onderweg. De ontsluiting van het project geschiedt middels de Onderweg en de Benno Premselastraat.

• Direct langs de A20
• Nabij de A12, afslag 9, Den Haag-Gouda
• Directe aansluiting op de Hoofdweg, Nieuwerkerk aan den IJssel, Capelle aan den IJssel en Rotterdam Alexandrium
• Nabij metrostation Nesselande met directe verbinding met het centrum van Rotterdam

Parkeren:
Elke unit beschikt over minimaal 4 eigen parkeerplaatsen. In de directe omgeving zijn nog eens onbetaalde openbare parkeervoorzieningen.

Huurtermijn:
5 jaar met een aansluitende verlengingsperiode van telkens 5 jaar. Kortere huurperiode bespreekbaar.

Huurovereenkomst:
De te sluiten huurovereenkomst zal worden opgemaakt conform het model dat door de Raad van Onroerende Zaken met bijbehorende Algemene Bepalingen is vastgesteld in juli 2015.

Huurprijsherziening:
Jaarlijks, voor het eerst één jaar na datum huuringang, op basis van de wijziging van het maandindexcijfer volgens de (2015 = 100), consumentenprijs index (CPI) reeks CPI-Alle huishoudens gepubliceerd door het Centraal Bureau voor de Statistiek (CBS), met dien verstande, dat de huurprijs nimmer zal dalen beneden de laatst geldende huurprijs.

Huurgarantie:
Een bankgarantie of een waarborgsom ter grootte van een betalingsverplichting van drie maanden huur inclusief BTW en servicekosten.

Omzetbelasting:
Uitgangspunt bij het tot stand komen van een huurovereenkomst is, dat huurder het gehuurde voor 90% of meer gebruikt voor met omzetbelasting belaste prestaties. Huurder zal zich zoveel als in zijn vermogen ligt inspannen om ervoor te zorgen, dat niet van dit uitgangspunt wordt afgeweken. Indien op enig moment een situatie aan de zijde van huurder intreedt, waardoor geen recht meer wordt gedaan aan dit uitgangspunt, is huurder gehouden om het daaruit voor verhuurder voortvloeiende nadeel te vergoeden. Deze vergoeding wordt vastgesteld op tenminste het bedrag, dat overeenkomt met het bedrag aan omzetbelasting dat over de huurprijs is verschuldigd zolang wel wordt voldaan aan dit uitgangspunt. Dit bedrag is boven de huurprijs verschuldigd vanaf het moment, dat van dit uitgangspunt wordt afgeweken en verhuurder geen omzetbelasting meer over de huurprijs in rekening kan brengen, respectievelijk huurder deze niet meer in aftrek kan brengen.

Disclaimer:
Deze vrijblijvende informatie is met de grootst mogelijke zorgvuldigheid samengesteld. Voor de juistheid van deze informatie kan door Van der Panne woning- & bedrijfsmakelaardij echter geen aansprakelijkheid worden aanvaard, noch kan aan de vermelde informatie enig recht worden ontleend. Deze informatie is niet bedoeld als aanbod. Door aanvaarding van de vermelde condities of het uitbrengen van een daarvan afwijkend aanbod worden onze opdrachtgevers en wij niet gebonden, ook niet tot het doen van een tegenbod. Een overeenkomst komt slechts tot stand door kennisgeving van een in alle opzichten en daarom op ondergeschikte punten met een aanbod overeenkomende aanvaarding.

Lees de volledige omschrijving

Kenmerken

Kenmerken

Soort object Bedrijfsruimte

Bedrijfsruimte - bedrijfshal

Oppervlakte 230 m²
Voorzieningen Overheaddeuren, Krachtstroom, Betonvloer
Kantoorruimte aanwezig Nee
Terrein aanwezig Nee

Overdracht

Status Beschikbaar
Aanvaarding In overleg
BTW van toepassing Nee

Bouwvorm

Bouwvorm Bestaande bouw

Diversen

Onderhoud binnen Goed tot uitstekend
Onderhoud buiten Goed tot uitstekend
VanderPanne-HR-6745
Interesse in dit object?

Rody helpt u graag

Vergelijkbare objecten

fundawonen-logo
logo
VGC_keurmerk_nw_zwart-grijs
nwwi
logo_NVM_business_staand_CMYK