Van der Panne woning- & bedrijfsmakelaardij
Van der Panne woning- & bedrijfsmakelaardij

Oosteindseweg 22 a

Bergschenhoek Huurprijs: € 560,- per maand
  • Bedrijfsoppervlakte 35 m2

Omschrijving

Wat een beleving gaat er van dit unieke complex uit. Bij de ontwikkeling van deze kantoorlofts moest het voor een ieder laagdrempelig zijn, als een warme deken voelen en het wow-effect hebben en dat is gelukt. Door het gebruik van een mix van de bestaande constructie en oude en hedendaagse materialen is er een inspirerend gebouw ontstaan welke verkaveld is in kantoorlofts vanaf 9 m² tot ruimten van bijna 80 m². En dan ook nog eens gelegen op een steenworp afstand van het centrum van Bergschenhoek en een energielabel A+!

Ook aan parkeerruimte is gedacht. Er zijn parkeerplaatsen voor de ondernemer en bezoekers voor het gebouw aanwezig. De lofts worden bedrijfsklaar incl. snel internet opgeleverd. Flexibele huurperioden zijn bespreekbaar. Het pand is gewaardeerd met een energielabel A+.

Voorzieningen:
· Luxe entree;
. luxe opleveringsniveau
· Snel internet;
· Verwarming middels radiatoren en vloerverwarming;
· Vloerbedekking;
· Kabelgoten/aansluitingen cat. 6 bekabeld;
· Buitenterras (bij 2 units);
· Goederen lift;
. Gemeenschappelijke pantry;
. Gemeenschappelijke vergaderruimte;
. Gemeenschappelijke toiletten;
· Gemeenschappelijk parkeerterrein;*

* Extra parkeerplaatsen tegen betaling mogelijk

Ligging en bereikbaarheid:
Het complex is gelegen nabij het centrum van Bergschenhoek met in de directe nabijheid het gezellige centrum. De belangrijke N-209 heeft een goede verbinding met de A-12 en de A-13.

Opslagboxen:
Een bijzondere bijkomstigheid is dat er ook nog interne opslagboxen beschikbaar zijn. Deze zijn 5 tot 15 m² groot en zijn separaat te huur.

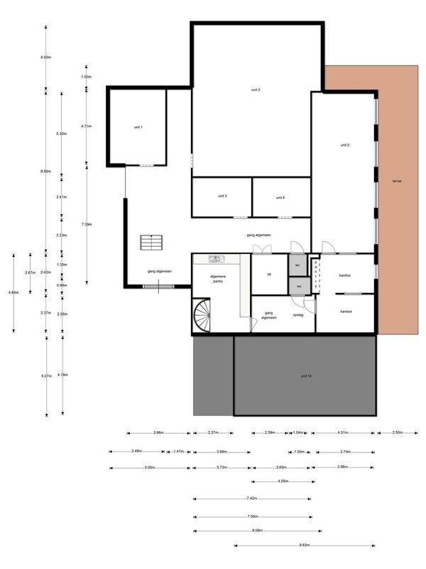
Afmetingen en huurprijzen:
Unit VVO BVO* huurprijs status
Unit 1 16,6 22,4 € 495,- Verhuurd
Unit 2 71,6 96,6 € 1.295,- Verhuurd
Unit 3 9,1 12,4 € 345,- Verhuurd
Unit 4 8,8 11,9 € 295,- Verhuurd
Unit 5 57,7 77,9 € 1.295,- Verhuurd
Unit 6 17,8 24 € 450,- Verhuurd
Unit 7a/b 26 35,1 € 560,- Beschikbaar
Unit 8 79,5 107 € 1.495,- Verhuurd
Unit 9 11,2 15 € 350,- Verhuurd
Unit 10 40,5 55 € 995,- Verhuurd
Unit 11 68,2 92 € 1895,- Verhuurd

*Dit is het metrage van de unit incl. het deel van de algemene ruimte. En vermelde huurprijzen zijn exclusief omzetbelasting en servicekosten.

Servicekosten:
Er is een bedrag per jaar verschuldigd ter hoogte van € 58,- per m² excl. BTW per jaar. Voor het gebruik van gas, water en elektra, het onderhoud van installaties, verwarming van de algemene ruimtes, de schoonmaakkosten en gemeentelijke heffingen en belastingen.

Huurbetaling:
Vooruitbetaling per maand.

Oplevering:
In overleg, kan per direct.

Huurtermijn:
Flexibele huurtermijnen mogelijk.

Huurgarantie:
Een bankgarantie of een waarborgsom ter grootte van een betalingsverplichting van drie maanden huur, zonder servicekosten en BTW.

Algemeen:
De informatie omtrent voormeld onroerend goed is met zorg samengesteld, maar voor de juistheid ervan kan door Van der Panne woning- & bedrijfsmakelaardij b.v. geen aansprakelijkheid worden aanvaard, noch kan aan de vermelde gegevens enig recht worden ontleend. Nadrukkelijk is vermeld dat deze informatieverstrekking niet als een aanbieding of offerte mag worden beschouwd.

Lees de volledige omschrijving

Kenmerken

Kenmerken

Soort object Kantoorruimte

Overdracht

Status Beschikbaar
Aanvaarding In overleg

Bouwvorm

Bouwvorm Bestaande bouw

Diversen

Onderhoud binnen Uitstekend
Onderhoud buiten Goed tot uitstekend
Afstand tot de bank Op 500 tot 1000 meter
Afstand tot ontspanningsvoorziening Op 500 tot 1000 meter
Afstand tot restaurant Op 500 tot 1000 meter
Afstand tot winkel Op minder dan 500 meter
Afstand tot snelwegafrit Van 3000 tot 4000 meter
Afstand tot N.S. station Van 1000 tot 2000 meter
Afstand tot bushalte Op 500 tot 1000 meter
VanderPanne-HR-6745
Interesse in dit object?

Rody helpt u graag

fundawonen-logo
logo
VGC_keurmerk_nw_zwart-grijs
nwwi
logo_NVM_business_staand_CMYK