Spechtendaal 22

Nieuwerkerk aan den IJssel Vraagprijs: € 425.000,- k.k.
Verkocht
  • Woonoppervlakte 106 m2
  • Perceeloppervlakte 106 m2
  • Aantal slaapkamers 4
  • Bouwjaar 1982

Omschrijving

Ontdek deze goed onderhouden eengezinswoning met zonnige achtertuin! Deze leuke tussenwoning met vier slaapkamers heeft aan ruimte geen gebrek. In 2010 is de begane grond volledig gerenoveerd met een nieuwe praktische indeling. Zo beschikt de woning over een open living met de woon- en eetkamer aan de achterzijde en een moderne keuken aan de voorzijde. In de fijne tuin gelegen op het westen kom je de zomermaanden gegarandeerd goed door! Bovendien heeft de woning maar liefst 17 zonnepanelen! Ook de locatie van de woning is ideaal gelegen in de rustige en kindvriendelijke Dalenbuurt met een zeer gunstige ligging t.o.v. het winkelcentrum Reigerhof, het treinstation, het park, diverse (basis)scholen en sportvoorzieningen. Geniet van al het moois wat deze woning en de locatie te bieden hebben!

Persoonlijke tekst eigenaar:
Met veel plezier hebben we 29 jaar in deze woning gewoond. De omgeving is divers qua leeftijdsopbouw en de betrokkenheid van de buurt is groot. Alles faciliteiten zijn zeer bereikbaar op loopafstand.

Begane grond:
Entree, nette hal met meterkast, hangend toilet en de trap naar de eerste verdieping.

Vanuit de hal is de ruime living toegankelijk met aan de voorzijde een moderne open keuken. De keuken is voorzien van een 5-pits gaskookplaat met afzuigkap, vaatwasser, combi oven/magnetron en een losse koel-vriescombinatie. Aangrenzend is er genoeg ruimte voor een grote eethoek Aan de achterzijde bevindt zich een fijne zithoek. Tevens is er een praktische trappenkast aanwezig. De gehele begane grond is voorzien van een mooie tegelvloer met vloerverwarming.

Middels de openslaande deuren is de diepe achtertuin gelegen op westen te bereiken. De achtertuin is keurig aangelegd, voorzien van een stenen berging en een achterom.

1e verdieping:
Overloop met toegang tot de slaapkamers, de badkamer en de trap naar de tweede verdieping.

Op de eerste verdieping bevinden zich twee slaapkamers aan de achterzijde van de woning waarvan beide zijn uitgerust met een dakraam en één met een vaste kast. De derde slaapkamer met vaste schuifwandkast is gelegen aan de voorzijde van de woning

De ruime en volledig betegelde badkamer is voorzien van een ligbad met douche, een toilet en een wastafelmeubel.

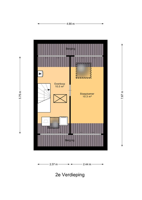
2e verdieping:
Overloop met onder meer veel bergruimte achter de knieschotten, de opstelling van de CV (2013), omvormer van de zonnepanelen (2020), aansluiting voor de wasmachine en toegang tot de vliering voor extra bergruimte. Veder bevindt zich op deze verdieping de ruime vierde slaapkamer met een groot dakraam.

Bijzonderheden:
De woning is gelegen op eigen grond. De woning is voorzien van 17 zonnepanelen en beschikt over een energiebel A. De woning is zeer centraal gelegen.

Afmetingen:
Zie de (interactieve) plattegronden voor de afmetingen van de woning.

Bouwjaar : 1982
Inhoud : 378m³
Gebruiksoppervlakte wonen : 106 m²
Overige inpandige ruimte : 0 m²
Gebouwgebonden buitenruimte : 0 m²
Externe bergruimte : 6 m²

Gebruiksoppervlakte woningen:
De Meetinstructie is gebaseerd op de NEN2580. De Meetinstructie is bedoeld om een meer eenduidige manier van meten toe te passen voor het geven van een indicatie van de gebruiksoppervlakte. De Meetinstructie sluit verschillen in meetuitkomsten niet volledig uit, door bijvoorbeeld interpretatieverschillen, afrondingen of beperkingen bij het uitvoeren van de meting.

Rechtsgeldige koopovereenkomst pas ná ondertekening:
Een mondelinge overeenstemming tussen de particuliere verkoper en de particuliere koper is niet rechtsgeldig. Met andere woorden: er is geen koop. Er is pas sprake van een rechtsgeldige koop als de particuliere verkoper en de particuliere koper de koopovereenkomst hebben ondertekend. Dit vloeit voort uit artikel 7:2 Burgerlijk Wetboek. Een bevestiging van de mondelinge overeenstemming per e-mail of een toegestuurd concept van de koopovereenkomst wordt overigens niet gezien als een ‘ondertekende koopovereenkomst’.

Van der Panne woning- & bedrijfsmakelaardij is de makelaar van de verkoper. Neem uw eigen NVM-makelaar mee, voor goed advies bij de aankoop van uw nieuwe woning!

Lees de volledige omschrijving

Kenmerken

Overdracht

Status Verkocht
Aanvaarding In overleg

Bouwvorm

Soort object Woonhuis
Soort woning Eengezinswoning
Type woning Tussenwoning
Bouwjaar 1982
Bouwvorm Bestaande bouw
Ligging In een woonwijk

Indeling

Woonoppervlakte 106 m²
Perceeloppervlakte 106 m²
Inhoud 378 m³
Aantal woonlagen 4

Energie

Energieklasse A
Energie einddatum dinsdag 31 december 2030
Isolatie Dakisolatie, muurisolatie, vloerisolatie, dubbel glas, hr glas
Warmwater Cv ketel
Verwarming Cv ketel

Buitenruimte

Tuin Achtertuin
Hoofdtuin Achtertuin
Oppervlakte hoofdtuin 40 m²
Ligging hoofdtuin West
Achterom Ja
Kwaliteit tuin Fraai aangelegd

Bergruimte

Garage Geen garage
Schuur / Berging Vrijstaand steen

Parkeergelegenheid

Voorzieningen Openbaar parkeren, parkeervergunningen

Dak

Dak Zadeldak

Overig

Permanente bewoning Ja
Onderhoud binnen Goed
Onderhoud buiten Goed
Huidig gebruik Woonruimte
Huidige bestemming Woonruimte

Voorzieningen

Voorzieningen Buitenzonwering, dakraam, zonnepanelen, natuurlijke ventilatie

Kadastrale gegevens

Gemeente Nieuwerkerk aan den IJssel
Sectie B
Perceelnummer 4604
Oppervlakte 106 m²
Eigendomssituatie Volle eigendom
VanderPanne-HR-6621
Interesse in deze woning?

Esmille helpt u graag

Delen

Vergelijkbare objecten

Klein Hitland 280

Nieuwerkerk aan den IJssel Vraagprijs: € 285.000,- k.k.
  • 452 m2
  • 47 m2
  • 2 kamers

Rijskade 9

Nieuwerkerk aan den IJssel Vraagprijs: € 695.000,- k.k.
  • 450 m2
  • 168 m2
  • 4 kamers

Klein Hitland 59

Nieuwerkerk aan den IJssel Vraagprijs: € 287.500,- k.k.
  • 332 m2
  • 80 m2
  • 4 kamers

Gouwe 1

Nieuwerkerk aan den IJssel Vraagprijs: € 825.000,- k.k.
  • 331 m2
  • 183 m2
  • 5 kamers

Klein Hitland 125

Nieuwerkerk aan den IJssel Vraagprijs: € 425.000,- k.k.
  • 688 m2
  • 112 m2
  • 3 kamers

Veenmos 5

Nieuwerkerk aan den IJssel Vraagprijs: € 485.000,- k.k.
  • 157 m2
  • 112 m2
  • 5 kamers

Colorado 204

Nieuwerkerk aan den IJssel Vraagprijs: € 979.500,- k.k.
  • 197 m2
  • 196 m2
  • 6 kamers

Zeemanstraat 4

Nieuwerkerk aan den IJssel Vraagprijs: € 489.000,- k.k.
  • 169 m2
  • 146 m2
  • 6 kamers

Dorpsstraat 18

Nieuwerkerk aan den IJssel Vraagprijs: € 895.000,- k.k.
  • 212 m2
  • 5 kamers
fundawonen-logo
logo
VGC_keurmerk_nw_zwart-grijs
nwwi
logo_NVM_business_staand_CMYK