Takmos 6

Nieuwerkerk A/d IJssel Vraagprijs: € 475.000,- k.k.
Verkocht
  • Woonoppervlakte 113 m2
  • Perceeloppervlakte 178 m2
  • Aantal slaapkamers 4
  • Bouwjaar 1978

Omschrijving

Dit is nog eens fijn wonen! Geen auto's om je heen en aan de ingang van het park! Deze hoekwoning (met extra stuk grond aan de zijkant) is echt een leuk huis. Met op de begane grond een grote woonkamer met open keuken, drie slaapkamers op de verdieping en een badkamer met douche én ligbad en op de tweede verdieping nog een slaapkamer met dakterras. In 2018 zijn grotendeels alle kozijnen vervangen voor kunststof (draai/kiep) exemplaren en zijn er rolluiken geplaatst. De woning ligt op een perfecte plek, vlakbij scholen (basis en middelbaar) en op loop/fietsafstand van winkelcentrum Reigerhof en het treinstation.

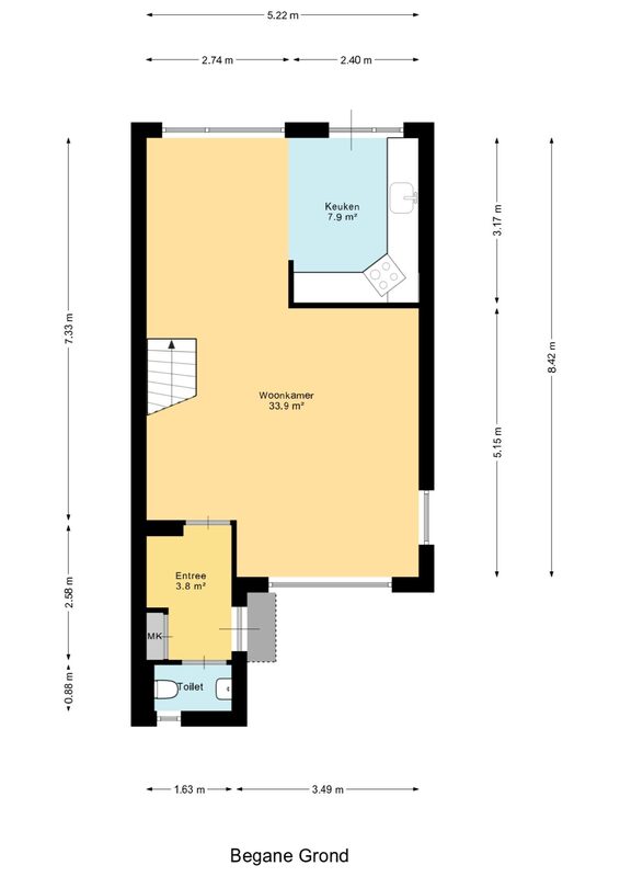
Begane grond:
Uitpandige hal met het toilet en de meterkast.

Woonkamer met een open trap en doordat het een hoekwoning betreft een zijraam wat zorgt voor extra daglicht en een leuk uitzicht. Op de vloer ligt een PVC vloer.

Aan de achterzijde van de woning bevindt zich de open keuken welke is voorzien van een koel/vries combinatie, een inductie kookplaat, een afzuigkap, een vaatwasser en een oven/magnetron. Vanaf hier is de 10,30 diepe tuin te bereiken, gelegen op het noordwesten (middag- en avondzon!) en voorzien van buitenkraan en zonnescherm. Door een perceel gemeentegrond van 51 m2 bij te kunnen kopen is de tuin extra groot geworden.

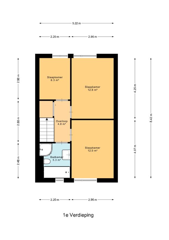
1e verdieping:
Overloop, twee slaapkamers aan de achterzijde en een slaapkamer aan de voorzijde. Zowel aan de voor- als achterzijde zijn er rolluiken toegepast bij de slaapkamers.

Badkamer aan de voorzijde met een douche, een hangend toilet, een ligbad, een designradiator en een meubel met wastafel.

2e verdieping:
Overloop met bergruimte, de wasmachineaansluiting en de CV-installatie die zich in een kast boven het trapgat bevindt. Vanaf de overloop het dakterras te bereiken, extra beveiligd met een rolluik. Vervolgens is op deze verdieping de vierde slaapkamer te vinden, met bergruimte achter het knieschot. Deze verdieping heeft houten kozijnen.

Bijzonderheden:
De woning is gelegen op eigen grond.

Nieuwerkerk aan den IJssel is een gezellig en charmant dorp, gelegen aan de Hollandse IJssel. Het dorp biedt een fijne mix van natuur, ontspanning en activiteiten voor jong en oud.
Voor liefhebbers van buiten zijn is er een prachtige golfbaan in een natuurrijke omgeving. Gezinnen met kinderen kunnen terecht in zwembad het Polderbad voor een verfrissende duik. Daarnaast zijn er volop sportmogelijkheden met diverse verenigingen, waaronder een voetbalclub, tennisclub, hockeyclub en een dansschool.
Het historische hart van Nieuwerkerk, het Oude Dorp, heeft een sfeervolle uitstraling met een gevarieerd aanbod aan winkels en horecagelegenheden.
Nieuwerkerk is bovendien uitstekend bereikbaar: dankzij een goede treinverbinding sta je in ongeveer 15 minuten in het centrum van Rotterdam.
Voor gezinnen met kinderen is er ruime keuze op het gebied van onderwijs. Nieuwerkerk telt maar liefst zeven basisscholen, elk met een eigen onderwijsvisie, zoals de Elimschool, Gideonschool, Montessorischool en de Prins Willem Alexanderschool. Ook voortgezet onderwijs is aanwezig, met twee middelbare scholen: het openbare Thorbecke en het christelijke Comenius College.

Gebruiksoppervlakte woningen:
De Meetinstructie is gebaseerd op de NEN2580. De Meetinstructie is bedoeld om een meer eenduidige manier van meten toe te passen voor het geven van een indicatie van de gebruiksoppervlakte. De Meetinstructie sluit verschillen in meetuitkomsten niet volledig uit, door bijvoorbeeld interpretatieverschillen, afrondingen of beperkingen bij het uitvoeren van de meting.

Rechtsgeldige koopovereenkomst pas ná ondertekening:
Een mondelinge overeenstemming tussen de particuliere verkoper en de particuliere koper is niet rechtsgeldig. Met andere woorden: er is geen koop. Er is pas sprake van een rechtsgeldige koop als de particuliere verkoper en de particuliere koper de koopovereenkomst hebben ondertekend. Dit vloeit voort uit artikel 7:2 Burgerlijk Wetboek. Een bevestiging van de mondelinge overeenstemming per e-mail of een toegestuurd concept van de koopovereenkomst wordt overigens niet gezien als een ‘ondertekende koopovereenkomst’.

Van der Panne woning- & bedrijfsmakelaardij is de makelaar van de verkoper. Neem uw eigen NVM-makelaar mee, voor goed advies bij de aankoop van uw nieuwe woning!

Lees de volledige omschrijving

Kenmerken

Overdracht

Status Verkocht
Aanvaarding In overleg

Bouwvorm

Soort object Woonhuis
Soort woning Eengezinswoning
Type woning Hoekwoning
Bouwjaar 1978
Bouwvorm Bestaande bouw
Ligging Aan een park, aan een rustige weg

Indeling

Woonoppervlakte 113 m²
Perceeloppervlakte 178 m²
Inhoud 405 m³
Aantal woonlagen 3

Energie

Energieklasse C
Energie einddatum dinsdag 20 februari 2035
Isolatie Dubbel glas
Warmwater Cv ketel
Verwarming Cv ketel

Buitenruimte

Tuin Achtertuin, voortuin
Hoofdtuin Achtertuin
Oppervlakte hoofdtuin 72 m²
Ligging hoofdtuin Noord-west
Achterom Ja
Kwaliteit tuin Verzorgd

Bergruimte

Garage Geen garage
Schuur / Berging Vrijstaand steen

Parkeergelegenheid

Voorzieningen Openbaar parkeren

Dak

Dak Samengesteld dak

Overig

Permanente bewoning Ja
Onderhoud binnen Goed
Onderhoud buiten Goed
Huidig gebruik Woonruimte
Huidige bestemming Woonruimte

Voorzieningen

Voorzieningen Tv kabel

Kadastrale gegevens

Gemeente Nieuwerkerk aan den IJssel
Sectie B
Perceelnummer 3258
Oppervlakte 127 m²
Eigendomssituatie Volle eigendom
VanderPanne-HR-6621
Interesse in deze woning?

Esmille helpt u graag

Delen

fundawonen-logo
logo
VGC_keurmerk_nw_zwart-grijs
nwwi
logo_NVM_business_staand_CMYK