Tweemanspolder 6 a

Zevenhuizen Huurprijs: € 1.350,- per maand
  • Woonoppervlakte 80 m2
  • Perceeloppervlakte 379 m2
  • Aantal slaapkamers 3

Omschrijving

LET OP: TOT EN MET SEPTEMBER GEEN WONING BESCHIKBAAR!

IT IS NOT ALLOWED TO LIVE HERE PERMANENTLY | HET IS NIET TOEGESTAAN HIER PERMANENT TE WONEN. HUREN IS MOGELIJK VOOR EEN PERIODE VAN MAXIMAAL 6 MAANDEN ONDER TOESTEMMINGSREGELS VANUIT DE GEMEENTE.

De HUURPRIJS bedraagt vanaf € 1.350,- tot € 1.500,- EXCL. GAS, WATER, ELEKTRA maar met GRATIS WIFI, een WASMACHINE en een WASDROGER.

U zoekt een tijdelijk verblijf. Dat kan. Wij bieden u 3 volledig gemeubileerde recreatiewoningen aan. De woonoppervlakte bedraagt ca. 80 m² en deze bestaan uit 3-4 kamers en dat op een perceel van 290 tot 360 m².

Let op! Deze woningen zijn voorzien van een modern interieur, keurig aangelegde tuin en beschikken over een grote berging met elektra. Vraag ons naar de mogelijkheden en voorwaarden.

Algemene informatie van een van de types woning en het park.

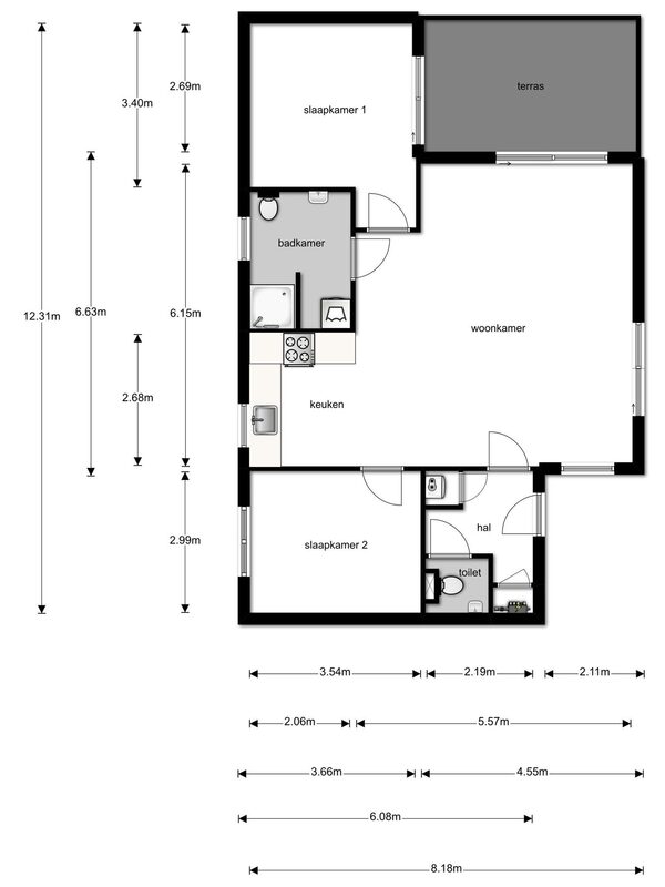
Hoe is de woning ingedeeld
Entree, centrale hal met garderobe nis en toilet. Royale living met een hoog plafond (6,15 x 5,55 meter) met 2 schuifpuien en heel veel lichtinval. Deze is ingericht in een zit- en een eetgedeelte met zicht op de open keuken. Het zitgedeelte is gelegen aan de achterzijde van deze recreatiewoning. Het eetgedeelte is gelegen in het midden. Zittend aan uw eettafel kijkt u heerlijk uit op de ruime tuin en wordt deze als het ware een verlengstuk van uw leefruimte.

Keuken
De keuken staat in open verbinding met de woonkamer waardoor u tijdens het bereiden van het eten contact heeft met de overige gezinsleden of vrienden. In de keuken (2,75 x 2,05) treft u een keukenopstelling met een L-vormig keukenblok welk is voorzien van alle dagelijkse gemakken zoals: een vaatwasser, 4-pits gasfornuis, combi oven/magnetron, koel/vries combinatie, RVS spoelbak, afzuigkap en praktische kastruimte.

Slaapkamer(s)
De royale ouderslaapkamer (3,40 x 3,10) is aan de achterzijde van deze recreatiewoning gelegen en is voorzien van 2 royale boxsprings met nachtkastjes en separaat een kast met voldoende bergruimte. De aanwezige schuifpui in deze slaapkamer maakt het verblijf compleet. Direct vanuit uw slaapkamer kunt u zo de achtertuin in.

De tweede slaapkamer (3,55 x 2,55) is gelegen aan de voorzijde van de woning en is voorzien van 2 royale boxsprings met nachtkasten separaat een kast met voldoende bergruimte.Op de vloer van beide slaapkamers ligt op de vloer een fijne afwerking van pvc stroken*. De wanden zijn voorzien van behang.

Optionele versie.
De derde slaapkamer (2,65 x 2,10) is gelegen tussen beide slaapkamers. Deze kamer is voorzien van een stapelbed.

Badkamer
De ruime badkamer (2,85m x 2,10m) is van alle dagelijkse gemakken voorzien. De wand- en vloerafwerking zijn mooi op elkaar afgestemd en vormen een keurig geheel. De inrichting van deze sanitaire ruimte bestaat uit een bouwkundige doucheruimte of een douchecabine met thermostaat mengkraan voor de regendouche, optie van een tweede toilet, een wastafel met spiegel en een aansluiting voor een wasmachine en een droger. (beide separaat te huur of ter beschikking gesteld door de eigenaar)

Buiten & Tuin
Deze stenen recreatiewoning is gelegen aan een groene zoom met bomen en een wandelpad. Voor de woning ligt een verharde privé parkeerplaats, waar u uw auto kunt plaatsen. Achter in de tuin staat nog een tuinhuisje waar u uw fietsen kwijt kunt. Deze wordt binnenkort vervangen. De gehele tuin is functioneel ingericht met terras en een groot gazon zodat jong en oud zich er altijd kunnen vermaken. Het onderhoud van de tuin kan worden uitbesteed voor € 50,- per maand.

Bijzonderheden
De recreatiewoning wordt te huur aangeboden e.e.a. conform de voorwaarden van het Recreatieschap Rottemeren en onder dezelfde voorwaarden welke het recreatiepark De Koornmolen hanteert. De afwerking en voorzieningen kunnen per woning verschillen.

De huurprijs is excl. het gebruik van gas, water en elektra en toeristenbelasting € 3,35 per p.p.p.d (Geldt niet voor inwonenden van de gemeente Zuidplas maar met toestemming van verhuur van gemeente is er geen toeristenbelasting van toepassing). Prijspeil 2024.

Algemene informatie recreatiepark “De Koornmolen”.
Recreatiepark de Koormolen (2001) is gelegen aan de rand van Zevenhuizen in het recreatiegebied Rottemeren en bestaat uit 95 bungalows, een seizoen camping en is het gehele jaar geopend. Ideaal gelegen tussen de authentieke poldermolens.

Het is dan ook een echte aanrader om lopend, per fiets of met de auto erop uit te trekken want in de directe omgeving zijn alle denkbare voorzieningen aanwezig zoals: kanoverhuur, manege, zeer veel watersport mogelijkheden zoals huren van sloep, zeilboot, zwemmen, wandel- en fietsroutes, fietsverhuur, klimwand, mountainbike parcours, golfbaan Hooge Rotterdamsche en natuurlijk direct op het park een fijn restaurant met zonneterras en voor jong en oud een overdekt zwembad.

Steden zoals Rotterdam, Delft, Den Haag, Scheveningen en Gouda zijn in de buurt en zeker de moeite waard zijn om te gaan bekijken zijn:

Uiteraard zijn de (aller)kleinsten niet vergeten. Er worden tijdens de vakantie perioden diverse activiteiten georganiseerd. Het park beschikt ook nog over een midgetgolfbaan.

Lees de volledige omschrijving

Kenmerken

Overdracht

Status Beschikbaar
Aanvaarding Per datum

Bouwvorm

Soort object Woonhuis
Soort woning Eengezinswoning
Type woning Vrijstaande woning
Bouwvorm Bestaande bouw

Indeling

Woonoppervlakte 80 m²
Perceeloppervlakte 379 m²
Inhoud 270 m³
Aantal woonlagen 1

Energie

Isolatie Dakisolatie, vloerisolatie, dubbel glas
Warmwater Cv ketel
Verwarming Cv ketel

Buitenruimte

Tuin Tuin rondom
Hoofdtuin Tuin rondom
Achterom Ja
Kwaliteit tuin Normaal

Bergruimte

Garage Geen garage
Schuur / Berging Vrijstaand hout

Parkeergelegenheid

Voorzieningen Op eigen terrein

Dak

Dak Samengesteld dak

Overig

Permanente bewoning Ja
Onderhoud binnen Goed
Onderhoud buiten Goed
Huidig gebruik Woonruimte
Huidige bestemming Woonruimte

Voorzieningen

Voorzieningen Mechanische ventilatie

Kadastrale gegevens

Gemeente Zevenhuizen
Sectie A
Perceelnummer 1306
Oppervlakte 379 m²
Eigendomssituatie Eigendom belast met erfpacht
VanderPanne-HR-6889
Interesse in deze woning?

Kirsten helpt u graag

Delen

fundawonen-logo
logo
VGC_keurmerk_nw_zwart-grijs
nwwi
logo_NVM_business_staand_CMYK