Vogelkersgaarde 6

Gouda Huurprijs: € 2.495,- per maand
Verhuurd
  • Woonoppervlakte 200 m2
  • Perceeloppervlakte 622 m2
  • Aantal slaapkamers 5
  • Bouwjaar 1998

Omschrijving

In villapark “Groenhoven” bieden wij u deze grote, gestoffeerde twee onder een kap woning met maar liefst 5 slaapkamers te huur aan. De woning beschikt naast een garage en parkeergelegenheid voor 2 auto’s op eigen terrein over een goede keuken, een grote badkamer en een heerlijke tuin aan een fraaie waterpartij met een uitstekende bezonning. Het geheel is gunstig gesitueerd nabij diverse winkels, scholen, kinderdagverblijven, sportvoorzieningen, ziekenhuizen en uitvalswegen.

Begane grond:
Entree, hal met toiletruimte en toegang tot de werkkamer aan de voorzijde van de woning. Grote woonkamer met kast onder de trap, fraaie parketvloer, dubbele deuren naar de achtertuin en eveneens toegang tot de werkkamer aan de voorzijde. De riante open keuken is voorzien van diverse apparatuur zoals een vaatwasser, een 4-pits keramische kookplaat, een koelkast en een combimagnetron. Vanuit de bijkeuken, die voorzien is van de aansluiting voor de wasmachine, is de ruime aanpandige garage te betreden.

1e verdieping:
Overloop, grote slaapkamer aan de achterzijde van de woning voorzien van vaste kast. Aan de voorzijde treft u nog eens 2 ruim bemeten slaapkamers aan. De riante badkamer is voorzien van een ligbad, een douchecabine, een dubbele wastafel en een designradiator.

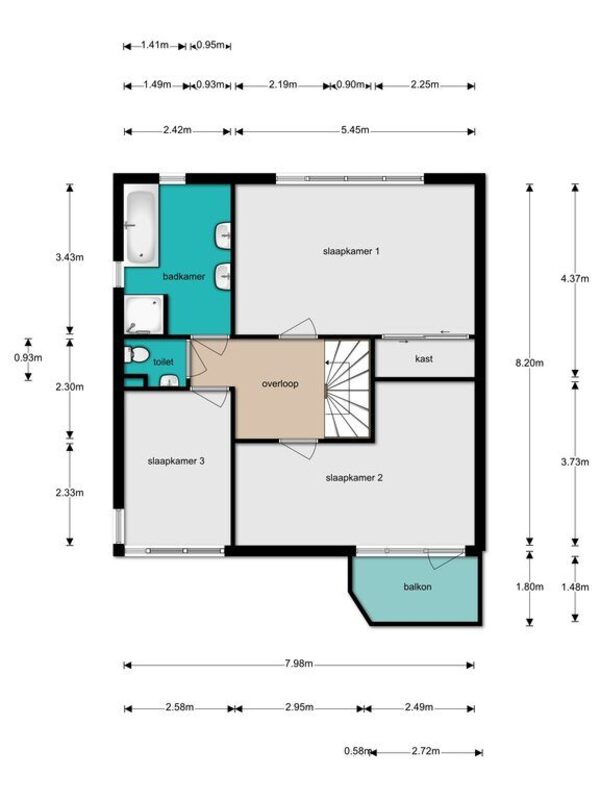
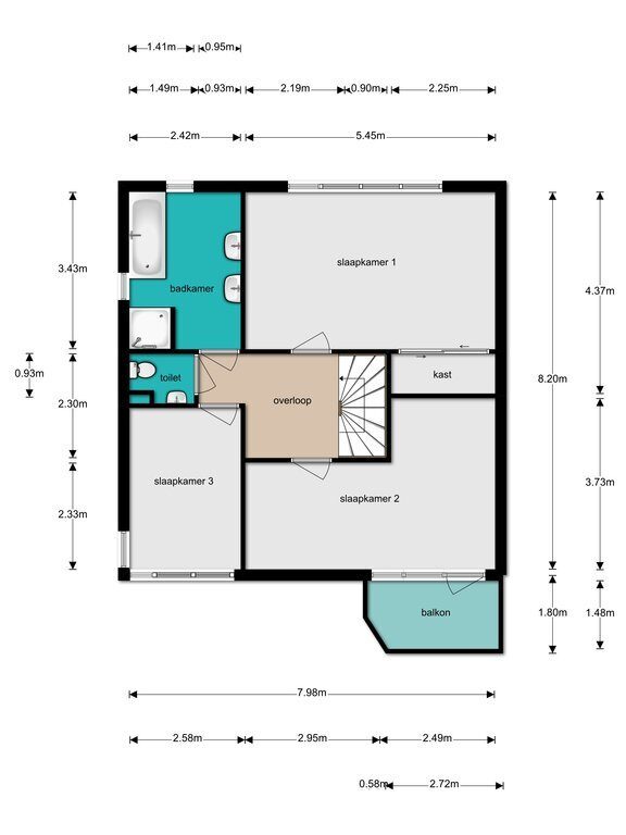
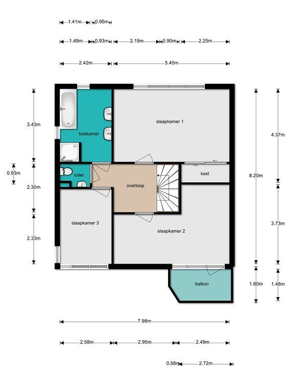
2e verdieping:
Overloop, 2 grote slaapkamers beide voorzien van een dakraam. In een van deze kamers bevindt zich een vaste kast met daarin de CV-installatie en de mechanische ventilatie unit.

Bijzonderheden:
Park Groenhoven is een woonwijk met luxe woningbouw, centraal gelegen in Gouda-Noord en optimaal bereikbaar. De uitvalswegen, de A12, het NS-station, maar ook het centrum, de sportvelden en het zwembad op loopafstand, en de recreatiegebieden Reeuwijkse Plassen en de Krimpenerwaard zijn uitstekend te bereiken. De fraaie Bloemendaalseweg geeft het Groenhovenkwartier een speciaal landelijk tintje. Het centrum van Rotterdam is met de auto binnen 20 minuten te bereiken.

Afmetingen:
Woonkamer : 7,95 x 5,50/4,30
Keuken : 3,90 x 2,45
Werkkamer/study : 5,50 x 3,00
Bijkeuken : 2,95 x 1,55
Slaapkamer 1 : 5,45 x 4,35/3,45
Slaapkamer 2 : 5,45 x 3,75/2,35
Slaapkamer 3 : 3,75 x 2,45
Slaapkamer 4 : 5,90 x 2,20/4,40
Slaapkamer 5 : 5,90 x 3,70/4,70
Badkamer : 3,45 x 2,45
Garage : 5,90 x 2,95

Kadastrale gegevens:
Gemeente : Gouda
Sectie : M
Complex : 5412
Perceelgrootte : 311 m2

Bouwjaar : 1998
Inhoud : 650 m3
Woonoppervlakte : 220 m2

Lees de volledige omschrijving

Kenmerken

Overdracht

Status Verhuurd
Aanvaarding Direct

Bouwvorm

Soort object Woonhuis
Soort woning Eengezinswoning
Type woning Twee onder één kapwoning
Bouwjaar 1998
Bouwvorm Bestaande bouw
Ligging Aan water, aan een rustige weg, in een woonwijk

Indeling

Woonoppervlakte 200 m²
Perceeloppervlakte 622 m²
Inhoud 650 m³
Aantal woonlagen 3

Energie

Isolatie Volledig geïsoleerd
Warmwater Cv ketel
Verwarming Cv ketel

Buitenruimte

Tuin Achtertuin, voortuin
Hoofdtuin Achtertuin
Oppervlakte hoofdtuin 132 m²
Ligging hoofdtuin Oost
Achterom Nee
Kwaliteit tuin Fraai aangelegd

Bergruimte

Garage Aangebouwd steen
Voorzieningen Verwarming, elektra, water

Dak

Dak Zadeldak

Overig

Permanente bewoning Ja
Onderhoud binnen Goed tot uitstekend
Onderhoud buiten Goed tot uitstekend
Huidig gebruik Woonruimte
Huidige bestemming Woonruimte

Voorzieningen

Voorzieningen Mechanische ventilatie, tv kabel, dakraam

Kadastrale gegevens

Gemeente Gouda
Sectie M
Perceelnummer 5412
Oppervlakte 311 m²
Eigendomssituatie Volle eigendom
VanderPanne-HR-6621
Interesse in deze woning?

Esmille helpt u graag

Delen

fundawonen-logo
logo
VGC_keurmerk_nw_zwart-grijs
nwwi
logo_NVM_business_staand_CMYK