Vrijheidslaan 2

Gouda Vraagprijs: € 250.000,- k.k.
Verkocht
  • Woonoppervlakte 65 m2
  • Aantal slaapkamers 3
  • Bouwjaar 1964

Omschrijving

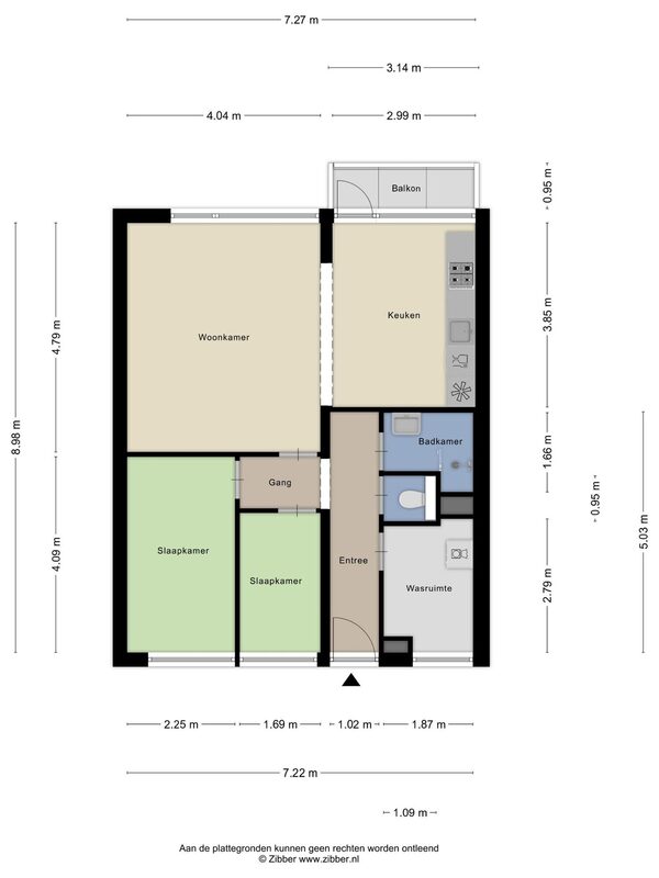
Dit fijne appartement heeft een ruime en gezellige woon/eetkamer doordat de muur naar de keuken is opengebroken. Het balkon is gelegen op het westen. Je geniet dus de hele middag/avond van de zon! Er zijn twee ruime slaapkamers en een kamer welke op dit moment als wasruimte wordt gebruikt. De badkamer is voorzien van een ruime inloopdouche, wastafelmeubel en spiegelkast. De woning is gelegen op de begane grond van een kleinschalig en verzorgd complex. Kortom, een ideaal én betaalbaar appartement op een centrale locatie. Zien we jou snel?

Persoonlijke tekst eigenaar:
De woonkamer is ruim en praktisch ingedeeld, met plek voor een gezellige zit- en eethoek. Alles is binnen handbereik en de aparte wasruimte maakt het huishouden lekker overzichtelijk.
Een groot pluspunt: je hebt je eigen voordeur, dus geen trappen of gedeelde entree. Ook het balkon op de begane grond is ideaal — lekker in de middagzon én handig als je even snel iets buiten wilt zetten.
Het toilet is apart van de douche, wat in de dagelijkse praktijk gewoon heel prettig is.
Na jaren met veel plezier hier gewoond te hebben, gaan mijn partner en ik verhuizen naar een groter huis.

Begane grond:
Overdekte portiek met bellentableau en afgesloten binnenhal met trappenhuis. De bergingen op de begane grond zijn via de achterzijde van het complex en van buitenaf te bereiken. U bereikt het appartement via de buitenzijde en u hoeft geen gebruik te maken van het portiek en de lift.

Je komt het appartement binnen in de entree waar de hal is voorzien van meterkast en de half betegelde toiletruimte met vrijhangend closet. In totaal zijn er drie slaapkamers, waarvan één kamer aan de voorzijde ook voorzien is van een wasmachineaansluiting. Verder is er via de hal een volledig betegelde, moderne badkamer voorzien van een ruime inloopdouche en een wastafelmeubel met spiegelkast.

De ruime woonkamer voorzien van laminaatvloer staat in verband met de open keuken welke is opgesteld in een rechte opstelling en uitgevoerd in lichte kleurstelling. De open keuken is voorzien van diverse inbouwapparatuur waaronder een koel-/vriescombinatie, een combioven, een 4-pits gaskookplaat en een afzuigkap. Vanuit de keuken is er toegang tot het terrasje welk is gelegen op het westen.

Bijzonderheden:
In 2013 is het appartement verbouwd waardoor er een muur is doorgebroken zodat de keuken in een open opstelling ten opzichte van de woonkamer geplaatst kon worden. De woning is voorzien van houten kozijnen welke in 2024 (achterzijde) en 2025 (voorzijde) zijn geschilderd, geregeld vanuit de VvE. De bijdrage van de VVE bedraagt € 300,-, waaronder € 100,- aan voorschot stookkosten.

Afmetingen:
Zie de (interactieve) plattegronden voor de afmetingen van de woning.

Bouwjaar : 1964
Inhoud : 215 m³
Gebruiksoppervlakte wonen : 65 m²
Overige inpandige ruimte : 0 m²
Gebouwgebonden buitenruimte : 3 m²
Externe bergruimte : 5 m²

Gebruiksoppervlakte woningen:
De Meetinstructie is gebaseerd op de NEN2580. De Meetinstructie is bedoeld om een meer eenduidige manier van meten toe te passen voor het geven van een indicatie van de gebruiksoppervlakte. De Meetinstructie sluit verschillen in meetuitkomsten niet volledig uit, door bijvoorbeeld interpretatieverschillen, afrondingen of beperkingen bij het uitvoeren van de meting.

Rechtsgeldige koopovereenkomst pas ná ondertekening:
Een mondelinge overeenstemming tussen de particuliere verkoper en de particuliere koper is niet rechtsgeldig. Met andere woorden: er is geen koop. Er is pas sprake van een rechtsgeldige koop als de particuliere verkoper en de particuliere koper de koopovereenkomst hebben ondertekend. Dit vloeit voort uit artikel 7:2 Burgerlijk Wetboek. Een bevestiging van de mondelinge overeenstemming per e-mail of een toegestuurd concept van de koopovereenkomst wordt overigens niet gezien als een ‘ondertekende koopovereenkomst’.

Van der Panne woning- & bedrijfsmakelaardij is de makelaar van de verkoper. Neem uw eigen NVM-makelaar mee, voor goed advies bij de aankoop van uw nieuwe woning!

Lees de volledige omschrijving

Kenmerken

Overdracht

Status Verkocht
Aanvaarding In overleg

Bouwvorm

Soort object Appartement
Bouwjaar 1964
Bouwvorm Bestaande bouw
Ligging Aan een rustige weg, in een woonwijk

Indeling

Woonoppervlakte 65 m²
Inhoud 215 m³
Aantal woonlagen 1

Energie

Energieklasse D
Energie einddatum zaterdag 21 november 2026
Isolatie Grotendeels dubbelglas
Warmwater Geiser eigendom
Verwarming Blokverwarming

Buitenruimte

Tuin Geen tuin
Achterom Nee

Bergruimte

Garage Geen garage
Schuur / Berging Box

Parkeergelegenheid

Voorzieningen Openbaar parkeren

Dak

Dak Plat dak

Overig

Permanente bewoning Ja
Onderhoud binnen Goed
Onderhoud buiten Goed
Huidig gebruik Woonruimte
Huidige bestemming Woonruimte

Voorzieningen

Voorzieningen Natuurlijke ventilatie

Kadastrale gegevens

Gemeente Gouda
Sectie K
Perceelnummer 4623
Eigendomssituatie Volle eigendom
VanderPanne-HR-6621
Interesse in deze woning?

Esmille helpt u graag

Delen

fundawonen-logo
logo
VGC_keurmerk_nw_zwart-grijs
nwwi
logo_NVM_business_staand_CMYK