Van der Panne woning- & bedrijfsmakelaardij
Van der Panne woning- & bedrijfsmakelaardij

Klein Hitland 139

Nieuwerkerk aan den IJssel Vraagprijs: € 155.000,- k.k.
Verkocht
  • Woonoppervlakte 45 m2
  • Perceeloppervlakte 300 m2
  • Aantal slaapkamers 2
  • Bouwjaar 2011

Omschrijving

We hebben weer een mooie recreatiewoning te koop op 'Parc de IJsselhoeve' op EIGEN GROND. Deze vrijstaande bungalow heeft een woonoppervlakte van ca. 45 m² met een grote tuin rondom de woning. De recreatiewoning beschikt over een lichte en gezellig woonkamer met openslaande deuren naar de tuin, twee slaapkamers, een moderne open keuken en een luxe badkamer. De zonnige grote tuin voorzien van grind en een houten berging. Het huisje is geplaatst in 2011 en beschikt ook nog over eigen parkeerplaats(en). Een heerlijk rustig plekje op het park, vanwege de boom trekt het vele vogels aan! Let op: deze woning heeft geen gedoogbeschikking waardoor permanente bewoning niet is toegestaan.

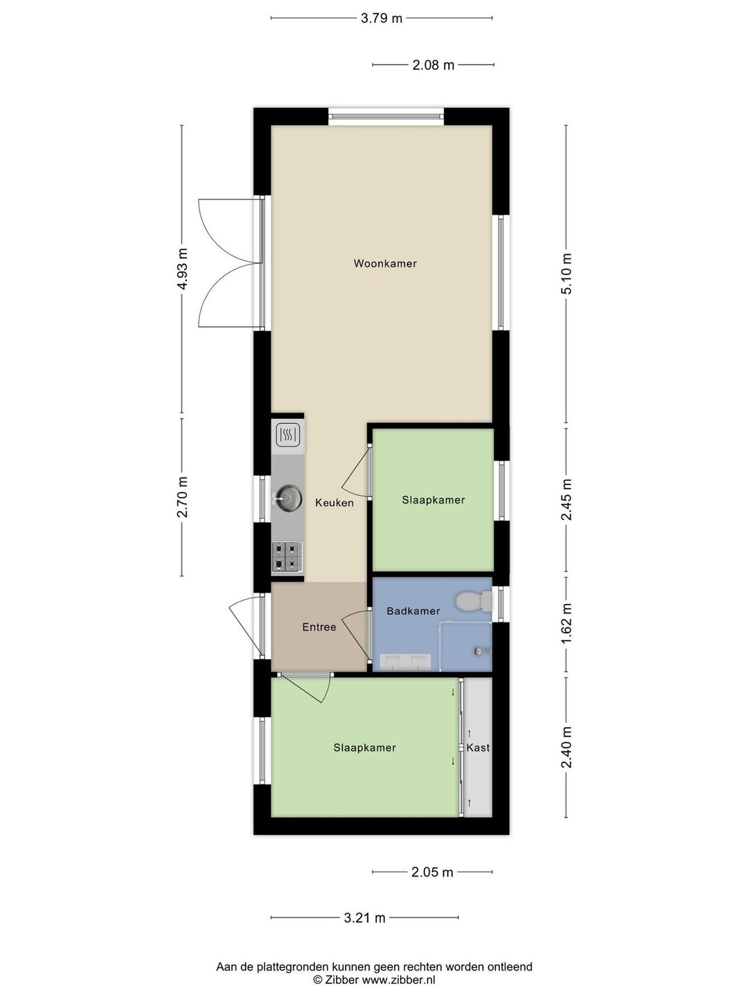
Indeling:
Via de entree aan de zijkant van de woning komt u binnen in de woonkamer met open keuken.

De woonkamer heeft inbouwspots en openslaande deuren die toegang bieden tot de tuin. De moderne open keuken is voorzien van een koelkast (2019), een vriezer, 4-pits gaskookplaat(2025), een vaatwasser (2022) en een combi heteluchtoven (2020). Deze bungalow is voorzien van twee slaapkamers. De grote slaapkamer is voorzien van een vaste schuifwandkast. In januari 2025 is er een nieuwe HR CW3 ketel geplaatst.
De lichte woonkamer, hal en slaapkamers zijn voorzien van een vinyl vloer. De nette badkamer is voorzien van een douche, een toilet, een dubbele wastafel en een wasmachine-aansluiting. De badkamer heeft ook een raam voor de fijne natuurlijke ventilatie.

Tuin:
De tuin is gelegen rondom de woning. Er is hierdoor altijd wel een plekje te vinden in de zon. De tuin is onderhoudsvriendelijk aangelegd vanwege de klinkers en het grote terras. De tuin beschikt over een houten berging en een parkeerplaats. Op het grote terras is een loungeset aanwezig (deze blijft achter).

Bijzonderheden:
Jaarlijks dient er een parkbijdrage betaald te worden t.b.v. het onderhoud van het park. Deze parkservicebijdrage bedraagt voor 2025: €2495.52 inclusief btw. Deze woning staat op eigen grond waardoor er meer financieringsmogelijkheden zijn dan wanneer een recreatiewoning op huurgrond staat. Het verdient aanbeveling om eerst in de financieringsmogelijkheden te verdiepen alvorens een bezichtiging in te plannen.

Het verdient aanbeveling om u eerst in de financieringsmogelijkheden te verdiepen alvorens een bezichtiging in te plannen. Uw lokale Rabobank financiert recreatiewoningen.

Algemene informatie van Parc De IJsselhoeve
Dit park is gelegen aan de Hollandse IJssel, in het natuurgebied Hitland in de provincie Zuid-Holland. Het natuurgebied is omsloten door fiets-, wandel- en ruiterpaden. Bovendien beschikt het park over een verwarmd zwembad met apart kinderbad, speelgelegenheid en een gezellige horeca gelegenheid. De 18 holes golfbaan van de gelijknamige Golfclub ligt op nog geen kilometer afstand. Ook is er een manege en een restaurant. De natuurlijke waterpartijen zijn kenmerkend voor het park.

Nieuwerkerk aan den IJssel is een gezellig en charmant dorp, gelegen aan de Hollandse IJssel. Het dorp biedt een fijne mix van natuur, ontspanning en activiteiten voor jong en oud.
Voor liefhebbers van buiten zijn is er een prachtige golfbaan in een natuurrijke omgeving. Gezinnen met kinderen kunnen terecht in zwembad het Polderbad voor een verfrissende duik. Daarnaast zijn er volop sportmogelijkheden met diverse verenigingen, waaronder een voetbalclub, tennisclub, hockeyclub en een dansschool.
Het historische hart van Nieuwerkerk, het Oude Dorp, heeft een sfeervolle uitstraling met een gevarieerd aanbod aan winkels en horecagelegenheden.
Nieuwerkerk is bovendien uitstekend bereikbaar: dankzij een goede treinverbinding sta je in ongeveer 15 minuten in het centrum van Rotterdam.
Voor gezinnen met kinderen is er ruime keuze op het gebied van onderwijs. Nieuwerkerk telt maar liefst zeven basisscholen, elk met een eigen onderwijsvisie, zoals de Elimschool, Gideonschool, Montessorischool en de Prins Willem Alexanderschool. Ook voortgezet onderwijs is aanwezig, met twee middelbare scholen: het openbare Thorbecke en het christelijke Comenius College.

Gebruiksoppervlakte woningen:
De Meetinstructie is gebaseerd op de NEN2580. De Meetinstructie is bedoeld om een meer eenduidige manier van meten toe te passen voor het geven van een indicatie van de gebruiksoppervlakte. De Meetinstructie sluit verschillen in meetuitkomsten niet volledig uit, door bijvoorbeeld interpretatieverschillen, afrondingen of beperkingen bij het uitvoeren van de meting.

Rechtsgeldige koopovereenkomst pas ná ondertekening:
Een mondelinge overeenstemming tussen de particuliere verkoper en de particuliere koper is niet rechtsgeldig. Met andere woorden: er is geen koop. Er is pas sprake van een rechtsgeldige koop als de particuliere verkoper en de particuliere koper de koopovereenkomst hebben ondertekend. Dit vloeit voort uit artikel 7:2 Burgerlijk Wetboek. Een bevestiging van de mondelinge overeenstemming per e-mail of een toegestuurd concept van de koopovereenkomst wordt overigens niet gezien als een ‘ondertekende koopovereenkomst’.

Van der Panne woning- & bedrijfsmakelaardij is de makelaar van de verkoper. Neem uw eigen NVM-makelaar mee, voor goed advies bij de aankoop van uw nieuwe woning!

Lees de volledige omschrijving

Kenmerken

Overdracht

Status Verkocht
Aanvaarding In overleg

Bouwvorm

Soort object Woonhuis
Soort woning Bungalow
Type woning Vrijstaande woning
Bouwjaar 2011
Bouwvorm Bestaande bouw
Ligging Aan een bosrand

Indeling

Woonoppervlakte 45 m²
Perceeloppervlakte 300 m²
Inhoud 105 m³
Aantal woonlagen 1

Energie

Isolatie Muurisolatie, dubbel glas
Warmwater Cv ketel
Verwarming Cv ketel

Buitenruimte

Tuin Tuin rondom
Hoofdtuin Tuin rondom
Achterom Ja
Kwaliteit tuin Normaal

Bergruimte

Garage Eigen parkeerplaats, geen garage
Schuur / Berging Vrijstaand hout

Parkeergelegenheid

Voorzieningen Op eigen terrein

Overig

Permanente bewoning Nee
Onderhoud binnen Goed
Onderhoud buiten Goed
Huidig gebruik Woonruimte
Huidige bestemming Woonruimte

Voorzieningen

Voorzieningen Tv kabel

Kadastrale gegevens

Gemeente Nieuwerkerk aan den IJssel
Sectie E
Perceelnummer 1185
Oppervlakte 300 m²
Eigendomssituatie Volle eigendom
VanderPanne-HR-6889
Interesse in deze woning?

Kirsten helpt u graag

Delen

Vergelijkbare objecten

Klein Hitland 211

Nieuwerkerk aan den IJssel Vraagprijs: € 140.000,- k.k.
  • 290 m2
  • 50 m2
  • 3 kamers

Klein Hitland 286

Nieuwerkerk aan den IJssel Vraagprijs: € 259.000,- k.k.
  • 405 m2
  • 50 m2
  • 3 kamers

Klein Hitland 298

Nieuwerkerk aan den IJssel Vraagprijs: € 340.000,- k.k.
  • 381 m2
  • 66 m2
  • 3 kamers

Rijskade 9

Nieuwerkerk aan den IJssel Vraagprijs: € 695.000,- k.k.
  • 450 m2
  • 168 m2
  • 4 kamers

Stationsplein 20

Nieuwerkerk aan den IJssel Vraagprijs: € 399.000,- k.k.
  • 83 m2
  • 3 kamers

Gouwe 19

Nieuwerkerk aan den IJssel Vraagprijs: € 695.000,- k.k.
  • 208 m2
  • 157 m2
  • 5 kamers

Batavierlaan 7

Nieuwerkerk aan den IJssel Vraagprijs: € 300.000,- k.k.
  • 86 m2
  • 4 kamers

Gouwe 33

Nieuwerkerk aan den IJssel Vraagprijs: € 625.000,- k.k.
  • 201 m2
  • 164 m2
  • 5 kamers

Singel 22

Nieuwerkerk aan den IJssel Vraagprijs: € 445.000,- k.k.
  • 182 m2
  • 128 m2
  • 6 kamers

Gouwe 1

Nieuwerkerk aan den IJssel Vraagprijs: € 825.000,- k.k.
  • 331 m2
  • 183 m2
  • 5 kamers
fundawonen-logo
logo
VGC_keurmerk_nw_zwart-grijs
nwwi
logo_NVM_business_staand_CMYK