Burgemeester Van de Lindelaan 6

Nieuwerkerk aan den IJssel Vraagprijs: € 1.295.000,- k.k.
Verkocht
  • Woonoppervlakte 229 m2
  • Perceeloppervlakte 702 m2
  • Aantal slaapkamers 4
  • Bouwjaar 2009

Omschrijving

Vrijstaand wonen op een toplocatie in Nieuwerkerk – ruimte, rust en uitzicht aan het water! Aan de geliefde Burgemeester van der Lindelaan, in een fraaie rij van vrijstaande woningen, staat deze riante tweelaagse villa met een woonoppervlakte van 229 m² op een ruim perceel van 702 m². Met vier slaapkamers, een inpandige garage, zijaanbouw en een grote tuin aan het groen en water biedt deze woning alles wat je zoekt: veel leefruimte, comfort en een unieke ligging op een van de mooiste plekken van Nieuwerkerk aan den IJssel. Het perceel is bereikbaar via een met de buren gedeelde brug en op het betegelde entreegebied is parkeergelegenheid voor 3 auto’s. Het huis kenmerkt zich door de prachtige (verlichte) tuin rondom het huis, waarvan de voortuin recent opnieuw is aangelegd, met diverse terrassen. Zowel het entreegebied aan de voorzijde als het terras achter het huis zijn onderheid.

Locatie:
De woning ligt aan een groene strook met uitsluitend vrijstaande huizen, op fietsafstand van winkels, scholen (zowel basis- als middelbaar) en diverse sportvoorzieningen. Ook het NS-station, de metro naar Rotterdam en uitvalswegen zijn dichtbij. De achtertuin grenst aan water en biedt een prachtig vrij uitzicht, waardoor je hier in alle rust kunt genieten van het buitenleven.

Begane grond:
Binnenkomst via de ruime hal met meterkast en toilet met fonteintje. Vanuit de hal is de inpandige garage bereikbaar, voorzien van tegelvloer, verwarming, daglicht, dubbele deur aan de voorzijde en een deur naar de tuin. De sfeervolle woonkamer heeft een eikenhouten vloer, een gashaard, airco, schuifpui naar de tuin en een lichte zijaanbouw met deur naar de tuin en een nisje met werkhoek. De open keuken aan de voorzijde is voorzien van brede 5-pits inductiekookplaat (Siemens), afzuigkap, Miele koelkast en vriezer, Siemens combi oven/magnetron en AEG vaatwasser. Aansluitend is er een praktische bijkeuken.

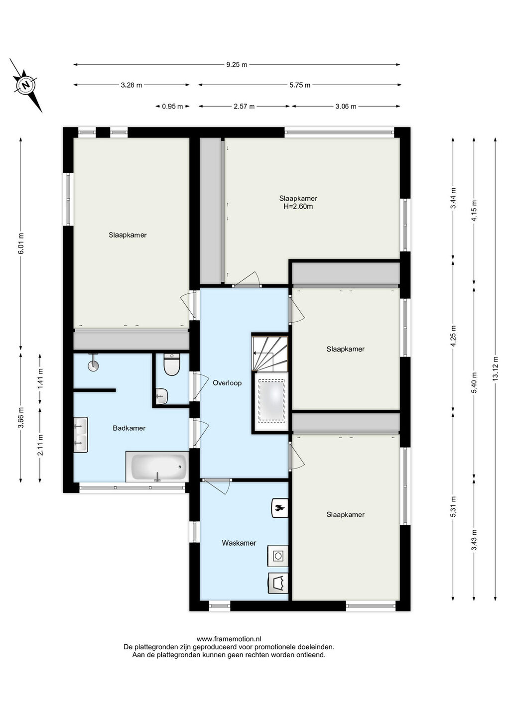
Eerste verdieping:
De ruime overloop met lichtkoepel biedt toegang tot vier slaapkamers, alle met vaste schuifwandkasten. Twee kamers beschikken over airconditioning. De badkamer is uitgerust met een ligbad, inloopdouche, dubbele wastafel met meubel en designradiator. Op de overloop bevindt zich een tweede toilet met fonteintje en een aparte waskamer met mechanische ventilatie en CV-opstelling. In deze ruimte is voldoende ruimte voor wasmachine, wasdroger, wasrek, strijken etc. Opbouw op deze verdieping is mogelijk.

Bijzonderheden:
* Vrijstaande woning op populaire locatie
* Woonoppervlakte 229 m² (verdeeld in 202 m2 gebruiksoppervlakte wonen en 27 m2 overige inpandige ruimte)
* Perceel van 702 m² met ligging aan het water
* Vier slaapkamers, twee met airco
* Bijkeuken en zijaanbouw
* Volledig geisoleerde garage die geschikt is om te gebruiken als kantoor of slaapkamer op de begane grond
* Gashaard, schuifpui, HR++ glas
* Hardhouten kozijnen met stompe deuren

Een heerlijke, complete gezinswoning op een toplocatie in Nieuwerkerk aan den IJssel. Kom kijken en laat je verrassen door de ruimte en de sfeer.

Nieuwerkerk aan den IJssel is een gezellig en charmant dorp, gelegen aan de Hollandse IJssel. Het dorp biedt een fijne mix van natuur, ontspanning en activiteiten voor jong en oud.
Voor liefhebbers van buiten zijn is er een prachtige golfbaan in een natuurrijke omgeving. Gezinnen met kinderen kunnen terecht in zwembad het Polderbad voor een verfrissende duik. Daarnaast zijn er volop sportmogelijkheden met diverse verenigingen, waaronder een voetbalclub, tennisclub, hockeyclub en een dansschool.
Het historische hart van Nieuwerkerk, het Oude Dorp, heeft een sfeervolle uitstraling met een gevarieerd aanbod aan winkels en horecagelegenheden.
Nieuwerkerk is bovendien uitstekend bereikbaar: dankzij een goede treinverbinding sta je in ongeveer 15 minuten in het centrum van Rotterdam.
Voor gezinnen met kinderen is er ruime keuze op het gebied van onderwijs. Nieuwerkerk telt maar liefst zeven basisscholen, elk met een eigen onderwijsvisie, zoals de Elimschool, Gideonschool, Montessorischool en de Prins Willem Alexanderschool. Ook voortgezet onderwijs is aanwezig, met twee middelbare scholen: het openbare Thorbecke en het christelijke Comenius College.


Gebruiksoppervlakte woningen:
De Meetinstructie is gebaseerd op de NEN2580. De Meetinstructie is bedoeld om een meer eenduidige manier van meten toe te passen voor het geven van een indicatie van de gebruiksoppervlakte. De Meetinstructie sluit verschillen in meetuitkomsten niet volledig uit, door bijvoorbeeld interpretatieverschillen, afrondingen of beperkingen bij het uitvoeren van de meting.

Rechtsgeldige koopovereenkomst pas ná ondertekening:
Een mondelinge overeenstemming tussen de particuliere verkoper en de particuliere koper is niet rechtsgeldig. Met andere woorden: er is geen koop. Er is pas sprake van een rechtsgeldige koop als de particuliere verkoper en de particuliere koper de koopovereenkomst hebben ondertekend. Dit vloeit voort uit artikel 7:2 Burgerlijk Wetboek. Een bevestiging van de mondelinge overeenstemming per e-mail of een toegestuurd concept van de koopovereenkomst wordt overigens niet gezien als een ‘ondertekende koopovereenkomst’.

Van der Panne woning- & bedrijfsmakelaardij is de makelaar van de verkoper. Neem uw eigen NVM-makelaar mee, voor goed advies bij de aankoop van uw nieuwe woning!

Lees de volledige omschrijving

Kenmerken

Overdracht

Status Verkocht
Aanvaarding In overleg

Bouwvorm

Soort object Woonhuis
Soort woning Villa
Type woning Vrijstaande woning
Bouwjaar 2009
Bouwvorm Bestaande bouw
Ligging Aan water, aan een rustige weg, in een woonwijk

Indeling

Woonoppervlakte 229 m²
Perceeloppervlakte 702 m²
Inhoud 745 m³
Aantal woonlagen 2

Energie

Energieklasse A
Energie einddatum maandag 7 mei 2035
Isolatie Volledig geïsoleerd
Warmwater Cv ketel
Verwarming Cv ketel

Buitenruimte

Tuin Tuin rondom
Hoofdtuin Tuin rondom
Achterom Ja
Kwaliteit tuin Verzorgd

Bergruimte

Garage Aangebouwd steen
Voorzieningen Verwarming, elektra

Parkeergelegenheid

Voorzieningen Op eigen terrein

Dak

Dak Plat dak

Overig

Permanente bewoning Ja
Onderhoud binnen Uitstekend
Onderhoud buiten Uitstekend
Huidig gebruik Woonruimte
Huidige bestemming Woonruimte

Voorzieningen

Voorzieningen Mechanische ventilatie, tv kabel, buitenzonwering, airconditioning

Kadastrale gegevens

Gemeente Nieuwerkerk aan den IJssel
Sectie E
Perceelnummer 904
Oppervlakte 702 m²
Eigendomssituatie Volle eigendom
VanderPanne-HR-6621
Interesse in deze woning?

Esmille helpt u graag

Delen

Vergelijkbare objecten

Waterschapsweg 12

Nieuwerkerk aan den IJssel Vraagprijs: € 1.195.000,- k.k.
  • 2090 m2
  • 237 m2
  • 4 kamers

Italiaansezoom 2

Nieuwerkerk aan den IJssel Vraagprijs: € 1.195.000,- k.k.
  • 431 m2
  • 226 m2
  • 6 kamers

Spechtendaal 11

Nieuwerkerk aan den IJssel Vraagprijs: € 485.000,- k.k.
  • 119 m2
  • 107 m2
  • 5 kamers

Dorpsstraat 18

Nieuwerkerk aan den IJssel Vraagprijs: € 895.000,- k.k.
  • 212 m2
  • 5 kamers

Klein Hitland 280

Nieuwerkerk aan den IJssel Vraagprijs: € 285.000,- k.k.
  • 452 m2
  • 47 m2
  • 2 kamers

Veenmos 5

Nieuwerkerk aan den IJssel Vraagprijs: € 465.000,- k.k.
  • 157 m2
  • 112 m2
  • 5 kamers

Gouwe 1

Nieuwerkerk aan den IJssel Vraagprijs: € 795.000,- k.k.
  • 331 m2
  • 183 m2
  • 5 kamers

Rijskade 9

Nieuwerkerk aan den IJssel Vraagprijs: € 695.000,- k.k.
  • 450 m2
  • 168 m2
  • 4 kamers

Klein Hitland 125

Nieuwerkerk aan den IJssel Vraagprijs: € 365.000,- k.k.
  • 688 m2
  • 112 m2
  • 3 kamers
fundawonen-logo
logo
VGC_keurmerk_nw_zwart-grijs
nwwi
logo_NVM_business_staand_CMYK