Land Kanaän 11

Zevenhuizen Vraagprijs: € 675.000,- k.k.
  • Woonoppervlakte 149 m2
  • Perceeloppervlakte 128 m2
  • Aantal slaapkamers 4
  • Bouwjaar 2017

Omschrijving

Superleuke hofwoning, met vrij uitzicht aan voor- en achterzijde, gebouwd in de stijl van de historische boerderij die op dit landgoed stond. Deze specifieke architectuurstijl is terug te zien in de statige entrees, de fraaie rollagen, de metselwerk banden en het boerenvlechtwerk in het metselwerk. De aan de achterzijde uitgebouwde woning is voorzien van een ruime woonkamer annex keuken, 4 slaapkamers (op dit moment 3) en twee badkamers welke eind 2024 zijn geplaatst.

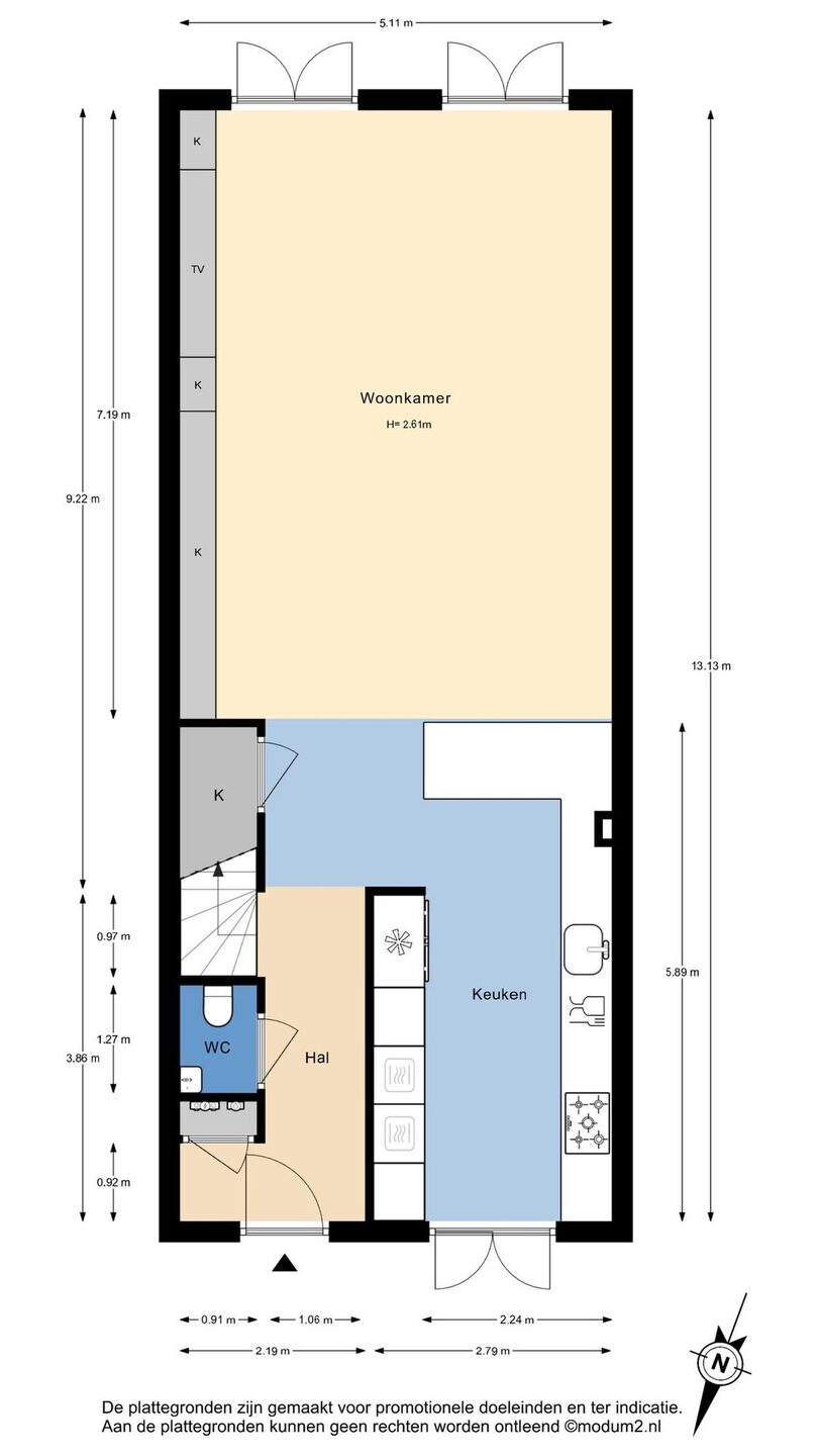
Begane grond:
Entree, meterkast, toilet en trap naar 1e verdieping. Royale uitgebouwde woonkamer met aan de voorzijde de luxe open keuken.

Vanuit de bouw is de woning uitgebouwd waardoor er een riante living is ontstaan. Deze living is voorzien van twee dubbele deuren, die voorzien zijn van op maat gemaakte plissé horren, met toegang tot de heerlijke tuin aan het water. De gehele verdieping is voorzien van een eiken lamel vloer met vloerverwarming en alle wanden en het plafond zijn gestuukt. Pronkstuk is de prachtige maatwerk kastenwand waar de televisie in is geïntegreerd.

Aan de voorzijde van de woning treft u de fraaie keuken met aan de ene zijde een grote kastenwand met royale koelkast en vriezer, combi-oven magnetron en oven. Aan de andere zijde is er een 5-pits gaskookplaat met RVS afzuigkap, het spoelgedeelte met Quooker kraan en de vaatwasser. De wandtegels in de keuken zijn in de zomer van 2024 geplaatst. Leuk detail zijn de dubbele deuren aan deze zijde die lekker open kunnen. Ideaal met kinderen die op het voorterrein heerlijk kunnen spelen.

De achtertuin is gelegen op het zuiden en biedt u heerlijk veel zonuren. Aan de achterzijde grenst deze ook nog aan het water.

1e verdieping:
Overloop met toegang tot de drie slaapkamers en de luxe badkamer. Aan de voorzijde van de woning treft u op dit moment één slaapkamer, dit waren er twee en dit is eenvoudig weer terug te brengen. Aan de achterzijde van de woning een royale master bedroom. Alle slaapkamers zijn voorzien van een eiken lamel vloer en beide slaapkamers zijn voorzien van een vaste kastenwand.

In het midden van de woning een zeer fraaie badkamer met badkamermeubel, een vrijstaand bad, een hangend toilet en een inloopdouche met stortdouche. De wanden zijn afgewerkt met “Tadelakt” in combinatie met fraai tegelwerk. Tadelakt is waterbestendig traditioneel stucwerk. Hierdoor heeft de badkamer een warme, authentieke uitstraling gekregen. De badkamer is voorzien van vloerverwarming en is eind 2024 geplaatst.

2e verdieping:
Grote open ruimte voorzien van een groot dakraam. Deze ruimte is in gebruik als vierde slaapkamer (op dit moment derde slaapkamer). Tevens is hier een aparte technische ruimte waarin de CV installatie, de WTW installatie en de aansluiting voor de wasmachine en droger is gerealiseerd. Ook deze verdieping is voorzien van een eiken lamel vloer en een eigen badkamer met ligbad, toilet en badkamermeubel.

Bijzonderheden:
De woning is gelegen op ’t Land Kanaan. Dit is een gemeenschappelijk prive terrein waar een VVE is opgericht voor onderhoud van het terrein. De kosten hiervoor zijn € 30,- per maand. Hier kunnen kinderen onbezorgd buiten spelen. Voor bewoners is er parkeerruimte op het prive terrein. Los van de woning is er nog een ruime houten berging voor het stallen van uw fietsen en opbergen van andere zaken. De kozijnen zijn volledig van kunststof en voorzien van horren. De woning is tevens voorzien van zonnepanelen.

Zevenhuizen is een karakteristiek dorp in de gemeente Zuidplas, gelegen aan de oostrand van Rotterdam. Ondanks de kleine omvang biedt het dorp verrassend veel voor wie houdt van rust, natuur en lekker eten.

Direct aan de Zevenhuizerplas liggen volop mogelijkheden voor watersport, zwemmen, suppen of gewoon genieten van het zonnetje. Aan het water vind je Flow Food & Adventure, een populaire plek voor een ontspannen lunch of borrel met uitzicht op het meer. Een aanrader is ook de wandel- en fietsroute langs de molenviergang van Zevenhuizen, waar je volop kunt genieten van het typische Hollandse polderlandschap.

Zevenhuizen heeft diverse uitstekende eetgelegenheden, zoals Borgo Antico, Brasserie ’t Graanhuys en La Baraque. Voor gezinnen is het een fijne plek: kinderen kunnen zich vermaken bij boerderij De Koeienstal of natuurspeeltuin Hennip Gaarde.

De warme dorpssfeer maakt Zevenhuizen bijzonder; mensen groeten elkaar op straat en evenementen zoals de jaarlijkse braderie en dorpsfeesten zorgen voor een hechte gemeenschap.

Op het gebied van onderwijs zijn er vier basisscholen: De Eendragt en De Nessevliet (beide protestants-christelijk), Koningskwartier en de openbare school ’t Reigerbos. Middelbare scholen zijn er niet in het dorp zelf, maar in de omliggende plaatsen zijn er voldoende opties.

Gebruiksoppervlakte woningen:
De Meetinstructie is gebaseerd op de NEN2580. De Meetinstructie is bedoeld om een meer eenduidige manier van meten toe te passen voor het geven van een indicatie van de gebruiksoppervlakte. De Meetinstructie sluit verschillen in meetuitkomsten niet volledig uit, door bijvoorbeeld interpretatieverschillen, afrondingen of beperkingen bij het uitvoeren van de meting.

Deze informatie is door ons met de nodige zorgvuldigheid samengesteld. Onzerzijds wordt echter geen enkele aansprakelijkheid aanvaard voor enige onvolledigheid, onjuistheid of anderszins, dan wel de gevolgen daarvan. Alle opgegeven maten en oppervlakten zijn indicatief.

Rechtsgeldige koopovereenkomst pas ná ondertekening:
Een mondelinge overeenstemming tussen de particuliere verkoper en de particuliere koper is niet rechtsgeldig. Met andere woorden: er is geen koop. Er is pas sprake van een rechtsgeldige koop als de particuliere verkoper en de particuliere koper de koopovereenkomst hebben ondertekend. Dit vloeit voort uit artikel 7:2 Burgerlijk Wetboek. Een bevestiging van de mondelinge overeenstemming per e-mail of een toegestuurd concept van de koopovereenkomst wordt overigens niet gezien als een ‘ondertekende koopovereenkomst’.

Van der Panne woning- & bedrijfsmakelaardij is de makelaar van de verkoper. Neem uw eigen NVM-makelaar mee, voor goed advies bij de aankoop van uw nieuwe woning!

Lees de volledige omschrijving

Kenmerken

Overdracht

Status Onder optie
Aanvaarding In overleg

Bouwvorm

Soort object Woonhuis
Soort woning Eengezinswoning
Type woning Tussenwoning
Bouwjaar 2017
Bouwvorm Bestaande bouw
Ligging Aan water, aan een rustige weg, in een woonwijk

Indeling

Woonoppervlakte 149 m²
Perceeloppervlakte 128 m²
Inhoud 520 m³
Aantal woonlagen 3

Energie

Energieklasse A
Energie einddatum vrijdag 13 augustus 2027
Isolatie Volledig geïsoleerd
Warmwater Cv ketel
Verwarming Cv ketel

Buitenruimte

Tuin Achtertuin, voortuin
Hoofdtuin Achtertuin
Oppervlakte hoofdtuin 50 m²
Ligging hoofdtuin Zuid
Achterom Nee
Kwaliteit tuin Verzorgd

Bergruimte

Garage Geen garage
Schuur / Berging Vrijstaand hout

Parkeergelegenheid

Voorzieningen Op eigen terrein

Dak

Dak Zadeldak

Overig

Permanente bewoning Ja
Onderhoud binnen Uitstekend
Onderhoud buiten Uitstekend
Huidig gebruik Woonruimte
Huidige bestemming Woonruimte

Voorzieningen

Voorzieningen Mechanische ventilatie, tv kabel, zonnepanelen

Kadastrale gegevens

Gemeente Zevenhuizen
Sectie C
Perceelnummer 4997
Oppervlakte 128 m²
Eigendomssituatie Volle eigendom
VanderPanne-HR-6889
Interesse in deze woning?

Kirsten helpt u graag

Delen

Vergelijkbare objecten

Koningsoever 3

Zevenhuizen Vraagprijs: € 999.000,- k.k.
  • 340 m2
  • 225 m2
  • 6 kamers

Dorpsstraat 83

Zevenhuizen Vraagprijs: € 625.000,- k.k.
  • 198 m2
  • 5 kamers

Middelweg 4 f

Zevenhuizen Vraagprijs: € 2.395.000,- k.k.
  • 1850 m2
  • 300 m2
  • 6 kamers

Hennipdreef 13

Zevenhuizen Vraagprijs: € 1.075.000,- k.k.
  • 1465 m2
  • 175 m2
  • 4 kamers
fundawonen-logo
logo
VGC_keurmerk_nw_zwart-grijs
nwwi
logo_NVM_business_staand_CMYK