Aart van der Leeuwstraat 43

Rotterdam Vraagprijs: € 415.000,- k.k.
Verkocht
  • Woonoppervlakte 114 m2
  • Perceeloppervlakte 115 m2
  • Aantal slaapkamers 4
  • Bouwjaar 1983

Omschrijving

In een rustige en kindvriendelijke omgeving én op eigen grond ligt deze ruime eengezinswoning met zonnige tuin. Bovendien is de woning deels voorzien van kunststof kozijnen. De woning beschikt verder over vier slaapkamers, een badkamer, een open keuken en een ruime woonkamer. Gesitueerd in een plezierige woonomgeving, op korte afstand van het recreatiegebied Zevenhuizerplas en de metrohalte Nieuw Verlaat om de hoek. Ook diverse uitvalswegen, scholen, sportfaciliteiten en het grote winkelcentrum Woonmall Alexandrium zijn in de directe omgeving aanwezig.

Persoonlijke tekst eigenaar:
We hebben hier met plezier ruim 40 jaar in een rustige omgeving gewoond met alle voorzieningen rondom in de wijk.
Nu is het tijd om het, voor ons nu te groot geworden huis, in te ruilen voor een appartement en we hopen dat nieuwe eigenaren hier een fijne toekomst tegemoet gaan.

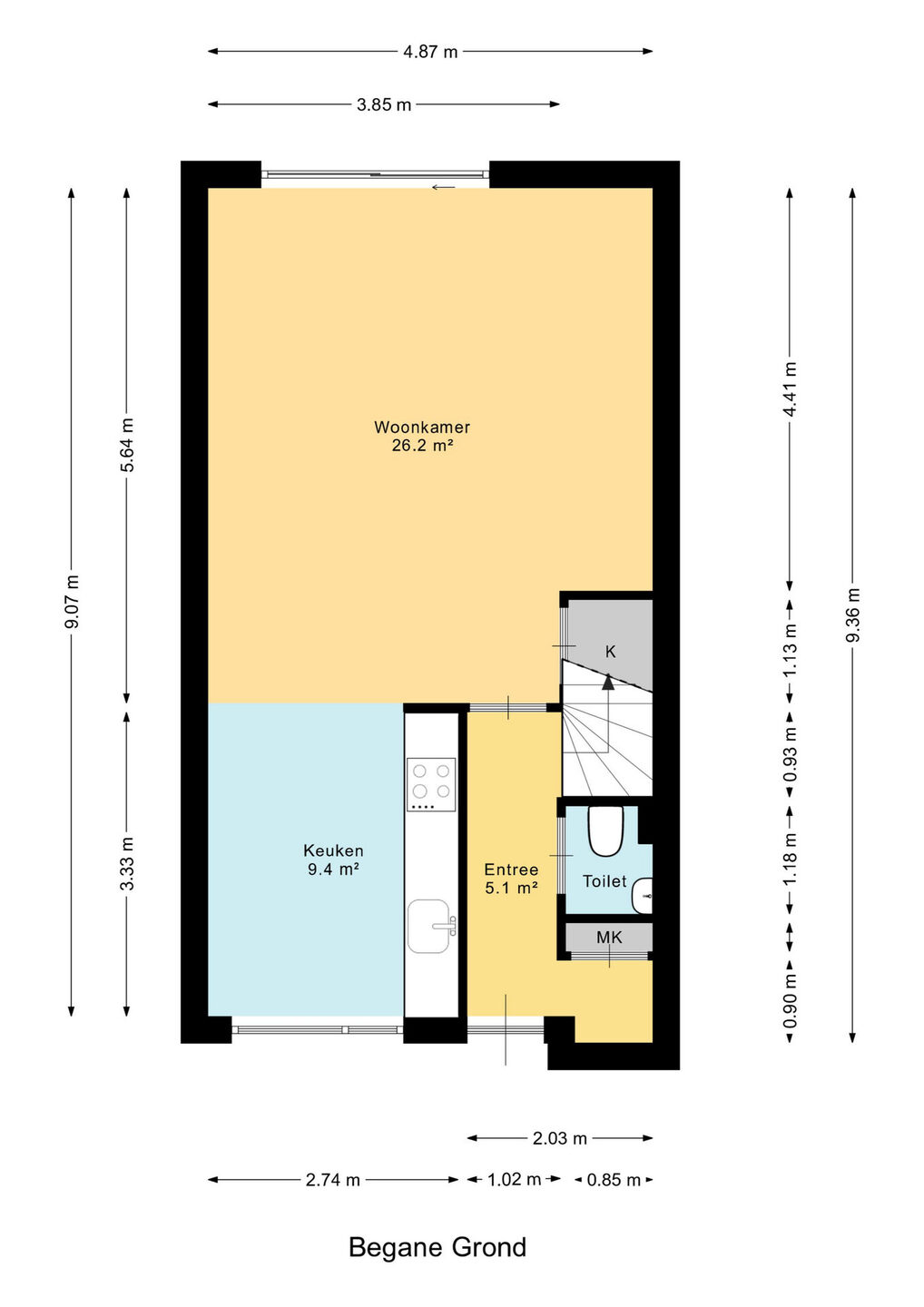
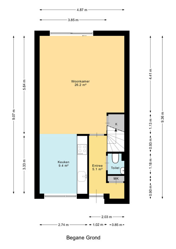
Begane grond:
Je komt binnen in de entree waarbij de hal je leidt naar de meterkast, het toilet met fonteintje, de woonkamer en de trap naar de eerste verdieping. De woonkamer is door de aluminium schuifpui voorzien van veel daglicht. Bovendien geeft deze schuifpui toegang tot de achtertuin van meer dan 10 meter lang. Bovendien is de achtertuin gelegen op het zuidwesten. Hier kan je optimaal genieten van de zon. Verder is de woonkamer voorzien van een ruime trapkast. De open keuken aan de voorzijde van de woning is voorzien van gemakken waaronder een oven, een keramische kookplaat, een afzuigkap en een aparte koelkast en vriezer.

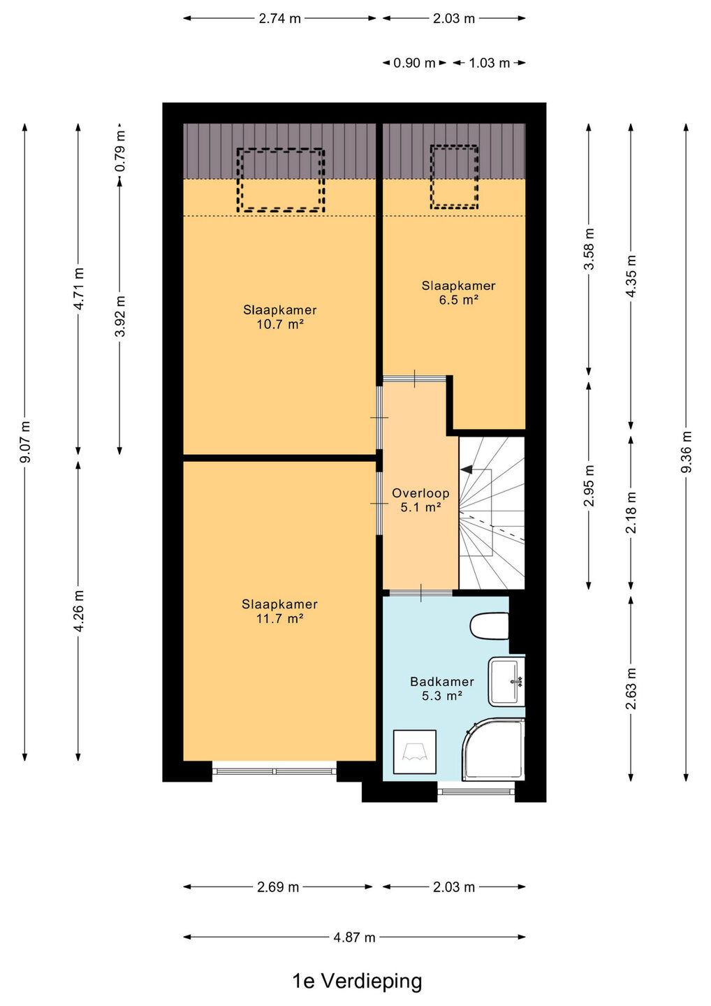
1e verdieping:
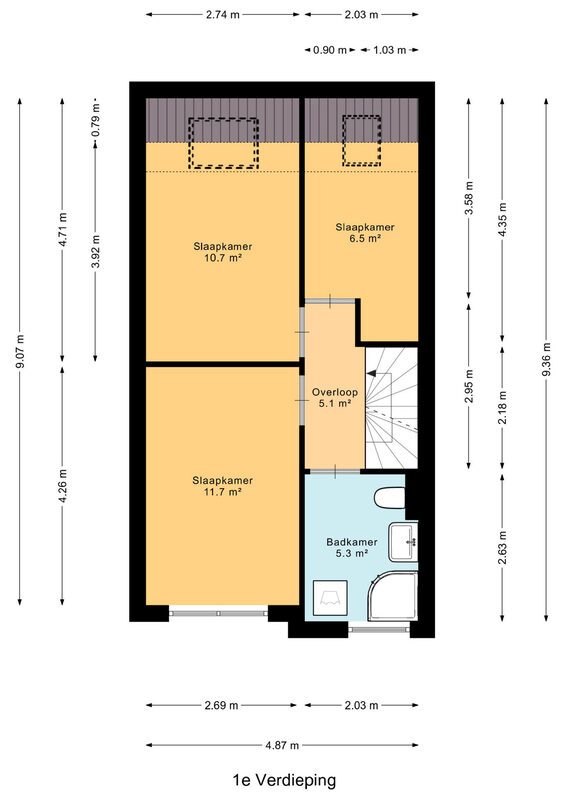
De overloop geeft toegang tot 3 slaapkamers en de badkamer. De grootste slaapkamer is gelegen aan de voorzijde, evenals de badkamer. De badkamer is voorzien van een toilet, een douche, een wastafel met meubel, de wasmachineaansluiting en een kiepraam, voor natuurlijk daglicht. De andere twee slaapkamers zijn gelegen aan de achterzijde en zijn beide voorzien van een zowel houten als kunststof dakraam.

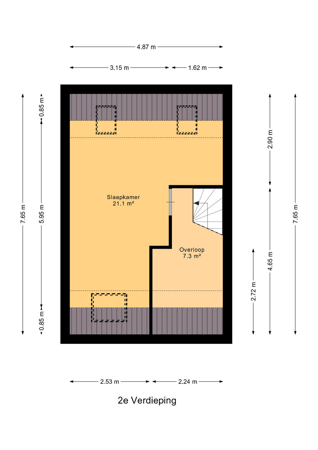
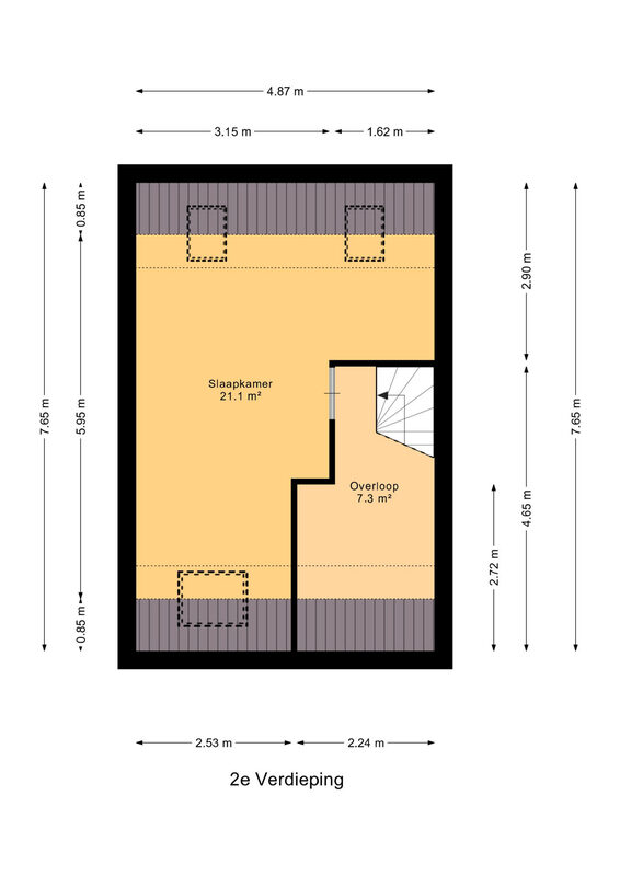
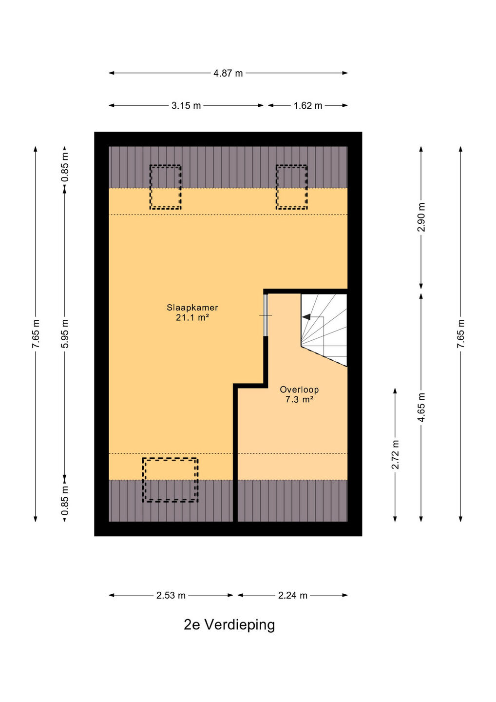
2e verdieping:
De tweede verdieping waarborgt een grote open ruimte met twee kunststof dakramen met verduistering aan de achterzijde en een groot houten dakraam aan de voorzijde. De mechanische ventilatie unit hangt op de overloop.

Bijzonderheden:
De woning is deels voorzien van kunststof kozijnen en deels voorzien van hardhouten kozijnen. De woning is gelegen op eigen grond.

Afmetingen:
Zie de (interactieve) plattegronden voor de afmetingen van de woning.

Bouwjaar : 1983
Inhoud : 388 m³
Gebruiksoppervlakte wonen : 114 m²
Overige inpandige ruimte : 0 m²
Gebouwgebonden buitenruimte : 0 m²
Externe bergruimte : 8 m²

Gebruiksoppervlakte woningen:
De Meetinstructie is gebaseerd op de NEN2580. De Meetinstructie is bedoeld om een meer eenduidige manier van meten toe te passen voor het geven van een indicatie van de gebruiksoppervlakte. De Meetinstructie sluit verschillen in meetuitkomsten niet volledig uit, door bijvoorbeeld interpretatieverschillen, afrondingen of beperkingen bij het uitvoeren van de meting.

Rechtsgeldige koopovereenkomst pas ná ondertekening:
Een mondelinge overeenstemming tussen de particuliere verkoper en de particuliere koper is niet rechtsgeldig. Met andere woorden: er is geen koop. Er is pas sprake van een rechtsgeldige koop als de particuliere verkoper en de particuliere koper de koopovereenkomst hebben ondertekend. Dit vloeit voort uit artikel 7:2 Burgerlijk Wetboek. Een bevestiging van de mondelinge overeenstemming per e-mail of een toegestuurd concept van de koopovereenkomst wordt overigens niet gezien als een ‘ondertekende koopovereenkomst’.

Van der Panne woning- & bedrijfsmakelaardij is de makelaar van de verkoper. Neem uw eigen NVM-makelaar mee, voor goed advies bij de aankoop van uw nieuwe woning!

Lees de volledige omschrijving

Kenmerken

Overdracht

Status Verkocht
Aanvaarding In overleg

Bouwvorm

Soort object Woonhuis
Soort woning Eengezinswoning
Type woning Tussenwoning
Bouwjaar 1983
Bouwvorm Bestaande bouw
Ligging Aan een rustige weg, in een woonwijk

Indeling

Woonoppervlakte 114 m²
Perceeloppervlakte 115 m²
Inhoud 388 m³
Aantal woonlagen 3

Energie

Energieklasse C
Energie einddatum woensdag 21 augustus 2030
Isolatie Dubbel glas
Warmwater Stadsverwarming
Verwarming Stadsverwarming

Buitenruimte

Tuin Achtertuin, voortuin
Hoofdtuin Achtertuin
Oppervlakte hoofdtuin 52 m²
Ligging hoofdtuin Zuid-west
Achterom Ja
Kwaliteit tuin Verzorgd

Bergruimte

Garage Geen garage
Schuur / Berging Vrijstaand hout

Parkeergelegenheid

Voorzieningen Openbaar parkeren

Dak

Dak Zadeldak

Overig

Permanente bewoning Ja
Onderhoud binnen Goed
Onderhoud buiten Goed
Huidig gebruik Woonruimte
Huidige bestemming Woonruimte

Voorzieningen

Voorzieningen Mechanische ventilatie, tv kabel, buitenzonwering

Kadastrale gegevens

Gemeente Rotterdam
Sectie BA
Perceelnummer 1193
Oppervlakte 115 m²
Eigendomssituatie Volle eigendom
VanderPanne-HR-6889
Interesse in deze woning?

Kirsten helpt u graag

Delen

Vergelijkbare objecten

Kretalaan 59

Rotterdam Vraagprijs: € 1.495.000,- k.k.
  • 188 m2
  • 213 m2
  • 5 kamers
Homepage-dorpen-Nieuwerkerk-aan-den-IJssel-1
Meer weten over Rotterdam
fundawonen-logo
logo
VGC_keurmerk_nw_zwart-grijs
nwwi
logo_NVM_business_staand_CMYK