Jac. Jongertstraat 27

Rotterdam Vraagprijs: € 565.000,- k.k.
Verkocht
  • Woonoppervlakte 134 m2
  • Perceeloppervlakte 179 m2
  • Aantal slaapkamers 4
  • Bouwjaar 2003

Omschrijving

Laat u verrassen door deze royale, uitgebouwde woning met maar liefst vier slaapkamers, verdeeld over twee verdiepingen! Zowel aan de voor- als aan de achterzijde beschikt de woning over stijlvolle dubbele openslaande deuren, wat zorgt voor een prachtige verbinding tussen binnen en buiten. De moderne, luxe open keuken maakt het geheel compleet. De woning is gelegen in de gewilde wijk Nesselande, op een toplocatie vlakbij de bruisende boulevard met het strand, gezellige winkels, scholen, kinderopvang, openbaar vervoer, uitgestrekte recreatiegebieden en uitstekende uitvalswegen.

Persoonlijke tekst eigenaar:
Het is een heerlijk ruim en licht huis, waar je altijd in de zon kunt zitten. De omgeving is super met alle voorzieningen, en binnen 5 minuten wandelen ben je in de natuur.

Begane grond:
Entree met toegang tot het toilet, de meterkast en de trap naar de eerste verdieping. Vanuit de hal betreedt u de ruime open keuken, die aan de voorzijde van de woning is gelegen. Vanuit hier heeft u, door middel van openslaande deuren, ook toegang tot de voortuin. De keuken is voorzien van diverse apparatuur, zoals onder andere een Quooker, een oven en een inductiekookplaat. Vanuit de keuken heeft u toegang tot de zeer ruime woonkamer, die door de hoekligging van de woning ook nog een raam aan de zijkant heeft. Samen met de openslaande deuren naar de achtertuin zorgt dit voor veel lichtinval en een ruimtelijk gevoel.

De tuin is fraai aangelegd en beschikt over twee bergingen achter in de tuin. Er is tevens een achterom aanwezig.

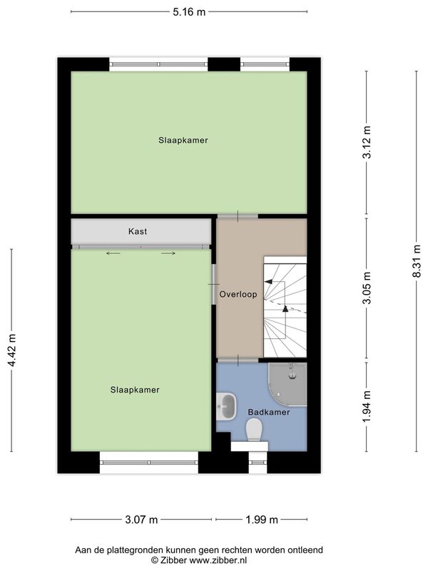
1e verdieping:
Op de eerste verdieping heeft u via de overloop toegang tot twee slaapkamers en de badkamer die voorzien is van een douche een wastafel en een toilet. De slaapkamer aan de voorzijde van de woning is voorzien van een inbouwkast. Tevens is er een tweede slaapkamer gelegen aan de achterzijde van de woning.

2e verdieping:
Op de tweede verdieping zijn nog twee slaapkamers gelegen. Hier bevindt zich tevens de mechanische ventilatie en de aansluiting voor de wasmachine en droger. Aan beide zijden van de woning zijn dakramen geplaatst.

Bijzonderheden:
De woning is gelegen op erfpachtgrond, waarbij de erfpacht is afgekocht tot en met 2052.

Rotterdam-Nesselande is een moderne en levendige wijk, prachtig gelegen aan de Zevenhuizerplas. Deze wijk combineert stedelijk wonen met een ontspannen strandgevoel. Met een brede boulevard, het stadsstrand en diverse recreatiemogelijkheden is Nesselande een geliefde plek voor bewoners en bezoekers.
Nesselande beschikt over vier basisscholen met verschillende onderwijsvormen: een christelijke school, een openbare tweetalige basisschool, een daltonbasisschool en een vrijeschool. Voor middelbaar onderwijs zijn er in de nabije omgeving goede opties, zoals het Comenius College in Nieuwerkerk en het Emmaus College in Rotterdam.
Op culinair gebied zijn Guay, Brasserie Lookies en L’Italiano populaire hotspots. Voor de lekkerste koffie is er Mamamo! Een fijne plek waar ouders kunnen ontspannen terwijl de kinderen spelen.
De wijk is uitstekend bereikbaar via het metrostation Nesselande, dat snelle verbindingen biedt naar Rotterdam centrum en omliggende gebieden. Daarnaast kent Nesselande diverse sportclubs, waardoor er volop mogelijkheden zijn om actief te zijn.
Kortom, Nesselande biedt voor ieder wat wils: een moderne, groene en kindvriendelijke woonomgeving met goede voorzieningen, leuke eetgelegenheden en volop recreatie.

Gebruiksoppervlakte woningen:
De Meetinstructie is gebaseerd op de NEN2580. De Meetinstructie is bedoeld om een meer eenduidige manier van meten toe te passen voor het geven van een indicatie van de gebruiksoppervlakte. De Meetinstructie sluit verschillen in meetuitkomsten niet volledig uit, door bijvoorbeeld interpretatieverschillen, afrondingen of beperkingen bij het uitvoeren van de meting.

Rechtsgeldige koopovereenkomst pas ná ondertekening:
Een mondelinge overeenstemming tussen de particuliere verkoper en de particuliere koper is niet rechtsgeldig. Met andere woorden: er is geen koop. Er is pas sprake van een rechtsgeldige koop als de particuliere verkoper en de particuliere koper de koopovereenkomst hebben ondertekend. Dit vloeit voort uit artikel 7:2 Burgerlijk Wetboek. Een bevestiging van de mondelinge overeenstemming per e-mail of een toegestuurd concept van de koopovereenkomst wordt overigens niet gezien als een ‘ondertekende koopovereenkomst’.

Van der Panne woning- & bedrijfsmakelaardij is de makelaar van de verkoper. Neem uw eigen NVM-makelaar mee, voor goed advies bij de aankoop van uw nieuwe woning!

Lees de volledige omschrijving

Kenmerken

Overdracht

Status Verkocht
Aanvaarding In overleg

Bouwvorm

Soort object Woonhuis
Soort woning Eengezinswoning
Type woning Eindwoning
Bouwjaar 2003
Bouwvorm Bestaande bouw

Indeling

Woonoppervlakte 134 m²
Perceeloppervlakte 179 m²
Inhoud 477 m³
Aantal woonlagen 3

Energie

Energieklasse A
Energie einddatum woensdag 20 november 2030
Warmwater Stadsverwarming
Verwarming Stadsverwarming

Buitenruimte

Tuin Achtertuin, voortuin
Hoofdtuin Achtertuin
Oppervlakte hoofdtuin 63 m²
Ligging hoofdtuin West
Achterom Ja

Bergruimte

Garage Geen garage
Schuur / Berging Vrijstaand hout

Parkeergelegenheid

Voorzieningen Openbaar parkeren

Dak

Dak Zadeldak

Overig

Permanente bewoning Ja
Onderhoud binnen Goed
Onderhoud buiten Goed
Huidig gebruik Woonruimte
Huidige bestemming Woonruimte

Voorzieningen

Voorzieningen Mechanische ventilatie, tv kabel, buitenzonwering, dakraam, glasvezel kabel

Kadastrale gegevens

Gemeente Rotterdam
Sectie BC
Perceelnummer 975
Oppervlakte 179 m²
Eigendomssituatie Eigendom belast met erfpacht
VanderPanne-HR-6889
Interesse in deze woning?

Kirsten helpt u graag

Delen

Vergelijkbare objecten

Kretalaan 59

Rotterdam Vraagprijs: € 1.495.000,- k.k.
  • 188 m2
  • 213 m2
  • 5 kamers
Homepage-dorpen-Nieuwerkerk-aan-den-IJssel-1
Meer weten over Rotterdam
fundawonen-logo
logo
VGC_keurmerk_nw_zwart-grijs
nwwi
logo_NVM_business_staand_CMYK