Kanselierstuin 16

Zevenhuizen Vraagprijs: € 575.000,- k.k.
Verkocht
  • Woonoppervlakte 116 m2
  • Perceeloppervlakte 169 m2
  • Aantal slaapkamers 4
  • Bouwjaar 2018

Omschrijving

Instapklaar wonen in een moderne hoekwoning in de populaire wijk het Koningskwartier! Deze sfeervolle woning, gebouwd in 2018, combineert een uitgebouwde woonkamer, luxe keuken en zonnige tuin met het gemak van kunststof kozijnen, aircondtioning en maar liefst 11 zonnepanelen. Dankzij de extra brede tuin door de hoekligging, drie slaapkamers en een royale zolder met volop mogelijkheden is dit een ideale gezinswoning waar je zo in kunt trekken.
Op loopafstand zijn meerdere speeltuintjes te vinden. Het centrum van Zevenhuizen, waar zich de supermarkt, winkels, en restaurants bevinden, ligt op slechts vijf minuten fietsafstand. Ook sportaccommodaties, scholen, natuurgebied ‘De Rottemeren’ en uitvalswegen liggen in de directe nabijheid.

Persoonlijke tekst eigenaar:
Met veel plezier hebben wij de afgelopen jaren in deze fijne hoekwoning uit 2018 gewoond. Wat ons meteen aansprak, waren de charmante details zoals het beton rondom de ramen en het ornament boven de deur – een knipoog naar vroeger, maar met het comfort van nu.

De wijk is heerlijk rustig en toch sta je zo in het dorp van Zevenhuizen, of in Nesselande en Waddinxveen. Voor ons jonge gezin was het ideaal: overal speeltuintjes, gezellige buren en een veilige omgeving. De buren zijn écht bijzonder lief en betrokken, wat het wonen hier extra waardevol maakt.

In de zomer genieten we volop van de tuin en de veranda – lange avonden buiten met een drankje, terwijl de kinderen nog even spelen. Dit huis heeft ons veel mooie herinneringen gebracht, en we hopen dat de volgende bewoners er net zo gelukkig zullen zijn als wij.

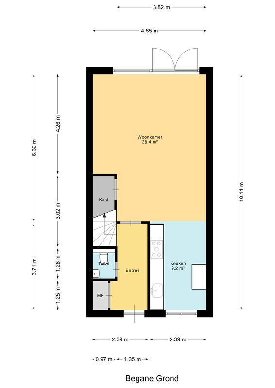
Begane grond:
Entree met meterkast, toilet met fonteintje en trap naar de verdieping. De lichte woonkamer beschikt over een praktische trapkast en is aan de achterzijde uitgebouwd met 1,20 meter, waardoor extra leefruimte is ontstaan. De open keuken aan de voorzijde is van alle gemakken voorzien: oven, koel-vriescombinatie, Quooker, gaskookplaat, afzuiging en vaatwasser. De begane grond beschikt over een moderne PVC vloer in visgraatmotief, welke in 2022 is gelegd.

Vanuit de woonkamer is er toegang tot de zonnige tuin met een zeer ruime overkapping, berging en extra breedte door de hoekligging.

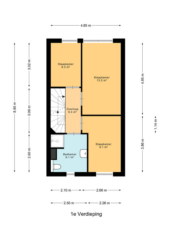
1e verdieping:
Via de overloop zijn drie slaapkamers en de badkamer bereikbaar. Er is een slaapkamer gelegen aan de voorzijde, evenals de badkamer. De badkamer beschikt over een inloopdouchte, wastafelmeubel, designradiator en toilet. Verder zijn er twee slaapkamers gelegen aan de achterzijde, waarvan een kamer beschikt over airconditionig (2023).

2e verdieping:
Op de ruime zolderverdieping vind je de CV-installatie, mechanische ventilatie, de omvormer van de 10 zonnepanelen en aansluitingen voor de wasmachine en droger. Deze open ruimte biedt veel mogelijkheden, bijvoorbeeld als extra slaapkamer, werkkamer of hobbyruimte.

Bijzonderheden:
- De woning is gelegen op eigen grond
- Uitgebouwde woonkamer
- 11 zonnepanelen
- Kunststof kozijnen
- Hoekwoning met extra brede tuin
- Zonnige achtertuin, gelegen op het zuidoosten

Afmetingen:
Zie de (interactieve) plattegronden voor de afmetingen van de woning.

Gebruiksoppervlakte woningen:
De Meetinstructie is gebaseerd op de NEN2580. De Meetinstructie is bedoeld om een meer eenduidige manier van meten toe te passen voor het geven van een indicatie van de gebruiksoppervlakte. De Meetinstructie sluit verschillen in meetuitkomsten niet volledig uit, door bijvoorbeeld interpretatieverschillen, afrondingen of beperkingen bij het uitvoeren van de meting.

Deze informatie is door ons met de nodige zorgvuldigheid samengesteld. Onzerzijds wordt echter geen enkele aansprakelijkheid aanvaard voor enige onvolledigheid, onjuistheid of anderszins, dan wel de gevolgen daarvan. Alle opgegeven maten en oppervlakten zijn indicatief.

Rechtsgeldige koopovereenkomst pas ná ondertekening:
Een mondelinge overeenstemming tussen de particuliere verkoper en de particuliere koper is niet rechtsgeldig. Met andere woorden: er is geen koop. Er is pas sprake van een rechtsgeldige koop als de particuliere verkoper en de particuliere koper de koopovereenkomst hebben ondertekend. Dit vloeit voort uit artikel 7:2 Burgerlijk Wetboek. Een bevestiging van de mondelinge overeenstemming per e-mail of een toegestuurd concept van de koopovereenkomst wordt overigens niet gezien als een ‘ondertekende koopovereenkomst’.

Van der Panne woning- & bedrijfsmakelaardij is de makelaar van de verkoper. Neem uw eigen NVM-makelaar mee, voor goed advies bij de aankoop van uw nieuwe woning!

Lees de volledige omschrijving

Kenmerken

Overdracht

Status Verkocht
Aanvaarding In overleg

Bouwvorm

Soort object Woonhuis
Soort woning Eengezinswoning
Type woning Hoekwoning
Bouwjaar 2018
Bouwvorm Bestaande bouw
Ligging Aan een rustige weg, in een woonwijk

Indeling

Woonoppervlakte 116 m²
Perceeloppervlakte 169 m²
Inhoud 430 m³
Aantal woonlagen 3

Energie

Energieklasse A
Energie einddatum zaterdag 19 augustus 2028
Isolatie Volledig geïsoleerd, hr glas
Warmwater Cv ketel
Verwarming Cv ketel

Buitenruimte

Tuin Achtertuin, voortuin, zijtuin
Hoofdtuin Achtertuin
Oppervlakte hoofdtuin 54 m²
Ligging hoofdtuin Zuid-oost
Achterom Nee
Kwaliteit tuin Verzorgd

Bergruimte

Garage Geen garage
Schuur / Berging Vrijstaand hout

Parkeergelegenheid

Voorzieningen Openbaar parkeren

Dak

Dak Zadeldak

Overig

Permanente bewoning Ja
Onderhoud binnen Goed tot uitstekend
Onderhoud buiten Goed tot uitstekend
Huidig gebruik Woonruimte
Huidige bestemming Woonruimte

Voorzieningen

Voorzieningen Mechanische ventilatie, tv kabel, airconditioning, dakraam, zonnepanelen

Kadastrale gegevens

Gemeente Zevenhuizen
Sectie E
Perceelnummer 2196
Oppervlakte 169 m²
Eigendomssituatie Volle eigendom
VanderPanne-HR-6889
Interesse in deze woning?

Kirsten helpt u graag

Delen

Vergelijkbare objecten

Koningsoever 3

Zevenhuizen Vraagprijs: € 999.000,- k.k.
  • 340 m2
  • 225 m2
  • 6 kamers

Middelweg 4 f

Zevenhuizen Vraagprijs: € 2.395.000,- k.k.
  • 1850 m2
  • 300 m2
  • 6 kamers
fundawonen-logo
logo
VGC_keurmerk_nw_zwart-grijs
nwwi
logo_NVM_business_staand_CMYK