Marius Richtersstraat 14

Rotterdam Vraagprijs: € 645.000,- k.k.
Verkocht
  • Woonoppervlakte 158 m2
  • Perceeloppervlakte 162 m2
  • Aantal slaapkamers 4
  • Bouwjaar 2003

Omschrijving

Ruime en energiezuinige 4-onder-1-kapwoning (A+) in een rustige straat van Nesselande

In een rustige, kindvriendelijke straat in het geliefde Nesselande ligt deze ruime en goed onderhouden 4-onder-1-kapwoning. Met een woonoppervlakte van circa 158 m², een energielabel A+ en een prettige indeling is dit een ideale woning voor gezinnen en doorstromers die comfortabel en duurzaam willen wonen.

De woning combineert ruimte, licht en een fijne ligging op korte afstand van strand, winkels, scholen en openbaar vervoer.

Waarom wonen aan de Marius Richtersstraat 14?

- Ruime 4-onder-1-kapwoning
- Ca. 158 m² woonoppervlakte
- Gemiddeld 23m² groter dan de gemiddelde woning in Nesselande
- Woonkamer van circa 46 m²
- 2 Badkamers
- Eigen grond
- Energielabel A+
- lage energielasten
- Rustige en kindvriendelijke woonomgeving
- Kinderspeelplaats op korte afstand (+/- 100m)
- Nabij strand, boulevard en recreatiegebied
- Winkels, scholen en kinderopvang op korte afstand
- Goede bereikbaarheid richting Rotterdam en omliggende plaatsen

De wijk Nesselande is geliefd vanwege haar fijne woonomgeving, de vele voorzieningen en de ligging aan de Zevenhuizerplas. Op loop- of fietsafstand vindt u het strand met de boulevard, diverse horecagelegenheden en volop recreatiemogelijkheden. Daarnaast zijn scholen, sportverenigingen, speeltuinen en het winkelcentrum allemaal dichtbij. Met de metro of via de A20 bent u bovendien zo in hartje Rotterdam. Een heerlijke plek waar rust, ruimte en het stadse leven perfect samenkomen!

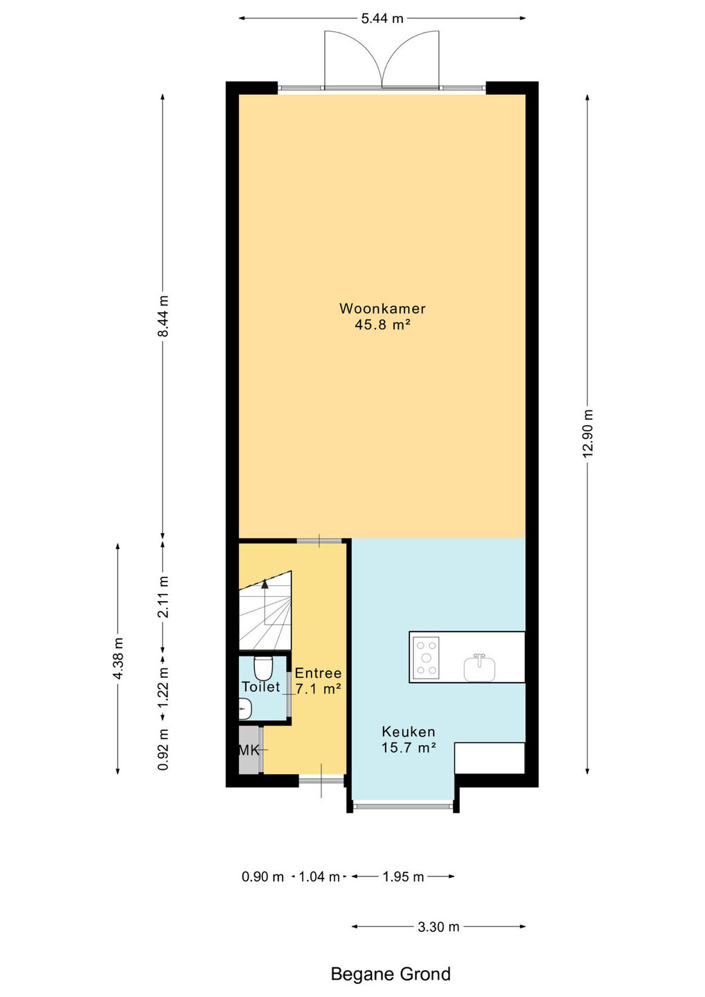
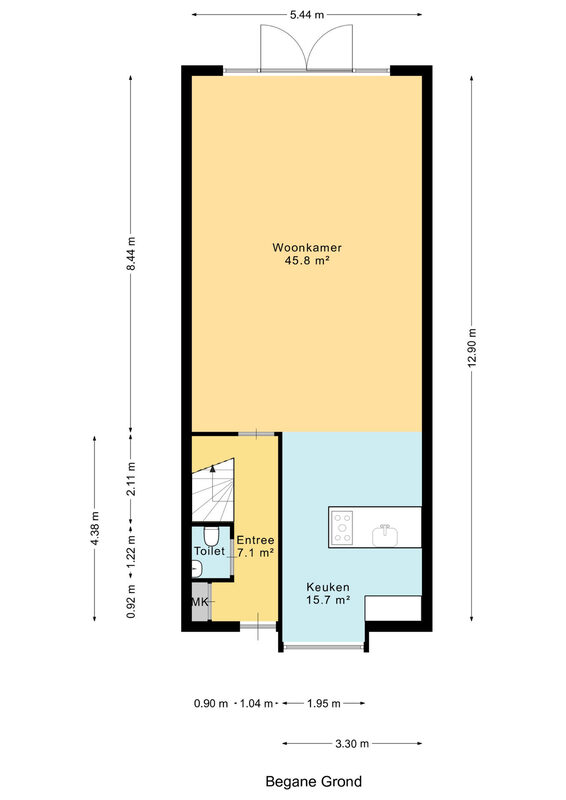
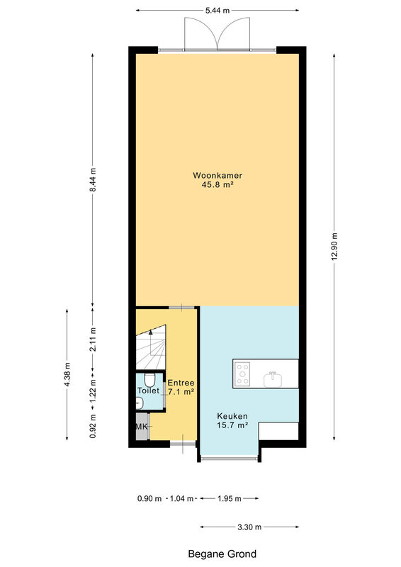
Begane grond:
Via de verzorgde voortuin bereikt u de entree met toilet (voorzien van fonteintje), meterkast en de trap naar de eerste verdieping. Vanuit de hal loopt u de royale woonkamer in, die bijna 8,5 meter diep is en beschikt over openslaande deuren naar de zonnige achtertuin. Dankzij de grote raampartijen is de woonkamer heerlijk licht. Aan de voorzijde vindt u de open SieMatic keuken met een groot kookeiland, een echte blikvanger! De SieMatic keuken is uitgerust met een inductiekookplaat, afzuigkap, koelkast (nieuw geplaatst in 2025), vriezer, combi-oven en voldoende kastruimte.

De tuin is gelegen op het zuiden en biedt daardoor de hele dag zon. Hier geniet u volop van rust en privacy. De tuin beschikt over een vrijstaande houten berging (ca. 10,6 m²) en een achterom.

Eerste verdieping:
De woning beschikt op dit moment over 3 slaapkamers maar hier is eenvoudig weer 4 slaapkamers van te maken. De elektra voor de extra slaapkamer is tijdens de bouw al voorzien in het plafond. De badkamer is uitgerust met een toilet, wastafel en ligbad met douchefunctie.

Tweede verdieping:
De tweede verdieping biedt een grote derde slaapkamer met twee dakramen, een aparte inloopkast en een tweede badkamer. Deze badkamer is voorzien van een wastafel, inloopdouche, aansluiting voor wasmachine en droger, en een dakraam voor extra ventilatie.

Vliering:
Via een vaste trap bereikt u de zolderverdieping met extra bergruimte.

Gebruiksoppervlakte woningen:
De Meetinstructie is gebaseerd op de NEN2580. De Meetinstructie is bedoeld om een meer eenduidige manier van meten toe te passen voor het geven van een indicatie van de gebruiksoppervlakte. De Meetinstructie sluit verschillen in meetuitkomsten niet volledig uit, door bijvoorbeeld interpretatieverschillen, afrondingen of beperkingen bij het uitvoeren van de meting.

Rechtsgeldige koopovereenkomst pas ná ondertekening:
Een mondelinge overeenstemming tussen de particuliere verkoper en de particuliere koper is niet rechtsgeldig. Met andere woorden: er is geen koop. Er is pas sprake van een rechtsgeldige koop als de particuliere verkoper en de particuliere koper de koopovereenkomst hebben ondertekend. Dit vloeit voort uit artikel 7:2 Burgerlijk Wetboek. Een bevestiging van de mondelinge overeenstemming per e-mail of een toegestuurd concept van de koopovereenkomst wordt overigens niet gezien als een ‘ondertekende koopovereenkomst’.

Van der Panne woning- & bedrijfsmakelaardij is de makelaar van de verkoper. Neem uw eigen NVM-makelaar mee, voor goed advies bij de aankoop van uw nieuwe woning!

Rotterdam-Nesselande is een moderne en levendige wijk, prachtig gelegen aan de Zevenhuizerplas. Deze wijk combineert stedelijk wonen met een ontspannen strandgevoel. Met een brede boulevard, het stadsstrand en diverse recreatiemogelijkheden is Nesselande een geliefde plek voor bewoners en bezoekers.

Nesselande beschikt over vier basisscholen met verschillende onderwijsvormen: een christelijke school, een openbare tweetalige basisschool, een daltonbasisschool en een vrijeschool. Voor middelbaar onderwijs zijn er in de nabije omgeving goede opties, zoals het Comenius College in Nieuwerkerk en het Emmaus College in Rotterdam.

Op culinair gebied zijn Guay, Brasserie Lookies en L’Italiano populaire hotspots. Voor de lekkerste koffie is er Mamamo! Een fijne plek waar ouders kunnen ontspannen terwijl de kinderen spelen.

De wijk is uitstekend bereikbaar via het metrostation Nesselande, dat snelle verbindingen biedt naar Rotterdam centrum en omliggende gebieden. Daarnaast kent Nesselande diverse sportclubs, waardoor er volop mogelijkheden zijn om actief te zijn.

Kortom, Nesselande biedt voor ieder wat wils: een moderne, groene en kindvriendelijke woonomgeving met goede voorzieningen, leuke eetgelegenheden en volop recreatie.

Lees de volledige omschrijving

Kenmerken

Overdracht

Status Verkocht
Aanvaarding In overleg

Bouwvorm

Soort object Woonhuis
Soort woning Eengezinswoning
Type woning Tussenwoning
Bouwjaar 2003
Bouwvorm Bestaande bouw
Ligging Aan een rustige weg, in een woonwijk

Indeling

Woonoppervlakte 158 m²
Perceeloppervlakte 162 m²
Inhoud 574 m³
Aantal woonlagen 4

Energie

Energieklasse A+
Energie einddatum maandag 5 november 2035
Isolatie Volledig geïsoleerd
Warmwater Stadsverwarming
Verwarming Stadsverwarming

Buitenruimte

Tuin Achtertuin, voortuin
Hoofdtuin Achtertuin
Oppervlakte hoofdtuin 50 m²
Ligging hoofdtuin Zuid
Achterom Ja
Kwaliteit tuin Verzorgd

Bergruimte

Garage Geen garage
Schuur / Berging Vrijstaand hout

Parkeergelegenheid

Voorzieningen Openbaar parkeren

Dak

Dak Zadeldak

Overig

Permanente bewoning Ja
Onderhoud binnen Goed
Onderhoud buiten Goed
Huidig gebruik Woonruimte
Huidige bestemming Woonruimte

Voorzieningen

Voorzieningen Mechanische ventilatie, tv kabel

Kadastrale gegevens

Gemeente Rotterdam
Sectie BC
Perceelnummer 1296
Oppervlakte 162 m²
Eigendomssituatie Volle eigendom
VanderPanne-HR-6621
Interesse in deze woning?

Esmille helpt u graag

Delen

Vergelijkbare objecten

Korfoepad 9

Rotterdam Vraagprijs: € 459.000,- k.k.
  • 92 m2
  • 5 kamers

Kretalaan 59

Rotterdam Vraagprijs: € 1.495.000,- k.k.
  • 188 m2
  • 213 m2
  • 5 kamers

Trompetbloem 18

Rotterdam Vraagprijs: € 485.000,- k.k.
  • 148 m2
  • 133 m2
  • 6 kamers
Homepage-dorpen-Nieuwerkerk-aan-den-IJssel-1
Meer weten over Rotterdam
fundawonen-logo
logo
VGC_keurmerk_nw_zwart-grijs
nwwi
logo_NVM_business_staand_CMYK