Kretalaan 59

Rotterdam Vraagprijs: € 1.495.000,- k.k.
  • Woonoppervlakte 213 m2
  • Perceeloppervlakte 188 m2
  • Aantal slaapkamers 4
  • Bouwjaar 2022

Omschrijving

Wonen op een droomlocatie aan het water, direct naast het strand en met vrij uitzicht over de Zevenhuizerplas. Deze exclusieve watervilla, gebouwd in 2022 in het kleinschalige wijkje Strand Noord is gelegen op eigen grond en combineert moderne architectuur met luxe, ruimte en comfort. De woning beschikt over vier slaapkamers, twee badkamers en meerdere zonnige terrassen. Met twee parkeerplaatsen op eigen terrein, 20 zonnepanelen, een WTW-installatie en energielabel A+ is dit bovendien een duurzame en toekomstbestendige woning.

De woning is gunstig gelegen nabij de vele voorzieningen die de wijk Nesselande te bieden heeft. Zo bevinden zich op loopafstand onder andere het winkelcentrum van Nesselande, diverse eetgelegenheden en bent u door de metroverbinding binnen 30 minuten in het centrum van Rotterdam. De recreatievoorzieningen liggen direct voor de deur, waaronder activiteiten op het water als rustige wandelingen en fietstochten in de verschillende nabijgelegen natuurgebieden. Verder is de wijk Nesselande een fijne kindvriendelijke woonwijk met speeltuinen, basisscholen, kinderopvang en sportverenigingen. Kortom een ideale plek voor het hele gezin!

Een unieke kans om te wonen op een van de mooiste plekken aan het water, waar rust, vrijheid en hoogwaardige afwerking samenkomen.

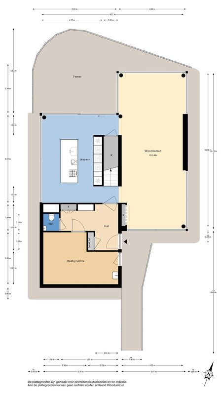
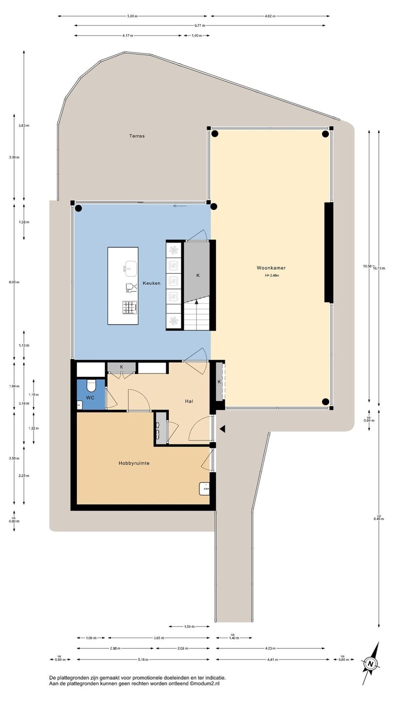
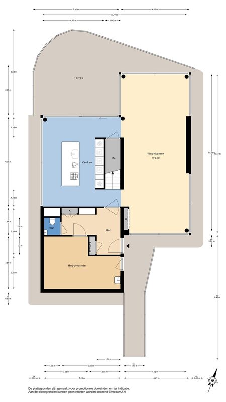
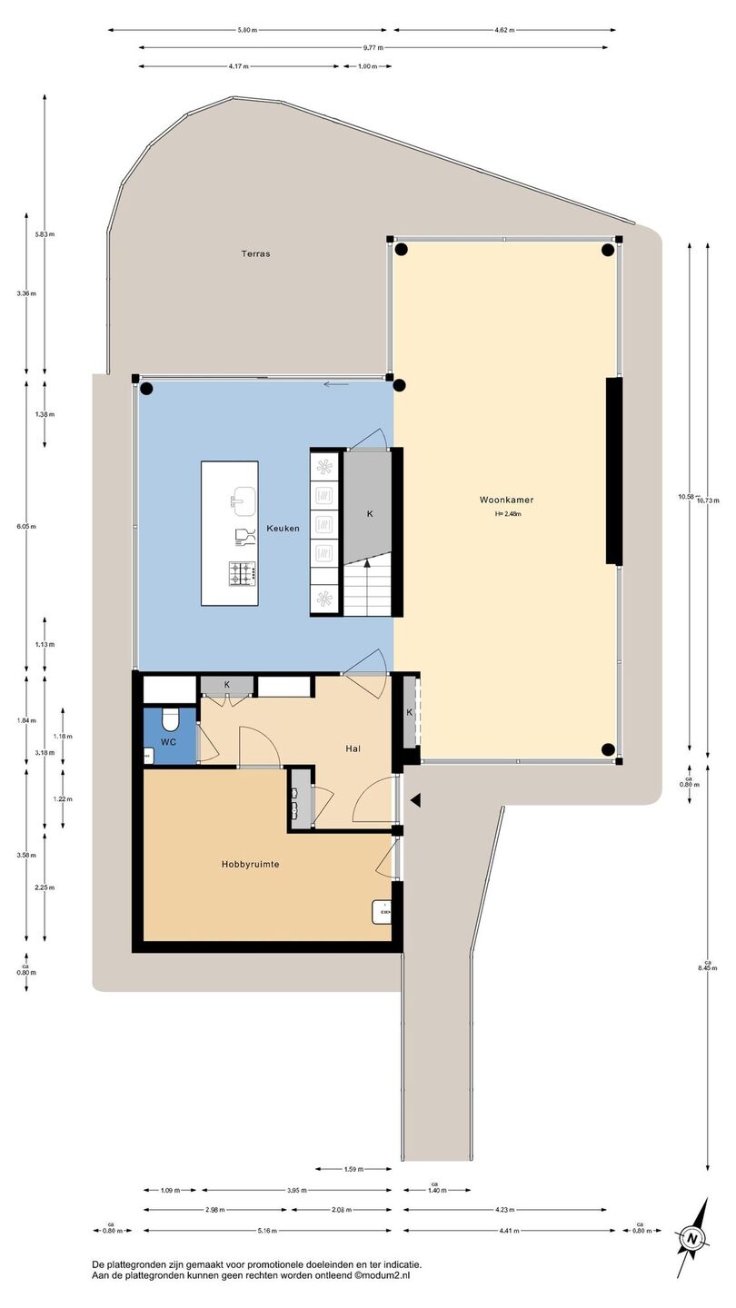
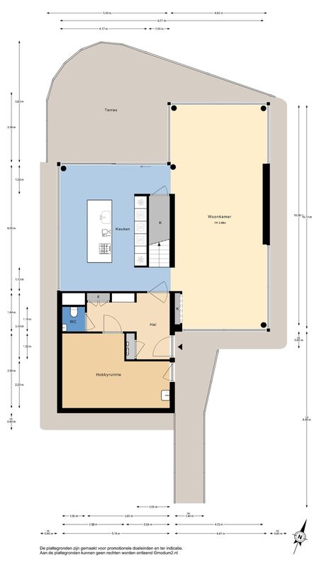
Begane grond:
Binnenkomst in een ruime, lichte entree met meterkast, garderobe en een modern hangend toilet met fonteintje. Vanuit de hal zijn zowel de hobbyruimte als de royale living bereikbaar.

De begane grond is hoogwaardig afgewerkt met strak gestucte wanden en plafonds, subtiele inbouwspots en een PVC visgraatvloer met comfortabele vloerverwarming. Plafondhoge raampartijen zorgen voor veel daglicht en een vrij uitzicht over het water en de Zevenhuizerplas. De woonkamer is stijlvol ingericht met een op maat gemaakte cinema wall in moderne bruintinten, voorzien van ingebouwde kasten. De eethoek ligt aan het water, waardoor u tijdens het dineren geniet van een prachtig uitzicht.

De luxe open keuken met kookeiland met bar is een plaatje om te zien. De keuken is compleet uitgerust met hoogwaardige inbouwapparatuur, waaronder een Quooker, inductiekookplaat met geïntegreerde afzuiging, ingebouwd koffieapparaat, koelkast, vriezer en twee combi-ovens.

Rondom de woning ligt een ruim terras dat naadloos aansluit op de leefruimte binnen. Vanuit de keuken stapt u direct naar buiten. Het terras op de begane grond is gelegen op het noordwesten, waardoor u hier optimaal geniet van de middag- en avondzon.

Terwijl de zon langzaam zakt, vormt het water een schitterend decor voor lange zomeravonden. Een plek om in alle rust te ontspannen, te dineren met vrienden of simpelweg te genieten van het uitzicht over de Zevenhuizerplas. Er is tevens een mogelijkheid om een boot aan te leggen aan het terras.

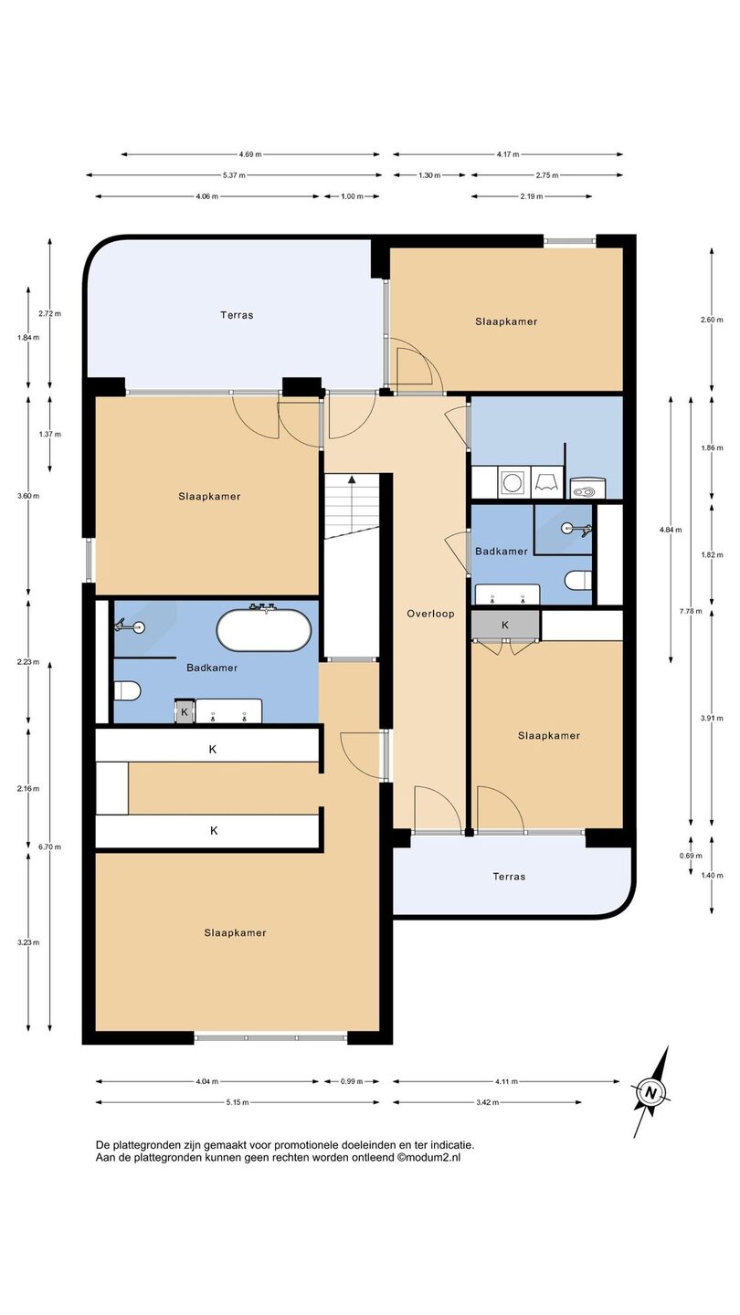
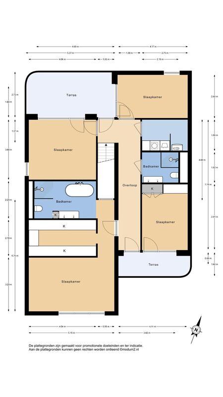
1e verdieping:
Via de ruime overloop zijn alle vertrekken op deze verdieping bereikbaar. Net als op de begane grond is ook hier gekozen voor een hoogwaardige afwerking met een PVC visgraatvloer en comfortabele vloerverwarming. De strak gestucte wanden, grote raampartijen en duurzame kunststof kozijnen zorgen voor een moderne uitstraling, veel lichtinval en optimaal onderhoudsgemak.

De royale hoofdslaapkamer beschikt over een grote inloopkast en een luxe en suite badkamer. Deze badkamer is compleet uitgevoerd met een inloopdouche, toilet, dubbele wastafelmeubel en een vrijstaand ligbad – een stijlvolle en ontspannen privéruimte.

Aan de overloop ligt een slaapkamer met directe toegang tot een eigen terras. Dit terras is eveneens via de overloop bereikbaar. Daarnaast is er nog een volwaardige slaapkamer, ideaal als kinder-, logeer- of werkkamer.

Aan de andere zijde bevindt zich een ruime slaapkamer met praktische inbouwkast en toegang tot een tweede terras. Ook dit terras is zowel vanuit de slaapkamer als via de overloop toegankelijk.

De verdieping beschikt verder over een aparte wasruimte en een tweede badkamer met dubbele wastafel, inloopdouche en toilet.

Bijzonderheden:
- Exclusieve watervilla met vrij uitzicht over het water en de Zevenhuizerplas
- Gelegen naast het strand
- Twee parkeerplaatsen op eigen terrein
- 4 slaapkamers en 2 badkamers
- Hobbyruimte op de begane grond
- Kunststof kozijnen
- Energielabel A+
- Hoogwaardige en moderne afwerking
- 20 zonnepanelen
- WTW-installatie
- Woningen hebben een zgn. pomp als aansluiting op het gemeenteriool, jaarlijkse onderhoudskosten zijn € 374,-

Rotterdam-Nesselande is een moderne en levendige wijk, prachtig gelegen aan de Zevenhuizerplas. Deze wijk combineert stedelijk wonen met een ontspannen strandgevoel. Met een brede boulevard, het stadsstrand en diverse recreatiemogelijkheden is Nesselande een geliefde plek voor bewoners en bezoekers.

Nesselande beschikt over vier basisscholen met verschillende onderwijsvormen: een christelijke school, een openbare tweetalige basisschool, een daltonbasisschool en een vrijeschool. Voor middelbaar onderwijs zijn er in de nabije omgeving goede opties, zoals het Comenius College in Nieuwerkerk en het Emmaus College in Rotterdam.

Op culinair gebied zijn Guay, Brasserie Lookies en L’Italiano populaire hotspots. Voor de lekkerste koffie is er Mamamo! Een fijne plek waar ouders kunnen ontspannen terwijl de kinderen spelen.

De wijk is uitstekend bereikbaar via het metrostation Nesselande, dat snelle verbindingen biedt naar Rotterdam centrum en omliggende gebieden. Daarnaast kent Nesselande diverse sportclubs, waardoor er volop mogelijkheden zijn om actief te zijn.

Kortom, Nesselande biedt voor ieder wat wils: een moderne, groene en kindvriendelijke woonomgeving met goede voorzieningen, leuke eetgelegenheden en volop recreatie.

Afmetingen:
Zie de (interactieve) plattegronden voor de afmetingen van de woning.

Gebruiksoppervlakte woningen:
De Meetinstructie is gebaseerd op de NEN2580. De Meetinstructie is bedoeld om een meer eenduidige manier van meten toe te passen voor het geven van een indicatie van de gebruiksoppervlakte. De Meetinstructie sluit verschillen in meetuitkomsten niet volledig uit, door bijvoorbeeld interpretatieverschillen, afrondingen of beperkingen bij het uitvoeren van de meting.

Deze informatie is door ons met de nodige zorgvuldigheid samengesteld. Onzerzijds wordt echter geen enkele aansprakelijkheid aanvaard voor enige onvolledigheid, onjuistheid of anderszins, dan wel de gevolgen daarvan. Alle opgegeven maten en oppervlakten zijn indicatief.

Rechtsgeldige koopovereenkomst pas ná ondertekening:
Een mondelinge overeenstemming tussen de particuliere verkoper en de particuliere koper is niet rechtsgeldig. Met andere woorden: er is geen koop. Er is pas sprake van een rechtsgeldige koop als de particuliere verkoper en de particuliere koper de koopovereenkomst hebben ondertekend. Dit vloeit voort uit artikel 7:2 Burgerlijk Wetboek. Een bevestiging van de mondelinge overeenstemming per e-mail of een toegestuurd concept van de koopovereenkomst wordt overigens niet gezien als een ‘ondertekende koopovereenkomst’.

Van der Panne woning- & bedrijfsmakelaardij is de makelaar van de verkoper. Neem uw eigen NVM-makelaar mee, voor goed advies bij de aankoop van uw nieuwe woning!

Lees de volledige omschrijving

Kenmerken

Overdracht

Status Beschikbaar
Aanvaarding In overleg

Bouwvorm

Soort object Woonhuis
Soort woning Villa
Type woning Vrijstaande woning
Bouwjaar 2022
Bouwvorm Bestaande bouw
Ligging Aan water, aan een rustige weg

Indeling

Woonoppervlakte 213 m²
Perceeloppervlakte 188 m²
Inhoud 707 m³
Aantal woonlagen 2

Energie

Energieklasse A+
Energie einddatum woensdag 21 april 2032
Isolatie Dakisolatie, muurisolatie, vloerisolatie, volledig geïsoleerd
Warmwater Centrale voorziening
Verwarming Stadsverwarming, vloerverwarming geheel

Buitenruimte

Tuin Zonneterras
Hoofdtuin Zonneterras
Oppervlakte hoofdtuin 34 m²
Ligging hoofdtuin Noord-west
Achterom Nee
Kwaliteit tuin Verzorgd

Bergruimte

Garage Geen garage

Parkeergelegenheid

Voorzieningen Openbaar parkeren, op eigen terrein

Dak

Dak Plat dak

Overig

Permanente bewoning Ja
Onderhoud binnen Goed tot uitstekend
Onderhoud buiten Goed tot uitstekend
Huidig gebruik Woonruimte
Huidige bestemming Woonruimte

Voorzieningen

Voorzieningen Mechanische ventilatie, tv kabel, schuifpui, zonnepanelen

Kadastrale gegevens

Gemeente Rotterdam
Sectie BC
Perceelnummer 5253
Oppervlakte 188 m²
Eigendomssituatie Volle eigendom
VdPanne-LR-0418
Interesse in deze woning?

Luc helpt u graag

Delen

Vergelijkbare objecten

Korfoepad 9

Rotterdam Vraagprijs: € 459.000,- k.k.
  • 92 m2
  • 5 kamers

Trompetbloem 18

Rotterdam Vraagprijs: € 485.000,- k.k.
  • 148 m2
  • 133 m2
  • 6 kamers
Homepage-dorpen-Nieuwerkerk-aan-den-IJssel-1
Meer weten over Rotterdam
fundawonen-logo
logo
VGC_keurmerk_nw_zwart-grijs
nwwi
logo_NVM_business_staand_CMYK