Van Oranje-Nassaulaan 85

Zevenhuizen Vraagprijs: € 655.000,- k.k.
Verkocht
  • Woonoppervlakte 143 m2
  • Perceeloppervlakte 165 m2
  • Aantal slaapkamers 5
  • Bouwjaar 2018

Omschrijving

Instapklare, luxe afgewerkte woning in de kindvriendelijke woonwijk Koningskwartier! Dit is een breed type eengezinswoning met een breedte van maar liefst 5,76 meter wat resulteert in een royale woonkamer met luxe open keuken. Achter de woning ligt een tuin van ca. 14 meter diep welke is gesitueerd op het noordwesten. Hierdoor is er altijd wel een plekje in de zon vinden! De eerste verdieping beschikt over drie ruime slaapkamers en een modern en luxe afgewerkte badkamer. Op de tweede verdieping bevinden zich nog twee slaapkamers, waarvan de slaapkamer aan de achterzijde is voorzien van een ruim dakkapel. Daarnaast is de woning nog voorzien van een aparte wasruimte en er is veel bergruimte te vinden op de vliering. In de woonwijk zijn er genoeg speelvoorzieningen, parkeergelegenheden en er is ook een bassischool met kinderopvang. Het centrum van Zevenhuizen, met supermarkten, winkels en restaurants, ligt op slechts vijf minuten fietsafstand.

Persoonlijke tekst eigenaar:
"Wonen in het Koningskwartier is een feestje voor het hele gezin. Onze woning ligt in een kindvriendelijke wijk waar buren elkaar groeten en kinderen samen buiten kunnen spelen. Met speeltuintjes om de hoek en twee basisscholen op loopafstand is het een vertrouwde omgeving en voel je je snel thuis. Onze woning biedt verrassend veel ruimte met meerdere aparte kamers en volop opbergruimte, waardoor het huis geschikt is voor een gezin met kinderen én voor wie graag rustig thuis werkt. De tuin is groen en beschut, een fijne plek om samen buiten te zijn voor het hele gezin.
Daarnaast is de ligging perfect: met diverse uitvalswegen in de buurt ben je snel onderweg richting Rotterdam, Den Haag, Amsterdam, Utrecht en Gouda. Wij hebben hier met veel plezier gewoond en hopen dat de volgende bewoners net zo zullen genieten van dit fijne thuis als wij."

Begane grond:
Voortuin met toegang tot de voordeur.

Entree met meterkast, gevolgd door een hal met een modern hangend toilet voorzien van fonteintje en de trapopgang naar de eerste verdieping. Vanuit de hal is de ruime woonkamer bereikbaar, waarin zich een trapkast bevindt. Aan de voorzijde van de woning bevindt zich de strakke, open keuken, voorzien van diverse inbouwapparatuur zoals een koel-/vriescombinatie, oven, vaatwasser, quooker, een vijf-pits gaskookplaat en een afzuigkap.

De woonkamer staat via dubbele openslaande deuren in verbinding met de achtertuin.

De tuin is circa 14,36 meter diep en bereikbaar via een achterom. Achterin de tuin bevindt zich een houten berging, ideaal voor opslag en hobby’s.

Zowel de begane grond als de eerste en tweede verdieping zijn afgewerkt met een nette PVC-vloer die zorgt voor een luxe en warme uitstraling. De gehele begane grond is voorzien van vloerverwarming.

1e verdieping:
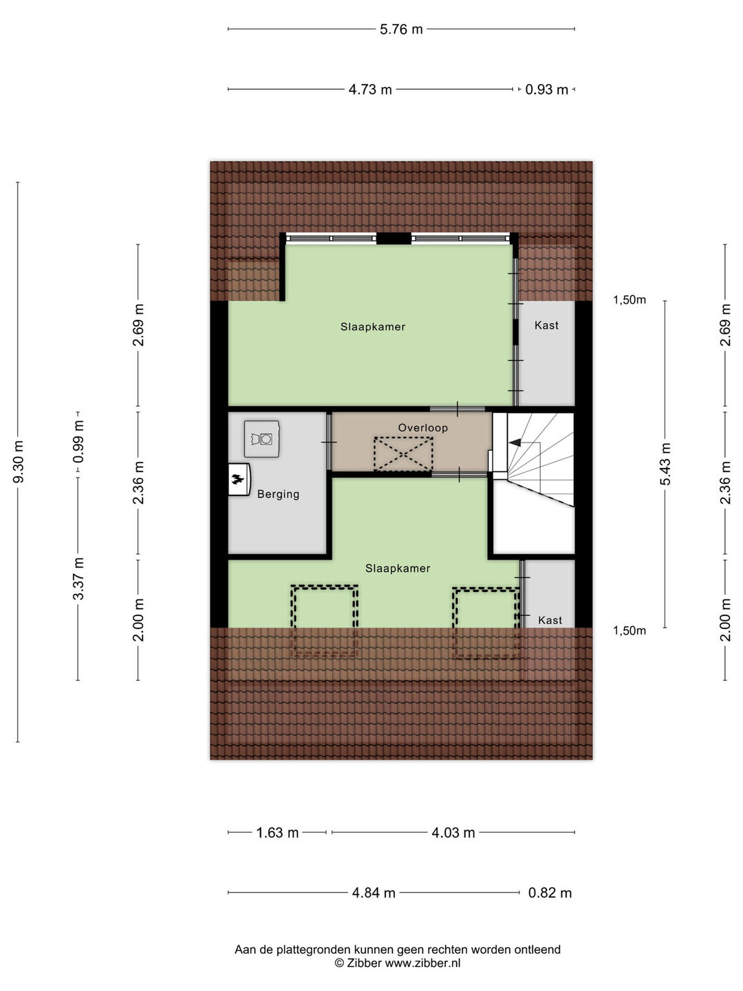
De overloop geeft toegang tot drie slaapkamers, een apart hangend toilet en de badkamer. Twee slaapkamers bevinden zich aan de achterzijde van de woning. De moderne badkamer is voorzien van vloerverwarming, een vrijstaand ligbad, een inloopdouche, een wastafelmeubel met twee wasbakken en een designradiator. Aan de voorzijde ligt een ruime slaapkamer met veel licht en voldoende ruimte voor een groot bed en een kastenwand.

2e verdieping:
Op de tweede verdieping bevinden zicht nog twee slaapkamers. Aan de voorzijde bevindt zich een slaapkamer met twee dakramen, bergruimte achter de knieschotten en een vaste kast. Aan de achterzijde ligt nog een ruime slaapkamer, voorzien van een kunststof dakkapel, vaste kasten en bergruimte achter de knieschotten. Ook bevindt zich op deze verdieping een berging/wasruimte met CV-installatie, warmte terugwin installatie, wasmachineaansluiting en omvormer van 2 zonnepanelen. Bovendien is er een vlizo trap naar een vliering. Aan opbergruimte hier geen gebrek!

Bijzonderheden:
De woning is volledig uitgerust met kunststof kozijnen en HR+++ glas. Er zijn 2 zonnepanelen aanwezig. De woning is vanaf de bouw voorzien van een dakkapel aan de achterzijde. De wanden zijn strak afgewerkt met stucwerk.

Zevenhuizen is een karakteristiek dorp in de gemeente Zuidplas, gelegen aan de oostrand van Rotterdam. Ondanks de kleine omvang biedt het dorp verrassend veel voor wie houdt van rust, natuur en lekker eten.
Direct aan de Zevenhuizerplas liggen volop mogelijkheden voor watersport, zwemmen, suppen of gewoon genieten van het zonnetje. Aan het water vind je Flow Food & Adventure, een populaire plek voor een ontspannen lunch of borrel met uitzicht op het meer. Een aanrader is ook de wandel- en fietsroute langs de molenviergang van Zevenhuizen, waar je volop kunt genieten van het typische Hollandse polderlandschap.
Zevenhuizen heeft diverse uitstekende eetgelegenheden, zoals Borgo Antico, Brasserie ’t Graanhuys en La Baraque. Voor gezinnen is het een fijne plek: kinderen kunnen zich vermaken bij boerderij De Koeienstal of natuurspeeltuin Hennep Gaarde.
De warme dorpssfeer maakt Zevenhuizen bijzonder; mensen groeten elkaar op straat en evenementen zoals de jaarlijkse braderie en dorpsfeesten zorgen voor een hechte gemeenschap.
Op het gebied van onderwijs zijn er vier basisscholen: De Eendragt en De Nessevliet (beide protestants-christelijk), Koningskwartier en de openbare school ’t Reigerbos.

Afmetingen:
Zie de (interactieve) plattegronden voor de afmetingen van de woning.

Gebruiksoppervlakte woningen:
De Meetinstructie is gebaseerd op de NEN2580. De Meetinstructie is bedoeld om een meer eenduidige manier van meten toe te passen voor het geven van een indicatie van de gebruiksoppervlakte. De Meetinstructie sluit verschillen in meetuitkomsten niet volledig uit, door bijvoorbeeld interpretatieverschillen, afrondingen of beperkingen bij het uitvoeren van de meting.

Rechtsgeldige koopovereenkomst pas ná ondertekening:
Een mondelinge overeenstemming tussen de particuliere verkoper en de particuliere koper is niet rechtsgeldig. Met andere woorden: er is geen koop. Er is pas sprake van een rechtsgeldige koop als de particuliere verkoper en de particuliere koper de koopovereenkomst hebben ondertekend. Dit vloeit voort uit artikel 7:2 Burgerlijk Wetboek. Een bevestiging van de mondelinge overeenstemming per e-mail of een toegestuurd concept van de koopovereenkomst wordt overigens niet gezien als een ‘ondertekende koopovereenkomst’.

Van der Panne woning- & bedrijfsmakelaardij is de makelaar van de verkoper. Neem uw eigen NVM-makelaar mee, voor goed advies bij de aankoop van uw nieuwe woning!

Lees de volledige omschrijving

Kenmerken

Overdracht

Status Verkocht
Aanvaarding In overleg

Bouwvorm

Soort object Woonhuis
Soort woning Eengezinswoning
Type woning Tussenwoning
Bouwjaar 2018
Bouwvorm Bestaande bouw
Ligging In een woonwijk

Indeling

Woonoppervlakte 143 m²
Perceeloppervlakte 165 m²
Inhoud 506 m³
Aantal woonlagen 4

Energie

Energieklasse A
Energie einddatum zaterdag 10 juni 2028
Isolatie Dakisolatie, muurisolatie, vloerisolatie, dubbel glas, volledig geïsoleerd, driedubbel glas
Warmwater Cv ketel
Verwarming Cv ketel, vloerverwarming gedeeltelijk

Buitenruimte

Tuin Achtertuin
Hoofdtuin Achtertuin
Oppervlakte hoofdtuin 81 m²
Ligging hoofdtuin West
Achterom Ja
Kwaliteit tuin Verzorgd

Bergruimte

Garage Geen garage
Schuur / Berging Aangebouwd hout

Parkeergelegenheid

Voorzieningen Openbaar parkeren

Dak

Dak Zadeldak

Overig

Permanente bewoning Ja
Onderhoud binnen Goed tot uitstekend
Onderhoud buiten Goed tot uitstekend
Huidig gebruik Woonruimte
Huidige bestemming Woonruimte

Voorzieningen

Voorzieningen Mechanische ventilatie, dakraam, glasvezel kabel, zonnepanelen

Kadastrale gegevens

Gemeente Zevenhuizen
Sectie E
Perceelnummer 2161
Oppervlakte 165 m²
Eigendomssituatie Volle eigendom
VdPanne-LR-0418
Interesse in deze woning?

Luc helpt u graag

Delen

Vergelijkbare objecten

Wilgenlaan 33

Zevenhuizen Vraagprijs: € 475.000,- k.k.
  • 119 m2
  • 105 m2
  • 6 kamers

Land Kanaän 11

Zevenhuizen Vraagprijs: € 695.000,- k.k.
  • 128 m2
  • 149 m2
  • 5 kamers

Koningsoever 3

Zevenhuizen Vraagprijs: € 1.050.000,- k.k.
  • 340 m2
  • 225 m2
  • 6 kamers

Molenmaker 2

Zevenhuizen Vraagprijs: € 575.000,- k.k.
  • 159 m2
  • 128 m2
  • 5 kamers

Stokroos 18

Zevenhuizen Vraagprijs: € 700.000,- k.k.
  • 181 m2
  • 170 m2
  • 5 kamers
fundawonen-logo
logo
VGC_keurmerk_nw_zwart-grijs
nwwi
logo_NVM_business_staand_CMYK