Burg Van Heugtenlaan 167

Nieuwerkerk aan den IJssel Vraagprijs: € 725.000,- k.k.
Verkocht onder voorbehoud
  • Woonoppervlakte 130 m2
  • Perceeloppervlakte 345 m2
  • Aantal slaapkamers 4
  • Bouwjaar 1999

Omschrijving

Aan de rand van de kindvriendelijke wijk Esse Laag ligt de Burgemeester van Heugtenlaan 167. Een ruime twee-onder-een-kapwoning op een perceel van maar liefst 345 m² eigen grond. Dit huis biedt het beste van twee werelden. Direct woongemak met 3 nette slaapkamers, een ruime zolder en een gemoderniseerde keuken, badkamer en toilet. De 184 m2 grote tuin is een echte eye-catcher. Tegelijkertijd zijn er diverse mogelijkheden om extra ruimte en comfort te creeëren. Dit kan bijvoorbeeld door een deel van de garage bij de woonkamer te betrekken, een opbouw op de garage te plaatsen, of de woning aan de achterzijde uit te bouwen. Het huis biedt alle mogelijkheden om ruim te wonen, werken en genieten. Scholen liggen op loopafstand, winkels en sportclubs zijn makkelijk per fiets bereikbaar en ook het openbaar vervoer is dichtbij. Bovendien is de woning beschikbaar voor een snelle overdracht!

Highlights:

- Twee-onder-een-kapwoning op 345 m² eigen grond
- Royale achtertuin van 184 m2
- Voortuin met ruime oprit, nieuw aangelegd in 2024
- Buitenschilderwerk uitgevoerd in oktober 2024
- Trapbekleding vernieuwd in 2023
- Riante garage en berging aanwezig
- Grote zolder met dakkapel
- Energieklasse A

Persoonlijke tekst eigenaar:
Het is heerlijk om in dit huis te wonen; licht, ruim en een fijne achtertuin. Doordat dit het laatste huis is van de straat is er geen directe inkijk van buren en loop je snel een blokje om in een groene omgeving. Bovenal is het een fijne straat om te wonen met een gezellige jaarlijkse BuurtBBQ.

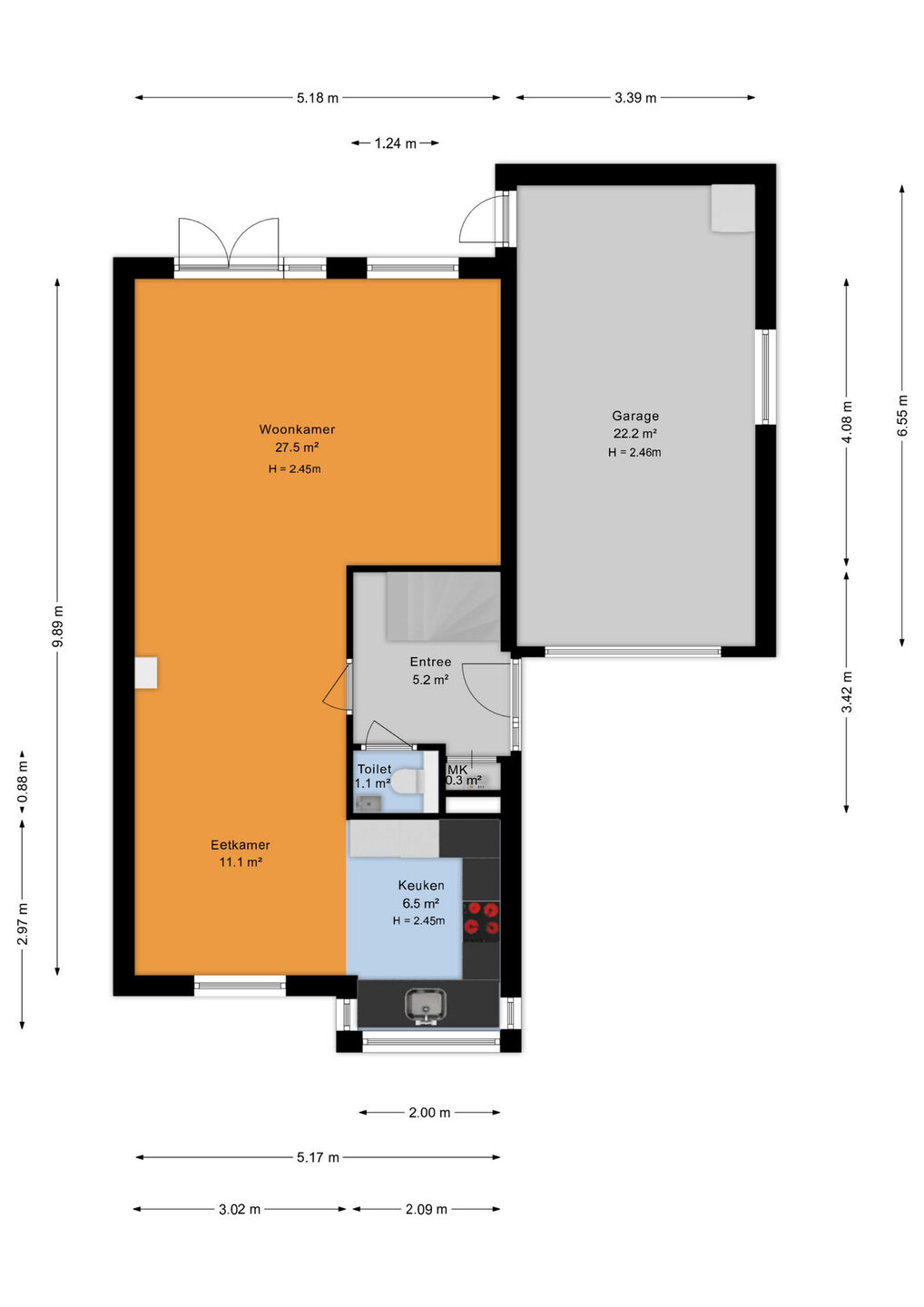
Begane grond:
Via de entree komt u in de hal met tegelvloer, meterkast en een modern toilet (2018) met hangend closet en fonteintje. Vanuit de hal bereikt u de woonkamer. De ruime woonkamer is voorzien van een fraaie eiken parketvloer en strak gestuukte wanden en plafonds, wat zorgt voor een moderne en verzorgde uitstraling.

Aan de voorzijde van de woning bevindt zich de open keuken. Deze is in 2016 geplaatst en uitgevoerd met diverse inbouwapparatuur, waaronder een koel-/vriescombinatie, combi oven/magnetron, inductiekookplaat, afzuigkap, vaatwasser en een Quooker. De keuken is afgewerkt met een tegelvloer. Alle ramen aan de voorzijde zijn uitgerust met elektrische screens. Dankzij de dubbele deuren staat de woonkamer in directe verbinding met de achtertuin.

De achtertuin is ruim en biedt veel privacy. Er is altijd een lekker plekje te vinden in de zon of schaduw. Er staat een houten berging en de garage is via de tuin bereikbaar. Door de situering van de woning is het perceel een stuk breder, waardoor de tuin tevens bereikt kan worden door langs de garage te lopen.

De voortuin en oprit zijn in 2024 opnieuw aangelegd en biedt ruimte om twee auto's of een camper te parkeren.

De garage van ruim 22 m2 met plavuizen vloer is voorzien van elektra, verwarming en warm/koud water.

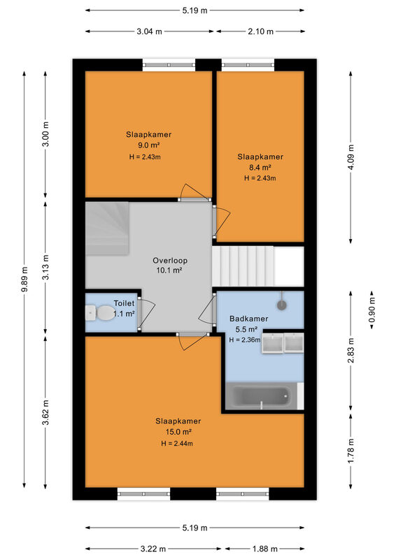
Eerste verdieping:
De overloop geeft toegang tot drie slaapkamers en een separaat toilet. Aan de voorzijde bevindt zich een ruime slaapkamer waarvan de ramen tevens zijn uitgerust met screens. Aan de achterzijde liggen twee slaapkamers. De gehele verdieping is uitgerust met een warme laminaatvloer en ook hier zijn de wanden en plafonds strak gestuukt.

De badkamer is in 2015 compleet gerenoveerd en voorzien van vloerverwarming, ligbad, inloopdouche, badkamermeubel met dubbele wastafel en een designradiator.

Tweede verdieping:
De tweede verdieping is een open zolderruimte met een dakkapel aan de voorzijde en een dakraam aan de achterzijde. Hier bevinden zich de wasmachineaansluiting, de cv-installatie en de mechanische ventilatie. Deze verdieping biedt volop mogelijkheden voor het realiseren van een extra slaapkamer, werkruimte of hobbykamer.

Omgeving:
Nieuwerkerk aan den IJssel is een gezellig en charmant dorp, gelegen aan de Hollandse IJssel. Het dorp biedt een fijne mix van natuur, ontspanning en activiteiten voor jong en oud.

Voor liefhebbers van buiten zijn is er een prachtige golfbaan in een natuurrijke omgeving. Gezinnen met kinderen kunnen terecht in zwembad het Polderbad voor een verfrissende duik. Daarnaast zijn er volop sportmogelijkheden met diverse verenigingen, waaronder een voetbalclub, tennisclub, hockeyclub en een dansschool.

Het historische hart van Nieuwerkerk, het Oude Dorp, heeft een sfeervolle uitstraling met een gevarieerd aanbod aan winkels en horecagelegenheden.

Nieuwerkerk is bovendien uitstekend bereikbaar: dankzij een goede treinverbinding sta je in ongeveer 15 minuten in het centrum van Rotterdam of in 30 minuten in het centrum van Utrecht.

Voor gezinnen met kinderen is er ruime keuze op het gebied van onderwijs. Nieuwerkerk telt maar liefst zeven basisscholen, elk met een eigen onderwijsvisie. Ook voortgezet onderwijs is aanwezig, met twee middelbare scholen.

Gebruiksoppervlakte woningen:
De Meetinstructie is gebaseerd op de NEN2580. De Meetinstructie is bedoeld om een meer eenduidige manier van meten toe te passen voor het geven van een indicatie van de gebruiksoppervlakte. De Meetinstructie sluit verschillen in meetuitkomsten niet volledig uit, door bijvoorbeeld interpretatieverschillen, afrondingen of beperkingen bij het uitvoeren van de meting.

Rechtsgeldige koopovereenkomst pas ná ondertekening:
Een mondelinge overeenstemming tussen de particuliere verkoper en de particuliere koper is niet rechtsgeldig. Met andere woorden: er is geen koop. Er is pas sprake van een rechtsgeldige koop als de particuliere verkoper en de particuliere koper de koopovereenkomst hebben ondertekend. Dit vloeit voort uit artikel 7:2 Burgerlijk Wetboek. Een bevestiging van de mondelinge overeenstemming per e-mail of een toegestuurd concept van de koopovereenkomst wordt overigens niet gezien als een ‘ondertekende koopovereenkomst’.

Van der Panne woning- & bedrijfsmakelaardij is de makelaar van de verkoper. Neem uw eigen NVM-makelaar mee, voor goed advies bij de aankoop van uw nieuwe woning!

Lees de volledige omschrijving

Kenmerken

Overdracht

Status Verkocht onder voorbehoud
Aanvaarding In overleg

Bouwvorm

Soort object Woonhuis
Soort woning Eengezinswoning
Type woning Twee onder één kapwoning
Bouwjaar 1999
Bouwvorm Bestaande bouw
Ligging Aan een rustige weg, in een woonwijk

Indeling

Woonoppervlakte 130 m²
Perceeloppervlakte 345 m²
Inhoud 531 m³
Aantal woonlagen 3

Energie

Energieklasse A
Energie einddatum zondag 2 maart 2036
Isolatie Volledig geïsoleerd
Warmwater Cv ketel
Verwarming Cv ketel

Buitenruimte

Tuin Achtertuin, voortuin, zijtuin
Hoofdtuin Achtertuin
Oppervlakte hoofdtuin 184 m²
Ligging hoofdtuin Noord-oost
Achterom Ja

Bergruimte

Garage Aangebouwd steen
Schuur / Berging Vrijstaand hout
Voorzieningen Elektra

Parkeergelegenheid

Voorzieningen Op eigen terrein

Dak

Dak Zadeldak

Overig

Permanente bewoning Ja
Onderhoud binnen Goed
Onderhoud buiten Goed
Huidig gebruik Woonruimte
Huidige bestemming Woonruimte

Voorzieningen

Voorzieningen Mechanische ventilatie, tv kabel, buitenzonwering, dakraam, glasvezel kabel

Kadastrale gegevens

Gemeente Nieuwerkerk aan den IJssel
Sectie A
Perceelnummer 6874
Oppervlakte 345 m²
Eigendomssituatie Volle eigendom
VdPanne-LR-0418
Interesse in deze woning?

Luc helpt u graag

Delen

Vergelijkbare objecten

Gladioolveld 14

Nieuwerkerk aan den IJssel Vraagprijs: € 415.000,- k.k.
  • 133 m2
  • 104 m2
  • 4 kamers

Waterschapsweg 12

Nieuwerkerk aan den IJssel Vraagprijs: € 1.195.000,- k.k.
  • 2090 m2
  • 237 m2
  • 4 kamers

Linge 35

Nieuwerkerk aan den IJssel Vraagprijs: € 515.000,- k.k.
  • 156 m2
  • 111 m2
  • 5 kamers

Rosario 2

Nieuwerkerk aan den IJssel Vraagprijs: € 1.095.000,- k.k.
  • 284 m2
  • 198 m2
  • 5 kamers

Poolsezoom 38

Nieuwerkerk aan den IJssel Vraagprijs: € 665.000,- k.k.
  • 182 m2
  • 150 m2
  • 6 kamers

Vecht 101

Nieuwerkerk aan den IJssel Vraagprijs: € 599.000,- k.k.
  • 250 m2
  • 135 m2
  • 4 kamers

Klein Hitland 280

Nieuwerkerk aan den IJssel Vraagprijs: € 285.000,- k.k.
  • 452 m2
  • 47 m2
  • 2 kamers
fundawonen-logo
logo
VGC_keurmerk_nw_zwart-grijs
nwwi
logo_NVM_business_staand_CMYK