Henri Matissestraat 52

Rotterdam Vraagprijs: € 600.000,- k.k.
Verkocht
  • Woonoppervlakte 141 m2
  • Perceeloppervlakte 150 m2
  • Aantal slaapkamers 5
  • Bouwjaar 2008

Omschrijving

Een woning waar je zó in kunt trekken? Dan ben je aan de Henri Matissestraat 52 aan het juiste adres!
Deze ruime en verzorgde eengezinswoning is op zoek naar een nieuwe eigenaar. De woning beschikt over vijf slaapkamers en een royale badkamer. De openslaande deuren naar de tuin maken het geheel helemaal compleet.

Ben je nieuwsgierig geworden naar deze woning? Lees dan snel verder en bel ons kantoor om een bezichtiging in te plannen!

Begane grond:
Kom binnen in de woning via de ruime hal. Hier is voldoende ruimte voor het opbergen van jassen en schoenen. In de hal vind je het toilet en de meterkast. Het moderne toilet is uitgerust met een hangend closet en een fonteintje. Dankzij het raam geniet de ruimte van aangenaam natuurlijk licht.

Via de hal kom je in de ruime, uitgebouwde woonkamer, die is voorzien van een PVC-visgraatvloer en vloerverwarming. De gehele begane grond is afgewerkt met strak gestucte wanden en plafonds, wat zorgt voor een moderne en verzorgde uitstraling. De keuken, aan de voorzijde van de woning, heeft een moderne tegelvloer met vloerverwarming en is van alle gemakken voorzien: een Amerikaanse koelkast, geïntegreerde koffiemachine, combi-oven, inductiekookplaat, afzuigkap. In het luxe werkblad aan de raamzijde zijn de spoelbak met kraan en een geïntegreerd zeeppompje verwerkt.

Via de openslaande deuren stap je de verzorgde achtertuin in. De tuin beschikt over een houten berging en een overkapping, en leent zich perfect voor lange zomerse avonden. Daarnaast is de tuin achterom bereikbaar via een af te sluiten poort.

1e verdieping!
Middels de overloop kom je op de eerste verdieping, op deze verdieping zijn 3 slaapkamers en de badkamer gesitueerd. Aan de achterzijde van de woning vind je twee slaapkamers. De master bedroom bevindt zich aan de voorzijde van de woning, door de grote raampartij is deze slaapkamer voorzien van veel natuurlijk daglicht. De badkamer is voorzien van een ligbad, wastafelmeubel douche en toilet.

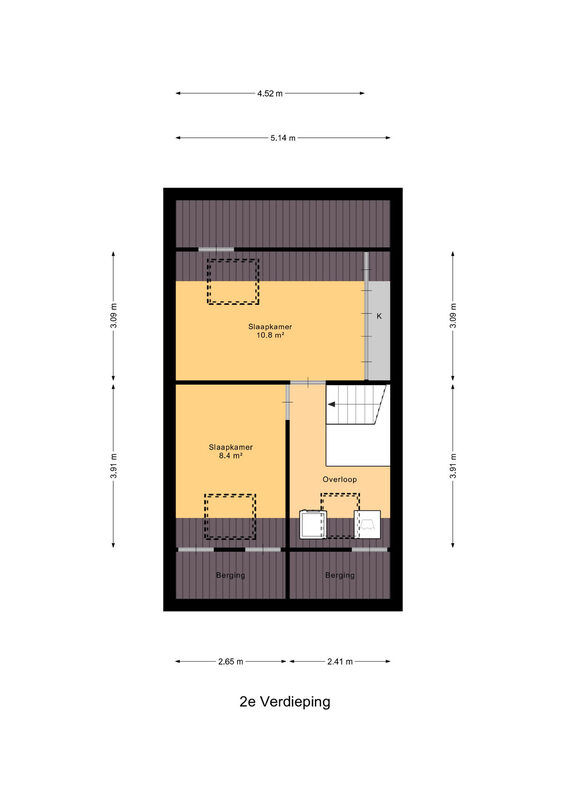
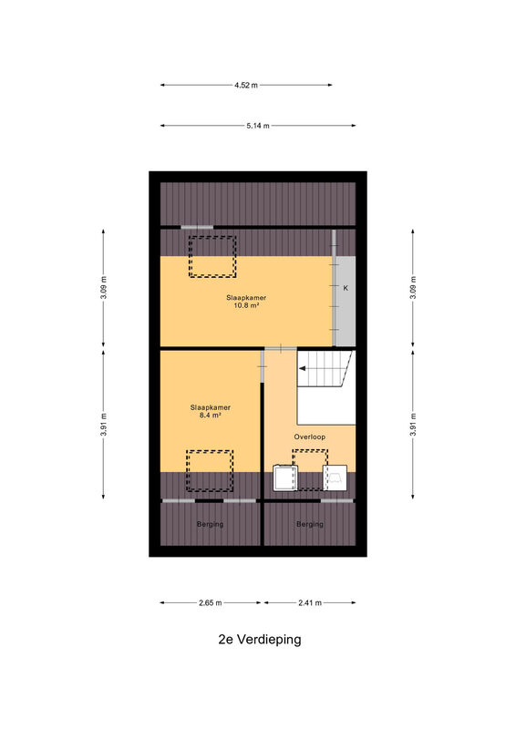
2e verdieping:
De tweede verdieping is tevens voorzien van 2 slaapkamers met veel daglicht door de grote Velux dakramen. Op de overloop is de opstelplaats voor de wasmachine en de droger gesitueerd.

Bijzonderheden:
- De woning is gelegen op eigen grond
- De keuken, woonkamer, hal en badkamer zijn voorzien van vloerverwarming
- De openslaande deuren zijn voorzien van luxe shutters, de twee slaapkamers boven zijn ook voorzien van luxe shutters
- Energielabel A+
- Op de eerste verdieping zijn geluid en warmtewerende rolluiken aan de buitenkant van de woning geplaats in 2025, deze werken op zonne-energie en zijn te bedienen met een afstandsbediening.
- Gehele woning (alle ramen en deuren naar tuin) voorzien van geïntegreerde muggenwering van Velux.

Rotterdam-Nesselande
Rotterdam-Nesselande is een moderne en levendige wijk, prachtig gelegen aan de Zevenhuizerplas. Deze wijk combineert stedelijk wonen met een ontspannen strandgevoel. Met een brede boulevard, het stadsstrand en diverse recreatiemogelijkheden is Nesselande een geliefde plek voor bewoners en bezoekers.
Nesselande beschikt over vier basisscholen met verschillende onderwijsvormen: een christelijke school, een openbare tweetalige basisschool, een daltonbasisschool en een vrijeschool. Voor middelbaar onderwijs zijn er in de nabije omgeving goede opties, zoals het Comenius College in Nieuwerkerk en het Emmaus College in Rotterdam.
Op culinair gebied zijn Guay, Brasserie Lookies en L’Italiano populaire hotspots. Voor de lekkerste koffie is er Mamamo! Een fijne plek waar ouders kunnen ontspannen terwijl de kinderen spelen.
De wijk is uitstekend bereikbaar via het metrostation Nesselande, dat snelle verbindingen biedt naar Rotterdam centrum en omliggende gebieden. Daarnaast kent Nesselande diverse sportclubs, waardoor er volop mogelijkheden zijn om actief te zijn.
Kortom, Nesselande biedt voor ieder wat wils: een moderne, groene en kindvriendelijke woonomgeving met goede voorzieningen, leuke eetgelegenheden en volop recreatie.

Gebruiksoppervlakte woningen:
De Meetinstructie is gebaseerd op de NEN2580. De Meetinstructie is bedoeld om een meer eenduidige manier van meten toe te passen voor het geven van een indicatie van de gebruiksoppervlakte. De Meetinstructie sluit verschillen in meetuitkomsten niet volledig uit, door bijvoorbeeld interpretatieverschillen, afrondingen of beperkingen bij het uitvoeren van de meting.

Rechtsgeldige koopovereenkomst pas ná ondertekening:
Een mondelinge overeenstemming tussen de particuliere verkoper en de particuliere koper is niet rechtsgeldig. Met andere woorden: er is geen koop. Er is pas sprake van een rechtsgeldige koop als de particuliere verkoper en de particuliere koper de koopovereenkomst hebben ondertekend. Dit vloeit voort uit artikel 7:2 Burgerlijk Wetboek. Een bevestiging van de mondelinge overeenstemming per e-mail of een toegestuurd concept van de koopovereenkomst wordt overigens niet gezien als een ‘ondertekende koopovereenkomst’.

Van der Panne woning- & bedrijfsmakelaardij is de makelaar van de verkoper. Neem uw eigen NVM-makelaar mee, voor goed advies bij de aankoop van uw nieuwe woning!

Lees de volledige omschrijving

Kenmerken

Overdracht

Status Verkocht
Aanvaarding In overleg

Bouwvorm

Soort object Woonhuis
Soort woning Eengezinswoning
Type woning Tussenwoning
Bouwjaar 2008
Bouwvorm Bestaande bouw
Ligging In een woonwijk

Indeling

Woonoppervlakte 141 m²
Perceeloppervlakte 150 m²
Inhoud 509 m³
Aantal woonlagen 3

Energie

Energieklasse A+
Energie einddatum zaterdag 1 maart 2031
Isolatie Dakisolatie, muurisolatie, vloerisolatie, dubbel glas
Warmwater Centrale voorziening
Verwarming Stadsverwarming, vloerverwarming gedeeltelijk

Buitenruimte

Tuin Achtertuin, voortuin
Hoofdtuin Achtertuin
Oppervlakte hoofdtuin 53 m²
Ligging hoofdtuin Oost
Achterom Nee
Kwaliteit tuin Fraai aangelegd

Bergruimte

Garage Geen garage
Schuur / Berging Vrijstaand hout

Parkeergelegenheid

Voorzieningen Openbaar parkeren

Dak

Dak Zadeldak

Overig

Permanente bewoning Ja
Onderhoud binnen Goed tot uitstekend
Onderhoud buiten Goed tot uitstekend
Huidig gebruik Woonruimte
Huidige bestemming Woonruimte

Voorzieningen

Voorzieningen Mechanische ventilatie, tv kabel, dakraam, glasvezel kabel

Kadastrale gegevens

Gemeente Rotterdam
Sectie BC
Perceelnummer 3217
Oppervlakte 150 m²
Eigendomssituatie Volle eigendom
VanderPanne-HR-6621
Interesse in deze woning?

Esmille helpt u graag

Delen

Vergelijkbare objecten

Korfoepad 9

Rotterdam Vraagprijs: € 459.000,- k.k.
  • 92 m2
  • 5 kamers

Kretalaan 59

Rotterdam Vraagprijs: € 1.495.000,- k.k.
  • 188 m2
  • 213 m2
  • 5 kamers

Trompetbloem 18

Rotterdam Vraagprijs: € 485.000,- k.k.
  • 148 m2
  • 133 m2
  • 6 kamers
Homepage-dorpen-Nieuwerkerk-aan-den-IJssel-1
Meer weten over Rotterdam
fundawonen-logo
logo
VGC_keurmerk_nw_zwart-grijs
nwwi
logo_NVM_business_staand_CMYK