Klimroos 12

Zevenhuizen Vraagprijs: € 650.000,- k.k.
Verkocht
  • Woonoppervlakte 136 m2
  • Perceeloppervlakte 143 m2
  • Aantal slaapkamers 4
  • Bouwjaar 2015

Omschrijving

Wat een super net huis is dit zeg! Aan de Klimroos staat deze uitgebouwde eengezinswoning mét tuit en een tuin op het zuidwesten. In december 2021 is de gehele begane grond gerenoveerd zoals een nieuwe keuken en een PVC vloer met vloerverwarming. Erg prettig zijn de airco's in de woonkamer en in twee slaapkamers op de verdieping. Het huis is functioneel ingedeeld en heeft een gebruiksoppervlakte van 136 m2. Ook de achtertuin is ondanks de aanbouw lekker ruim en bovendien ligt deze tuin op het zuidwesten. Je kunt hier heerlijk genieten van de middag en avondzon! Tenslotte zorgt de tuitgevel voor net dat extra op de tweede verdieping.

Begane grond:
Entree in een ruime hal met het toilet, de meterkast en de trap naar de eerste verdieping.

Grote, uitgebouwde woonkamer met een schuifpui naar de achtertuin. Genoeg ruimte voor een grote zithoek en een eettafel voor 6 tot 8 personen. In december 2021 is de gehele begane grond gerenoveerd, toen is er een nieuwe keuken geplaatst, is er een nieuwe vloer PVC gekomen met vloerverwarming en zijn alle wanden gestuukt. De voormalige houtkachel is verwijderd, de pijp zit nog wel op het dak dus deze is eventueel eenvoudig weer terug te brengen.

De keuken bevindt zich aan de voorzijde van de woning en is van alle gemakken voorzien waaronder een oven, een combioven, een Amerikaanse koelkast (met een interactief, smart scherm met o.a. Spotify), een inductiekookplaat, een quooker, een vaatwasser en een afzuigkap.

Eerste verdieping:
Overloop met toegang tot de drie slaapkamers. Twee ervan zijn voorzien van airconditioning. De badkamer is prachtig. De muren en de vloer zijn betegeld met grote, moderne natuursteenlook tegels. Er is een inloopdouche, hangend toilet en tevens een modern een breed badkamermeubel. Niet onbelangrijk, dankzij enkele nissen beschikt de badkamer over handige opbergplekken. De slaapkamers hebben praktische formaten en zijn verzorgd afgewerkt.

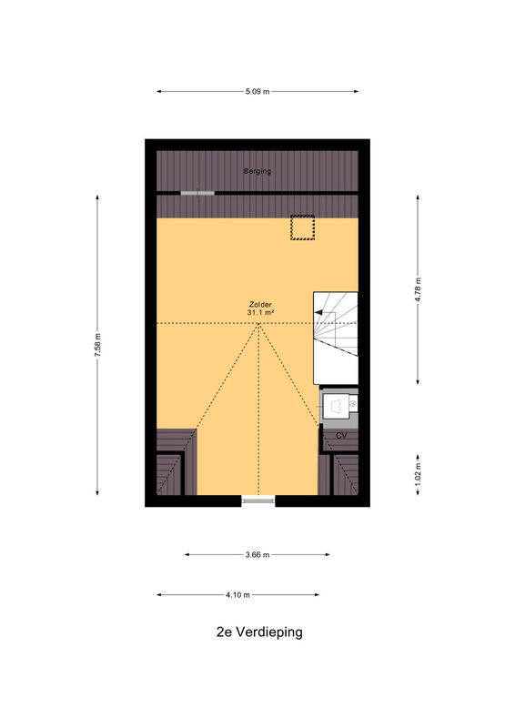
Tweede verdieping:
Echt een toffe verdieping met een enorme hoogte dankzij de eerder genoemde tuitgevel. De zolder is keurig afgewerkt en hier zijn handige bergkasten gemaakt. Verder vindt je hier de CV-ketel, de mechanische ventilatiebox en de aansluiting voor de wasmachine en droger. De vloer op deze verdieping is in december 2021 gelegd.

Tuin:
De tuin is in 2022 keurig aangelegd, lekker onderhoudsvrij en ligt op het zonnige zuidwesten, ideaal; na het werk kun je hier echt nog even genieten van de zon. Achterin de tuin staat de houten berging, de berging is voorzien van elektriciteit. De tuin is te bereiken via een achterom.

Zevenhuizen is een karakteristiek dorp in de gemeente Zuidplas, gelegen aan de oostrand van Rotterdam. Ondanks de kleine omvang biedt het dorp verrassend veel voor wie houdt van rust, natuur en lekker eten.

Direct aan de Zevenhuizerplas liggen volop mogelijkheden voor watersport, zwemmen, suppen of gewoon genieten van het zonnetje. Aan het water vind je Flow Food & Adventure, een populaire plek voor een ontspannen lunch of borrel met uitzicht op het meer. Een aanrader is ook de wandel- en fietsroute langs de molenviergang van Zevenhuizen, waar je volop kunt genieten van het typische Hollandse polderlandschap.

Zevenhuizen heeft diverse uitstekende eetgelegenheden, zoals Borgo Antico, Brasserie ’t Graanhuys en La Baraque. Voor gezinnen is het een fijne plek: kinderen kunnen zich vermaken bij boerderij De Koeienstal of natuurspeeltuin Hennep Gaarde.

De warme dorpssfeer maakt Zevenhuizen bijzonder; mensen groeten elkaar op straat en evenementen zoals de jaarlijkse braderie en dorpsfeesten zorgen voor een hechte gemeenschap.

Op het gebied van onderwijs zijn er vier basisscholen: De Eendragt en De Nessevliet (beide protestants-christelijk), KC Koningskwartier en de openbare school ’t Reigerbos. Middelbare scholen zijn er niet in het dorp zelf, maar in de omliggende plaatsen zijn er voldoende opties.

Gebruiksoppervlakte woningen:
De Meetinstructie is gebaseerd op de NEN2580. De Meetinstructie is bedoeld om een meer eenduidige manier van meten toe te passen voor het geven van een indicatie van de gebruiksoppervlakte. De Meetinstructie sluit verschillen in meetuitkomsten niet volledig uit, door bijvoorbeeld interpretatieverschillen, afrondingen of beperkingen bij het uitvoeren van de meting.

Rechtsgeldige koopovereenkomst pas ná ondertekening:
Een mondelinge overeenstemming tussen de particuliere verkoper en de particuliere koper is niet rechtsgeldig. Met andere woorden: er is geen koop. Er is pas sprake van een rechtsgeldige koop als de particuliere verkoper en de particuliere koper de koopovereenkomst hebben ondertekend. Dit vloeit voort uit artikel 7:2 Burgerlijk Wetboek. Een bevestiging van de mondelinge overeenstemming per e-mail of een toegestuurd concept van de koopovereenkomst wordt overigens niet gezien als een ‘ondertekende koopovereenkomst’.

Van der Panne woning- & bedrijfsmakelaardij is de makelaar van de verkoper. Neem uw eigen NVM-makelaar mee, voor goed advies bij de aankoop van uw nieuwe woning!

Lees de volledige omschrijving

Kenmerken

Overdracht

Status Verkocht
Aanvaarding In overleg

Bouwvorm

Soort object Woonhuis
Soort woning Eengezinswoning
Type woning Tussenwoning
Bouwjaar 2015
Bouwvorm Bestaande bouw

Indeling

Woonoppervlakte 136 m²
Perceeloppervlakte 143 m²
Inhoud 490 m³
Aantal woonlagen 3

Energie

Energieklasse A
Energie einddatum dinsdag 9 oktober 2035
Isolatie Volledig geïsoleerd
Warmwater Cv ketel
Verwarming Cv ketel

Buitenruimte

Tuin Achtertuin, voortuin
Hoofdtuin Achtertuin
Oppervlakte hoofdtuin 66 m²
Ligging hoofdtuin Zuid-west
Achterom Ja
Kwaliteit tuin Verzorgd

Bergruimte

Garage Geen garage
Schuur / Berging Vrijstaand hout

Parkeergelegenheid

Voorzieningen Openbaar parkeren

Dak

Dak Zadeldak

Overig

Permanente bewoning Ja
Onderhoud binnen Uitstekend
Onderhoud buiten Uitstekend
Huidig gebruik Woonruimte
Huidige bestemming Woonruimte

Voorzieningen

Voorzieningen Mechanische ventilatie, tv kabel, airconditioning, dakraam, glasvezel kabel

Kadastrale gegevens

Gemeente Zevenhuizen
Sectie E
Perceelnummer 1655
Oppervlakte 143 m²
Eigendomssituatie Volle eigendom
VanderPanne-HR-6745
Interesse in deze woning?

Rody helpt u graag

Delen

Vergelijkbare objecten

Land Kanaän 11

Zevenhuizen Vraagprijs: € 675.000,- k.k.
  • 128 m2
  • 149 m2
  • 5 kamers

Keerploeg 19

Zevenhuizen Vraagprijs: € 615.000,- k.k.
  • 133 m2
  • 125 m2
  • 5 kamers

Koningsoever 3

Zevenhuizen Vraagprijs: € 999.000,- k.k.
  • 340 m2
  • 225 m2
  • 6 kamers

Middelweg 4 f

Zevenhuizen Vraagprijs: € 2.395.000,- k.k.
  • 1850 m2
  • 300 m2
  • 6 kamers

Hennipdreef 13

Zevenhuizen Vraagprijs: € 1.075.000,- k.k.
  • 1465 m2
  • 175 m2
  • 4 kamers
fundawonen-logo
logo
VGC_keurmerk_nw_zwart-grijs
nwwi
logo_NVM_business_staand_CMYK