Marius Richtersstraat 19

Rotterdam Vraagprijs: € 592.500,- k.k.
Verkocht
  • Woonoppervlakte 134 m2
  • Perceeloppervlakte 158 m2
  • Aantal slaapkamers 4
  • Bouwjaar 2004

Omschrijving

Dit is de ideale eengezinswoning! Het huis beschikt over een uitgebouwde woonkamer en een ruime open keuken. Tevens is de tweede verdieping uitgebouwd met een dakkapel aan de achterzijde. Hierdoor zijn er vier (mogelijkheid tot vijf) ruime slaapkamers aanwezig. Achter ligt het huis aan het water wat altijd een extra beleving geeft aan een tuin. Ook de winkels, de horeca en het metrostation zijn aan te lopen. Met de auto kun je twee kanten op, richting Zevenhuizen en zo de A-12 op (richting Den Haag/Utrecht) of richting Nieuwerkerk naar de A-20 (Utrecht/Rotterdam).

Begane grond:
Bij binnenkomst word je verwelkomd in een lichte hal met de meterkast, een modern toilet met fontein, praktische bergruimte onder de trap en de trapopgang naar de verdieping.

Via een houten deur met glas loop je de open keuken binnen: een fijne, ruime plek die is uitgerust met een koelkast, combi-oven/magnetron, vaatwasser, inductiekookplaat en afzuigkap. De uitgebouwde woonkamer voelt warm en royaal aan dankzij de prachtige eikenhouten vloer. Hier geniet je van een heerlijke leefruimte. De dubbele deuren – voorzien van horren – nodigen uit om de achtertuin in te stappen. In de tuin ervaar je het echte buitengevoel: achterin ligt een sfeervolle vlonder direct aan het water, perfect voor een kop koffie in de ochtend of een borrel in de avondzon. Daarnaast vind je er een houten berging én een praktische achterom.

1e verdieping:
Op de eerste verdieping brengt de overloop je naar twee comfortabele slaapkamers aan de achterzijde en een derde slaapkamer aan de voorzijde. De badkamer is modern en compleet ingericht met een hangend toilet, designradiator, stijlvol wastafelmeubel met dubbele kraan en een ruime inloopdouche.

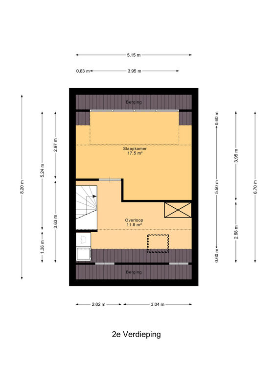
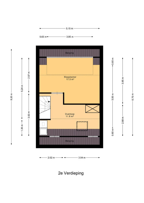
2e verdieping:
De tweede verdieping verrast met een overloop aan de voorzijde, waar ook de wasmachineaansluiting is geplaatst. Aan de achterzijde bevindt zich een gezellige slaapkamer met dakkapel, waardoor er extra ruimte en daglicht ontstaat. Via losse trap bereik je de royale vliering: ideaal voor het opbergen van al je spullen. Ook achter de knieschotten is meer dan genoeg bergruimte te vinden.

Bijzonderheden:
- Gelegen op eigen grond
- Uitgebouwde woonkamer
- Gelegen aan het water
- Praktisch ingedeeld met vier slaapkamers
- Dakkapel aan de achterzijde
- Winkels, scholen, openbaar vervoer en natuur op loopafstand

Gebruiksoppervlakte woningen:
De Meetinstructie is gebaseerd op de NEN2580. De Meetinstructie is bedoeld om een meer eenduidige manier van meten toe te passen voor het geven van een indicatie van de gebruiksoppervlakte. De Meetinstructie sluit verschillen in meetuitkomsten niet volledig uit, door bijvoorbeeld interpretatieverschillen, afrondingen of beperkingen bij het uitvoeren van de meting.

Rechtsgeldige koopovereenkomst pas ná ondertekening:
Een mondelinge overeenstemming tussen de particuliere verkoper en de particuliere koper is niet rechtsgeldig. Met andere woorden: er is geen koop. Er is pas sprake van een rechtsgeldige koop als de particuliere verkoper en de particuliere koper de koopovereenkomst hebben ondertekend. Dit vloeit voort uit artikel 7:2 Burgerlijk Wetboek. Een bevestiging van de mondelinge overeenstemming per e-mail of een toegestuurd concept van de koopovereenkomst wordt overigens niet gezien als een ‘ondertekende koopovereenkomst’.

Van der Panne woning- & bedrijfsmakelaardij is de makelaar van de verkoper. Neem uw eigen NVM-makelaar mee, voor goed advies bij de aankoop van uw nieuwe woning!

Rotterdam-Nesselande
Rotterdam-Nesselande is een moderne en levendige wijk, prachtig gelegen aan de Zevenhuizerplas. Deze wijk combineert stedelijk wonen met een ontspannen strandgevoel. Met een brede boulevard, het stadsstrand en diverse recreatiemogelijkheden is Nesselande een geliefde plek voor bewoners en bezoekers.

Nesselande beschikt over vier basisscholen met verschillende onderwijsvormen: een christelijke school, een openbare tweetalige basisschool, een daltonbasisschool en een vrijeschool. Voor middelbaar onderwijs zijn er in de nabije omgeving goede opties, zoals het Comenius College in Nieuwerkerk en het Emmaus College in Rotterdam.

Op culinair gebied zijn Guay, Brasserie Lookies en L’Italiano populaire hotspots. Voor de lekkerste koffie is er Mamamo! Een fijne plek waar ouders kunnen ontspannen terwijl de kinderen spelen.
De wijk is uitstekend bereikbaar via het metrostation Nesselande, dat snelle verbindingen biedt naar Rotterdam centrum en omliggende gebieden. Daarnaast kent Nesselande diverse sportclubs, waardoor er volop mogelijkheden zijn om actief te zijn.
Kortom, Nesselande biedt voor ieder wat wils: een moderne, groene en kindvriendelijke woonomgeving met goede voorzieningen, leuke eetgelegenheden en volop recreatie.

Lees de volledige omschrijving

Kenmerken

Overdracht

Status Verkocht
Aanvaarding In overleg

Bouwvorm

Soort object Woonhuis
Soort woning Eengezinswoning
Type woning Tussenwoning
Bouwjaar 2004
Bouwvorm Bestaande bouw
Ligging Aan water, aan een rustige weg, in een woonwijk

Indeling

Woonoppervlakte 134 m²
Perceeloppervlakte 158 m²
Inhoud 467 m³
Aantal woonlagen 4

Energie

Energieklasse A
Energie einddatum dinsdag 12 november 2030
Isolatie Volledig geïsoleerd, hr glas
Warmwater Centrale voorziening, stadsverwarming
Verwarming Stadsverwarming

Buitenruimte

Tuin Achtertuin, voortuin
Hoofdtuin Achtertuin
Oppervlakte hoofdtuin 74 m²
Ligging hoofdtuin Noord
Achterom Nee
Kwaliteit tuin Verzorgd

Bergruimte

Garage Geen garage
Schuur / Berging Vrijstaand hout

Parkeergelegenheid

Voorzieningen Openbaar parkeren

Dak

Dak Zadeldak

Overig

Permanente bewoning Ja
Onderhoud binnen Goed tot uitstekend
Onderhoud buiten Goed tot uitstekend
Huidig gebruik Woonruimte
Huidige bestemming Woonruimte

Voorzieningen

Voorzieningen Mechanische ventilatie, tv kabel, dakraam

Kadastrale gegevens

Gemeente Rotterdam
Sectie BC
Perceelnummer 1836
Oppervlakte 158 m²
Eigendomssituatie Volle eigendom
VdPanne-LR-0418
Interesse in deze woning?

Luc helpt u graag

Delen

Vergelijkbare objecten

Trompetbloem 18

Rotterdam Vraagprijs: € 485.000,- k.k.
  • 148 m2
  • 133 m2
  • 6 kamers

Kretalaan 59

Rotterdam Vraagprijs: € 1.495.000,- k.k.
  • 188 m2
  • 213 m2
  • 5 kamers
Homepage-dorpen-Nieuwerkerk-aan-den-IJssel-1
Meer weten over Rotterdam
fundawonen-logo
logo
VGC_keurmerk_nw_zwart-grijs
nwwi
logo_NVM_business_staand_CMYK