's-Gravenweg 284

Nieuwerkerk aan den IJssel Vraagprijs: € 995.000,- k.k.
Verkocht
  • Woonoppervlakte 185 m2
  • Perceeloppervlakte 1460 m2
  • Aantal slaapkamers 5
  • Bouwjaar 1912

Omschrijving

Wonen aan de 's-Gravenweg op een perceel van maar liefst 1.460 m2 grond! Het kan nu op nummer 284. Dit huis is in 1912 gebouwd en door de huidige eigenaren rigoureus verbouwd waarbij er onder andere de begane grond is vergroot en voorzien van een betonnen vloer. Ook zijn alle wanden nageïsoleerd met voorzetwanden. Achter de woning ligt een groot bijgebouw van 91 m2 evenals een flink bestraat terrein en een groot veld met grind en daarachter een fruitgaard met vijf fruitbomen waar de kippen lopen. Dit huis kan voor vele doelgroepen interessant zijn. De locatie is perfect te noemen, je loopt zo het Hitlandbos in en met de auto/fiets ben je binnen enkele minuten bij de vele voorzieningen van Nieuwerkerk aan den IJssel; treinstation, sportvelden, winkels en scholen (zowel basis- als middelbaar).

Persoonlijke tekst eigenaar:
We wonen inmiddels al een aantal jaar met veel plezier in ons huis. We hebben het in die periode helemaal verbouwd en naar ons zin gemaakt en genieten er nog steeds elke dag van. We houden vooral van de combinatie van sfeervol karakteristiek en modern. Het is echt een authentiek huis met een moderne touch.

We hebben beneden gekozen voor een grote open ruimte, zodat alles met elkaar verbonden is. Dit is daardoor een heerlijke leefruimte geworden.

De ruime master slaapkamer met veel licht, een grote inloopkast en badkamer en suite maakt dat het elke dag heerlijk wakker worden is.

Ook het buiten leven vinden we heerlijk. We zijn vaak in onze achtertuin te vinden waar we graag met vrienden en familie bbq'en. Door de openslaande deuren kunnen we heerlijk binnen en buiten samenvoegen. Achter zitten we ook graag in de fruitgaard bij onze kippen en zien we in de sloot de jonge eenden en zwanen opgroeien.
De schuur en het bijgebouw gebruiken we nu voornamelijk als opslag en werkplaats voor ons bedrijf, maar leent zich voor verschillende doeleinden. Zelf hadden we bijvoorbeeld in gedachten om er ooit een sauna/spagedeelte van te maken of een hobby/kantoorruimte.

Ook de locatie vinden we heerlijk. Aan de overkant van de straat loop je zo Hitland bos in en binnen 10 minuten lopen ben je bij het treinstation Nieuwerkerk a/d IJssel en het winkelcentrum Reigerhof.

Kortom, genoeg mogelijkheden om te genieten van ons heerlijke karakteristieke huis op een fantastische locatie.

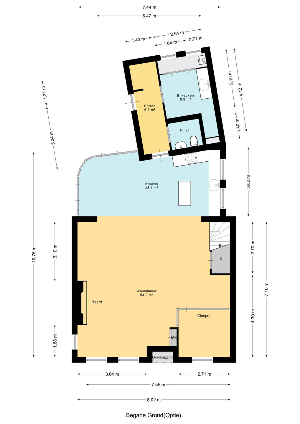
Begane grond:
Entree aan de achterzijde in de aanbouw. Hal met bijkeuken met een vaste schuifwandkast, een keukenblok met de wasmachineaansluiting, de CV-installatie en de pomp van de vloerverwarming. In de hal is het toilet (geplaatst in 2023) te vinden (met een hangend toilet en een eiken plank met waskom).

De woonkamer is riant te noemen, met stuukwerk wand- en vloerafwerking en grote grijze tegels met vloerverwarming. Leuke details zijn het glas in lood en de gashaard. Praktisch is de kast onder de trap.

Open keuken (2012) met een combi oven, een 5-pits gaskookplaat, een afzuigkap en een vaatwasser.

1e verdieping:
Overloop. Badkamer met een dakraam, een hangend toilet, een designradiator, een douche en een eiken plank met waskom. Slaapkamer aan de voorkant van de woning. Hoofdslaapkamer aan de voorkant met een inloopkast, een ligbad met jets, een waskom en airconditioning. Derde slaapkamer aan de achterzijde van het huis. Op deze verdieping zijn eenvoudig meerdere slaapkamers te maken, de hoofdslaapkamer is ruim te noemen.

Bijzonderheden:
De voorgevel van de woning is historisch erfgoed. Er dient overpad verleend te worden aan de eigenaren van nummer 284 A.


Nieuwerkerk aan den IJssel is een gezellig en charmant dorp, gelegen aan de Hollandse IJssel. Het dorp biedt een fijne mix van natuur, ontspanning en activiteiten voor jong en oud.
Voor liefhebbers van buiten zijn is er een prachtige golfbaan in een natuurrijke omgeving. Gezinnen met kinderen kunnen terecht in zwembad het Polderbad voor een verfrissende duik. Daarnaast zijn er volop sportmogelijkheden met diverse verenigingen, waaronder een voetbalclub, tennisclub, hockeyclub en een dansschool.
Het historische hart van Nieuwerkerk, het Oude Dorp, heeft een sfeervolle uitstraling met een gevarieerd aanbod aan winkels en horecagelegenheden.
Nieuwerkerk is bovendien uitstekend bereikbaar: dankzij een goede treinverbinding sta je in ongeveer 15 minuten in het centrum van Rotterdam.
Voor gezinnen met kinderen is er ruime keuze op het gebied van onderwijs. Nieuwerkerk telt maar liefst zeven basisscholen, elk met een eigen onderwijsvisie, zoals de Elimschool, Gideonschool, Montessorischool en de Prins Willem Alexanderschool. Ook voortgezet onderwijs is aanwezig, met twee middelbare scholen: het openbare Thorbecke en het christelijke Comenius College.


Gebruiksoppervlakte woningen:
De Meetinstructie is gebaseerd op de NEN2580. De Meetinstructie is bedoeld om een meer eenduidige manier van meten toe te passen voor het geven van een indicatie van de gebruiksoppervlakte. De Meetinstructie sluit verschillen in meetuitkomsten niet volledig uit, door bijvoorbeeld interpretatieverschillen, afrondingen of beperkingen bij het uitvoeren van de meting.

Rechtsgeldige koopovereenkomst pas ná ondertekening:
Een mondelinge overeenstemming tussen de particuliere verkoper en de particuliere koper is niet rechtsgeldig. Met andere woorden: er is geen koop. Er is pas sprake van een rechtsgeldige koop als de particuliere verkoper en de particuliere koper de koopovereenkomst hebben ondertekend. Dit vloeit voort uit artikel 7:2 Burgerlijk Wetboek. Een bevestiging van de mondelinge overeenstemming per e-mail of een toegestuurd concept van de koopovereenkomst wordt overigens niet gezien als een ‘ondertekende koopovereenkomst’.

Van der Panne woning- & bedrijfsmakelaardij is de makelaar van de verkoper. Neem uw eigen NVM-makelaar mee, voor goed advies bij de aankoop van uw nieuwe woning!

Lees de volledige omschrijving

Kenmerken

Overdracht

Status Verkocht
Aanvaarding In overleg

Bouwvorm

Soort object Woonhuis
Soort woning Eengezinswoning
Type woning Vrijstaande woning
Bouwjaar 1912
Bouwvorm Bestaande bouw
Ligging Buiten de bebouwde kom

Indeling

Woonoppervlakte 185 m²
Perceeloppervlakte 1460 m²
Inhoud 655 m³
Aantal woonlagen 2

Energie

Energieklasse B
Energie einddatum maandag 12 februari 2035
Isolatie Dakisolatie, muurisolatie, vloerisolatie, dubbel glas
Warmwater Cv ketel
Verwarming Cv ketel

Buitenruimte

Tuin Tuin rondom
Hoofdtuin Tuin rondom
Achterom Ja
Kwaliteit tuin Verzorgd

Bergruimte

Garage Vrijstaand steen

Parkeergelegenheid

Voorzieningen Op eigen terrein

Dak

Dak Samengesteld dak

Overig

Permanente bewoning Ja
Onderhoud binnen Goed
Onderhoud buiten Goed
Huidig gebruik Woonruimte
Huidige bestemming Woonruimte

Voorzieningen

Voorzieningen Alarminstallatie, tv kabel, airconditioning, rookkanaal

Kadastrale gegevens

Gemeente Nieuwerkerk aan den IJssel
Sectie B
Perceelnummer 4282
Oppervlakte 1460 m²
Eigendomssituatie Volle eigendom
VanderPanne-HR-6621
Interesse in deze woning?

Esmille helpt u graag

Delen

Vergelijkbare objecten

Dorpsstraat 18

Nieuwerkerk aan den IJssel Vraagprijs: € 895.000,- k.k.
  • 212 m2
  • 5 kamers

Zeemanstraat 4

Nieuwerkerk aan den IJssel Vraagprijs: € 489.000,- k.k.
  • 169 m2
  • 146 m2
  • 6 kamers

Colorado 204

Nieuwerkerk aan den IJssel Vraagprijs: € 979.500,- k.k.
  • 197 m2
  • 196 m2
  • 6 kamers

Klein Hitland 280

Nieuwerkerk aan den IJssel Vraagprijs: € 285.000,- k.k.
  • 452 m2
  • 47 m2
  • 2 kamers

Klein Hitland 59

Nieuwerkerk aan den IJssel Vraagprijs: € 287.500,- k.k.
  • 332 m2
  • 80 m2
  • 4 kamers

Veenmos 5

Nieuwerkerk aan den IJssel Vraagprijs: € 485.000,- k.k.
  • 157 m2
  • 112 m2
  • 5 kamers

Gouwe 1

Nieuwerkerk aan den IJssel Vraagprijs: € 825.000,- k.k.
  • 331 m2
  • 183 m2
  • 5 kamers

Rijskade 9

Nieuwerkerk aan den IJssel Vraagprijs: € 695.000,- k.k.
  • 450 m2
  • 168 m2
  • 4 kamers

Klein Hitland 125

Nieuwerkerk aan den IJssel Vraagprijs: € 425.000,- k.k.
  • 688 m2
  • 112 m2
  • 3 kamers
fundawonen-logo
logo
VGC_keurmerk_nw_zwart-grijs
nwwi
logo_NVM_business_staand_CMYK