Van der Panne woning- & bedrijfsmakelaardij
Van der Panne woning- & bedrijfsmakelaardij

Vasaristraat 36

Rotterdam Vraagprijs: € 259.500,- k.k.
Verkocht
  • Woonoppervlakte 62 m2
  • Aantal slaapkamers 2
  • Bouwjaar 1966

Omschrijving

Licht, modern en instap-klaar wonen! Dit leuke 3-kamer appartement ligt op de vierde (hoogste!) verdieping en heeft een leuk en vrij uitzicht. Een fijne woonkamer, een moderne keuken, twee slaapkamers, een moderne badkamer en een balkon zorgen voor een fijn wooncomfort. Bovendien is er een ruime berging aanwezig. Het complex ligt in de wijk Prinsenland. Voorzieningen zoals supermarkten, speelgelegenheden, scholen en het openbaar zwembad liggen op loopafstand. Ook winkelcentrum “Het Lage Land”, woonmall “Alexandrium”, openbaar vervoer (waaronder metrohalte Prinsenlaan) en uitvalswegen liggen in de directe nabijheid. Genieten van de natuur? Het Kralingse Bos of het Prinsenpark zijn op loop- of fietsafstand bereikbaar.

Persoonlijke tekst eigenaar
Dit appartement is voor ons een fijne plek geweest om te wonen. Het was ons eerste eigen huis en we hebben hier met veel plezier geleefd. Een prettige sfeer, fijne omgang met de buren en echt een plek om tot rust te komen.

We vertrekken vanwege gezinsuitbreiding. Als dat niet speelde, hadden we hier zonder twijfel nog jarenlang met veel plezier gewoond.

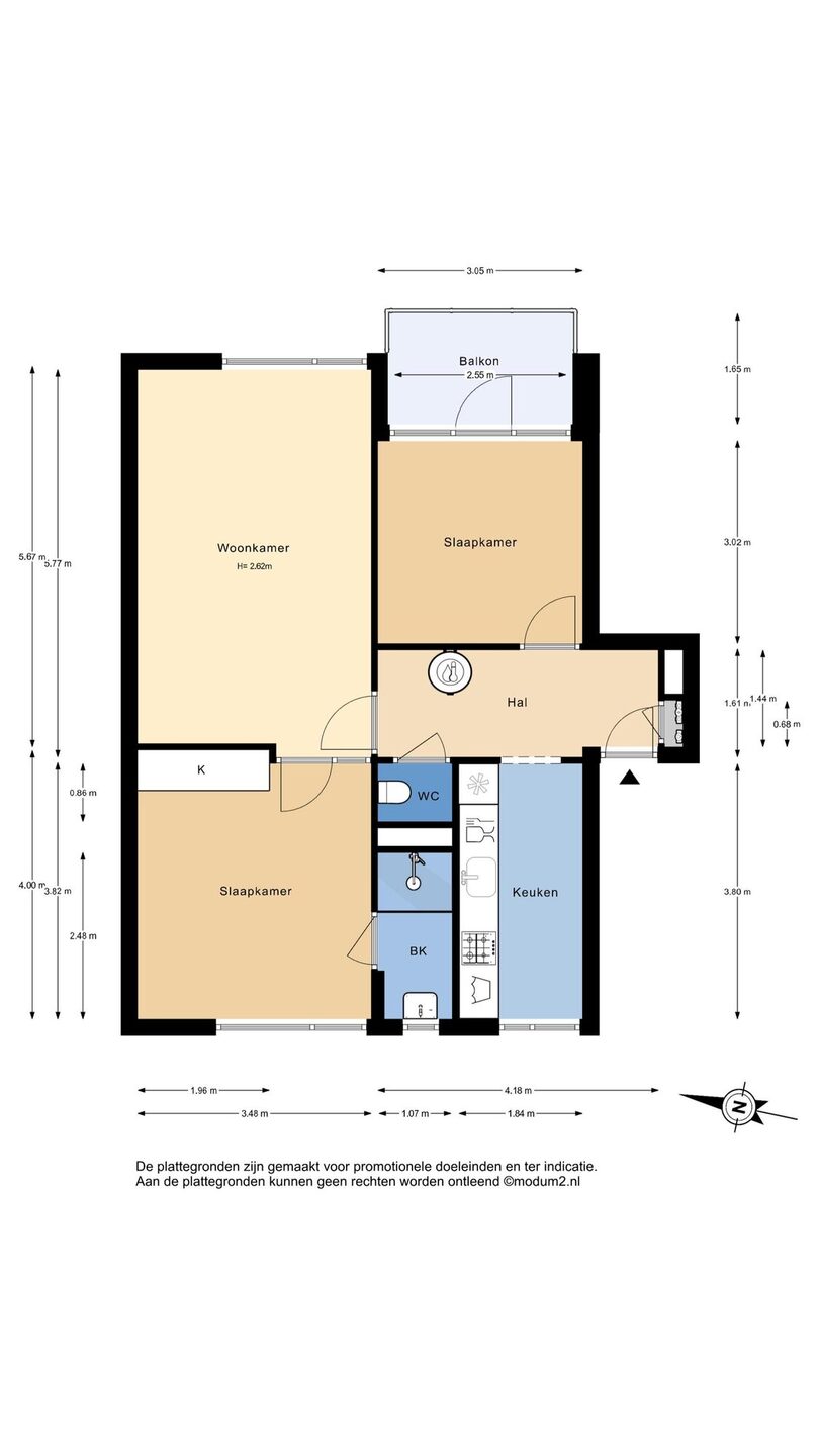
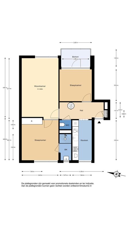
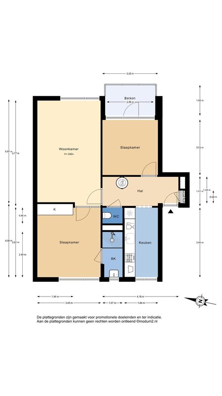
Begane grond:
Afgesloten entree met brievenbussen, bellentableau, trappenhuis en toegang tot een eigen ruime berging (ca. 7 m2) in de onderbouw.

4e verdieping:
Entree, hal met meterkast, modern separate toilet en toegang tot de overige vertrekken.

Het appartement is voorzien van een sfeervolle woonkamer met vrij uitzicht. Via de hal is moderne en stijlvolle keuken (2020) gelegen aan de achterzijde, bereikbaar. Deze is voorzien van een 4-pits gaskookplaat met afzuigkap, koel/vriescombinatie, combi magnetron/oven, een vaatwasser en aansluiting voor de wasmachine.

Verder beschikt het appartement over twee ruime slaapkamers. De slaapkamer aan de voorzijde geeft toegang tot het zonnige balkon. De hoofdslaapkamer is gelegen aan de achterzijde en beschikt over een handige vaste kast. Via de hoofdslaapkamer is de badkamer te bereiken. De moderne badkamer is volledig betegeld en voorzien van een douche en een wastafel met meubel.

Het gehele appartement is voorzien een nette laminaatvloer.

Bijzonderheden:
De maandelijkse VvE kosten bedragen ca. € 173,74 excl. stookkosten (ca. €50,-). Het appartement wordt verwarmd middels (blokverwarming) en warm water via de smartboiler (eigendom, 2023).

De woning is gelegen op erfpachtgrond tot en met 11 december 2118. De erfpachtcanon is voor de volledige periode afgekocht. Er is een zelfbewoningsplicht van toepassing. Heel fijn is dat er veel (gratis) parkeermogelijkheden voor de deur zijn.

Afmetingen:
Zie de (interactieve) plattegronden voor de afmetingen van de woning.

Gebruiksoppervlakte woningen:
De Meetinstructie is gebaseerd op de NEN2580. De Meetinstructie is bedoeld om een meer eenduidige manier van meten toe te passen voor het geven van een indicatie van de gebruiksoppervlakte. De Meetinstructie sluit verschillen in meetuitkomsten niet volledig uit, door bijvoorbeeld interpretatieverschillen, afrondingen of beperkingen bij het uitvoeren van de meting.

Rechtsgeldige koopovereenkomst pas ná ondertekening:
Een mondelinge overeenstemming tussen de particuliere verkoper en de particuliere koper is niet rechtsgeldig. Met andere woorden: er is geen koop. Er is pas sprake van een rechtsgeldige koop als de particuliere verkoper en de particuliere koper de koopovereenkomst hebben ondertekend. Dit vloeit voort uit artikel 7:2 Burgerlijk Wetboek. Een bevestiging van de mondelinge overeenstemming per e-mail of een toegestuurd concept van de koopovereenkomst wordt overigens niet gezien als een ‘ondertekende koopovereenkomst’.

Van der Panne woning- & bedrijfsmakelaardij is de makelaar van de verkoper. Neem uw eigen NVM-makelaar mee, voor goed advies bij de aankoop van uw nieuwe woning!

Lees de volledige omschrijving

Kenmerken

Overdracht

Status Verkocht
Aanvaarding In overleg

Bouwvorm

Soort object Appartement
Bouwjaar 1966
Bouwvorm Bestaande bouw
Ligging In een woonwijk, vrij uitzicht

Indeling

Woonoppervlakte 62 m²
Inhoud 205 m³
Aantal woonlagen 1

Energie

Energieklasse D
Energie einddatum woensdag 16 mei 2029
Isolatie Dubbel glas
Warmwater Elektrische boiler eigendom
Verwarming Blokverwarming

Buitenruimte

Tuin Geen tuin
Achterom Nee

Bergruimte

Garage Geen garage

Parkeergelegenheid

Voorzieningen Openbaar parkeren

Overig

Permanente bewoning Ja
Onderhoud binnen Goed
Onderhoud buiten Goed
Huidig gebruik Woonruimte
Huidige bestemming Woonruimte

Kadastrale gegevens

Gemeente Kralingen
Sectie K
Perceelnummer 2386
Eigendomssituatie Eigendom belast met erfpacht
VanderPanne-HR-6745
Interesse in deze woning?

Rody helpt u graag

Delen

Vergelijkbare objecten

Balsemkruid 62

Rotterdam Vraagprijs: € 487.500,- k.k.
  • 138 m2
  • 123 m2
  • 6 kamers
Homepage-dorpen-Nieuwerkerk-aan-den-IJssel-1
Meer weten over Rotterdam
fundawonen-logo
logo
VGC_keurmerk_nw_zwart-grijs
nwwi
logo_NVM_business_staand_CMYK