Marius Richtersstraat 9

Rotterdam Vraagprijs: € 695.000,- k.k.
Verkocht
  • Woonoppervlakte 114 m2
  • Perceeloppervlakte 319 m2
  • Aantal slaapkamers 4
  • Bouwjaar 2004

Omschrijving

Royaal wonen aan het water met volop ruimte, comfort én eigen garage

In het geliefde Rotterdam Nesselande staat deze charmante hoekwoning klaar voor een nieuw hoofdstuk. Een woning met karakter, ruimte en verrassend veel praktische extra’s zoals een eigen oprit met carport, een afsluitbare overkapping én een ruime garage. De tuin is diep, groen, ligt aan het water en biedt altijd wel een plek in de zon. En dat alles in een rustige straat met alle voorzieningen om de hoek. Of je nu houdt van wandelen langs de Zevenhuizerplas, boodschappen doen in het gezellige winkelcentrum of snel naar de stad wilt: hier komt alles samen.

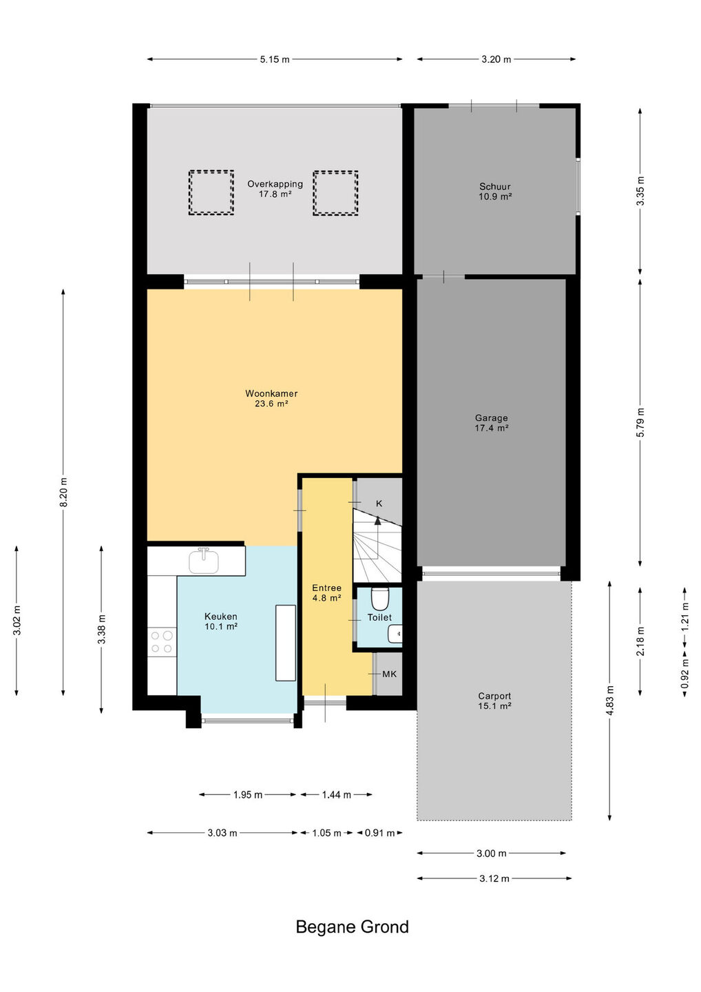
Begane grond:
Je wordt welkom geheten in een nette entree met het toilet, een kast onder de trap en toegang tot de lichte woonkamer. De openslaande deuren naar de tuin zorgen voor veel licht en verbinden binnen moeiteloos met buiten. Aan de voorzijde van de woning bevindt zich de moderne keuken. Deze is voorzien van diverse inbouwapparatuur, waaronder een inductiekookplaat, afzuigkap, combi-oven, koelkast, vriezer en een vaatwasser. Dankzij het grote raam aan de voorzijde is ook dit een fijne, lichte plek om te koken en te genieten.

Aan de zijkant van de woning ligt een aparte berging, die via de tuin bereikbaar is. Vanuit deze berging heb je direct toegang tot de ruime garage. Deze is tevens van buitenaf toegankelijk via een elektrische roldeur aan de voorzijde van de woning. Alles bij elkaar biedt dit een zeer praktische en multifunctionele indeling, ideaal voor wie ruimte zoekt voor opslag, werk of hobby.

De diepe achtertuin grenst aan het water, waardoor je altijd een vrij en groen uitzicht hebt. Of je nu houdt van tuinieren, buiten eten of gewoon in alle rust genieten: hier zit je goed.

1e verdieping:
Op de eerste verdieping zijn drie slaapkamers te vinden, stuk voor stuk prettig van formaat. De moderne badkamer is netjes en voorzien van een inloopdouche, toilet en wastafel.

2e verdieping:
Ook op zolder is het heerlijk ruim. Hier vind je een vierde slaapkamer met dakraam en volop bergruimte achter de knieschotten. De overloop biedt ruimte voor de wasmachine en droger, en ook hier is een dakraam aanwezig.

Bijzonderheden:
- Hoekwoning met veel privacy en een verzorgde uitstraling
- Eigen oprit met carport én een ruime garage
- Zonnige achtertuin aan het water
- Praktische indeling met vier volwaardige slaapkamers
- Afsluitbare overkapping als verlengstuk van de woonkamer
- Rustige en kindvriendelijke ligging in een fijne buurt
- Winkels, scholen, openbaar vervoer en natuur op loopafstand
- Zonnepanelen aanwezig
- Goed onderhouden en instapklaar

Rotterdam-Nesselande

Rotterdam-Nesselande is een moderne en levendige wijk, prachtig gelegen aan de Zevenhuizerplas. Deze wijk combineert stedelijk wonen met een ontspannen strandgevoel. Met een brede boulevard, het stadsstrand en diverse recreatiemogelijkheden is Nesselande een geliefde plek voor bewoners en bezoekers.

Nesselande beschikt over vier basisscholen met verschillende onderwijsvormen: een christelijke school, een openbare tweetalige basisschool, een daltonbasisschool en een vrijeschool. Voor middelbaar onderwijs zijn er in de nabije omgeving goede opties, zoals het Comenius College in Nieuwerkerk en het Emmaus College in Rotterdam.

Op culinair gebied zijn Guay, Brasserie Lookies en L’Italiano populaire hotspots. Voor de lekkerste koffie is er Mamamo! Een fijne plek waar ouders kunnen ontspannen terwijl de kinderen spelen.

De wijk is uitstekend bereikbaar via het metrostation Nesselande, dat snelle verbindingen biedt naar Rotterdam centrum en omliggende gebieden. Daarnaast kent Nesselande diverse sportclubs, waardoor er volop mogelijkheden zijn om actief te zijn.

Kortom, Nesselande biedt voor ieder wat wils: een moderne, groene en kindvriendelijke woonomgeving met goede voorzieningen, leuke eetgelegenheden en volop recreatie.

Lees de volledige omschrijving

Kenmerken

Overdracht

Status Verkocht
Aanvaarding In overleg

Bouwvorm

Soort object Woonhuis
Soort woning Eengezinswoning
Type woning Hoekwoning
Bouwjaar 2004
Bouwvorm Bestaande bouw

Indeling

Woonoppervlakte 114 m²
Perceeloppervlakte 319 m²
Inhoud 525 m³
Aantal woonlagen 3

Energie

Energieklasse A++
Energie einddatum dinsdag 31 juli 2035
Isolatie Volledig geïsoleerd
Warmwater Stadsverwarming
Verwarming Stadsverwarming

Buitenruimte

Tuin Achtertuin, voortuin, zijtuin
Hoofdtuin Achtertuin
Oppervlakte hoofdtuin 126 m²
Ligging hoofdtuin Noord
Achterom Ja
Kwaliteit tuin Verzorgd

Bergruimte

Garage Aangebouwd steen
Voorzieningen Elektra, elektrische deur

Parkeergelegenheid

Voorzieningen Openbaar parkeren, op eigen terrein

Overig

Permanente bewoning Ja
Onderhoud binnen Goed
Onderhoud buiten Goed
Huidig gebruik Woonruimte
Huidige bestemming Woonruimte

Voorzieningen

Voorzieningen Mechanische ventilatie, tv kabel, buitenzonwering, airconditioning, dakraam, glasvezel kabel

Kadastrale gegevens

Gemeente Rotterdam
Sectie BC
Perceelnummer 1841
Oppervlakte 319 m²
Eigendomssituatie Volle eigendom
VanderPanne-HR-6745
Interesse in deze woning?

Rody helpt u graag

Delen

Vergelijkbare objecten

Kretalaan 59

Rotterdam Vraagprijs: € 1.495.000,- k.k.
  • 188 m2
  • 213 m2
  • 5 kamers
Homepage-dorpen-Nieuwerkerk-aan-den-IJssel-1
Meer weten over Rotterdam
fundawonen-logo
logo
VGC_keurmerk_nw_zwart-grijs
nwwi
logo_NVM_business_staand_CMYK