Seine 89

Nieuwerkerk aan den IJssel Vraagprijs: € 695.000,- k.k.
Verkocht
  • Woonoppervlakte 142 m2
  • Perceeloppervlakte 285 m2
  • Aantal slaapkamers 4
  • Bouwjaar 1999

Omschrijving

Ruime twee-onder-een-kapwoning met zonnige tuin en vier slaapkamers in kindvriendelijke wijk

Op zoek naar een leuke gezinswoning in een fijne buurt? Deze royale twee-onder-een-kapwoning aan de Seine 89 biedt een gebruiksoppervlakte van maar liefst 142 m² en beschikt over een fijne tuin, vier slaapkamers, een grotere woonkamer (doordat het gedeelte achter de garage bij de woonkamer is getrokken) en diverse recente verbeteringen. Gelegen in een rustige, kindvriendelijke buurt met alle voorzieningen in de buurt, is dit een ideale plek om thuis te komen.

Persoonlijke tekst eigenaar:
Ik ben de eerste eigenaar van deze woning. In 1999 zijn wij hier als gezin komen wonen en wij hebben hier met veel plezier gewoond.
Het huis is licht en zonnig en de de wijk is rustig en heerlijk ruim opgezet. Nu de kinderen zijn uitgevlogen en ik alleen ben komen staan is het tijd om kleiner te gaan wonen.
Ik zal mijn vertrouwde buurt en de fijne buren gaan missen. Ik gun de nieuwe bewoners heel veel woonplezier in “mijn” huis!

Indeling

Begane grond:
Via de entree betreed je de hal met meterkast (aangesloten op Delta glasvezel), een modern hangtoilet met fonteintje en een open trap naar boven. De woonkamer is ruim opgezet dankzij de kopersoptie voor een grotere living, die standaard is bij de hoeken. De woonkamer is afgewerkt met een parketvloer en gestuukt plafond en biedt via de aanbouw toegang tot de zonnige achtertuin met onderheid terras, achterom en zonnescherm.

Aan de voorzijde bevindt zich de open keuken met natuurstenen blad, uitgerust met een koel-vriescombinatie, combi-oven, fornuis met oven en 6-pits gas, en een vaatwasser. Een echte leefkeuken, ideaal voor het hele gezin.

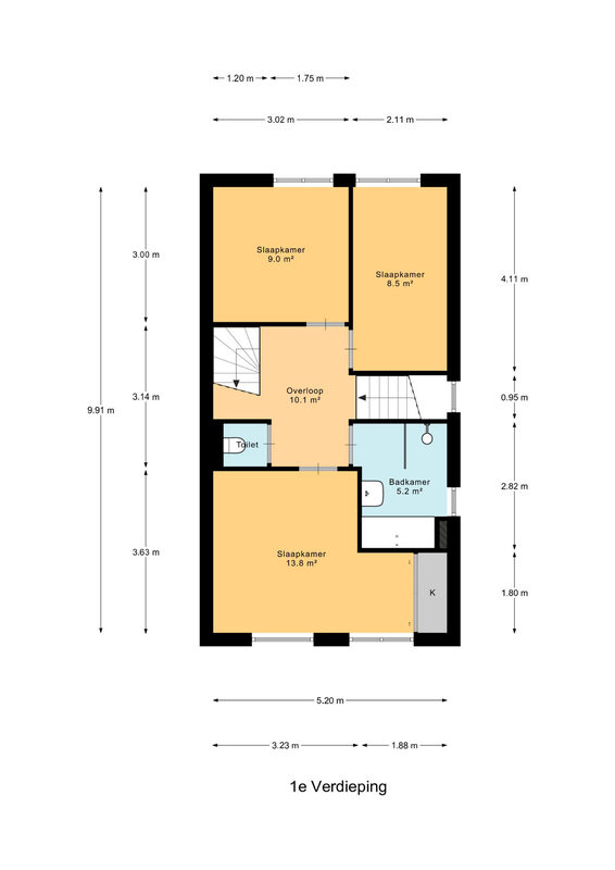
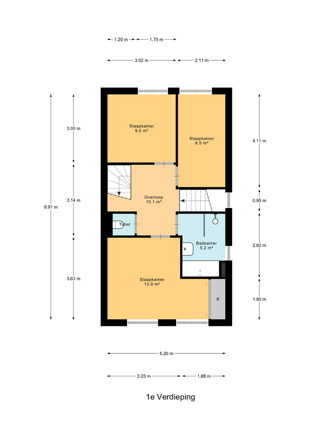
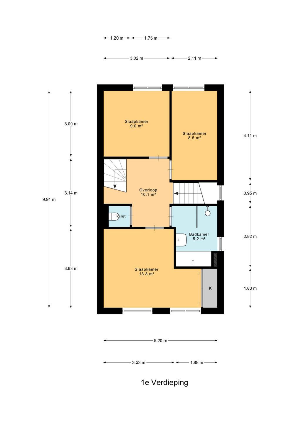
Eerste verdieping:
De overloop geeft toegang tot drie slaapkamers, waarvan twee aan de achterzijde en één aan de voorzijde. Ook bevindt zich hier een tweede, hangend toilet. De badkamer is compleet met ligbad, aparte douche en een wastafelmeubel.

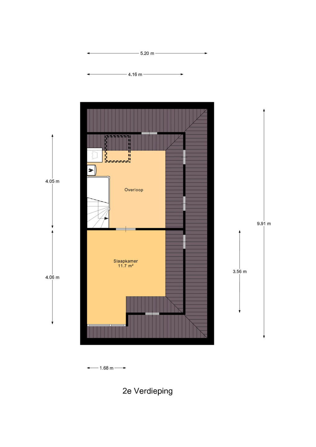
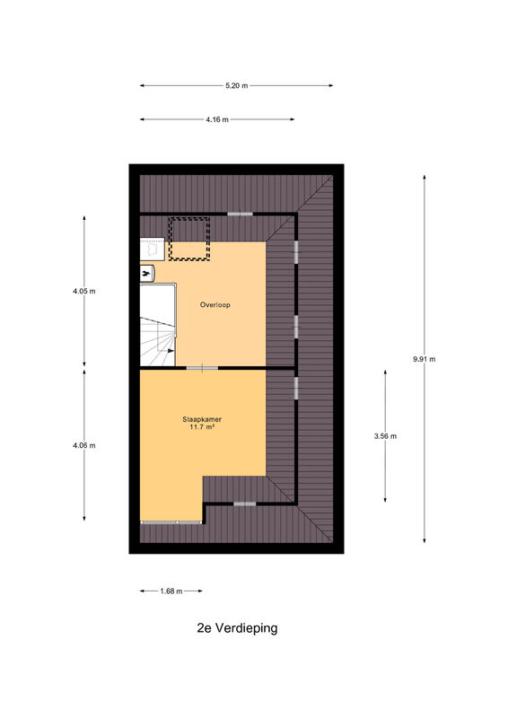
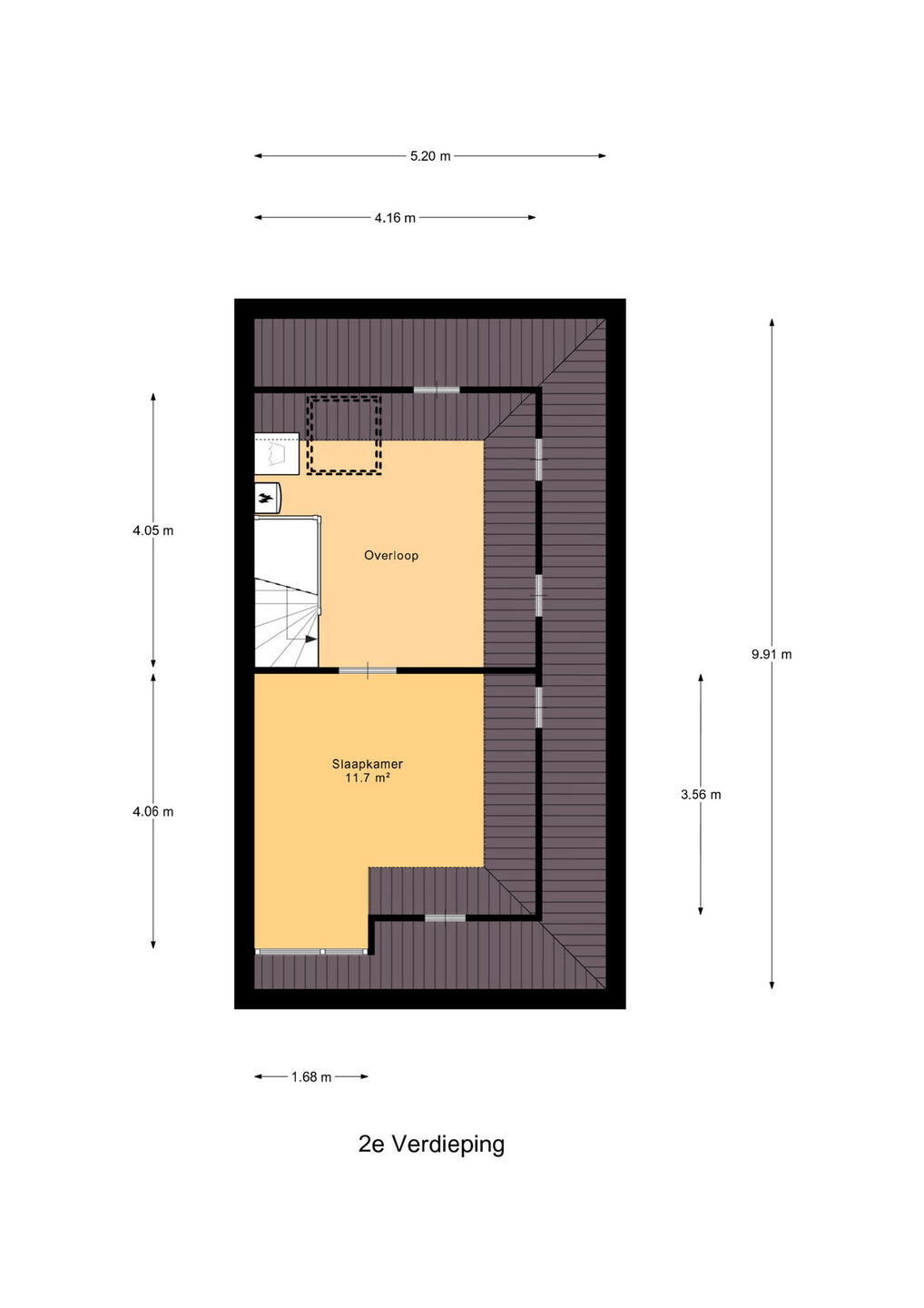
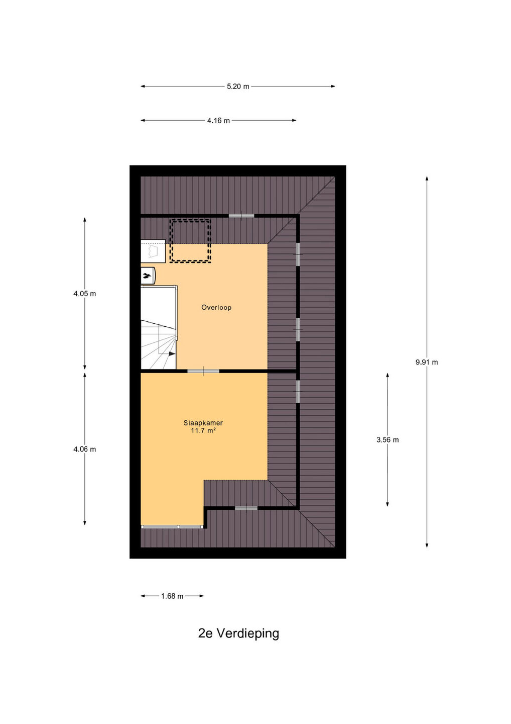
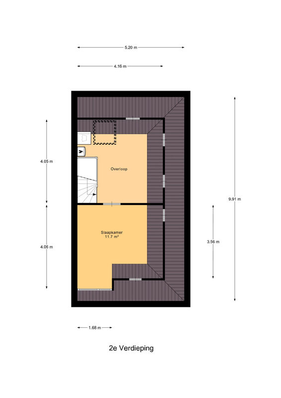
Tweede verdieping:
Op de bovenste verdieping bevindt zich een overloop met dakraam, cv-ketel uit 2022, wasmachineaansluiting en omvormer voor de 9 zonnepanelen die in november 2021 zijn geplaatst. De ruime slaapkamer aan de voorzijde heeft een dakkapel (niet standaard) met extra bergruimte op de vliering erboven.

Bijzonderheden
* Gebruiksoppervlakte: 142 m²
* Grote woonkamer door kopersvariant
* Onderheid terras, zonnige tuin met achterom
* 9 zonnepanelen (2021)
* Cv-ketel vernieuwd in 2022
* Isolatieglas beneden geplaatst in mei 2023
* Buiten schilderwerk: beneden mei 2023, boven en dakkapel maart 2025 uitgevoerd
* Binnen schilderwerk zolder en trap: februari 2024 uitgevoerd
* Oplevering: vanaf 1 november mogelijk
* Nabij winkels, scholen, speelgelegenheden en uitvalswegen

Een woning met karakter én comfort, klaar voor een nieuw hoofdstuk. Interesse? Neem contact met ons op voor een bezichtiging.

Nieuwerkerk aan den IJssel is een gezellig en charmant dorp, gelegen aan de Hollandse IJssel. Het dorp biedt een fijne mix van natuur, ontspanning en activiteiten voor jong en oud.

Voor liefhebbers van buiten zijn is er een prachtige golfbaan in een natuurrijke omgeving. Gezinnen met kinderen kunnen terecht in zwembad het Polderbad voor een verfrissende duik. Daarnaast zijn er volop sportmogelijkheden met diverse verenigingen, waaronder een voetbalclub, tennisclub, hockeyclub en een dansschool.

Het historische hart van Nieuwerkerk, het Oude Dorp, heeft een sfeervolle uitstraling met een gevarieerd aanbod aan winkels en horecagelegenheden.

Nieuwerkerk is bovendien uitstekend bereikbaar: dankzij een goede treinverbinding sta je in ongeveer 15 minuten in het centrum van Rotterdam. Zo is er Muller & Co, een sfeervolle brasserie en wijnbar. Ook HIT eten & drinken ligt in een prachtig gebied en biedt een ontspannen plek voor koffie, lunch, diner of borrel.

Voor gezinnen met kinderen is er ruime keuze op het gebied van onderwijs. Nieuwerkerk telt maar liefst zeven basisscholen, elk met een eigen onderwijsvisie, zoals de Elimschool, Gideonschool, Montessorischool en de Prins Willem Alexanderschool. Ook voortgezet onderwijs is aanwezig, met twee middelbare scholen: het openbare Thorbecke en het christelijke Comenius College.

Gebruiksoppervlakte woningen:
De Meetinstructie is gebaseerd op de NEN2580. De Meetinstructie is bedoeld om een meer eenduidige manier van meten toe te passen voor het geven van een indicatie van de gebruiksoppervlakte. De Meetinstructie sluit verschillen in meetuitkomsten niet volledig uit, door bijvoorbeeld interpretatieverschillen, afrondingen of beperkingen bij het uitvoeren van de meting.

Rechtsgeldige koopovereenkomst pas ná ondertekening:
Een mondelinge overeenstemming tussen de particuliere verkoper en de particuliere koper is niet rechtsgeldig. Met andere woorden: er is geen koop. Er is pas sprake van een rechtsgeldige koop als de particuliere verkoper en de particuliere koper de koopovereenkomst hebben ondertekend. Dit vloeit voort uit artikel 7:2 Burgerlijk Wetboek. Een bevestiging van de mondelinge overeenstemming per e-mail of een toegestuurd concept van de koopovereenkomst wordt overigens niet gezien als een ‘ondertekende koopovereenkomst’.

Van der Panne woning- & bedrijfsmakelaardij is de makelaar van de verkoper. Neem uw eigen NVM-makelaar mee, voor goed advies bij de aankoop van uw nieuwe woning!

Lees de volledige omschrijving

Kenmerken

Overdracht

Status Verkocht
Aanvaarding In overleg

Bouwvorm

Soort object Woonhuis
Soort woning Eengezinswoning
Type woning Twee onder één kapwoning
Bouwjaar 1999
Bouwvorm Bestaande bouw
Ligging In een woonwijk

Indeling

Woonoppervlakte 142 m²
Perceeloppervlakte 285 m²
Inhoud 530 m³
Aantal woonlagen 3

Energie

Energieklasse B
Energie einddatum zaterdag 24 augustus 2030
Isolatie Volledig geïsoleerd
Warmwater Cv ketel
Verwarming Cv ketel

Buitenruimte

Tuin Achtertuin, voortuin, zijtuin
Hoofdtuin Achtertuin
Oppervlakte hoofdtuin 126 m²
Ligging hoofdtuin Zuid-oost
Achterom Ja
Kwaliteit tuin Verzorgd

Bergruimte

Garage Geen garage
Schuur / Berging Aangebouwd steen

Parkeergelegenheid

Voorzieningen Op eigen terrein

Dak

Dak Schilddak

Overig

Permanente bewoning Ja
Onderhoud binnen Goed
Onderhoud buiten Goed
Huidig gebruik Woonruimte
Huidige bestemming Woonruimte

Kadastrale gegevens

Gemeente Nieuwerkerk aan den IJssel
Sectie A
Perceelnummer 6872
Oppervlakte 285 m²
Eigendomssituatie Volle eigendom
VanderPanne-HR-6889
Interesse in deze woning?

Kirsten helpt u graag

Delen

Vergelijkbare objecten

Spechtendaal 11

Nieuwerkerk aan den IJssel Vraagprijs: € 485.000,- k.k.
  • 119 m2
  • 107 m2
  • 5 kamers

Gouwe 1

Nieuwerkerk aan den IJssel Vraagprijs: € 795.000,- k.k.
  • 331 m2
  • 183 m2
  • 5 kamers

Klein Hitland 280

Nieuwerkerk aan den IJssel Vraagprijs: € 285.000,- k.k.
  • 452 m2
  • 47 m2
  • 2 kamers

Dorpsstraat 18

Nieuwerkerk aan den IJssel Vraagprijs: € 895.000,- k.k.
  • 212 m2
  • 5 kamers

Veenmos 5

Nieuwerkerk aan den IJssel Vraagprijs: € 465.000,- k.k.
  • 157 m2
  • 112 m2
  • 5 kamers

Italiaansezoom 2

Nieuwerkerk aan den IJssel Vraagprijs: € 1.195.000,- k.k.
  • 431 m2
  • 226 m2
  • 6 kamers

Rijskade 9

Nieuwerkerk aan den IJssel Vraagprijs: € 695.000,- k.k.
  • 450 m2
  • 168 m2
  • 4 kamers

Waterschapsweg 12

Nieuwerkerk aan den IJssel Vraagprijs: € 1.195.000,- k.k.
  • 2090 m2
  • 237 m2
  • 4 kamers

Klein Hitland 125

Nieuwerkerk aan den IJssel Vraagprijs: € 365.000,- k.k.
  • 688 m2
  • 112 m2
  • 3 kamers
fundawonen-logo
logo
VGC_keurmerk_nw_zwart-grijs
nwwi
logo_NVM_business_staand_CMYK