Goudmos 68

Nieuwerkerk aan den IJssel Vraagprijs: € 350.000,- k.k.
Verkocht
  • Woonoppervlakte 75 m2
  • Aantal slaapkamers 2
  • Bouwjaar 1976

Omschrijving

In de rustige en groene Mossenbuurt ligt deze keurig onderhouden benedenwoning (maisonnette). De woning is modern afgewerkt en beschikt over een lichte woonkamer met grote raampartijen, een keuken en badkamer uit 2019, twee ruime slaapkamers op de eerste verdieping en een fraai aangelegde tuin uit 2023 met meerdere zitplekken, stroompunten en verlichting. Dankzij het aangekocht snippergroen is het perceel breder dan gebruikelijk en heeft u net wat meer buitenruimte om van te genieten.

Persoonlijke tekst eigenaar:
Zes jaar geleden kochten wij deze woning en hebben we hem meteen volledig verbouwd voordat we erin trokken. We hebben alles naar onze smaak gemoderniseerd, zodat het huis direct comfortabel was. Sindsdien hebben we hier met veel plezier gewoond, samen met onze hond.

In 2023 kregen we de kans om een extra stuk grond bij te kopen, waardoor de tuin aanzienlijk is vergroot. Dit zorgde voor een heerlijke buitenruimte waar we veel van hebben genoten en onze hond misschien nog wel meer.

Nu we klaar zijn voor een volgende stap, komt deze fijne woning beschikbaar voor nieuwe bewoners. We hopen dat zij hier net zo prettig zullen wonen als wij hebben gedaan.

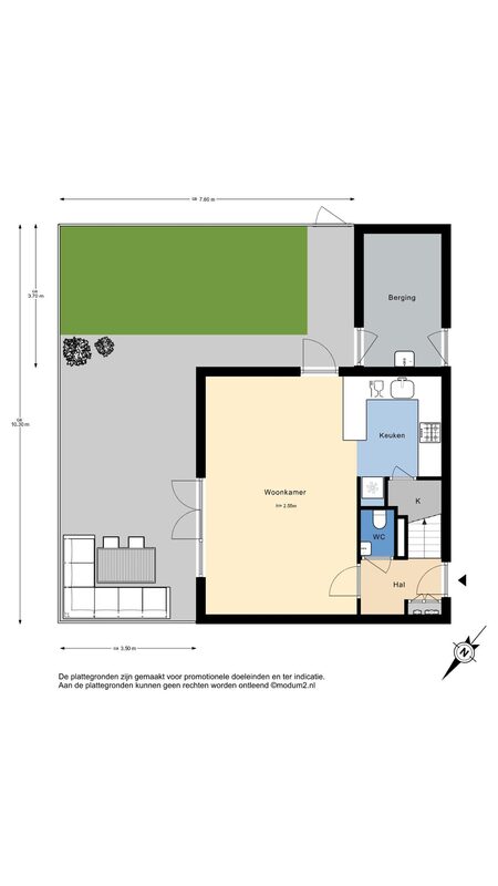
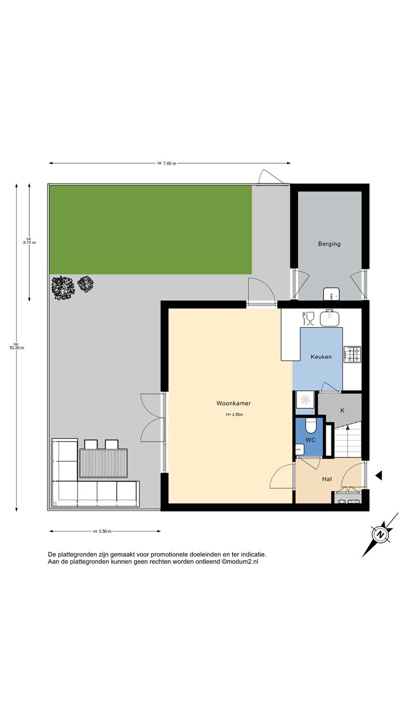
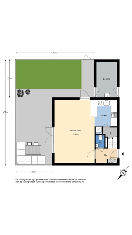
Begane grond:
Entree, hier bevinden zich de meterkast, het toilet met fonteintje en de trapopgang naar de eerste verdieping. Vanuit de hal loopt u de woonkamer in.

De woonkamer is opvallend licht dankzij de grote raampartijen. Aan de achterzijde zijn openslaande deuren naar de achtertuin en aan de zijkant van de woning is nog een extra deur naar de tuin, waardoor binnen en buiten mooi in elkaar overlopen. Onder de trap is een handige bergkast gecreëerd.

Aan de voorzijde ligt de moderne keuken (2019). Deze is uitgevoerd in een eigentijdse opstelling en voorzien van inbouwapparatuur, waaronder een oven, inductiekookplaat, vaatwasser en koelkast. De gehele begane grond is voorzien van vloerverwarming, wat zorgt voor een aangename warmteverdeling.

De tuin, die in 2023 geheel opnieuw is aangelegd beschikt over meerdere stroompunten en verlichting. Doordat de eigenaar extra snippergroen heeft aangekocht, is het perceel breder dan standaard en beschikt u over meer buitenruimte dan gebruikelijk. Er is voldoende plek voor meerdere zitgedeeltes, een loungeset of een gezellige buitentafel. De tuin is grotendeels onderhoudsarm aangelegd, waardoor u er vooral van kunt genieten.

Tevens is er een berging die u voldoende bergruimte geeft. Deze berging is voorzien van een wasbak en stroomaansluiting, ideaal voor bijvoorbeeld fietsen, gereedschap of een kleine klus- of hobbyhoek.

1e verdieping:
Op de eerste verdieping bevinden zich twee ruime slaapkamers, beide voorzien van grote ramen waardoor ze heerlijk licht en ruimtelijk aanvoelen. De kamers zijn goed in te delen en bieden voldoende ruimte voor een tweepersoonsbed en kastruimte.

De badkamer (2019) is modern uitgevoerd en beschikt over een inloopdouche, dubbele wastafel en toilet. Ook hier is vloerverwarming aanwezig. Op de overloop bevindt zich een separate bergruimte/technische ruimte met de aansluitingen voor wasmachine en droger, de cv-installatie (Vaillant ecoTEC plus, 2015) en het mechanische ventilatiesysteem (2021), welke de afgelopen jaren netjes zijn onderhouden.

Bijzonderheden:
- Instapklare benedenwoning
- fraaie aangelegde achtertuin
- De woning is grote deels voorzien van kunststofkozijnen met HR++ glas (met uitzondering van de voor- en achterdeur).
- Er is een actieve VVE waar een maandelijkse bijdrage aan is verschuldigd van € 165,- per maand.

Gebruiksoppervlakte woningen:
De Meetinstructie is gebaseerd op de NEN2580. De Meetinstructie is bedoeld om een meer eenduidige manier van meten toe te passen voor het geven van een indicatie van de gebruiksoppervlakte. De Meetinstructie sluit verschillen in meetuitkomsten niet volledig uit, door bijvoorbeeld interpretatieverschillen, afrondingen of beperkingen bij het uitvoeren van de meting.

Rechtsgeldige koopovereenkomst pas ná ondertekening:
Een mondelinge overeenstemming tussen de particuliere verkoper en de particuliere koper is niet rechtsgeldig. Met andere woorden: er is geen koop. Er is pas sprake van een rechtsgeldige koop als de particuliere verkoper en de particuliere koper de koopovereenkomst hebben ondertekend. Dit vloeit voort uit artikel 7:2 Burgerlijk Wetboek. Een bevestiging van de mondelinge overeenstemming per e-mail of een toegestuurd concept van de koopovereenkomst wordt overigens niet gezien als een ‘ondertekende koopovereenkomst’.

Van der Panne woning- & bedrijfsmakelaardij is de makelaar van de verkoper. Neem uw eigen NVM-makelaar mee, voor goed advies bij de aankoop van uw nieuwe woning!

Nieuwerkerk aan den IJssel
Nieuwerkerk aan den IJssel is een gezellig en charmant dorp, gelegen aan de Hollandse IJssel. Het dorp biedt een fijne mix van natuur, ontspanning en activiteiten voor jong en oud.

Voor liefhebbers van buiten zijn is er een prachtige golfbaan in een natuurrijke omgeving. Gezinnen met kinderen kunnen terecht in zwembad het Polderbad voor een verfrissende duik. Daarnaast zijn er volop sportmogelijkheden met diverse verenigingen, waaronder een voetbalclub, tennisclub, hockeyclub en een dansschool.
Het historische hart van Nieuwerkerk, het Oude Dorp, heeft een sfeervolle uitstraling met een gevarieerd aanbod aan winkels en horecagelegenheden.

Nieuwerkerk is bovendien uitstekend bereikbaar: dankzij een goede treinverbinding sta je in ongeveer 15 minuten in het centrum van Rotterdam. Zo is er Nonna’s Cucina, waar Italiaanse traditie en gastvrijheid samenkomen. Ook HIT eten & drinken ligt in een prachtig gebied en biedt een ontspannen plek voor koffie, lunch, diner of borrel.
Voor gezinnen met kinderen is er ruime keuze op het gebied van onderwijs. Nieuwerkerk telt maar liefst zeven basisscholen, elk met een eigen onderwijsvisie, zoals de Elimschool, Gideonschool, Montessorischool en de Prins Willem Alexanderschool. Ook voortgezet onderwijs is aanwezig, met twee middelbare scholen: het openbare Thorbecke en het christelijke Comenius College.

Lees de volledige omschrijving

Kenmerken

Overdracht

Status Verkocht
Aanvaarding In overleg

Bouwvorm

Soort object Appartement
Bouwjaar 1976
Bouwvorm Bestaande bouw
Ligging Aan een rustige weg, in een woonwijk

Indeling

Woonoppervlakte 75 m²
Inhoud 246 m³
Aantal woonlagen 2

Energie

Energieklasse B
Energie einddatum zondag 2 december 2035
Isolatie Volledig geïsoleerd, grotendeels dubbelglas
Warmwater Cv ketel
Verwarming Cv ketel

Buitenruimte

Tuin Achtertuin
Hoofdtuin Achtertuin
Oppervlakte hoofdtuin 52 m²
Ligging hoofdtuin Noord-oost
Achterom Ja
Kwaliteit tuin Verzorgd

Bergruimte

Garage Geen garage
Schuur / Berging Inpandig

Parkeergelegenheid

Voorzieningen Openbaar parkeren

Dak

Dak Plat dak

Overig

Permanente bewoning Ja
Onderhoud binnen Goed tot uitstekend
Onderhoud buiten Goed tot uitstekend
Huidig gebruik Woonruimte
Huidige bestemming Woonruimte

Voorzieningen

Voorzieningen Mechanische ventilatie, tv kabel, glasvezel kabel

Kadastrale gegevens

Gemeente Nieuwerkerk aan den IJssel
Sectie B
Perceelnummer 6036
Eigendomssituatie Volle eigendom
VanderPanne-HR-6745
Interesse in deze woning?

Rody helpt u graag

Delen

Vergelijkbare objecten

Klein Hitland 280

Nieuwerkerk aan den IJssel Vraagprijs: € 285.000,- k.k.
  • 452 m2
  • 47 m2
  • 2 kamers

Klein Hitland 125

Nieuwerkerk aan den IJssel Vraagprijs: € 365.000,- k.k.
  • 688 m2
  • 112 m2
  • 3 kamers

Rijskade 9

Nieuwerkerk aan den IJssel Vraagprijs: € 695.000,- k.k.
  • 450 m2
  • 168 m2
  • 4 kamers

Gouwe 1

Nieuwerkerk aan den IJssel Vraagprijs: € 795.000,- k.k.
  • 331 m2
  • 183 m2
  • 5 kamers

Veenmos 5

Nieuwerkerk aan den IJssel Vraagprijs: € 465.000,- k.k.
  • 157 m2
  • 112 m2
  • 5 kamers

Dorpsstraat 18

Nieuwerkerk aan den IJssel Vraagprijs: € 895.000,- k.k.
  • 212 m2
  • 5 kamers

Spechtendaal 11

Nieuwerkerk aan den IJssel Vraagprijs: € 485.000,- k.k.
  • 119 m2
  • 107 m2
  • 5 kamers

Italiaansezoom 2

Nieuwerkerk aan den IJssel Vraagprijs: € 1.195.000,- k.k.
  • 431 m2
  • 226 m2
  • 6 kamers

Waterschapsweg 12

Nieuwerkerk aan den IJssel Vraagprijs: € 1.195.000,- k.k.
  • 2090 m2
  • 237 m2
  • 4 kamers
fundawonen-logo
logo
VGC_keurmerk_nw_zwart-grijs
nwwi
logo_NVM_business_staand_CMYK