Kopenhagenstraat 59

Rotterdam Vraagprijs: € 310.000,- k.k.
Verkocht
  • Woonoppervlakte 82 m2
  • Aantal slaapkamers 2
  • Bouwjaar 1980

Omschrijving

Welkom bij de Kopenhagenstraat 59! Dit fijne 3-kamerappartement is gelegen in een rustige en groene omgeving, maar tegelijkertijd dichtbij alle voorzieningen. Met een lichte woonkamer, een balkon met openslaande deuren, twee slaapkamers en een complete badkamer is dit een woning waar u zich direct thuis zult voelen. De wijk biedt volop gemak: winkels, scholen, sportvoorzieningen en openbaar vervoer liggen op korte afstand. Bovendien bereikt u binnen enkele minuten het centrum van Rotterdam of de uitvalswegen richting Den Haag en Utrecht.

Begane grond:
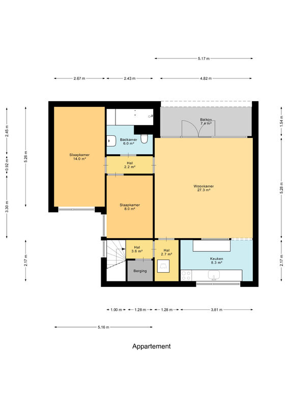
Via de entree heeft u toegang tot de meterkast en de trap naar de eerste verdieping. Op deze verdieping bevindt zich tevens een praktische berging.

1e verdieping:
U komt binnen in een hal met een extra berging. Vanuit hier bereikt u een tweede hal waar plaats is voor de wasmachine en droger. Vervolgens loopt u door naar de ruime woonkamer. Deze is heerlijk licht dankzij de grote raampartij en beschikt over twee openslaande deuren naar het balkon een perfecte plek om te genieten van het buitenleven.

De keuken is aan de voorzijde van de woning gelegen en is uitgerust met een 4-pits keramische kookplaat, een afzuigkap en een vaatwasser. Vanuit de woonkamer heeft u toegang tot een hal die leidt naar twee slaapkamers en de badkamer.

De badkamer is voorzien van een toilet, wastafel, designradiator en een ligbad met douche.

Bijzonderheden:
De woning beschikt over een lichte woonkamer met openslaande deuren naar het balkon, een moderne keuken die van alle gemakken is voorzien, twee slaapkamers en een complete badkamer met ligbad en douche. Daarnaast zijn er handige bergingen aanwezig en profiteert u van een rustige ligging met alle voorzieningen binnen handbereik. Een groot pluspunt is dat de erfpacht is afgekocht tot maar liefst 2078. De maandelijkse bijdrage aan de vereniging van eigenaren bedraagt € 120,09

Gebruiksoppervlakte woningen:
De Meetinstructie is gebaseerd op de NEN2580. De Meetinstructie is bedoeld om een meer eenduidige manier van meten toe te passen voor het geven van een indicatie van de gebruiksoppervlakte. De Meetinstructie sluit verschillen in meetuitkomsten niet volledig uit, door bijvoorbeeld interpretatieverschillen, afrondingen of beperkingen bij het uitvoeren van de meting.

Rechtsgeldige koopovereenkomst pas ná ondertekening:
Een mondelinge overeenstemming tussen de particuliere verkoper en de particuliere koper is niet rechtsgeldig. Met andere woorden: er is geen koop. Er is pas sprake van een rechtsgeldige koop als de particuliere verkoper en de particuliere koper de koopovereenkomst hebben ondertekend. Dit vloeit voort uit artikel 7:2 Burgerlijk Wetboek. Een bevestiging van de mondelinge overeenstemming per e-mail of een toegestuurd concept van de koopovereenkomst wordt overigens niet gezien als een ‘ondertekende koopovereenkomst’.

Van der Panne woning- & bedrijfsmakelaardij is de makelaar van de verkoper. Neem uw eigen NVM-makelaar mee, voor goed advies bij de aankoop van uw nieuwe woning!

Lees de volledige omschrijving

Kenmerken

Overdracht

Status Verkocht
Aanvaarding In overleg

Bouwvorm

Soort object Appartement
Bouwjaar 1980
Bouwvorm Bestaande bouw
Ligging Aan een rustige weg, in een woonwijk

Indeling

Woonoppervlakte 82 m²
Inhoud 273 m³
Aantal woonlagen 1

Energie

Energieklasse B
Energie einddatum woensdag 19 september 2035
Isolatie Dakisolatie, muurisolatie, vloerisolatie
Warmwater Stadsverwarming
Verwarming Stadsverwarming

Buitenruimte

Tuin Geen tuin
Achterom Nee

Bergruimte

Garage Geen garage

Parkeergelegenheid

Voorzieningen Openbaar parkeren

Dak

Dak Plat dak

Overig

Permanente bewoning Ja
Onderhoud binnen Goed
Onderhoud buiten Redelijk tot goed
Huidig gebruik Woonruimte
Huidige bestemming Woonruimte

Voorzieningen

Voorzieningen Mechanische ventilatie, tv kabel

Kadastrale gegevens

Gemeente Hillegersberg
Sectie C
Perceelnummer 6527
Eigendomssituatie Eigendom belast met erfpacht
VanderPanne-HR-6621
Interesse in deze woning?

Esmille helpt u graag

Delen

Vergelijkbare objecten

Kretalaan 59

Rotterdam Vraagprijs: € 1.495.000,- k.k.
  • 188 m2
  • 213 m2
  • 5 kamers
Homepage-dorpen-Nieuwerkerk-aan-den-IJssel-1
Meer weten over Rotterdam
fundawonen-logo
logo
VGC_keurmerk_nw_zwart-grijs
nwwi
logo_NVM_business_staand_CMYK