Margrietveld 37

Nieuwerkerk aan den IJssel Vraagprijs: € 445.000,- k.k.
Verkocht
  • Woonoppervlakte 109 m2
  • Perceeloppervlakte 112 m2
  • Aantal slaapkamers 3
  • Bouwjaar 1980

Omschrijving

Welkom aan de Margrietveld 37! Deze verrassend ruime en goed onderhouden hoekwoning biedt maar liefst 109 m² aan woonoppervlakte, verdeeld over twee verdiepingen. De woning onderscheidt zich door de speelse en praktische indeling. Op de begane grond bevinden zich drie slaapkamers, een moderne badkamer en een wasruimte. Ideaal voor gezinnen maar ook perfect voor het creëren van een werk-/hobbyruimte. De eerste verdieping vormt het leefgedeelte van de woning, met een ruime en lichte woonkamer en een halfopen keuken die is voorzien van diverse inbouwapparatuur. Vanuit de woonkamer stapt u zo het royale dakterras van circa 28 m² op. De woning heeft daarnaast een extra terras aan de zijkant en een veranda aan de voorzijde. Door de grote hoeveelheid buitenruimte is er altijd wel een plek om van de zon te genieten — van ’s ochtends vroeg tot ’s avonds laat. Uw (elektrische) auto kan voor de veranda geparkeerd (en opgeladen) worden. De woning is gesitueerd in de Veldenbuurt, een rustige en kindvriendelijke woonwijk met alle voorzieningen nabij. Het ‘Groene Hart’ park met meerdere speeltuinen en basisscholen bevindt zich aan het einde van de straat. Voor de dagelijkse boodschappen is winkelcentrum ‘De Reigerhof’ op loopafstand gelegen. Ook zijn er verschillende sportaccommodaties in de directe omgeving te vinden. Dankzij het NS-station en de snelle aansluiting naar de A20 zijn steden als Rotterdam, Gouda en Utrecht uitstekend bereikbaar. Kortom, een hele leuke eengezinswoning in een prettige woonomgeving!

Begane grond:
Entree, hal met de meterkast (vernieuwd in 2022, uitgebreid met een extra groep voor de elektrische laadpaal), het toilet (met wandcloset en fonteintje) en de trap naar de eerste verdieping met daaronder een vaste kast. Vanuit de hal heeft u toegang tot alle vertrekken; drie ruime slaapkamers, een wasruimte (met wasmachine- en drogeraansluiting) en de moderne badkamer.

De hoofdslaapkamer aan de voorzijde is voorzien van een vaste schuifwandkast, een rolluik (elektrisch bedienbaar) en biedt uitzicht op de veranda. Daarnaast zijn er nog twee slaapkamers gelegen op de begane grond.

De moderne badkamer is voorzien van een inloopdouche, een designradiator en een wastafelmeubel met twee lades.

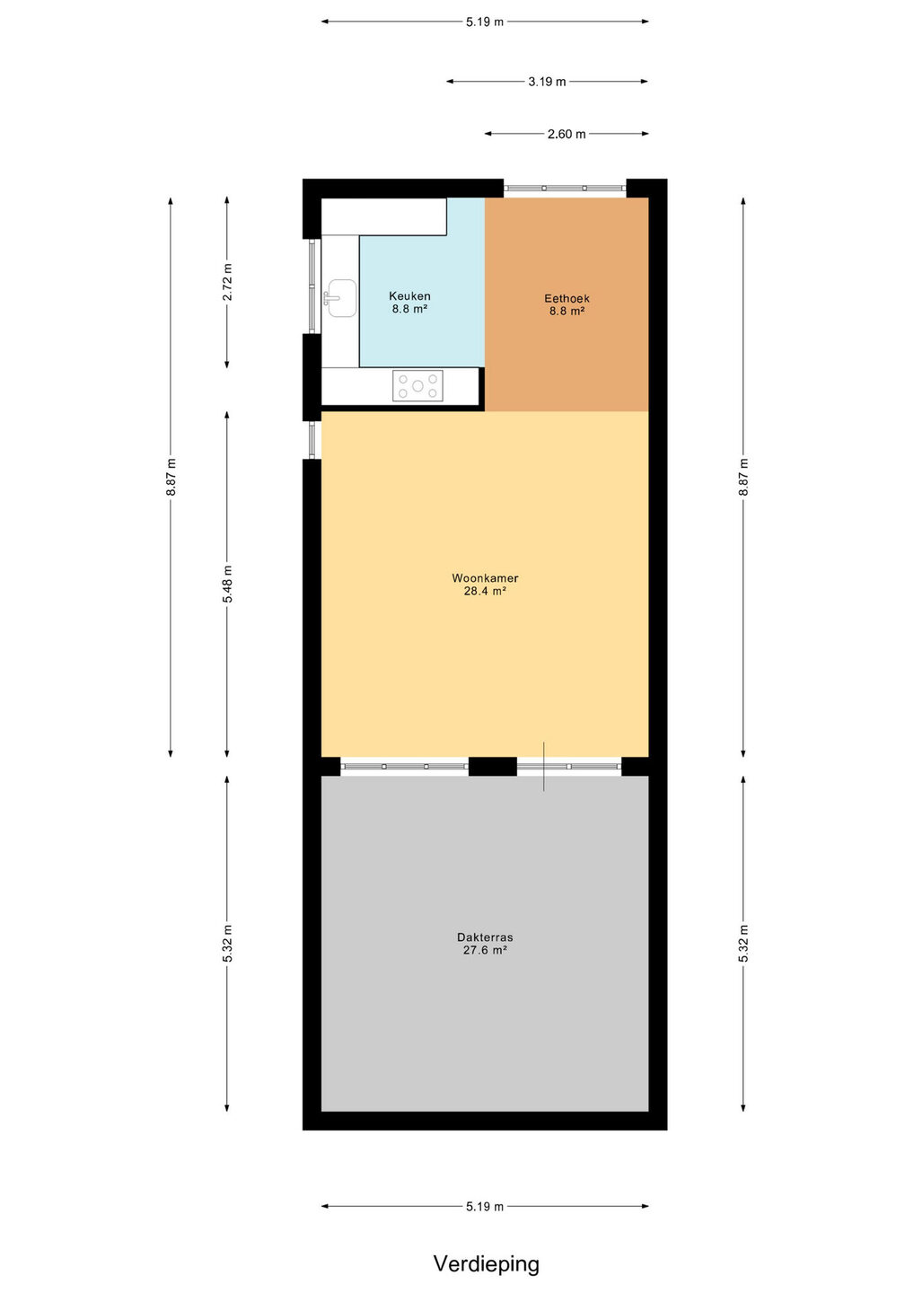
1e verdieping:
Op de eerste verdieping vindt u een ruime en lichte woonkamer met een halfopen keuken en een eetgedeelte tussen beide ruimtes. De keuken is modern uitgevoerd; witte hoogglans keukenkasten en een zwart composiet werkblad. Daarnaast is de keuken voorzien van diverse inbouwapparatuur zoals een koelkast, een vriezer, een 5-pits gaskookplaat met RVS-afzuigkap, een combi-oven en een vaatwasser. De CV-installatie (2024) is weggewerkt achter een van de keukenkasten.

Vanuit de woonkamer stapt u zo het royale dakterras van circa 28 m² op. Dankzij de gunstige ligging op het noordwesten kunt u hier zowel 's middags als 's avonds heerlijk van de zon genieten. Het terras biedt veel privacy en heeft nauwelijks inkijk van omwonenden, waardoor u in alle rust kunt ontspannen en gezellig buiten kunt eten.

Bijzonderheden:
De zijgevel van de woning is in april 2024 opnieuw gevoegd en geïmpregneerd. In mei 2024 is het bitumen dak vernieuwd.

Omgeving:
Nieuwerkerk aan den IJssel is een gezellig en charmant dorp, gelegen aan de Hollandse IJssel. Het dorp biedt een fijne mix van natuur, ontspanning en activiteiten voor jong en oud.

Voor buitenliefhebbers is er een prachtige golfbaan in een natuurrijke omgeving. Gezinnen met kinderen kunnen terecht in zwembad het Polderbad voor een verfrissende duik. Daarnaast zijn er volop sportverenigingen, waaronder een voetbalclub, tennisclub, hockeyclub en een dansschool.

Het historische hart van Nieuwerkerk, het ‘Oude Dorp’, heeft een sfeervolle uitstraling met een gevarieerd aanbod aan winkels en horecagelegenheden.

Nieuwerkerk is bovendien uitstekend bereikbaar: dankzij een goede treinverbinding sta je in ongeveer 15 minuten in het centrum van Rotterdam of in 30 minuten in het centrum van Utrecht.

Voor gezinnen met kinderen is er ruime keuze op het gebied van onderwijs. Nieuwerkerk telt maar liefst zeven basisscholen, elk met een eigen onderwijsvisie. Ook voortgezet onderwijs is aanwezig, met twee middelbare scholen.

Gebruiksoppervlakte woningen:
De Meetinstructie is gebaseerd op de NEN2580. De Meetinstructie is bedoeld om een meer eenduidige manier van meten toe te passen voor het geven van een indicatie van de gebruiksoppervlakte. De Meetinstructie sluit verschillen in meetuitkomsten niet volledig uit, door bijvoorbeeld interpretatieverschillen, afrondingen of beperkingen bij het uitvoeren van de meting.

Rechtsgeldige koopovereenkomst pas ná ondertekening:
Een mondelinge overeenstemming tussen de particuliere verkoper en de particuliere koper is niet rechtsgeldig. Met andere woorden: er is geen koop. Er is pas sprake van een rechtsgeldige koop als de particuliere verkoper en de particuliere koper de koopovereenkomst hebben ondertekend. Dit vloeit voort uit artikel 7:2 Burgerlijk Wetboek. Een bevestiging van de mondelinge overeenstemming per e-mail of een toegestuurd concept van de koopovereenkomst wordt overigens niet gezien als een ‘ondertekende koopovereenkomst’.

Van der Panne woning- & bedrijfsmakelaardij is de makelaar van de verkoper. Neem uw eigen NVM-makelaar mee, voor goed advies bij de aankoop van uw nieuwe woning!

Lees de volledige omschrijving

Kenmerken

Overdracht

Status Verkocht
Aanvaarding In overleg

Bouwvorm

Soort object Woonhuis
Soort woning Eengezinswoning
Type woning Hoekwoning
Bouwjaar 1980
Bouwvorm Bestaande bouw
Ligging Aan een park, in een woonwijk, vrij uitzicht

Indeling

Woonoppervlakte 109 m²
Perceeloppervlakte 112 m²
Inhoud 398 m³
Aantal woonlagen 2

Energie

Energieklasse C
Energie einddatum donderdag 7 februari 2030
Isolatie Dakisolatie, muurisolatie, vloerisolatie, dubbel glas, volledig geïsoleerd
Warmwater Cv ketel
Verwarming Cv ketel

Buitenruimte

Tuin Voortuin, zijtuin, zonneterras
Hoofdtuin Zonneterras
Oppervlakte hoofdtuin 28 m²
Ligging hoofdtuin Noord-west
Achterom Nee
Kwaliteit tuin Verzorgd

Bergruimte

Garage Geen garage
Schuur / Berging Aangebouwd hout

Parkeergelegenheid

Voorzieningen Openbaar parkeren

Dak

Dak Plat dak

Overig

Permanente bewoning Ja
Onderhoud binnen Goed tot uitstekend
Onderhoud buiten Goed tot uitstekend
Huidig gebruik Woonruimte
Huidige bestemming Woonruimte

Voorzieningen

Voorzieningen Mechanische ventilatie, tv kabel

Kadastrale gegevens

Gemeente Nieuwerkerk aan den IJssel
Sectie B
Perceelnummer 4102
Oppervlakte 112 m²
Eigendomssituatie Volle eigendom
VanderPanne-HR-6889
Interesse in deze woning?

Kirsten helpt u graag

Delen

Vergelijkbare objecten

Gladioolveld 14

Nieuwerkerk aan den IJssel Vraagprijs: € 415.000,- k.k.
  • 133 m2
  • 104 m2
  • 4 kamers

Dorpsstraat 18

Nieuwerkerk aan den IJssel Vraagprijs: € 845.000,- k.k.
  • 212 m2
  • 5 kamers

Klein Hitland 280

Nieuwerkerk aan den IJssel Vraagprijs: € 285.000,- k.k.
  • 452 m2
  • 47 m2
  • 2 kamers

Waterschapsweg 12

Nieuwerkerk aan den IJssel Vraagprijs: € 1.195.000,- k.k.
  • 2090 m2
  • 237 m2
  • 4 kamers

Rosario 2

Nieuwerkerk aan den IJssel Vraagprijs: € 1.095.000,- k.k.
  • 284 m2
  • 198 m2
  • 5 kamers

Poolsezoom 38

Nieuwerkerk aan den IJssel Vraagprijs: € 665.000,- k.k.
  • 364 m2
  • 150 m2
  • 6 kamers

Linge 35

Nieuwerkerk aan den IJssel Vraagprijs: € 515.000,- k.k.
  • 156 m2
  • 111 m2
  • 5 kamers
fundawonen-logo
logo
VGC_keurmerk_nw_zwart-grijs
nwwi
logo_NVM_business_staand_CMYK