Batavierlaan 7

Nieuwerkerk aan den IJssel Vraagprijs: € 300.000,- k.k.
Verkocht
  • Woonoppervlakte 86 m2
  • Aantal slaapkamers 3
  • Bouwjaar 1960

Omschrijving

Leuke maisonnette woning welke zich onderscheid van de rest door een vrij uitzicht, een gesloten hal, de ligging op de 1e en 2e verdieping en een badkamer met een ligbad! Op steenworp afstand van het appartement ligt het treinstation Nieuwerkerk aan den IJssel, winkelcentrum de Reigerhof en diverse sportvoorzieningen.

1e verdieping:
Entree, hal met een vaste kast en het toilet (met fonteintje).

Open keuken met een L-vormig keukenblok met diverse (inbouw) apparatuur zoals een combi oven/magnetron, een vaatwasser, een 4-pits keramische kookplaat, een RVS afzuigkap en een koelkast met vriesvak.

Woonkamer met vrij uitzicht en een balkon (zuidoosten) met zonwering. In de vaste kast bevindt zich de boiler.

De gehele verdieping is voorzien van een laminaat vloer.

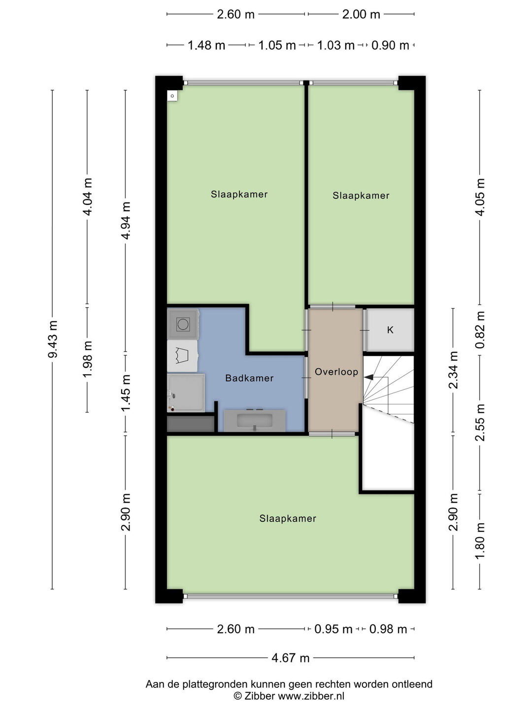
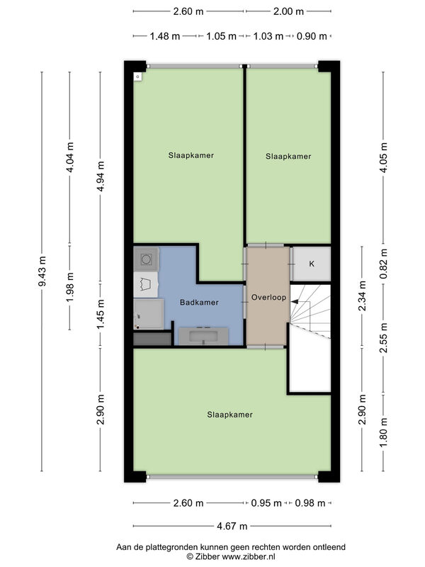
2e verdieping:
Overloop, vaste kast met de aansluiting voor de wasmachine.

Er zijn in totaal drie slaapkamers waarvan er twee zijn gelegen aan de zijde van de Batavierlaan en de een slaapkamer (hoofdslaapkamer) met vaste schuifwandkast aan de zijde van de parkeerplaats. De vergrote, geheel betegelde badkamer is voorzien van een wastafel en een ligbad.

Bijzonderheden:
Er is een separate berging aanwezig op de begane grond. De VvE bijdrage is 290,46 euro per maand, waaronder een voorschot voor de stookkosten wordt betaald van 65 euro per maand.

Nieuwerkerk aan den IJssel is een gezellig en charmant dorp, gelegen aan de Hollandse IJssel. Het dorp biedt een fijne mix van natuur, ontspanning en activiteiten voor jong en oud.

Voor liefhebbers van buiten zijn is er een prachtige golfbaan in een natuurrijke omgeving. Gezinnen met kinderen kunnen terecht in zwembad het Polderbad voor een verfrissende duik. Daarnaast zijn er volop sportmogelijkheden met diverse verenigingen, waaronder een voetbalclub, tennisclub, hockeyclub en een dansschool.

Het historische hart van Nieuwerkerk, het Oude Dorp, heeft een sfeervolle uitstraling met een gevarieerd aanbod aan winkels en horecagelegenheden.

Nieuwerkerk is bovendien uitstekend bereikbaar: dankzij een goede treinverbinding sta je in ongeveer 15 minuten in het centrum van Rotterdam. Zo is er Nonna’s Cucina, waar Italiaanse traditie en gastvrijheid samenkomen. Ook HIT eten & drinken ligt in een prachtig gebied en biedt een ontspannen plek voor koffie, lunch, diner of borrel.

Voor gezinnen met kinderen is er ruime keuze op het gebied van onderwijs. Nieuwerkerk telt maar liefst zeven basisscholen, elk met een eigen onderwijsvisie, zoals de Elimschool, Gideonschool, Montessorischool en de Prins Willem Alexanderschool. Ook voortgezet onderwijs is aanwezig, met twee middelbare scholen: het openbare Thorbecke en het christelijke Comenius College.

Gebruiksoppervlakte woningen:
De Meetinstructie is gebaseerd op de NEN2580. De Meetinstructie is bedoeld om een meer eenduidige manier van meten toe te passen voor het geven van een indicatie van de gebruiksoppervlakte. De Meetinstructie sluit verschillen in meetuitkomsten niet volledig uit, door bijvoorbeeld interpretatieverschillen, afrondingen of beperkingen bij het uitvoeren van de meting.

Rechtsgeldige koopovereenkomst pas ná ondertekening:
Een mondelinge overeenstemming tussen de particuliere verkoper en de particuliere koper is niet rechtsgeldig. Met andere woorden: er is geen koop. Er is pas sprake van een rechtsgeldige koop als de particuliere verkoper en de particuliere koper de koopovereenkomst hebben ondertekend. Dit vloeit voort uit artikel 7:2 Burgerlijk Wetboek. Een bevestiging van de mondelinge overeenstemming per e-mail of een toegestuurd concept van de koopovereenkomst wordt overigens niet gezien als een ‘ondertekende koopovereenkomst’.

Van der Panne woning- & bedrijfsmakelaardij is de makelaar van de verkoper. Neem uw eigen NVM-makelaar mee, voor goed advies bij de aankoop van uw nieuwe woning!

Lees de volledige omschrijving

Kenmerken

Overdracht

Status Verkocht
Aanvaarding In overleg

Bouwvorm

Soort object Appartement
Bouwjaar 1960
Bouwvorm Bestaande bouw
Ligging In een woonwijk

Indeling

Woonoppervlakte 86 m²
Inhoud 285 m³
Aantal woonlagen 2

Energie

Energieklasse D
Energie einddatum zondag 14 oktober 2035
Isolatie Dubbel glas
Warmwater Elektrische boiler eigendom
Verwarming Blokverwarming

Buitenruimte

Tuin Geen tuin
Achterom Nee

Bergruimte

Garage Geen garage
Schuur / Berging Box

Parkeergelegenheid

Voorzieningen Openbaar parkeren

Dak

Dak Plat dak

Overig

Permanente bewoning Ja
Onderhoud binnen Goed
Onderhoud buiten Goed
Huidig gebruik Woonruimte
Huidige bestemming Woonruimte

Voorzieningen

Voorzieningen Tv kabel, buitenzonwering

Kadastrale gegevens

Gemeente Nieuwerkerk aan den IJssel
Sectie A
Perceelnummer 5188
Eigendomssituatie Volle eigendom
VanderPanne-HR-6621
Interesse in deze woning?

Esmille helpt u graag

Delen

Vergelijkbare objecten

Klein Hitland 280

Nieuwerkerk aan den IJssel Vraagprijs: € 285.000,- k.k.
  • 452 m2
  • 47 m2
  • 2 kamers

Klein Hitland 125

Nieuwerkerk aan den IJssel Vraagprijs: € 365.000,- k.k.
  • 688 m2
  • 112 m2
  • 3 kamers

Rijskade 9

Nieuwerkerk aan den IJssel Vraagprijs: € 695.000,- k.k.
  • 450 m2
  • 168 m2
  • 4 kamers

Gouwe 1

Nieuwerkerk aan den IJssel Vraagprijs: € 795.000,- k.k.
  • 331 m2
  • 183 m2
  • 5 kamers

Veenmos 5

Nieuwerkerk aan den IJssel Vraagprijs: € 465.000,- k.k.
  • 157 m2
  • 112 m2
  • 5 kamers

Dorpsstraat 18

Nieuwerkerk aan den IJssel Vraagprijs: € 895.000,- k.k.
  • 212 m2
  • 5 kamers

Spechtendaal 11

Nieuwerkerk aan den IJssel Vraagprijs: € 485.000,- k.k.
  • 119 m2
  • 107 m2
  • 5 kamers

Italiaansezoom 2

Nieuwerkerk aan den IJssel Vraagprijs: € 1.195.000,- k.k.
  • 431 m2
  • 226 m2
  • 6 kamers

Waterschapsweg 12

Nieuwerkerk aan den IJssel Vraagprijs: € 1.195.000,- k.k.
  • 2090 m2
  • 237 m2
  • 4 kamers
fundawonen-logo
logo
VGC_keurmerk_nw_zwart-grijs
nwwi
logo_NVM_business_staand_CMYK