Ossip Zadkinestraat 19

Rotterdam Vraagprijs: € 925.000,- k.k.
Verkocht
  • Woonoppervlakte 176 m2
  • Perceeloppervlakte 204 m2
  • Aantal slaapkamers 4
  • Bouwjaar 2010

Omschrijving

Is dit het populairste stukje Nesselande? En deze woning ligt dan ook nog eens pal tegenover een groot grasveld met speeltuin; kan niet beter! Welkom in deze ruime twee-onder-een-kapper met een woonoppervlakte van circa 176 m², gelegen in de populaire wijk Nesselande in Rotterdam. Met een flinke woonkamer, vijf slaapkamers, twee badkamers en een zonnige tuin met overkapping aan het water is dit een ideaal familiehuis. De woning is instapklaar en voorzien van alle gemakken, waaronder vloerverwarming, een stijlvolle keuken en recent vernieuwde apparatuur.

Persoonlijke tekst van de eigenaar:
Vanaf de eerste dag hebben we met plezier in dit prachtige huis gewoond. En door de jaren heen genoten van de enorme ruimte aan de voorkant. Waar onze opgroeiende kinderen altijd veilig konden spelen en er altijd voldoende parkeerplek is. Aan de achterkant van het huis waan je je in een vakantiepark. De hele dag zon in de tuin. In de zomer stap je in je bootje vanaf de vlonder en in de winter kun je de hele buurt door schaatsen. Al met al een fantastisch ruim en licht huis in een heerlijke, rustige omgeving.

Indeling:

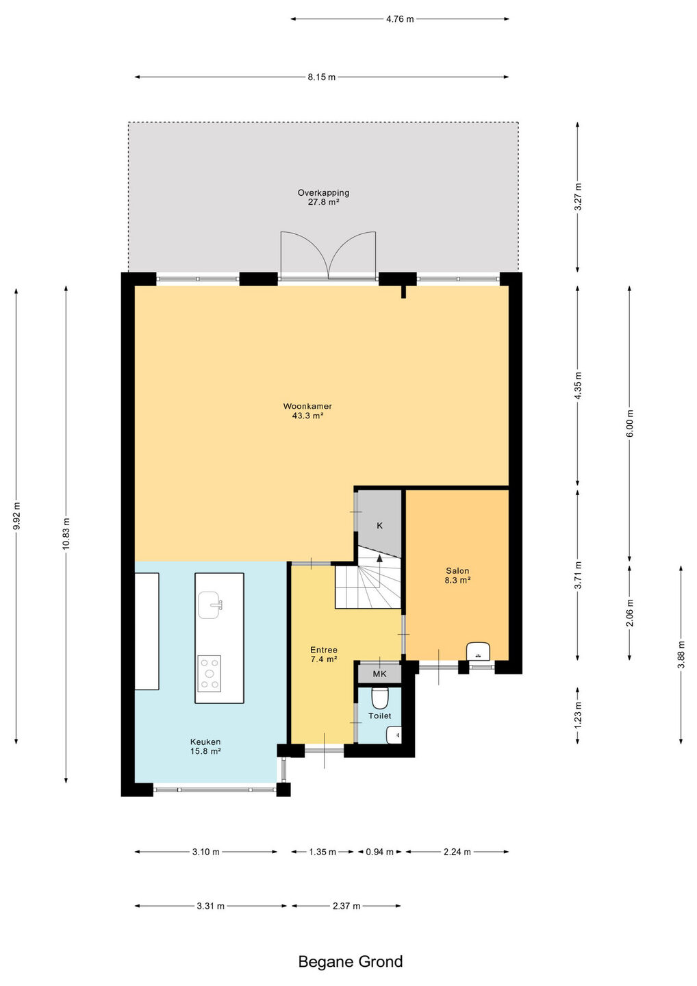
Begane grond:
Entree met meterkast (stadsverwarming en glasvezelinternet), toilet met hangend closet en fonteintje, en een berging die nu in gebruik is als salon. De ruime woonkamer beschikt over een handige trapkast en openslaande deuren naar de tuin. Aan de voorzijde bevindt zich de moderne open keuken, uitgerust met diverse inbouwapparatuur: oven, Amerikaanse koel-/vriescombinatie, magnetron, vaatwasser (2023), inductiekookplaat (2024) en afzuigkap. De begane grond is voorzien van leisteenvloer met vloerverwarming. De zonnige tuin is voorzien van een aluminium overkapping met inbouwspots, een houten steiger en een vrijstaande berging.

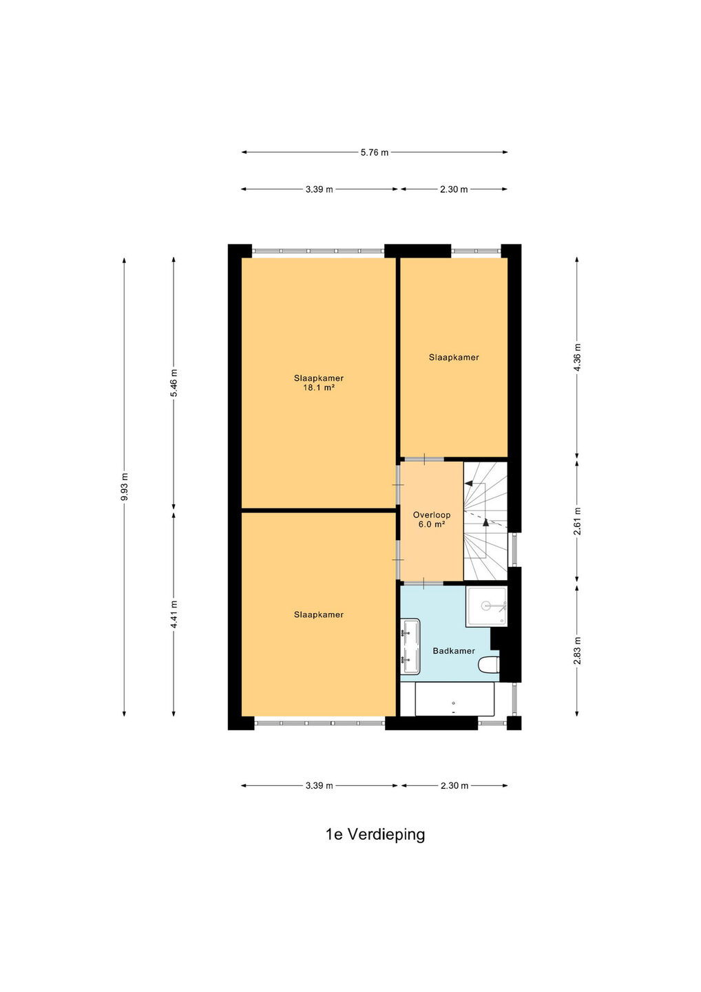
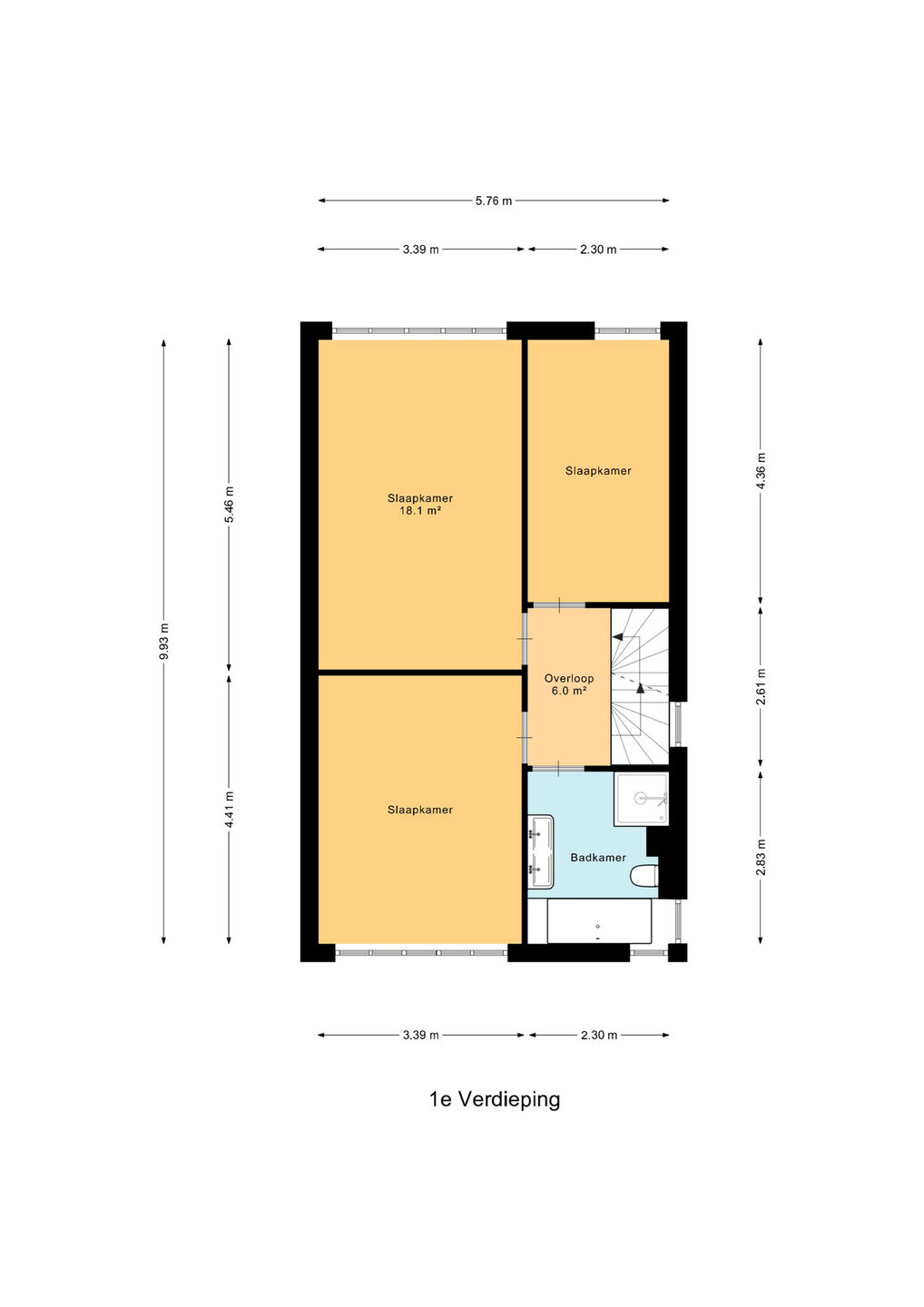
Eerste verdieping:
Overloop met toegang tot drie slaapkamers: twee aan de achterzijde en één aan de voorzijde. De badkamer is ruim en compleet ingericht met douche, ligbad, hangend toilet, meubel met dubbele waskommen en designradiator.

Tweede verdieping:
Overloop met toegang tot een royale slaapkamer met dakkapel aan de voorzijde en dakraam achter. Tevens bevindt zich hier een tweede badkamer met toilet, douche, wastafelmeubel en aansluiting voor de wasmachine.

Bijzonderheden:
* Gebruiksoppervlakte wonen: ca. 176 m²
* Inhoud woning: ca. 644 m³
* Twee badkamers
* Vijf slaapkamers
* Vloerverwarming op de begane grond
* Twee jaar geleden voorzien van eiken traptreden
* Tuin met aluminium overkapping, houten steiger en berging
* Gelegen in de kindvriendelijke wijk Nesselande, nabij de Zevenhuizerplas, winkels, scholen en metrostation

Omgeving – Rotterdam-Nesselande:
Rotterdam-Nesselande is een moderne en levendige wijk, prachtig gelegen aan de Zevenhuizerplas. Deze wijk combineert stedelijk wonen met een ontspannen strandgevoel. Met een brede boulevard, het stadsstrand en diverse recreatiemogelijkheden is Nesselande een geliefde plek voor bewoners en bezoekers.

Nesselande beschikt over vier basisscholen met verschillende onderwijsvormen: een christelijke school, een openbare tweetalige basisschool, een daltonbasisschool en een vrijeschool. Voor middelbaar onderwijs zijn er in de nabije omgeving goede opties, zoals het Comenius College in Nieuwerkerk en het Emmaus College in Rotterdam.

Op culinair gebied zijn Guay, Brasserie Lookies en L’Italiano populaire hotspots. Voor de lekkerste koffie is er Mamamo! Een fijne plek waar ouders kunnen ontspannen terwijl de kinderen spelen.

De wijk is uitstekend bereikbaar via het metrostation Nesselande, dat snelle verbindingen biedt naar Rotterdam centrum en omliggende gebieden. Daarnaast kent Nesselande diverse sportclubs, waardoor er volop mogelijkheden zijn om actief te zijn.

Kortom, Nesselande biedt voor ieder wat wils: een moderne, groene en kindvriendelijke woonomgeving met goede voorzieningen, leuke eetgelegenheden en volop recreatie.

Gebruiksoppervlakte woningen:
De Meetinstructie is gebaseerd op de NEN2580. De Meetinstructie is bedoeld om een meer eenduidige manier van meten toe te passen voor het geven van een indicatie van de gebruiksoppervlakte. De Meetinstructie sluit verschillen in meetuitkomsten niet volledig uit, door bijvoorbeeld interpretatieverschillen, afrondingen of beperkingen bij het uitvoeren van de meting.

Rechtsgeldige koopovereenkomst pas ná ondertekening:
Een mondelinge overeenstemming tussen de particuliere verkoper en de particuliere koper is niet rechtsgeldig. Er is pas sprake van een rechtsgeldige koop als beide partijen de koopovereenkomst hebben ondertekend. Dit vloeit voort uit artikel 7:2 Burgerlijk Wetboek. Een bevestiging van de mondelinge overeenstemming per e-mail of een toegestuurd concept van de koopovereenkomst wordt overigens niet gezien als een ‘ondertekende koopovereenkomst’. Van der Panne woning- & bedrijfsmakelaardij is de makelaar van de verkoper. Neem uw eigen NVM-makelaar mee voor goed advies bij de aankoop van uw nieuwe woning.

Lees de volledige omschrijving

Kenmerken

Overdracht

Status Verkocht
Aanvaarding In overleg

Bouwvorm

Soort object Woonhuis
Soort woning Eengezinswoning
Type woning Geschakelde twee onder één kapwoning
Bouwjaar 2010
Bouwvorm Bestaande bouw
Ligging In een woonwijk

Indeling

Woonoppervlakte 176 m²
Perceeloppervlakte 204 m²
Inhoud 645 m³
Aantal woonlagen 3

Energie

Energieklasse A
Energie einddatum dinsdag 31 december 2030
Isolatie Volledig geïsoleerd
Warmwater Stadsverwarming
Verwarming Stadsverwarming

Buitenruimte

Tuin Achtertuin, voortuin
Hoofdtuin Achtertuin
Oppervlakte hoofdtuin 81 m²
Ligging hoofdtuin Noord-west
Achterom Nee
Kwaliteit tuin Verzorgd

Bergruimte

Garage Geen garage
Schuur / Berging Inpandig

Parkeergelegenheid

Voorzieningen Op eigen terrein

Dak

Dak Zadeldak

Overig

Permanente bewoning Ja
Onderhoud binnen Goed tot uitstekend
Onderhoud buiten Goed tot uitstekend
Huidig gebruik Woonruimte
Huidige bestemming Woonruimte

Voorzieningen

Voorzieningen Mechanische ventilatie, tv kabel, dakraam, glasvezel kabel

Kadastrale gegevens

Gemeente Rotterdam
Sectie BC
Perceelnummer 3809
Oppervlakte 204 m²
Eigendomssituatie Volle eigendom
VanderPanne-HR-6745
Interesse in deze woning?

Rody helpt u graag

Delen

Vergelijkbare objecten

Korfoepad 9

Rotterdam Vraagprijs: € 459.000,- k.k.
  • 92 m2
  • 5 kamers

Trompetbloem 18

Rotterdam Vraagprijs: € 485.000,- k.k.
  • 148 m2
  • 133 m2
  • 6 kamers

Kretalaan 59

Rotterdam Vraagprijs: € 1.495.000,- k.k.
  • 188 m2
  • 213 m2
  • 5 kamers
Homepage-dorpen-Nieuwerkerk-aan-den-IJssel-1
Meer weten over Rotterdam
fundawonen-logo
logo
VGC_keurmerk_nw_zwart-grijs
nwwi
logo_NVM_business_staand_CMYK