Van der Panne woning- & bedrijfsmakelaardij
Van der Panne woning- & bedrijfsmakelaardij

Prins Alexanderlaan 114

Nieuwerkerk aan den IJssel Vraagprijs: € 550.000,- k.k.
Verkocht onder voorbehoud
  • Woonoppervlakte 148 m2
  • Perceeloppervlakte 183 m2
  • Aantal slaapkamers 5
  • Bouwjaar 1970

Omschrijving

Zeer riante tussenwoning met een gebruiksoppervlakte van 148 m² gelegen aan de brede Prins Alexanderlaan welke door zijn vele groen en ruime opzet een perfecte locatie biedt voor vele woningzoekenden! Dankzij de breedtemaat van 6 meter biedt de woning een bijzonder ruimtelijk gevoel. Het geheel beschikt over een uitgebouwde woonkamer met een ruime open keuken met een eetgedeelte. De schuifpui biedt toegang tot de op het zuidoosten gelegen achtertuin van ca. 11 meter diep. De eerste verdieping voorziet de woning van drie ruime slaapkamers en een moderne badkamer. Op de tweede verdieping bevinden zich nog twee ruime slaapkamers welke beide zijn voorzien van een dakkapel. De woning is gelegen in de kindvriendelijke wijk Dorrestein. In de directe omgeving treft u naast het uitgebreide winkelcentrum diverse basisscholen en sportvoorzieningen aan. Op fietsafstand is winkelcentrum Reigerhof evenals het NS-station van Nieuwerkerk a/d IJssel te vinden. Kortom, een aantrekkelijke eengezinswoning op een centrale locatie!

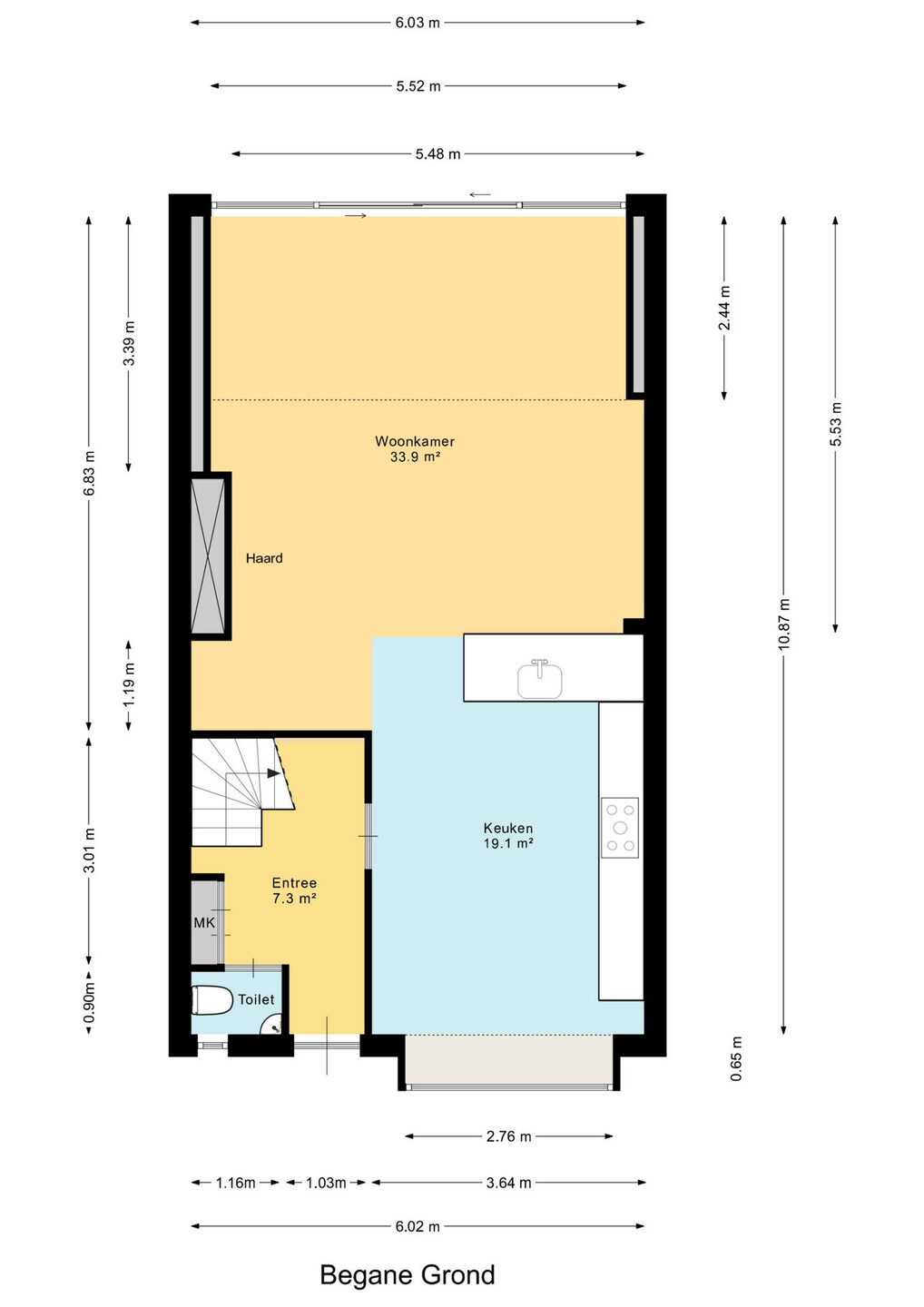
Begane grond:
Entree met de meterkast, het toilet (met zwevend toilet en fonteintje), inbouwkasten en een garderobe onder de trap.

Via de hal betreedt u de uitgebouwde woonkamer welke is voorzien van een eiken vloer en een verlaagd plafond met inbouwspots. Aan de achterzijde bevindt zich het zitgedeelte met een sfeervolle open haard (gas gestookt). De open keuken en het eetgedeelte zijn gelegen aan de voorzijde van de woning. De moderne en ruime keuken is voorzien van een schiereiland met een bar en diverse inbouwapparatuur, waaronder een vaatwasser (2023), een 5-pits gaskookplaat, een koel/vriescombinatie, een afzuigkap, een oven en een combi magnetron. U komt niets te kort!

De aluminium schuifpui biedt toegang tot de achtertuin van ca. 11 meter diep. De tuin is gelegen op het zuidoosten, waardoor je in de ochtend en middag heerlijk van de zon kunt genieten! Behoefte aan iets meer schaduw? Geen probleem - met het aanwezige zonnescherm creëert u eenvoudig een beschutte plek. Verder is de tuin voorzien van een stenen berging en is te bereiken via een achterom.

1e verdieping:
Overloop met toegang tot drie ruime slaapkamers en de badkamer.

De slaapkamer aan de achterzijde is gelegen over de gehele breedte van de woning en beschikt over een airconditioning (2024) en vaste inbouwkasten. De tweede en derde slaapkamer zijn beide gelegen aan de voorzijde van de woning. Alle slaapkamers zijn voorzien van kunststof kozijnen.

De badkamer is voorzien van een ruime inloopdouche, een toilet en een wastafelmeubel met kraan.

2e verdieping:
Overloop met bergruimte achter de knieschotten, de wasmachine- en drogeraansluitingen en de CV-installatie. De overloop wordt van daglicht voorzien door het aanwezige dakraam (kunststof). Tevens is er toegang tot een vliering.

Op deze verdieping bevinden zich nog eens twee slaapkamers welke beide zijn voorzien van een dakkapel.

Afmetingen:
Zie de (interactieve) plattegronden voor de afmetingen van de woning.

Nieuwerkerk aan den IJssel is een gezellig en charmant dorp, gelegen aan de Hollandse IJssel. Het dorp biedt een fijne mix van natuur, ontspanning en activiteiten voor jong en oud.

Voor liefhebbers van buiten zijn is er een prachtige golfbaan in een natuurrijke omgeving. Gezinnen met kinderen kunnen terecht in zwembad het Polderbad voor een verfrissende duik. Daarnaast zijn er volop sportmogelijkheden met diverse verenigingen, waaronder een voetbalclub, tennisclub, hockeyclub en een dansschool.

Het historische hart van Nieuwerkerk, het Oude Dorp, heeft een sfeervolle uitstraling met een gevarieerd aanbod aan winkels en horecagelegenheden.

Nieuwerkerk is bovendien uitstekend bereikbaar: dankzij een goede treinverbinding sta je in ongeveer 15 minuten in het centrum van Rotterdam. Zo is er Muller & Co, een sfeervolle brasserie en wijnbar. Ook HIT eten & drinken ligt in een prachtig gebied en biedt een ontspannen plek voor koffie, lunch, diner of borrel.

Voor gezinnen met kinderen is er ruime keuze op het gebied van onderwijs. Nieuwerkerk telt maar liefst zeven basisscholen, elk met een eigen onderwijsvisie, zoals de Elimschool, Gideonschool, Montessorischool en de Prins Willem Alexanderschool. Ook voortgezet onderwijs is aanwezig, met twee middelbare scholen: het openbare Thorbecke en het christelijke Comenius College.

Gebruiksoppervlakte woningen:
De Meetinstructie is gebaseerd op de NEN2580. De Meetinstructie is bedoeld om een meer eenduidige manier van meten toe te passen voor het geven van een indicatie van de gebruiksoppervlakte. De Meetinstructie sluit verschillen in meetuitkomsten niet volledig uit, door bijvoorbeeld interpretatieverschillen, afrondingen of beperkingen bij het uitvoeren van de meting.

Rechtsgeldige koopovereenkomst pas ná ondertekening:
Een mondelinge overeenstemming tussen de particuliere verkoper en de particuliere koper is niet rechtsgeldig. Met andere woorden: er is geen koop. Er is pas sprake van een rechtsgeldige koop als de particuliere verkoper en de particuliere koper de koopovereenkomst hebben ondertekend. Dit vloeit voort uit artikel 7:2 Burgerlijk Wetboek. Een bevestiging van de mondelinge overeenstemming per e-mail of een toegestuurd concept van de koopovereenkomst wordt overigens niet gezien als een ‘ondertekende koopovereenkomst’.

Van der Panne woning- & bedrijfsmakelaardij is de makelaar van de verkoper. Neem uw eigen NVM-makelaar mee, voor goed advies bij de aankoop van uw nieuwe woning!

Lees de volledige omschrijving

Kenmerken

Overdracht

Status Verkocht onder voorbehoud
Aanvaarding In overleg

Bouwvorm

Soort object Woonhuis
Soort woning Eengezinswoning
Type woning Tussenwoning
Bouwjaar 1970
Bouwvorm Bestaande bouw
Ligging In een woonwijk

Indeling

Woonoppervlakte 148 m²
Perceeloppervlakte 183 m²
Inhoud 496 m³
Aantal woonlagen 3

Energie

Energieklasse C
Energie einddatum zondag 30 september 2035
Isolatie Dakisolatie, muurisolatie, dubbel glas
Warmwater Cv ketel
Verwarming Cv ketel

Buitenruimte

Tuin Achtertuin, voortuin
Hoofdtuin Achtertuin
Oppervlakte hoofdtuin 72 m²
Ligging hoofdtuin Zuid-oost
Achterom Ja
Kwaliteit tuin Verzorgd

Bergruimte

Garage Geen garage
Schuur / Berging Vrijstaand steen

Parkeergelegenheid

Voorzieningen Openbaar parkeren

Dak

Dak Zadeldak

Overig

Permanente bewoning Ja
Onderhoud binnen Goed
Onderhoud buiten Goed
Huidig gebruik Woonruimte
Huidige bestemming Woonruimte

Voorzieningen

Voorzieningen Tv kabel, buitenzonwering, airconditioning, rookkanaal, schuifpui, dakraam

Kadastrale gegevens

Gemeente Nieuwerkerk aan den IJssel
Sectie A
Perceelnummer 4696
Oppervlakte 183 m²
Eigendomssituatie Volle eigendom
VanderPanne-HR-6889
Interesse in deze woning?

Kirsten helpt u graag

Delen

Vergelijkbare objecten

Rijskade 9

Nieuwerkerk aan den IJssel Vraagprijs: € 695.000,- k.k.
  • 450 m2
  • 168 m2
  • 4 kamers

Veenmos 5

Nieuwerkerk aan den IJssel Vraagprijs: € 485.000,- k.k.
  • 157 m2
  • 112 m2
  • 5 kamers

Gouwe 19

Nieuwerkerk aan den IJssel Vraagprijs: € 695.000,- k.k.
  • 208 m2
  • 157 m2
  • 5 kamers

Singel 22

Nieuwerkerk aan den IJssel Vraagprijs: € 445.000,- k.k.
  • 182 m2
  • 128 m2
  • 6 kamers

Gouwe 33

Nieuwerkerk aan den IJssel Vraagprijs: € 625.000,- k.k.
  • 201 m2
  • 164 m2
  • 5 kamers

Batavierlaan 7

Nieuwerkerk aan den IJssel Vraagprijs: € 300.000,- k.k.
  • 86 m2
  • 4 kamers

Gouwe 1

Nieuwerkerk aan den IJssel Vraagprijs: € 825.000,- k.k.
  • 331 m2
  • 183 m2
  • 5 kamers

Stationsplein 20

Nieuwerkerk aan den IJssel Vraagprijs: € 399.000,- k.k.
  • 83 m2
  • 3 kamers

Colorado 57

Nieuwerkerk aan den IJssel Vraagprijs: € 665.000,- k.k.
  • 122 m2
  • 136 m2
  • 5 kamers
fundawonen-logo
logo
VGC_keurmerk_nw_zwart-grijs
nwwi
logo_NVM_business_staand_CMYK